Exklusive Dachgeschosswohnung auf drei Ebenen mit Terrassen, Kamin und Panoramablick ! Top Lage !
-
per sofort
Beschreibung
Exklusive Dachgeschosswohnung auf drei Ebenen mit Terrassen, Kamin und Panoramablick!
Diese beeindruckende Dachgeschosswohnung erstreckt sich über drei Ebenen und besticht durch Großzügigkeit, hochwertige Ausstattung und eine durchdachte Raumaufteilung. Großzügige Räume, stilvolle Details und zwei Terrassen mit atemberaubendem Blick über Wien machen dieses Objekt zu einem wahren Unikat. Der Dachgeschossausbau erfolgte im Jahr 2007.
1. Ebene (untere Eingangsebene):
Ein einladender Vorraum bildet den ersten Zugang zur Wohnung. Von hier führt eine elegante Innentreppe in die darüberliegende Hauptebene.
2. Ebene (Hauptebene – auch direkt per Lift erreichbar):
Diese Etage ist auch direkt über den Lift erschlossen und bietet den zentralen Wohnbereich der...
Exklusive Dachgeschosswohnung auf drei Ebenen mit Terrassen, Kamin und Panoramablick!
Diese beeindruckende Dachgeschosswohnung erstreckt sich über drei Ebenen und besticht durch Großzügigkeit, hochwertige Ausstattung und eine durchdachte Raumaufteilung. Großzügige Räume, stilvolle Details und zwei Terrassen mit atemberaubendem Blick über Wien machen dieses Objekt zu einem wahren Unikat. Der Dachgeschossausbau erfolgte im Jahr 2007.
1. Ebene (untere Eingangsebene):
Ein einladender Vorraum bildet den ersten Zugang zur Wohnung. Von hier führt eine elegante Innentreppe in die darüberliegende Hauptebene.
2. Ebene (Hauptebene – auch direkt per Lift erreichbar):
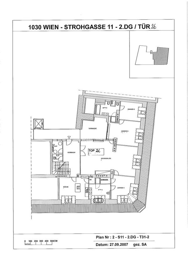
Diese Etage ist auch direkt über den Lift erschlossen und bietet den zentralen Wohnbereich der Wohnung:
-Wohnsalon (ca. 62 m2) mit offenem Kamin und direktem Zugang zur ca. 30 m2 großen westseitigen Terrasse
-Wohnküche (ca. 26 m2) mit großzügigem Essbereich und angrenzendem Abstellraum
-Schlafzimmer (ca. 25 m2) mit Zugang zu einem ca. 14 m2 großen Zimmer (ideal als Gästezimmer, Homeoffice oder begehbare Garderobe)
-En suite Badezimmer mit Fenster, Wanne, Dusche, Doppelwaschbecken, Toilette und Bidet
- Wirtschaftsraum
-Separate Gästetoilette
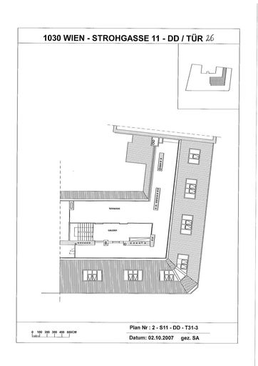
3. Ebene (Galeriegeschoss mit Dachterrasse):
Über eine innenliegende Treppe gelangt man auf die dritte Wohnebene:
Galerieraum (ca. 17 m2) – ideal als Arbeits- oder Lesezimmer
Direkter Ausgang auf die ca. 85 m2 große Dachterrasse mit atemberaubendem Blick über die Dächer Wiens
Ausstattung und Highlights
Diese Dachgeschosswohnung überzeugt nicht nur durch ihre durchdachte Raumaufteilung und beeindruckenden Außenflächen, sondern auch durch ihre hochwertige, zeitlose Ausstattung:
-Gekalkter Eichenparkettboden in den Wohnräumen
-Offener Kamin im Wohnsalon
-Moderne Einbauküche mit großzügigem Essbereich
-Badezimmer mit Wanne, Dusche, Doppelwaschbecken, Toilette, Bidet und
Fenster
En suite Bad mit Tageslicht
Separate Gästetoilette
Wirtschaftsraum mit Waschmaschinenanschluss
Hauseigene Tiefgarage mit direktem Zugang ins Haus (Stellplatz optional verfügbar)
Zugeordnetes Kellerabteil für zusätzlichen Stauraum
Lift mit direkter Zufahrt zur Wohnebene
Dachgeschossausbau im Jahr 2007
Botschaftsviertel im 3. Bezirk
Noch nichts gefunden? Wir informieren Sie über geeignete Immobilienangebote noch vor allen anderen.
Legen Sie jetzt Ihren individuellen Suchagenten unter folgendem Link an. Wir schicken Ihnen passende Immobilien exklusiv vorab zu.
Suchagent anlegen - https://luise-hardegg-brammertz.service.immo/registrieren/de
Der Immobilienmakler erklärt, dass er – entgegen dem in der Immobilienwirtschaft üblichen Geschäftsgebrauch des Doppelmaklers – einseitig nur für den Vermieter tätig ist.
Infrastruktur / Entfernungen
Gesundheit
Arzt <500m
Apotheke <500m
Klinik <500m
Krankenhaus <500m
Kinder & Schulen
Schule <500m
Kindergarten <500m
Universität <500m
Höhere Schule <500m
Nahversorgung
Supermarkt <500m
Bäckerei <500m
Einkaufszentrum <1.000m
Sonstige
Geldautomat <500m
Bank <500m
Post <500m
Polizei <500m
Verkehr
Bus <500m
U-Bahn <1.000m
Straßenbahn <500m
Bahnhof <500m
Autobahnanschluss <2.500m
Angaben Entfernung Luftlinie / Quelle: OpenStreetMap
Objektdaten
Ausstattung
- Personen Fahrstuhl
Zustand
- Zustand
- GEPFLEGT
- Baujahr
- 2007
- Alter
- NEUBAU
- HWB
- 65.8 kWh/m² pro Jahr
- Klasse HWB
- C
- fGEE
- 1.3
- Klasse fGEE
- C
Flächen
- Anzahl der Zimmer
- 4
- Anzahl der Badezimmer
- 2
- Anzahl der sep. WCs
- 3
- Anzahl der Terrassen
- 2
- Wohnfläche
- 224m²
- Terrassenfläche
- 2m²
Kosten
- Gesamtmiete Brutto
- € 4.316,22
- Miete
- € 3.380,63
- Betriebskosten
- € 597,53
- Umsatzsteuer
- € 338,06
- Monatl. Gesamtbelastung Brutto
- € 4.316,22
Verwaltung
- Verfügbar ab
- per sofort
- Mietdauer
- bis 5,0 Jahre
Wohnungen zum Mieten in Österreich
- Bezirk Gemeindebezirk Landstrasse
- Bezirk Gemeindebezirk Landstrasse
- Bezirk Gemeindebezirk Landstrasse
- Bezirk Gemeindebezirk Innere Stadt
- Bezirk Gemeindebezirk Innere Stadt
- Bezirk Gemeindebezirk Innere Stadt
- Bezirk Gemeindebezirk Leopoldstadt
- Bezirk Gemeindebezirk Leopoldstadt
- Bezirk Gemeindebezirk Leopoldstadt
- Bezirk Gemeindebezirk Wieden
Wohnungen zum Mieten in Österreich
Wohnungen zum Mieten in Österreich
Andere Besucher suchen nach...
- Grundstücke kaufen in 3400 Weidlingbach
- Wohnungen kaufen in 4663 Laakirchen
- Häuser in 7471 Rechnitz
- Wohnungen in 2410 Hainburg an der Donau
- Häuser kaufen in 2432 Schwadorf
- Wohnungen kaufen in 3002 Purkersdorf
- Häuser in 3150 Wilhelmsburg
- Wohnungen kaufen in 3470 Engelmannsbrunn
- Grundstücke kaufen im Bezirk Mattersburg
- Grundstücke kaufen im Bezirk Gmunden