360 TOUR // DACHGESCHOß TERRASSEN-WOHNUNG
-
01.04.2019
Beschreibung
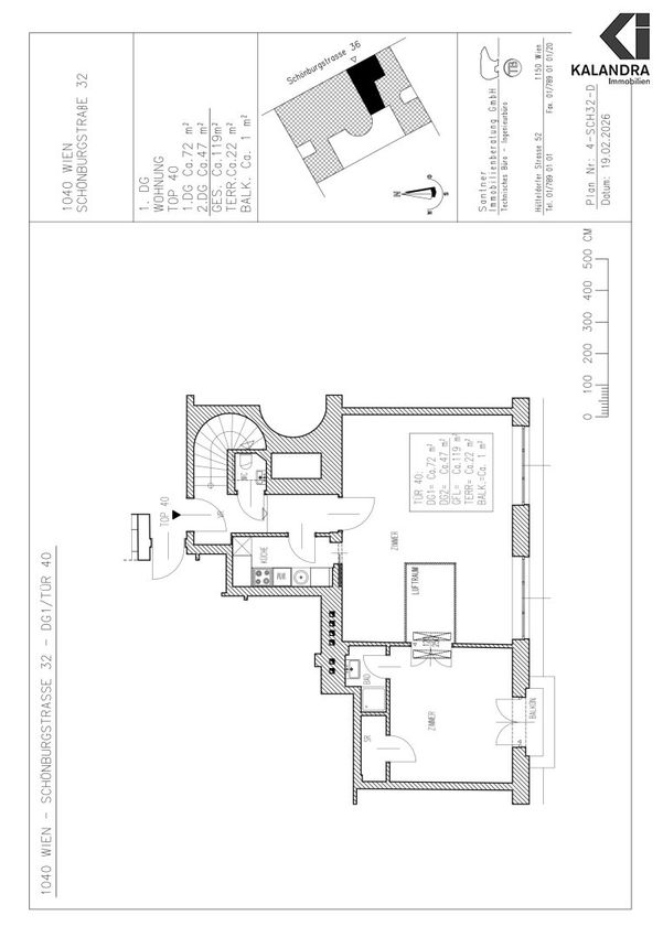
TERRASSENWOHNUNG nahe WIEDNER HAUPTSTRASSE Diese im letzten Liftstock = Dachgeschoß eines klassischen Jahrhundertwendehauses gelegene Mietwohnung bietet folgende Raumaufteilung: 1.Ebene: Vorraum, Wohn-& Eßzimmer mit direktem Ausgang zur innenhofseitigen Terrasse, teils offene Küche, zwei Schlafzimmer, Wannenbad mit WC. 2.Ebene: Galeriezimmer mit Ausgang auf die Dachterrasse Ausstattung: - durchgehend massiver Eichen-Parkettboden, - Einbauküche mit weißen Fronten und Einbaugeräten, - moderne Badezimmerausstattung (weiß/ grau verfliest) - Galerie mit Bullaugenfenster, - Hauszentralheizung (Fernwärme) Das monatliche Heizkosten-Akonto von zur Zeit € 179,06,- inkl. 20% USt. ist gesondert zu bezahlen. Angeboten wird ein unbefristetets Mietverhältnis mit einjährigem, mieterseitigen Kündigungsverzicht. ____________________ TERRACE APARTMENT next to WIEDNER HAUPTSTRASSE This...
TERRASSENWOHNUNG nahe WIEDNER HAUPTSTRASSE
Diese im letzten Liftstock = Dachgeschoß eines klassischen Jahrhundertwendehauses gelegene Mietwohnung bietet folgende
Raumaufteilung:
1.Ebene:
Vorraum, Wohn-& Eßzimmer mit direktem Ausgang zur innenhofseitigen Terrasse, teils offene Küche, zwei Schlafzimmer, Wannenbad mit WC.
2.Ebene:
Galeriezimmer mit Ausgang auf die Dachterrasse
Ausstattung:
- durchgehend massiver Eichen-Parkettboden,
- Einbauküche mit weißen Fronten und Einbaugeräten,
- moderne Badezimmerausstattung (weiß/ grau verfliest)
- Galerie mit Bullaugenfenster,
- Hauszentralheizung (Fernwärme)
Das monatliche Heizkosten-Akonto von zur Zeit € 179,06,- inkl. 20% USt. ist gesondert zu bezahlen.
Angeboten wird ein unbefristetets Mietverhältnis mit einjährigem, mieterseitigen Kündigungsverzicht.
____________________
TERRACE APARTMENT next to WIEDNER HAUPTSTRASSE
This apartment is located on the top floor with elevator of a turn of the century building, built out on 2 stories and offers the following
Layout:
1st level:
anteroom, living & dining room with direct exit to the terrace facing the inner courtyard, open kitchen, two bedrooms, bathroom with tub and toilet,
2nd level:
gallery room with exit to the roof terrace
Equipment:
- livingrooms with solid oak parquet flooring,
- fitted kitchen with white fronts and built-in appliances,
- modern bathroom equipment (white/ grey tiled)
- gallery,
- central house heating system (district heating)
The monthly heating costs prepayment of € 166,- inclusive 20% tax has to be paid additionally.
An unlimited contract with a one-year, tenant-side waiver of termination is been offered.
Der Immobilienmakler erklärt, dass er – entgegen dem in der Immobilienwirtschaft üblichen Geschäftsgebrauch des Doppelmaklers – einseitig nur für den Vermieter tätig ist.
Infrastruktur / Entfernungen
Gesundheit
Arzt <500m
Apotheke <500m
Klinik <1.000m
Krankenhaus <1.000m
Kinder & Schulen
Schule <500m
Kindergarten <500m
Universität <500m
Höhere Schule <1.000m
Nahversorgung
Supermarkt <500m
Bäckerei <500m
Einkaufszentrum <500m
Sonstige
Geldautomat <500m
Bank <500m
Post <500m
Polizei <1.000m
Verkehr
Bus <500m
U-Bahn <500m
Straßenbahn <500m
Bahnhof <500m
Autobahnanschluss <3.000m
Angaben Entfernung Luftlinie / Quelle: OpenStreetMap
Objektdaten
Ausstattung
- Zentralheizung
- Fern Befeuerung
- Personen Fahrstuhl
Dokumente / Links
Zustand
- Zustand
- NEUWERTIG
- Baujahr
- 1900
- HWB
- 77 kWh/m² pro Jahr
- Klasse HWB
- C
Flächen
- Anzahl der Zimmer
- 4
- Anzahl der Badezimmer
- 2
- Anzahl der sep. WCs
- 2
- Anzahl der Terrassen
- 1
- Wohnfläche
- 120m²
- Terrassenfläche
- 1m²
Kosten
- Gesamtmiete Brutto
- € 2.395,00
- Kaution
- € 6.500,00
- Miete
- € 1.903,89
- Betriebskosten
- € 273,38
- Umsatzsteuer
- € 217,73
- Monatl. Gesamtbelastung Brutto
- € 2.395,00
Verwaltung
- Verfügbar ab
- 01.04.2019
Wohnungen zum Mieten in Österreich
- Bezirk Gemeindebezirk Wieden
- Bezirk Gemeindebezirk Wieden
- Bezirk Gemeindebezirk Wieden
- Bezirk Gemeindebezirk Margareten
- Bezirk Gemeindebezirk Margareten
- Bezirk Gemeindebezirk Margareten
- Bezirk Gemeindebezirk Mariahilf
- Bezirk Gemeindebezirk Mariahilf
- Bezirk Gemeindebezirk Mariahilf
- Bezirk Gemeindebezirk Innere Stadt
Wohnungen zum Mieten in Österreich
Wohnungen zum Mieten in Österreich
Andere Besucher suchen nach...
- Grundstücke kaufen in 3400 Weidlingbach
- Wohnungen kaufen in 4663 Laakirchen
- Häuser in 7471 Rechnitz
- Wohnungen in 2410 Hainburg an der Donau
- Häuser kaufen in 2432 Schwadorf
- Wohnungen kaufen in 3002 Purkersdorf
- Häuser in 3150 Wilhelmsburg
- Wohnungen kaufen in 3470 Engelmannsbrunn
- Grundstücke kaufen im Bezirk Mattersburg
- Grundstücke kaufen im Bezirk Gmunden