Gumpendorfer Straße: 2-Zimmer-Wohnung mit abgegrenzter Küche
-
01.04.2026
Beschreibung
2-Zimmer-Wohnung in 1060 Wien ab April 2026!
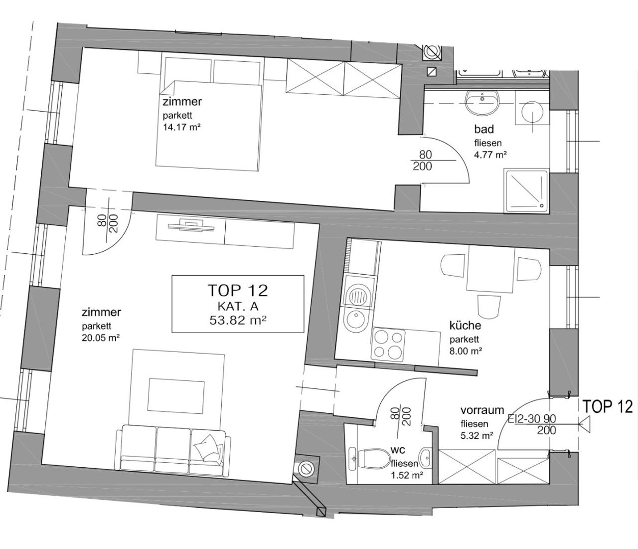
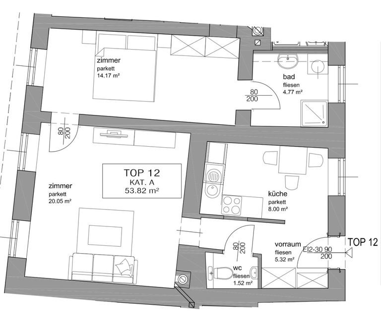
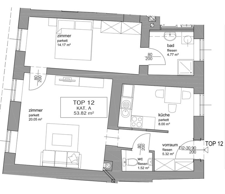
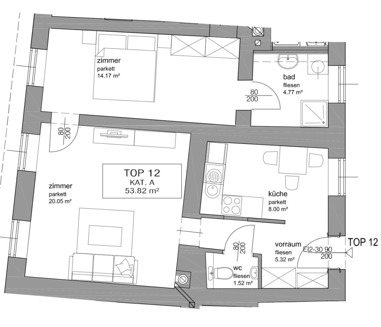
Aufteilung:
Wohnzimmer, abgegrenzte Einbauküche, ein separates (Schlaf)zimmer, Badezimmer; WC im Eingangsbereich
Beschreibung:
Diese Wohnung befindet sich im 6. Wiener Gemeindebezirk und liegt im ersten OG des Hauses.
Beim Betreten der Wohnung gelangen Sie in einen gemütlichen Vorraum mit ausreichend Platz für eine Garderobe. Rechterhand befindet sich die abgegrenzte Küche inklusive ausreichend Platz für einen Essbereich mit Fenster. Ebenfalls befindet sich hier das separat liegende WC!
Geradeaus gelangen Sie in das ca. 20 m² große Wohnzimmer. Von hier aus erreichen Sie das...
2-Zimmer-Wohnung in 1060 Wien ab April 2026!
Aufteilung:
Wohnzimmer, abgegrenzte Einbauküche, ein separates (Schlaf)zimmer, Badezimmer; WC im Eingangsbereich
Beschreibung:
Diese Wohnung befindet sich im 6. Wiener Gemeindebezirk und liegt im ersten OG des Hauses.
Beim Betreten der Wohnung gelangen Sie in einen gemütlichen Vorraum mit ausreichend Platz für eine Garderobe. Rechterhand befindet sich die abgegrenzte Küche inklusive ausreichend Platz für einen Essbereich mit Fenster. Ebenfalls befindet sich hier das separat liegende WC!
Geradeaus gelangen Sie in das ca. 20 m² große Wohnzimmer. Von hier aus erreichen Sie das separat begehbare Schlafzimmer mit einer Größe von etwa 14 m². Das Badezimmer ist mit einem Waschbecken, einer Dusche, sowie einem Waschmaschinenanschluss und einem Fenster ausgestattet. Das Badezimmer ist direkt an das Schlafzimmer angeschlossen und ausschließlich über dieses erreichbar (nicht zentral begehbar).
Zusätzlich steht den Bewohner*innen eine kleine Freifläche im Innenhof zur gemeinschaftlichen Nutzung zur Verfügung und bietet eine angenehme Grün- und Erholungsmöglichkeit. Ein eigenes Kellerabteil ist nicht vorhanden, es gibt jedoch einen Gemeinschaftskeller.
Geheizt wird mittels einer Fernwärme-Zentralheizung im Haus. Die Heiz- und Warmwasserkosten sind im Mietentgelt bereits inklusive!:
Ein Aufzug, sowie der Innenhof (Garten) der Anlage sind zur Mitbenützung gestattet.
Hinweis:
Die abgebildeten Fotos sind (noch) keine Originalbilder. Die Aufnahmen stammen von einer ähnlichen Wohnung aus dem selben Geböude! Dementsprechend sind diese gut als Vergleich heranzuziehen! Aufbau gemäß dem Grundrissplan.
Die Wohnung wird UNMÖBLIERT übergeben (ausgenommen Küche und Badezimmerausstattung)
Lage:
Die Wohnung befindet sich in ausgezeichneter, zentraler Lage und bietet alles, was urbanes Wohnen ausmacht. Cafés, Gasthäuser, Boutiquen, kleine Geschäfte, Supermärkte sowie Lokale des täglichen Bedarfs sind bequem fußläufig erreichbar.
Eine sehr gute Anbindung an die öffentlichen Verkehrsmittel ist gegeben: Die U3 (Zieglergasse/Neubaugasse) sowie die U4 (Pilgramgasse) sind in wenigen Gehminuten erreichbar. Zusätzlich sorgen die Buslinien 57A, 13A und 14A für eine rasche Verbindung in die Innenstadt und andere Wiener Bezirke.
Der Naschmarkt sowie die Mariahilfer Straße befinden sich ebenfalls in unmittelbarer Nähe und unterstreichen die attraktive Lage dieser Wohnung.
Konditionen:
Vermietet wird ab voraussichtlich April 2026; auf 5 Jahre befristet
Kündigungsverzicht: 1 Jahr; Kündigungsfrist: 3 Monate;
Gesamtmiete (inkl. BK, Heizung/Warmwasser, sowie Liftkosten und Steuern): € 1.168,45
Kaution: € 3.500, -
Strom wird auf den/die Mieter*in umgemeldet.
TV und Internet sind nach Bedarf selbst an- und wieder abzumelden.
Ein Abschluss einer Haushaltsversicherung wird vor dem Einzug empfohlen.
Kontakt
Bitte beachten Sie, dass wir aufgrund der Nachweispflicht gegenüber dem Eigentümer nur Anfragen mit vollständiger Angabe der Anschrift bearbeiten können.
Wir senden Ihnen gerne weitere und detaillierte Beschreibungen sowie Besichtigungstermine zu, sobald wir Ihre Anfrage erhalten haben.
Wir bitten Sie daher um eine E-Mail-Anfrage an: stifter@pr-immobilien.at
Noch nichts gefunden? Wir informieren Sie über geeignete Immobilienangebote noch vor allen anderen.
Legen Sie jetzt Ihren individuellen Suchagenten unter folgendem Link an. Wir schicken Ihnen passende Immobilien exklusiv vorab zu.
Suchagent anlegen - https://pr-immobilien-real-estate.service.immo/registrieren/de
Der Immobilienmakler erklärt, dass er – entgegen dem in der Immobilienwirtschaft üblichen Geschäftsgebrauch des Doppelmaklers – einseitig nur für den Vermieter tätig ist.
Infrastruktur / Entfernungen
Gesundheit
Arzt <250m
Apotheke <250m
Klinik <250m
Krankenhaus <500m
Kinder & Schulen
Schule <250m
Kindergarten <250m
Universität <1.000m
Höhere Schule <750m
Nahversorgung
Supermarkt <250m
Bäckerei <250m
Einkaufszentrum <500m
Sonstige
Geldautomat <250m
Bank <250m
Post <250m
Polizei <500m
Verkehr
Bus <250m
U-Bahn <500m
Straßenbahn <750m
Bahnhof <500m
Autobahnanschluss <4.250m
Angaben Entfernung Luftlinie / Quelle: OpenStreetMap
Objektdaten
Ausstattung
- Kabel/SAT-TV
- DVBT
- UMTS Empfang
- Seniorengerecht
- Bad mit Dusche
- Bad mit Fenster
- Einbauküche
- Fliesenboden
- Parkettboden
- Fernwärme Heizung
Zustand
- Alter
- ALTBAU
- HWB
- 82.4 kWh/m² pro Jahr
- Klasse HWB
- C
- fGEE
- 1.49
- Klasse fGEE
- C
Flächen
- Anzahl der Zimmer
- 2
- Anzahl der Badezimmer
- 1
- Anzahl der sep. WCs
- 1
- Nutzfläche
- 53m²
Kosten
- Gesamtmiete Brutto
- € 1.045,54
- Kaution
- € 3.500,00
- Miete
- € 820,00
- Betriebskosten
- € 114,00
- Heizkosten
- € 104,27
- Sonstige Kosten
- € 16,49
- Umsatzsteuer
- € 113,69
- Monatl. Gesamtbelastung Brutto
- € 1.168,45
Verwaltung
- Verfügbar ab
- 01.04.2026, ab 01. 04. 2026
- Mietdauer
- bis 5,0 Jahre
Wohnungen zum Mieten im Umkreis von Gemeindebezirk Mariahilf
- Bezirk Gemeindebezirk Mariahilf
- Bezirk Gemeindebezirk Mariahilf
- Bezirk Gemeindebezirk Mariahilf
- Bezirk Gemeindebezirk Neubau
- Bezirk Gemeindebezirk Neubau
- Bezirk Gemeindebezirk Neubau
- Bezirk Gemeindebezirk Margareten
- Bezirk Gemeindebezirk Margareten
- Bezirk Gemeindebezirk Margareten
- Bezirk Gemeindebezirk Wieden
Wohnungen zum Mieten im Umkreis von Gemeindebezirk Mariahilf
Wohnungen zum Mieten in Österreich
Andere Besucher suchen nach...
- Grundstücke kaufen in 3400 Weidlingbach
- Wohnungen kaufen in 4663 Laakirchen
- Häuser in 7471 Rechnitz
- Wohnungen in 2410 Hainburg an der Donau
- Häuser kaufen in 2432 Schwadorf
- Wohnungen kaufen in 3002 Purkersdorf
- Häuser in 3150 Wilhelmsburg
- Wohnungen kaufen in 3470 Engelmannsbrunn
- Grundstücke kaufen im Bezirk Mattersburg
- Grundstücke kaufen im Bezirk Gmunden