360 TOUR // NEUBAUMIETE NAHE AMERIKANISCHE BOTSCHAFT
Beschreibung
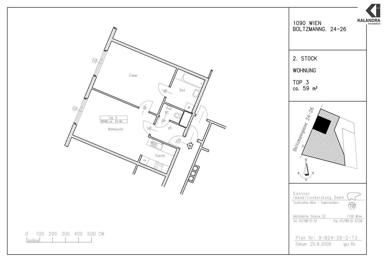
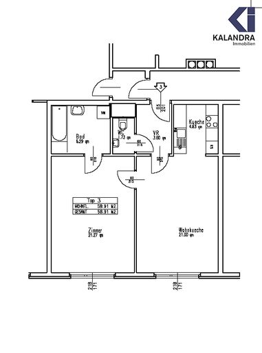
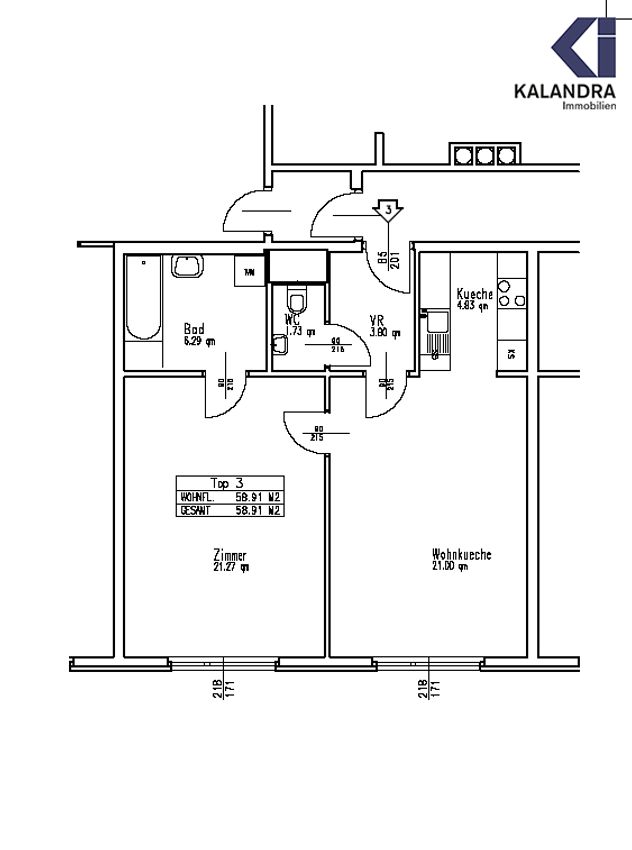
NEUBAUWOHNUNG nahe AMERIKANISCHER BOTSCHAFT Diese im 2. Liftstock eines modernen Neubaus gelegene Wohnung gliedert sich wie folgt: Raumaufteilung: Vorraum, Wohnzimmer( 21m² ) mit halb-offener Küche (5m²), Schlafzimmer (21m²) mit anschließendem Wannenbad (6m²), separates WC. Ausstattung: - in den Wohnräumen durchgehend Eichenparkettboden, - Naßräume weiß/ grau verfliest, - komplette Einbauküche mit E-Herd/ Cerankochfeld, Kühl-/ Gefrierkombination, Geschirrspüler und Mikrowelle. Die Anmietung von Garagenplätzen im Haus ist um €- monatlich plus 20% USt. möglich. Die Heiz- & Warmwasserkosten werden gesondert vorgeschrieben - monatliches Akonto von € 42,- brutto (eigener Vertrag mit Fernwärme Wien).118
Eine Besichtigung der Wohnung jederzeit möglich,
NEUBAUWOHNUNG nahe AMERIKANISCHER BOTSCHAFT Eine Besichtigung der Wohnung jederzeit möglich, Bitte vorab der Besichtigung um die Selbstauskunft. Der Eigentümer wünscht ein Nettoeinkommen der dreifachen Miete Der Immobilienmakler erklärt, dass er – entgegen dem in der Immobilienwirtschaft üblichen Geschäftsgebrauch des Doppelmaklers – einseitig nur für den Vermieter tätig ist. Infrastruktur / Entfernungen Gesundheit
Diese im 2. Liftstock eines modernen Neubaus gelegene Wohnung gliedert sich wie folgt:
Raumaufteilung:
Vorraum, Wohnzimmer( 21m² ) mit halb-offener Küche (5m²), Schlafzimmer (21m²) mit anschließendem Wannenbad (6m²), separates WC.
Ausstattung:
- in den Wohnräumen durchgehend Eichenparkettboden,
- Naßräume weiß/ grau verfliest,
- komplette Einbauküche mit E-Herd/ Cerankochfeld, Kühl-/ Gefrierkombination,
Geschirrspüler und Mikrowelle.
Die Anmietung von Garagenplätzen im Haus ist um €- monatlich plus 20% USt. möglich.
Die Heiz- & Warmwasserkosten werden gesondert vorgeschrieben - monatliches Akonto von € 42,- brutto (eigener Vertrag mit Fernwärme Wien).118
Arzt <500m
Apotheke <500m
Klinik <500m
Krankenhaus <1.000m
Kinder & Schulen
Schule <500m
Kindergarten <500m
Universität <500m
Höhere Schule <500m
Nahversorgung
Supermarkt <500m
Bäckerei <500m
Einkaufszentrum <2.000m
Sonstige
Geldautomat <500m
Bank <500m
Post <500m
Polizei <500m
Verkehr
Bus <500m
U-Bahn <500m
Straßenbahn <500m
Bahnhof <500m
Autobahnanschluss <2.000m
Angaben Entfernung Luftlinie / Quelle: OpenStreetMap
Objektdaten
Ausstattung
- Zentralheizung
- Fern Befeuerung
- Personen Fahrstuhl
Dokumente / Links
Zustand
- Zustand
- NEUWERTIG
- Baujahr
- 2004
Flächen
- Anzahl der Zimmer
- 2
- Anzahl der Badezimmer
- 1
- Anzahl der sep. WCs
- 1
- Wohnfläche
- 59m²
Kosten
- Gesamtmiete Brutto
- € 995,01
- Kaution
- € 3,00
- Miete
- € 801,45
- Betriebskosten
- € 103,10
- Umsatzsteuer
- € 90,46
- Monatl. Gesamtbelastung Brutto
- € 995,01
Verwaltung
- Mietdauer
- bis 5,0 Jahre
Wohnungen zum Mieten in Österreich
- Bezirk Gemeindebezirk Alsergrund
- Bezirk Gemeindebezirk Alsergrund
- Bezirk Gemeindebezirk Alsergrund
- Bezirk Gemeindebezirk Josefstadt
- Bezirk Gemeindebezirk Josefstadt
- Bezirk Gemeindebezirk Josefstadt
- Bezirk Gemeindebezirk Innere Stadt
- Bezirk Gemeindebezirk Innere Stadt
- Bezirk Gemeindebezirk Innere Stadt
- Bezirk Gemeindebezirk Neubau
Wohnungen zum Mieten in Österreich
Wohnungen zum Mieten in Österreich
Andere Besucher suchen nach...
- Grundstücke kaufen in 3400 Weidlingbach
- Wohnungen kaufen in 4663 Laakirchen
- Häuser in 7471 Rechnitz
- Wohnungen in 2410 Hainburg an der Donau
- Häuser kaufen in 2432 Schwadorf
- Wohnungen kaufen in 3002 Purkersdorf
- Häuser in 3150 Wilhelmsburg
- Wohnungen kaufen in 3470 Engelmannsbrunn
- Grundstücke kaufen im Bezirk Mattersburg
- Grundstücke kaufen im Bezirk Gmunden