++VIOLAA++ Hochwertiger 2-Zimmer Neubau-ZWEITBEZUG mit Terrasse und Garten! ***PROVISIONSFREI***
-
2021
Beschreibung
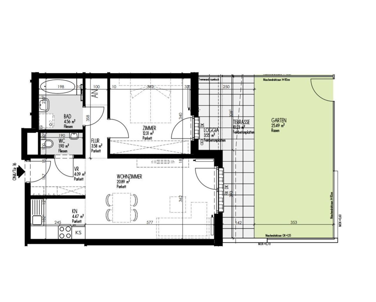
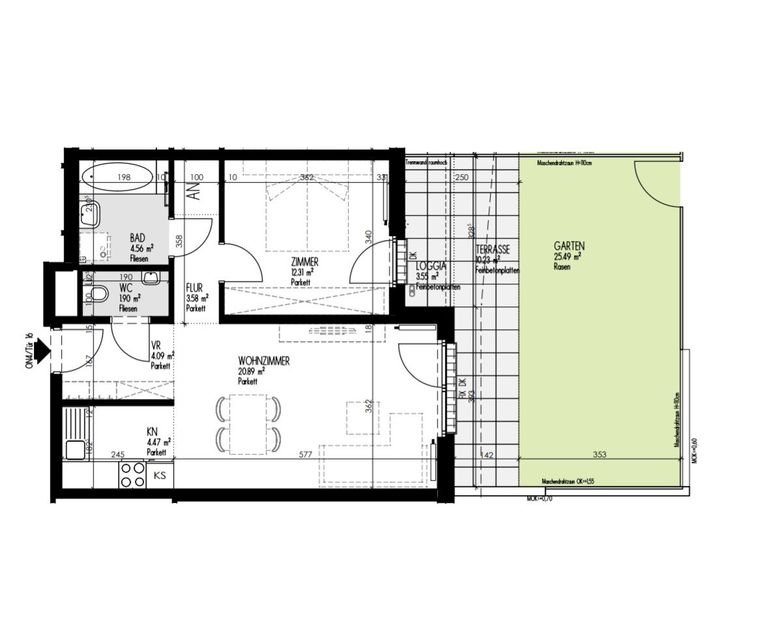
Zur befristeten Vermietung gelangt diese toll aufgeteilte und hochwertig ausgestattete ca. 52 m² große Neubauwohnung mit Terrasse und Garten im Erdgeschoss eines Neubaus in toller Lage des 10. Wiener Gemeindebezirk, Am Laaer Berg in unmittelbarer Umgebung zu Wald & Wiesen gelegen.
Raumaufteilung: STIEGE A TÜR 16
- Vorraum
- getrenntes WC
- Wohnzimmer mit Einbauküche
- Zimmer
- Badezimmer
- Terrasse
- Garten
(siehe Plan und Fotos der Nachbarwohnung) Zustand/Ausstattung:
Bei allen Wohnungen des Projekts und bei dem gesamten Gebäude handelt es sich um einen hochwertigen Zweitbezug! Alle Wohnungen zeichnen sich durch eine sehr gute Ausstattung aus:
- Wohnhaus...
Zur befristeten Vermietung gelangt diese toll aufgeteilte und hochwertig ausgestattete ca. 52 m² große Neubauwohnung mit Terrasse und Garten im Erdgeschoss eines Neubaus in toller Lage des 10. Wiener Gemeindebezirk, Am Laaer Berg in unmittelbarer Umgebung zu Wald & Wiesen gelegen.
Raumaufteilung: STIEGE A TÜR 16
- Vorraum
- getrenntes WC
- Wohnzimmer mit Einbauküche
- Zimmer
- Badezimmer
- Terrasse
- Garten
(siehe Plan und Fotos der Nachbarwohnung)
Zustand/Ausstattung:
Bei allen Wohnungen des Projekts und bei dem gesamten Gebäude handelt es sich um einen hochwertigen Zweitbezug! Alle Wohnungen zeichnen sich durch eine sehr gute Ausstattung aus:
- Wohnhaus im Niedrigstenergiestandard
- Vollausgestattete, moderne Küchen (siehe Fotodokumentation)
- Elektrische Jalousien
- Jede Wohnung mit Kellerabteil
- Freiflächen mit Wasser- & Stromanschluss & Licht
- Waschküche mit Waschmaschine und Trockner für Bewohner
- 2 Gemeinschaftsräume
- Kinderwagen- und Fahrradraum
- Großzügige Kinder- und Jugendspielplatz auf Nachbarliegenschaft
- Kleinkinderspielplatz und Sitzgelegenheit im Innenhof
- Hochwertige Sanitärausstattung in Wohnung
- Handwaschbecken bei WCs
- Handtuchheizkörper im Bad
- Einbruchhemmende Wohnungseingangstüren
- Eichenparkett
- Großformatige Fliesen (30/60)
- SAT-Gemeinschaftsanlage
- Rauchmelder in jedem Aufenthaltsraum
Gebäude:
Das Wohnhaus gliedert sich in 3 Bauteile (Stiege A, B und C) zu je 7 Stockwerken. Insgesamt stehen 167 freifinanzierte Wohnungen zur provisionsfreien Vermietung zur Verfügung.
Darüber hinaus verfügt das Objekt über 67 Tiefgaragenstellplätze sowie hochwertige Außenanlagen (Fahrradabstellplätze, begrünter Innenhof, befestigte Flächen, Kinderspielbereiche, etc.)
Lage/öffentliche Anbindung:
U1 Station "Altes Landgut", ausgezeichnete Nord-Südverbindung durch Wien
Wiener Innenstadt (Karlsplatz/Stephansplatz) kann somit binnen 10 Minuten erreicht werden!
Bus 15A (Bahnhof Meidling - Enkplatz/Grillgasse), Bus 68A (Reumannplatz - Laaer B. Kurpark), Bus 68B (Reumannplatz - Oberlaa
Auch die Anbindung für Autofahrer kann als sehr gut beschrieben werden. Binnen wenigen Minuten gelangt man über den Verteilerkreis Favoriten auf die Südosttangente A23.
- Wohnen im Grünen
Nähe Parkanlage Löwygrube sowie Erholungsgebiet Laaer Wald. Diese Gebiete sind besonders beliebt für die morgentlichen/abendtlichen Joggingrunden, gemütliche Spaziergänge am Nachmittag oder Treffen mit Freunden am Wochenende.
- Infrastruktur
zahlreiche Geschäfte des täglichen Bedarfs (Lebensmittel, Restaurants, Bekleidungsgeschäfte, Apotheken, Banken) sowie auch diverse Facharztpraxen binnen weniger Minuten zu erreichen.
Auch Kindergärten, Volk- und Neue Mittelschulen, Gymnasien und Universitäten sind mit den oben genannten öffentlichen Verkehrsmitteln bestens angebunden. Vor allem die FH Campus Wien ist in der Nähe gelegen (weniger als 15 Minuten zu Fuß erreichbar).
Preis:
Die monatliche Gesamtmiete (inkl. Betriebskosten und Ust.) beträgt 1.048,70 €
Die monatlichen Energiekosten (Strom u. Fernwärme) sind nicht in der oben genannten Miete enthalten und sich direkt vom Mieter zu zahlen.
Insgesamt verfügt das Projekt VIOLAA über 67 Tiefgaragen Stellplätze welche für € 120,- / Monat je Stellplatz angemietet werden können.
Die Vermietung erfolgt befristet auf 5 Jahre.
Die Kaution beträgt 3.150 €
Provisionsfrei!
Sollten Sie Fragen haben oder einen persönlichen Gesprächstermin wünschen, zögern Sie bitte nicht mich zu kontaktieren.
Zur Vereinbarung eines Besichtigungstermins lassen Sie uns bitte jedenfalls eine E-Mailanfrage zukommen!
Der IMMY ist die renommierteste Auszeichnung für Wiener Makler- und Verwalterbetriebe im Bereich Wohnimmobilien. Wir sind stolz den goldenen IMMY für das Jahr 2019 gewonnen zu haben!
Vielen Dank vor allem an unsere Kunden! Unser Unternehmen wurde auch zum Besten Start Up und in den Jahren 2015, 2018, 2019 und 2020 als Qualitätsmakler ausgezeichnet!
Bitte achten Sie darauf, dass Sie diese Immobilie, nach Ihrer Anfrage bei Adonia Immobilien, nicht auch bei einem anderen Immobilienmaklerbüro anfragen! Vielen Dank!
Alle hier veröffentlichen Informationen basieren auf den uns von dem Abgeber/ der Abgeberin zur Verfügung gestellten Informationen und wurden nicht selbst erhoben.
Unsere Allgemeinen Geschäftsbedingungen können Sie sowohl in dem Ihnen zugesandten Expose einsehen als auch auf unserer Homepage. Wir weisen ausdrücklich darauf hin, dass diese AGBs Vertragsinhalt werden.
Der Schutz von personenbezogenen Daten ist uns wichtig und auch gesetzlich gefordert. Die Verarbeitung Ihrer personenbezogenen Daten erfolgt nach den datenschutzrechtlichen Bestimmungen. Auf unserer Homepage (unter Datenschutzinformation) finden Sie eine Übersicht die Sie über die wichtigsten Aspekte der Verarbeitung personenbezogener Daten informieren soll.
Wir weisen darauf hin, dass zwischen dem Vermittler und dem zu vermittelnden Dritten ein familiäres oder wirtschaftliches Naheverhältnis besteht.
Der Immobilienmakler erklärt, dass er – entgegen dem in der Immobilienwirtschaft üblichen Geschäftsgebrauch des Doppelmaklers – einseitig nur für den Vermieter tätig ist.
Infrastruktur / Entfernungen
Gesundheit
Arzt <725m
Apotheke <650m
Klinik <1.600m
Krankenhaus <3.325m
Kinder & Schulen
Schule <400m
Kindergarten <575m
Universität <925m
Höhere Schule <3.075m
Nahversorgung
Supermarkt <350m
Bäckerei <775m
Einkaufszentrum <1.200m
Sonstige
Geldautomat <1.175m
Bank <1.175m
Post <1.200m
Polizei <750m
Verkehr
Bus <200m
U-Bahn <675m
Straßenbahn <750m
Bahnhof <650m
Autobahnanschluss <600m
Angaben Entfernung Luftlinie / Quelle: OpenStreetMap
Objektdaten
Ausstattung
- Barrierefrei
- Wasch-/Trockenraum
- Fahrradraum
- Einbauküche
- Fliesenboden
- Parkettboden
- Personen Fahrstuhl
- Ausrichtung Balkon/Terrasse - Ost
Zustand
- Baujahr
- 2021
- Alter
- NEUBAU
- HWB
- 23 kWh/m² pro Jahr
- fGEE
- 0.89
Flächen
- Anzahl der Zimmer
- 2
- Anzahl der Badezimmer
- 1
- Anzahl der sep. WCs
- 1
- Anzahl der Terrassen
- 1
- Wohnfläche
- 52m²
- Gartenfläche
- 25m²
- Terrassenfläche
- 1m²
Kosten
- Gesamtmiete Brutto
- € 1.048,70
- Miete
- € 953,36
- Umsatzsteuer
- € 95,34
- Monatl. Gesamtbelastung Brutto
- € 1.048,70
Verwaltung
- Mietdauer
- bis 5,0 Jahre
Wohnungen zum Mieten in Österreich
- Bezirk Gemeindebezirk Favoriten
- Bezirk Gemeindebezirk Favoriten
- Bezirk Gemeindebezirk Favoriten
- Bezirk Gemeindebezirk Simmering
- Bezirk Gemeindebezirk Simmering
- Bezirk Gemeindebezirk Simmering
- Bezirk Gemeindebezirk Wieden
- Bezirk Gemeindebezirk Wieden
- Bezirk Gemeindebezirk Wieden
- Bezirk Gemeindebezirk Margareten
Wohnungen zum Mieten in Österreich
Wohnungen zum Mieten in Österreich
Andere Besucher suchen nach...
- Grundstücke kaufen in 3400 Weidlingbach
- Wohnungen kaufen in 4663 Laakirchen
- Häuser in 7471 Rechnitz
- Wohnungen in 2410 Hainburg an der Donau
- Häuser kaufen in 2432 Schwadorf
- Wohnungen kaufen in 3002 Purkersdorf
- Häuser in 3150 Wilhelmsburg
- Wohnungen kaufen in 3470 Engelmannsbrunn
- Grundstücke kaufen im Bezirk Mattersburg
- Grundstücke kaufen im Bezirk Gmunden