Sonnige Dachgeschosswohnung in sehr guter Lage: 2 Zimmer (dabei ein großes Wohnzimmer mit vielen Fenstern) + Küche, Nähe U1-Keplerplatz und Waldmüllerpark!
-
sofort
Beschreibung
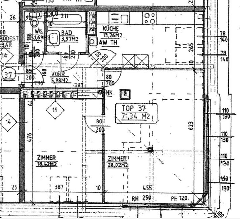
In einem gepflegten Altbau im Dachgeschoßausbau in der Nähe der U1-Keplerplatz und dem Waldmüllerpark liegt die sonnige Wohnung im 4. Stock. Lift vorhanden. Es gibt 2 Zimmer. Eines davon ist ein großer Wohnraum mit zahlreichen Fenstern von zwei Himmelsrichtungen und Blick über die Stadt. Weiters gibt es eine Küche (Küchenzeile mit allen wichtigen Geräten und Waschmaschine), ein Badezimmer, ein WC und einen Vorraum. Parkettböden und Fliesen. Gasetagenheizung.
Die Wohnung wird auf 5 Jahre befristet vermietet. Aller Voraussicht nach Verlängerungsmöglichkeit. Gepflegtes Haus: HWB (kWh/m²a): 104,5. Klasse D.
Toplage: nur etwa 10 min. zu Fuß zur U1-Keplerplatz. Nahe Linien 6, 1 und...
In einem gepflegten Altbau im Dachgeschoßausbau in der Nähe der U1-Keplerplatz und dem Waldmüllerpark liegt die sonnige Wohnung im 4. Stock. Lift vorhanden.
Es gibt 2 Zimmer. Eines davon ist ein großer Wohnraum mit zahlreichen Fenstern von zwei Himmelsrichtungen und Blick über die Stadt. Weiters gibt es eine Küche (Küchenzeile mit allen wichtigen Geräten und Waschmaschine), ein Badezimmer, ein WC und einen Vorraum.
Parkettböden und Fliesen.
Gasetagenheizung.
Die Wohnung wird auf 5 Jahre befristet vermietet. Aller Voraussicht nach Verlängerungsmöglichkeit.
Gepflegtes Haus: HWB (kWh/m²a): 104,5. Klasse D.
Toplage: nur etwa 10 min. zu Fuß zur U1-Keplerplatz. Nahe Linien 6, 1 und 14A. Ca. 2 min. zum Waldmüllerpark.
Die Fußgängerzone Favoriten, mit besten Einkaufsmöglichkeiten, ist rasch zu erreichen.
Eine helle, hübsche Wohnung, die gut geeignet ist für eine Familie oder für die Kombination Wohnen und Arbeiten.
Wenn Sie Fragen haben oder wegen eines Besichtigungstermins senden Sie bitte eine Mail-Anfrage oder wenden sich telefonisch an Frau Mag. Uta Ribarits: Tel: 0699/19460464 oder an Herrn Gregor Lesniewski: Tel: 0699/11306746.
Wir weisen darauf hin, dass zwischen dem Vermittler und dem zu vermittelnden Dritten ein familiäres oder wirtschaftliches Naheverhältnis besteht.
Der Immobilienmakler erklärt, dass er – entgegen dem in der Immobilienwirtschaft üblichen Geschäftsgebrauch des Doppelmaklers – einseitig nur für den Vermieter tätig ist.
Objektdaten
Ausstattung
- Bad mit Badewanne
- Einbauküche
- Fliesenboden
- Parkettboden
- Etage Heizung
- Befeuerung mit Gas
- Personen Fahrstuhl
Zustand
- HWB
- 104.5 kWh/m² pro Jahr
- Klasse HWB
- D
- fGEE
- 1.92
- Klasse fGEE
- B
Flächen
- Anzahl der Zimmer
- 2
- Anzahl der Badezimmer
- 1
- Anzahl der sep. WCs
- 1
- Wohnfläche
- 71m²
Kosten
- Gesamtmiete Brutto
- € 1.067,17
- Kaution
- € 3.201,51
- Miete
- € 760,00
- Betriebskosten
- € 187,93
- Sonstige Kosten
- € 22,23
- Umsatzsteuer
- € 97,01
- Monatl. Gesamtbelastung Brutto
- € 1.067,17
Verwaltung
- Verfügbar ab
- sofort
- Mietdauer
- bis 5,0 Jahre
Wohnungen zum Mieten in Österreich
- Bezirk Gemeindebezirk Favoriten
- Bezirk Gemeindebezirk Favoriten
- Bezirk Gemeindebezirk Favoriten
- Bezirk Gemeindebezirk Simmering
- Bezirk Gemeindebezirk Simmering
- Bezirk Gemeindebezirk Simmering
- Bezirk Gemeindebezirk Margareten
- Bezirk Gemeindebezirk Margareten
- Bezirk Gemeindebezirk Margareten
- Bezirk Gemeindebezirk Wieden
Wohnungen zum Mieten in Österreich
Wohnungen zum Mieten in Österreich
Andere Besucher suchen nach...
- Grundstücke kaufen in 3400 Weidlingbach
- Wohnungen kaufen in 4663 Laakirchen
- Häuser in 7471 Rechnitz
- Wohnungen in 2410 Hainburg an der Donau
- Häuser kaufen in 2432 Schwadorf
- Wohnungen kaufen in 3002 Purkersdorf
- Häuser in 3150 Wilhelmsburg
- Wohnungen kaufen in 3470 Engelmannsbrunn
- Grundstücke kaufen im Bezirk Mattersburg
- Grundstücke kaufen im Bezirk Gmunden