4-Zimmer-GARTEN-Wohnung mit fast 100m² Außenfläche in unmittelbarer U3-Nähe
€ 2.349 / Monat
€ 22 / m²
1110 Wien
-
01.07.2026
Beschreibung
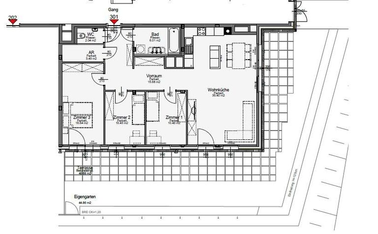
Nussbaumallee!!! 4 - Zimmer - Gartenwohnung! 104,12 m² Wohnfläche zuzüglich mit 93,74m² Außenfläche (Garten und Terrasse) UNMITTELBARE U3-Nähe Gasometer (3 min). ZENTRAL BEGEHBAR! Süd-West-Ausrichtung! Bitte beachten Sie, dass die Fotos in einer ähnlichen Wohnung mit exakt gleicher Ausstattung aufgenommen wurden, da die Top 301 noch bis 30.6.2026 bewohnt ist. RAUMAUFTEILUNG IN STICHWORTEN • Vorraum • Wohnzimmer mit offener Küche • Zimmer • Zimmer • Zimmer • Bad mit Badewanne, Waschbecken, WM-Anschluss • WC mit Waschbecken • Abstellraum • Garten und Terrasse südwestseitig • Kellerabteil HIGHLIGHTS UND AUSSTATTUNGSMERKMALE • hell und modern (Baujahr 2015) • süd-west-Ausrichtung • barrierefrei • tolle Raumaufteilung,...
Nussbaumallee!!! 4 - Zimmer - Gartenwohnung!
104,12 m² Wohnfläche zuzüglich mit 93,74m² Außenfläche (Garten und Terrasse)
UNMITTELBARE U3-Nähe Gasometer (3 min).
ZENTRAL BEGEHBAR! Süd-West-Ausrichtung!
Bitte beachten Sie, dass die Fotos in einer ähnlichen Wohnung mit exakt gleicher Ausstattung aufgenommen wurden, da die Top 301 noch bis 30.6.2026 bewohnt ist.
RAUMAUFTEILUNG IN STICHWORTEN
• Vorraum
• Wohnzimmer mit offener Küche
• Zimmer
• Zimmer
• Zimmer
• Bad mit Badewanne, Waschbecken, WM-Anschluss
• WC mit Waschbecken
• Abstellraum
• Garten und Terrasse südwestseitig
• Kellerabteil
HIGHLIGHTS UND AUSSTATTUNGSMERKMALE
• hell und modern (Baujahr 2015)
• süd-west-Ausrichtung
• barrierefrei
• tolle Raumaufteilung, zentral begehbar
• Gaszentralheizung (keine Therme, keine Wartungskosten)
• Fahrradraum, Kinderwagenabstellraum
• Spielplatz, Gemeinschaftsgarten
• super Lage
• fantastische Infrastruktur
• Geschäfte für den täglichen Bedarf fußläufig erreichbar
• hauseigene Tiefgarage
ÖFFENTLICHE VERKEHRSANBINDUNG
• U3 Gasometer
• Autobuslinie 72A
ZUSÄTZLICHE MONATLICHE KOSTEN
• Heizungsaktonto EUR 99,96 brutto --> Gesamtmiete "warm" EUR 2.449,00
• Strom nach Verbrauch ... wird direkt an den Energiedienstleister bezahlt
• Haushaltsversicherung
• ggf. TV/Internet o.Ä.
BEI BEDARF GARAGENPLÄTZE DIREKT IM HAUS
• EUR 120 brutto pro Monat:
• Kaution 3 Monatsmieten
• Mindestlaufzeit 6 Monate, danach beidseitig monatlich kündbar
ERSTZAHLUNG
• Kaution: 3 Monatsmieten
• Erste Monatsmiete im Voraus
VERTRAGSBEDINGUNGEN
• Befristung: 5 Jahre
• Kündigungsverzicht: 12 Monate (mieterseitig)
• Kündigungsfrist: 3 Monate
• gefordertes Mindestnettoeinkommen (Haushalt): EUR 6150,-
Falls Sie Fragen haben oder einen Besichtigungstermin vereinbaren möchten, stehe ich Ihnen selbstverständlich gerne zur Verfügung. Ich freue mich auf Ihre Kontaktaufnahme!
KONTAKT
Frau Kerstin Fried
Tel: +43 664 88 730 881
Email: kerstin.fried@hubner-immobilien.com
___
104,12 m² Wohnfläche zuzüglich mit 93,74m² Außenfläche (Garten und Terrasse)
UNMITTELBARE U3-Nähe Gasometer (3 min).
ZENTRAL BEGEHBAR! Süd-West-Ausrichtung!
Bitte beachten Sie, dass die Fotos in einer ähnlichen Wohnung mit exakt gleicher Ausstattung aufgenommen wurden, da die Top 301 noch bis 30.6.2026 bewohnt ist.
RAUMAUFTEILUNG IN STICHWORTEN
• Vorraum
• Wohnzimmer mit offener Küche
• Zimmer
• Zimmer
• Zimmer
• Bad mit Badewanne, Waschbecken, WM-Anschluss
• WC mit Waschbecken
• Abstellraum
• Garten und Terrasse südwestseitig
• Kellerabteil
HIGHLIGHTS UND AUSSTATTUNGSMERKMALE
• hell und modern (Baujahr 2015)
• süd-west-Ausrichtung
• barrierefrei
• tolle Raumaufteilung, zentral begehbar
• Gaszentralheizung (keine Therme, keine Wartungskosten)
• Fahrradraum, Kinderwagenabstellraum
• Spielplatz, Gemeinschaftsgarten
• super Lage
• fantastische Infrastruktur
• Geschäfte für den täglichen Bedarf fußläufig erreichbar
• hauseigene Tiefgarage
ÖFFENTLICHE VERKEHRSANBINDUNG
• U3 Gasometer
• Autobuslinie 72A
ZUSÄTZLICHE MONATLICHE KOSTEN
• Heizungsaktonto EUR 99,96 brutto --> Gesamtmiete "warm" EUR 2.449,00
• Strom nach Verbrauch ... wird direkt an den Energiedienstleister bezahlt
• Haushaltsversicherung
• ggf. TV/Internet o.Ä.
BEI BEDARF GARAGENPLÄTZE DIREKT IM HAUS
• EUR 120 brutto pro Monat:
• Kaution 3 Monatsmieten
• Mindestlaufzeit 6 Monate, danach beidseitig monatlich kündbar
ERSTZAHLUNG
• Kaution: 3 Monatsmieten
• Erste Monatsmiete im Voraus
VERTRAGSBEDINGUNGEN
• Befristung: 5 Jahre
• Kündigungsverzicht: 12 Monate (mieterseitig)
• Kündigungsfrist: 3 Monate
• gefordertes Mindestnettoeinkommen (Haushalt): EUR 6150,-
Falls Sie Fragen haben oder einen Besichtigungstermin vereinbaren möchten, stehe ich Ihnen selbstverständlich gerne zur Verfügung. Ich freue mich auf Ihre Kontaktaufnahme!
KONTAKT
Frau Kerstin Fried
Tel: +43 664 88 730 881
Email: kerstin.fried@hubner-immobilien.com
___
| Angaben gemäß gesetzlichem Erfordernis: | |||
| Miete | € | 1896,02 | zzgl 10% USt. |
| Betriebskosten | € | 239,48 | zzgl 10% USt. |
| Umsatzsteuer | € | 213,55 | |
| ------------------------------------------------------------------ | |||
| Gesamtbetrag | € | 2349,05 | |
| ------------------------------------------------------------------ | |||
| Heizwärmebedarf: | 23.21 kWh/(m²a) | ||
| Klasse Heizwärmebedarf: | A | ||
| Faktor Gesamtenergieeffizienz: | 0.83 | ||
Objektdaten
Ausstattung
- Gartennutzung
- Unterkellert
- Zentralheizung
- Personen Fahrstuhl
- Niedrigenergie
- Bus
- Gegensprechanlage
- Geschirrspüler
- Glaskeramikfeld
- Küche Möbliert
- Sonstiges
- Schnellbahn
- Sonnenschutz
- Straßenbahn
- U-Bahn
- Zentralheizung
Zustand
- Zustand
- GEPFLEGT
- Baujahr
- 2015
- Alter
- NEUBAU
Flächen
- Anzahl der Zimmer
- 4
- Anzahl der Schlafzimmer
- 3
- Anzahl der Badezimmer
- 1
- Anzahl der sep. WCs
- 1
- Anzahl der Terrassen
- 1
- Wohnfläche
- 105m²
- Gartenfläche
- 45m²
- Terrassenfläche
- 1m²
Kosten
- Kaltmiete
- € 2.349,05
- Nebenkosten
- € 263,43
- Kaution
- € 7.400,00
- Betriebskosten Brutto
- € 263,43
Verwaltung
- Verfügbar ab
- 01.07.2026
- Mietdauer
- bis 5,0 Jahre
Wohnungen zum Mieten in Österreich
Wohnungen zum Mieten in Österreich
Wohnungen zum Mieten in Österreich
Andere Besucher suchen nach...
- Grundstücke kaufen in 3400 Weidlingbach
- Wohnungen kaufen in 4663 Laakirchen
- Häuser in 7471 Rechnitz
- Wohnungen in 2410 Hainburg an der Donau
- Häuser kaufen in 2432 Schwadorf
- Wohnungen kaufen in 3002 Purkersdorf
- Häuser in 3150 Wilhelmsburg
- Wohnungen kaufen in 3470 Engelmannsbrunn
- Grundstücke kaufen im Bezirk Mattersburg
- Grundstücke kaufen im Bezirk Gmunden