Moderne 2 Zimmer Neubauwohnung mit Loggia // Nähe U6 Bahnhof Wien Meidling
€ 1.119 / Monat
€ 20 / m²
1120 Wien
-
sofort
Beschreibung
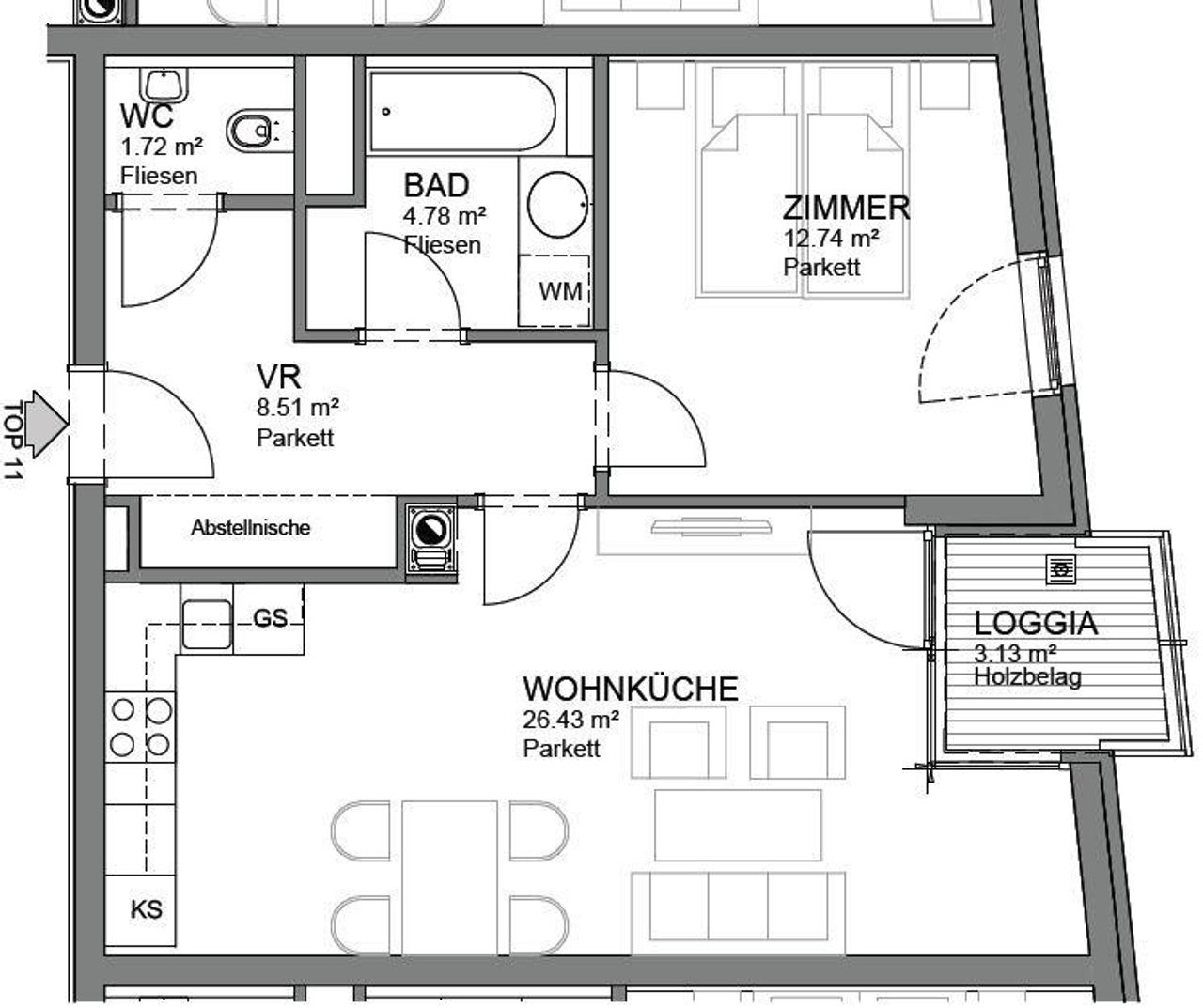
Zur Vermietung gelangt diese moderne, sehr gut aufgeteilte 2-Zimmer-Wohnung (54,18m²) mit südseitiger Loggia (3,13m²) in einem schönen, modernen Neubau im 12. Bezirk in der Murlingengasse Die Infrastruktur kann als perfekt beschrieben werden. Geschäfte für den täglichen Bedarf sind auf dem Fußweg erreichbar. Beste öffentliche Verkehrsanbindung bietet der Bahnhof Wien Meidling. RAUMAUFTEILUNG IN STICHWORTEN • Vorraum • großes Wohn-Ess-Zimmer mit moderner Markenküche • Schlafzimmer • Badezimmer mit Badewanne, Waschbecken und Waschmaschinenanschluss • Abstellnische im großen Vorraum • separates WC mit kl. Waschbecken • Loggia • Kellerabteil HIGHLIGHTS AUF EINEN BLICK • Loggia • tolle Raumaufteilung • absolut modern und schick •...
Zur Vermietung gelangt diese moderne, sehr gut aufgeteilte 2-Zimmer-Wohnung (54,18m²) mit südseitiger Loggia (3,13m²) in einem schönen, modernen Neubau im 12. Bezirk in der Murlingengasse
Die Infrastruktur kann als perfekt beschrieben werden. Geschäfte für den täglichen Bedarf sind auf dem Fußweg erreichbar. Beste öffentliche Verkehrsanbindung bietet der Bahnhof Wien Meidling.
RAUMAUFTEILUNG IN STICHWORTEN
• Vorraum
• großes Wohn-Ess-Zimmer mit moderner Markenküche
• Schlafzimmer
• Badezimmer mit Badewanne, Waschbecken und Waschmaschinenanschluss
• Abstellnische im großen Vorraum
• separates WC mit kl. Waschbecken
• Loggia
• Kellerabteil
HIGHLIGHTS AUF EINEN BLICK
• Loggia
• tolle Raumaufteilung
• absolut modern und schick
• Parkettboden (Eiche)
• moderne Einbauküche mit Siemens-Edelstahlgeräten
• modernes Badezimmer mit Badewanne und Waschmaschinenanschluss
• an allen Fenstern Außenlamellen aus Aluminium
• tolle Infrastruktur
• Kabel-TV UND Haus-Satellitenanlage
• sehr schicker, moderner Neubau
• große Kacheln (30x60 Feinsteinzeug) und Markenarmaturen im Bad und WC
• schöne Anlage
• Waschküche
• Fahrradabstellraum
• Kellerabteil
• super Einkaufsmöglichkeiten in der nahen Umgebung (Arcade Meidling)
• Garagenplatz direkt im Haus á € 110 inkl. Ust / Monat
Öffentliche Verkehrsanbindung - alle Stationen in unmittelbarer Nähe
• Autobuslinien: 9A, 59A, 15A, 8A, 63A
• U6 Meidling
• Wien Meidling (S-Bahn, Südbahnstrecke)
• Straßenbahnlinie 62
Weitere monatliche Kosten
• Wasser, Heizung und Strom, ggf. Garagenplatz (bei Bedarf) - werden direkt nach Verbrauch abgerechnet
Erstzahlung
• Vertragserrichtungskosten Hausverwaltung EUR 160,-- (einmalig)
• Kaution: 3 Monatsmieten
• erste Miete im Voraus
VERTRAGSBEDINGUNGEN
• Befristung: 5 Jahre
• Kündigungsverzicht: 12 Monate
• Kündigungsfrist: 3 Monate
• benötigtes Mindestnettoeinkommen (Haushalt): doppelte Monatsmiete
__
Die Infrastruktur kann als perfekt beschrieben werden. Geschäfte für den täglichen Bedarf sind auf dem Fußweg erreichbar. Beste öffentliche Verkehrsanbindung bietet der Bahnhof Wien Meidling.
RAUMAUFTEILUNG IN STICHWORTEN
• Vorraum
• großes Wohn-Ess-Zimmer mit moderner Markenküche
• Schlafzimmer
• Badezimmer mit Badewanne, Waschbecken und Waschmaschinenanschluss
• Abstellnische im großen Vorraum
• separates WC mit kl. Waschbecken
• Loggia
• Kellerabteil
HIGHLIGHTS AUF EINEN BLICK
• Loggia
• tolle Raumaufteilung
• absolut modern und schick
• Parkettboden (Eiche)
• moderne Einbauküche mit Siemens-Edelstahlgeräten
• modernes Badezimmer mit Badewanne und Waschmaschinenanschluss
• an allen Fenstern Außenlamellen aus Aluminium
• tolle Infrastruktur
• Kabel-TV UND Haus-Satellitenanlage
• sehr schicker, moderner Neubau
• große Kacheln (30x60 Feinsteinzeug) und Markenarmaturen im Bad und WC
• schöne Anlage
• Waschküche
• Fahrradabstellraum
• Kellerabteil
• super Einkaufsmöglichkeiten in der nahen Umgebung (Arcade Meidling)
• Garagenplatz direkt im Haus á € 110 inkl. Ust / Monat
Öffentliche Verkehrsanbindung - alle Stationen in unmittelbarer Nähe
• Autobuslinien: 9A, 59A, 15A, 8A, 63A
• U6 Meidling
• Wien Meidling (S-Bahn, Südbahnstrecke)
• Straßenbahnlinie 62
Weitere monatliche Kosten
• Wasser, Heizung und Strom, ggf. Garagenplatz (bei Bedarf) - werden direkt nach Verbrauch abgerechnet
Erstzahlung
• Vertragserrichtungskosten Hausverwaltung EUR 160,-- (einmalig)
• Kaution: 3 Monatsmieten
• erste Miete im Voraus
VERTRAGSBEDINGUNGEN
• Befristung: 5 Jahre
• Kündigungsverzicht: 12 Monate
• Kündigungsfrist: 3 Monate
• benötigtes Mindestnettoeinkommen (Haushalt): doppelte Monatsmiete
__
| Angaben gemäß gesetzlichem Erfordernis: | |||
| Miete | € | 908,91 | zzgl 10% USt. |
| Betriebskosten | € | 108,36 | zzgl 10% USt. |
| Umsatzsteuer | € | 101,73 | |
| ------------------------------------------------------------------ | |||
| Gesamtbetrag | € | 1119 | |
| ------------------------------------------------------------------ | |||
| Heizwärmebedarf: | 33.6 kWh/(m²a) | ||
| Klasse Heizwärmebedarf: | B | ||
| Faktor Gesamtenergieeffizienz: | 1.04 | ||
| Klasse Faktor Gesamtenergieeffizienz: | C | ||
Objektdaten
Ausstattung
- Wasch-/Trockenraum
- Unterkellert
- Zentralheizung
- Fern Befeuerung
- Personen Fahrstuhl
- Kamera
- Niedrigenergie
- Bus
- Gegensprechanlage
- Küche Möbliert
- Sonstiges
- Ruhe Lage
- Schnellbahn
- Sonnenschutz
- Straßenbahn
- U-Bahn
- Zentralheizung mit Fernwärme
Zustand
- Zustand
- GEPFLEGT
- Baujahr
- 2012
- Alter
- NEUBAU
Flächen
- Anzahl der Zimmer
- 2
- Anzahl der Badezimmer
- 1
- Anzahl der sep. WCs
- 1
- Wohnfläche
- 55m²
Kosten
- Kaltmiete
- € 1.119,00
- Nebenkosten
- € 119,20
- Kaution
- € 3.400,00
- Betriebskosten Brutto
- € 119,20
Verwaltung
- Verfügbar ab
- sofort
- Mietdauer
- bis 5,0 Jahre
Wohnungen zum Mieten in Österreich
Wohnungen zum Mieten in Österreich
Wohnungen zum Mieten in Österreich
Andere Besucher suchen nach...
- Grundstücke kaufen in 3400 Weidlingbach
- Wohnungen kaufen in 4663 Laakirchen
- Häuser in 7471 Rechnitz
- Wohnungen in 2410 Hainburg an der Donau
- Häuser kaufen in 2432 Schwadorf
- Wohnungen kaufen in 3002 Purkersdorf
- Häuser in 3150 Wilhelmsburg
- Wohnungen kaufen in 3470 Engelmannsbrunn
- Grundstücke kaufen im Bezirk Mattersburg
- Grundstücke kaufen im Bezirk Gmunden