Neuwertig modern ++ 2 Badezimmer ++ nähe Bahnhof Meidling!
€ 1.419 / Monat
€ 28 / m²
1120 Wien
-
2022
-
01.07.2026
Beschreibung
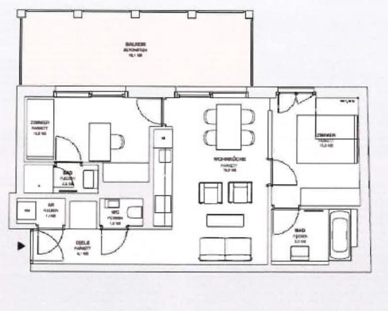
-- NEUWERTIG ++ TOP CITY LAGE -- 1. Dachgeschoß -- Zur Vermietung gelangt diese moderne Neubauwohnung mit großem Balkon im 12. Bezirk in der Murlingengasse. Sie besticht durch eine moderne, hochwertige Ausstattung und verfügt über einen großen, südseitigen Balkon. Die Infrastruktur kann als perfekt beschrieben werden. Geschäfte für den täglichen Bedarf sind auf dem Fußweg erreichbar. Beste öffentliche Verkehrsanbindung bietet der Bahnhof Wien Meidling. RAUMAUFTEILUNG IN STICHWORTEN • Vorraum • Wohnzimmer • offene Küche • Schlafzimmer • Bad1 mit Dusche und Waschbecken • Zimmer • Bad2 mit Badewanne und Waschbecken • WC mit Waschbecken • Abstellraum mit Waschmaschinenanschluss • großer...
-- NEUWERTIG ++ TOP CITY LAGE -- 1. Dachgeschoß --
Zur Vermietung gelangt diese moderne Neubauwohnung mit großem Balkon im 12. Bezirk in der Murlingengasse.
Sie besticht durch eine moderne, hochwertige Ausstattung und verfügt über einen großen, südseitigen Balkon.
Die Infrastruktur kann als perfekt beschrieben werden. Geschäfte für den täglichen Bedarf sind auf dem Fußweg erreichbar. Beste öffentliche Verkehrsanbindung bietet der Bahnhof Wien Meidling.
RAUMAUFTEILUNG IN STICHWORTEN
• Vorraum
• Wohnzimmer
• offene Küche
• Schlafzimmer
• Bad1 mit Dusche und Waschbecken
• Zimmer
• Bad2 mit Badewanne und Waschbecken
• WC mit Waschbecken
• Abstellraum mit Waschmaschinenanschluss
• großer Nordwest-Balkon
HIGHLIGHTS AUF EINEN BLICK
• Fußbodenheizung
• elektr. Außenjalousien
• Mega Balkon
• tolle Raumaufteilung
• absolut modern und schick
• Parkettboden
• moderne, voll ausgestattete Einbauküche
• tolle Infrastruktur
• sehr schicker, moderner Neubau
• große Kacheln (30x60 Feinsteinzeug) und Markenarmaturen im Bad und WC
• Fahrradabstellraum
• Kellerabteil
• super Einkaufsmöglichkeiten in der nahen Umgebung (Arcade Meidling)
• Garagenplatz direkt im Haus (je nach Verfügbarkeit)
SEHR GUTE ÖFFENTLICHE VERKEHRSANBINDUNG
• Autobuslinien: 9A, 59A, 15A, 8A, 63A
• U6 Meidling
• Wien Meidling (S-Bahn, Südbahnstrecke)
• Straßenbahnlinie 62
Weitere monatliche Kosten
• Heizung und Wasser siehe Auflistung
• Strom, ggf. Garagenplatz (bei Bedarf) - werden direkt nach Verbrauch abgerechnet
MONATLICHE KOSTENÜBERSICHT "WARM"
• Nettomiete € 1160,33
• Betriebskosten netto € 129,93
• Wasserakonto netto € 8,60
• Warmwasserakonto netto € 18,29
• Heizungsakonto netto € 32,40
• zzgl MwSt = Gesamtmiete "warm" € 1487,74 brutto/ Monat
Erstzahlung
• Kaution: 3 Monatsmieten
• erste Monatsmiete
VERTRAGSBEDINGUNGEN
• Befristung: 5 Jahre
• Kündigungsverzicht: 12 Monate
• Kündigungsfrist: 3 Monate
• benötigtes Mindestnettoeinkommen (Haushalt): doppelte Monatsmiete
Für nähere Informationen und um einen Besichtigungstermin zu vereinbaren stehe ich Ihnen sehr gerne zur Verfügung.
KONTAKT
Robert Fried
Mobil: 0664 88 296 010
robert.fried@hubner-immobilien.com
___
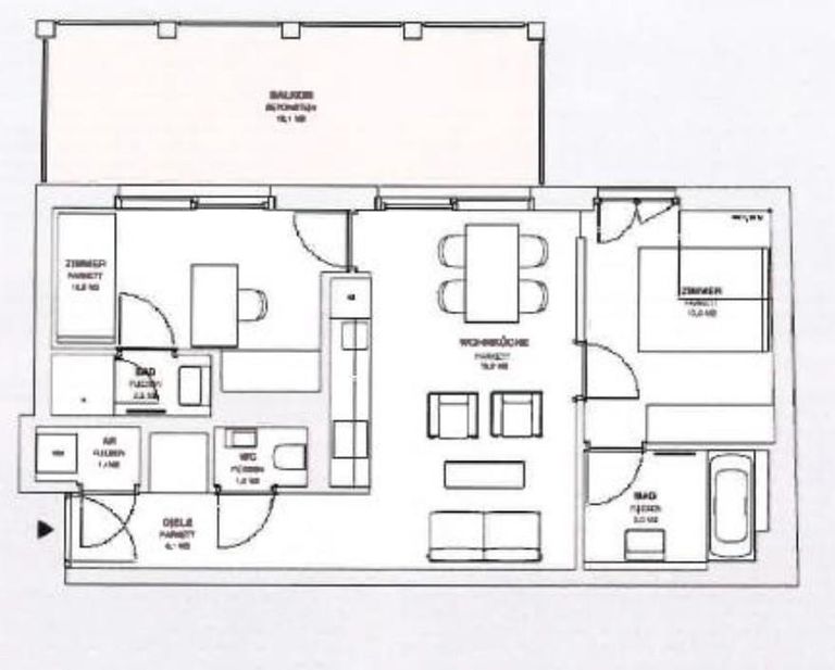
Zur Vermietung gelangt diese moderne Neubauwohnung mit großem Balkon im 12. Bezirk in der Murlingengasse.
Sie besticht durch eine moderne, hochwertige Ausstattung und verfügt über einen großen, südseitigen Balkon.
Die Infrastruktur kann als perfekt beschrieben werden. Geschäfte für den täglichen Bedarf sind auf dem Fußweg erreichbar. Beste öffentliche Verkehrsanbindung bietet der Bahnhof Wien Meidling.
RAUMAUFTEILUNG IN STICHWORTEN
• Vorraum
• Wohnzimmer
• offene Küche
• Schlafzimmer
• Bad1 mit Dusche und Waschbecken
• Zimmer
• Bad2 mit Badewanne und Waschbecken
• WC mit Waschbecken
• Abstellraum mit Waschmaschinenanschluss
• großer Nordwest-Balkon
HIGHLIGHTS AUF EINEN BLICK
• Fußbodenheizung
• elektr. Außenjalousien
• Mega Balkon
• tolle Raumaufteilung
• absolut modern und schick
• Parkettboden
• moderne, voll ausgestattete Einbauküche
• tolle Infrastruktur
• sehr schicker, moderner Neubau
• große Kacheln (30x60 Feinsteinzeug) und Markenarmaturen im Bad und WC
• Fahrradabstellraum
• Kellerabteil
• super Einkaufsmöglichkeiten in der nahen Umgebung (Arcade Meidling)
• Garagenplatz direkt im Haus (je nach Verfügbarkeit)
SEHR GUTE ÖFFENTLICHE VERKEHRSANBINDUNG
• Autobuslinien: 9A, 59A, 15A, 8A, 63A
• U6 Meidling
• Wien Meidling (S-Bahn, Südbahnstrecke)
• Straßenbahnlinie 62
Weitere monatliche Kosten
• Heizung und Wasser siehe Auflistung
• Strom, ggf. Garagenplatz (bei Bedarf) - werden direkt nach Verbrauch abgerechnet
MONATLICHE KOSTENÜBERSICHT "WARM"
• Nettomiete € 1160,33
• Betriebskosten netto € 129,93
• Wasserakonto netto € 8,60
• Warmwasserakonto netto € 18,29
• Heizungsakonto netto € 32,40
• zzgl MwSt = Gesamtmiete "warm" € 1487,74 brutto/ Monat
Erstzahlung
• Kaution: 3 Monatsmieten
• erste Monatsmiete
VERTRAGSBEDINGUNGEN
• Befristung: 5 Jahre
• Kündigungsverzicht: 12 Monate
• Kündigungsfrist: 3 Monate
• benötigtes Mindestnettoeinkommen (Haushalt): doppelte Monatsmiete
Für nähere Informationen und um einen Besichtigungstermin zu vereinbaren stehe ich Ihnen sehr gerne zur Verfügung.
KONTAKT
Robert Fried
Mobil: 0664 88 296 010
robert.fried@hubner-immobilien.com
___
| Angaben gemäß gesetzlichem Erfordernis: | |||
| Miete | € | 1160,33 | zzgl 10% USt. |
| Betriebskosten | € | 129,93 | zzgl 10% USt. |
| Umsatzsteuer | € | 129,02 | |
| ------------------------------------------------------------------ | |||
| Gesamtbetrag | € | 1419,28 | |
| ------------------------------------------------------------------ | |||
| Heizwärmebedarf: | 30.6 kWh/(m²a) | ||
| Klasse Heizwärmebedarf: | B | ||
| Faktor Gesamtenergieeffizienz: | 0.73 | ||
| Klasse Faktor Gesamtenergieeffizienz: | A | ||
Objektdaten
Ausstattung
- Rollstuhlgerecht
- Unterkellert
- Zentralheizung
- Fern Befeuerung
- Personen Fahrstuhl
- Kamera
- Niedrigenergie
- Bus
- Eisenbahn
- Gegensprechanlage
- Geschirrspüler
- Glaskeramikfeld
- Küche Möbliert
- Sonstiges
- Rollstuhlgerecht
- Sonnenschutz
- Straßenbahn
- U-Bahn
- Zentralheizung mit Fernwärme
Dokumente / Links
Zustand
- Zustand
- GEPFLEGT
- Baujahr
- 2022
- Alter
- NEUBAU
Flächen
- Anzahl der Zimmer
- 3
- Anzahl der Badezimmer
- 2
- Anzahl der sep. WCs
- 1
- Wohnfläche
- 50m²
Kosten
- Kaltmiete
- € 1.419,28
- Nebenkosten
- € 142,92
- Kaution
- € 4.260,00
- Betriebskosten Brutto
- € 142,92
Verwaltung
- Verfügbar ab
- 01.07.2026
- Mietdauer
- bis 5,0 Jahre
Wohnungen zum Mieten in Österreich
Wohnungen zum Mieten in Österreich
Wohnungen zum Mieten in Österreich
Andere Besucher suchen nach...
- Grundstücke kaufen in 3400 Weidlingbach
- Wohnungen kaufen in 4663 Laakirchen
- Häuser in 7471 Rechnitz
- Wohnungen in 2410 Hainburg an der Donau
- Häuser kaufen in 2432 Schwadorf
- Wohnungen kaufen in 3002 Purkersdorf
- Häuser in 3150 Wilhelmsburg
- Wohnungen kaufen in 3470 Engelmannsbrunn
- Grundstücke kaufen im Bezirk Mattersburg
- Grundstücke kaufen im Bezirk Gmunden