UNBEFRISTETES SINGLE - ERDGESCHOSS AM MIGAZZIPLATZ
-
ab 1.4.2026
Beschreibung
Es können nur schriftliche Anfragen mit vollständigen Kontaktabgaben bearbeitet werden. Bitte lesen Sie als weiteren Schritt, die vom Innendienst erhaltenen Mail. Telefonisch bieten wir keine Besichtigungstermine an. Herzlichen Dank im Voraus.
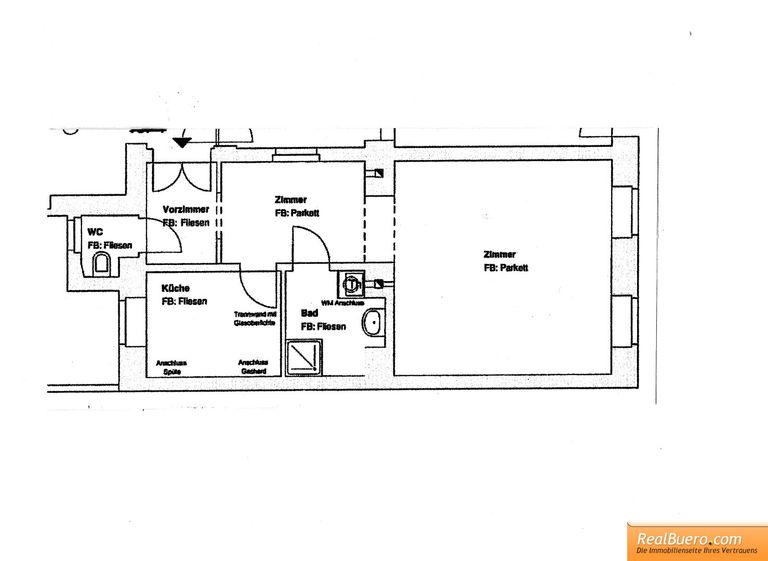
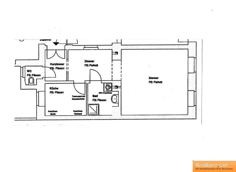
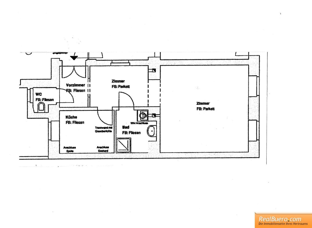
Singlewohnung am Migazziplatz bestehend aus:
- Vorzimmer
- Wohnschlafzimmer
- Küche mit Platz für einen kleinem Essbereich
- Badezimmer mit Dusche, Handwaschbecken, Handtuchtrockner, Waschmaschinenanschluss
- Toilette
- Kellerabteil
Sonstiges:
- unbefristete Hauptmiete, ab 1.4.2026 anmietbar (spätestens jedoch mit 1.7.2026)
- 1,5 Jahre Kündigungsverzicht
- einsehbares Erdgeschoß
- Gasetagenheizung
- Hundehaltung ist hier leider nicht möglich
- Fahrradabstellraum im Haus
- auf Wunsch des...
Es können nur schriftliche Anfragen mit vollständigen Kontaktabgaben bearbeitet werden. Bitte lesen Sie als weiteren Schritt, die vom Innendienst erhaltenen Mail. Telefonisch bieten wir keine Besichtigungstermine an. Herzlichen Dank im Voraus.
Singlewohnung am Migazziplatz bestehend aus:
- Vorzimmer
- Wohnschlafzimmer
- Küche mit Platz für einen kleinem Essbereich
- Badezimmer mit Dusche, Handwaschbecken, Handtuchtrockner, Waschmaschinenanschluss
- Toilette
- Kellerabteil
Sonstiges:
- unbefristete Hauptmiete, ab 1.4.2026 anmietbar (spätestens jedoch mit 1.7.2026)
- 1,5 Jahre Kündigungsverzicht
- einsehbares Erdgeschoß
- Gasetagenheizung
- Hundehaltung ist hier leider nicht möglich
- Fahrradabstellraum im Haus
- auf Wunsch des Vermieters kann die Wohnung nur von einer Einzelperson bewohnt werden
- Fotos von der letzten Vermietung, Aktuelle kommen so rasch wie möglich
Monatliche Kosten: € 663,84 Bruttomiete
- Hauptmietzins: € 491,09
- Betriebskosten: € 111,69
- Umsatzsteuer
Nebenkosten:
- € 3000.- Kaution
Nebenkostenübersicht und weitere Informationen für den Mieter/Vermieter, Pächter/Verpächter finden Sie auf unserer Homepage: www.realbuero.com
Der Immobilienmakler erklärt, dass er – entgegen dem in der Immobilienwirtschaft üblichen Geschäftsgebrauch des Doppelmaklers – einseitig nur für den Vermieter tätig ist.
Infrastruktur / Entfernungen
Gesundheit
Arzt <250m
Apotheke <250m
Klinik <500m
Krankenhaus <1.250m
Kinder & Schulen
Schule <500m
Kindergarten <250m
Universität <500m
Höhere Schule <750m
Nahversorgung
Supermarkt <250m
Bäckerei <250m
Einkaufszentrum <250m
Sonstige
Geldautomat <500m
Bank <500m
Post <500m
Polizei <500m
Verkehr
Bus <250m
U-Bahn <250m
Straßenbahn <500m
Bahnhof <500m
Autobahnanschluss <3.000m
Angaben Entfernung Luftlinie / Quelle: OpenStreetMap
Objektdaten
Ausstattung
- Bad mit Dusche
- Fliesenboden
- Parkettboden
- Etage Heizung
- Befeuerung mit Gas
Zustand
- Alter
- ALTBAU
- HWB
- 137.6 kWh/m² pro Jahr
Flächen
- Anzahl der Zimmer
- 1
- Anzahl der Badezimmer
- 1
- Anzahl der sep. WCs
- 1
- Wohnfläche
- 45m²
Kosten
- Gesamtmiete Brutto
- € 664,00
- Kaution
- € 3.000,00
- Miete
- € 491,09
- Betriebskosten
- € 111,69
- Sonstige Kosten
- € 0,94
- Umsatzsteuer
- € 60,28
- Monatl. Gesamtbelastung Brutto
- € 664,00
Verwaltung
- Verfügbar ab
- ab 1.4.2026
Wohnungen zum Mieten in Österreich
- Bezirk Gemeindebezirk Meidling
- Bezirk Gemeindebezirk Meidling
- Bezirk Gemeindebezirk Meidling
- Bezirk Gemeindebezirk Margareten
- Bezirk Gemeindebezirk Margareten
- Bezirk Gemeindebezirk Margareten
- Bezirk Gemeindebezirk Mariahilf
- Bezirk Gemeindebezirk Mariahilf
- Bezirk Gemeindebezirk Mariahilf
- Bezirk Gemeindebezirk Neubau
Wohnungen zum Mieten in Österreich
Wohnungen zum Mieten in Österreich
Andere Besucher suchen nach...
- Grundstücke kaufen in 3400 Weidlingbach
- Wohnungen kaufen in 4663 Laakirchen
- Häuser in 7471 Rechnitz
- Wohnungen in 2410 Hainburg an der Donau
- Häuser kaufen in 2432 Schwadorf
- Wohnungen kaufen in 3002 Purkersdorf
- Häuser in 3150 Wilhelmsburg
- Wohnungen kaufen in 3470 Engelmannsbrunn
- Grundstücke kaufen im Bezirk Mattersburg
- Grundstücke kaufen im Bezirk Gmunden