Herrliche Aussicht beim Hörndlwald - Exklusives Appartement - Grünruhelage
-
sofort
Beschreibung
In herrlicher Grünruhelage, inmitten des 13. Bezirkes, befindet sich diese feine Neubauwohnung in einer architektonisch aufwendig gestalteten Wohnanlage, die über eine eigene Zufahrt erreichbar ist.
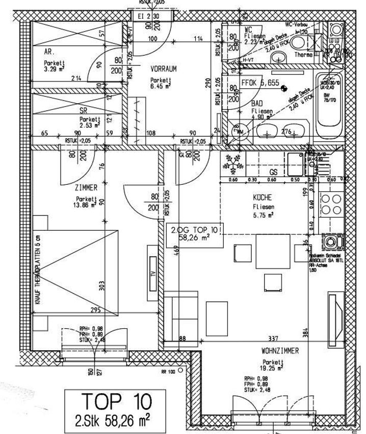
Im 2. Liftstock, auf einer Wohnfläche von 58,26m² sind ein großzügiger Vorraum, ein Wohnraum mit offen gehaltener Miele-Küche, ein Zimmer mit begehbarer Garderobe, ein Bad mit Wanne, Doppelwaschtisch und Waschmaschinenanschluß, ein separates WC mit Handwaschbecken und ein großer Abstellraum vorhanden.
Die Ausstattung ist hochwertig, Miele-Küche, Parkett/Fliesenböden, schöne sanitäre Anlagen, SAT/Telefonanschluss, Gasetagenheizung usw.
Im Kellergeschoss befindet sich der Parteienkeller, jeder Wohnung ist ein Kellerabteil zugeordnet, Kinderwagen- und Fahrradabstellraum sowie die Garage. Ein Garagenplatz kann um 180,00...
In herrlicher Grünruhelage, inmitten des 13. Bezirkes, befindet sich diese feine Neubauwohnung in einer architektonisch aufwendig gestalteten Wohnanlage, die über eine eigene Zufahrt erreichbar ist.
Im 2. Liftstock, auf einer Wohnfläche von 58,26m² sind ein großzügiger Vorraum, ein Wohnraum mit offen gehaltener Miele-Küche, ein Zimmer mit begehbarer Garderobe, ein Bad mit Wanne, Doppelwaschtisch und Waschmaschinenanschluß, ein separates WC mit Handwaschbecken und ein großer Abstellraum vorhanden.
Die Ausstattung ist hochwertig, Miele-Küche, Parkett/Fliesenböden, schöne sanitäre Anlagen, SAT/Telefonanschluss, Gasetagenheizung usw.
Im Kellergeschoss befindet sich der Parteienkeller, jeder Wohnung ist ein Kellerabteil zugeordnet, Kinderwagen- und Fahrradabstellraum sowie die Garage. Ein Garagenplatz kann um 180,00 EUR/p.m. dazu gemietet werden, weitere Stellplätze um 90,00 EUR/p.m. befinden sich im Bereich der Zufahrt.
Eine private Gartenanlage gehört zu dieser Liegenschaft dazu, und kann von allen Bewohnern benutzt werden. Ein Kinderspielplatz ist ebenfalls vorhanden.
Die Wohnung wird vorerst auf 5 Jahre befristet vermietet, eine Verlängerung ist möglich.
Die öffentliche Verkehrsanbindung ist mit der Buslinie 54B vor der Haustüre gegeben und die Geschäfte des täglichen Bedarfs sind in wenigen Gehminuten erreichbar.
Miete (netto): 873,90 EUR
Betriebskosten (netto): 132,25 EUR
Umsatzsteuer (gesamt): 100,62 EUR
Gesamtmiete: 1.106,77 EUR
Kaution: 4.980,47 EUR
MV-Errichtungsgebühr: 600,00 EUR
Der Immobilienmakler erklärt, dass er – entgegen dem in der Immobilienwirtschaft üblichen Geschäftsgebrauch des Doppelmaklers – einseitig nur für den Vermieter tätig ist.
Objektdaten
Ausstattung
- Gartennutzung
- Kabel/SAT-TV
- Barrierefrei
- Gäste-WC
- Bad mit Badewanne
- Offene Küche
- Fliesenboden
- Parkettboden
- Etage Heizung
- Befeuerung mit Gas
- Personen Fahrstuhl
Zustand
- Zustand
- NEUWERTIG
- Baujahr
- 2013
- Alter
- NEUBAU
- HWB
- 47 kWh/m² pro Jahr
- Klasse HWB
- B
- fGEE
- 1.07
- Klasse fGEE
- C
Flächen
- Anzahl der Zimmer
- 2
- Anzahl der Badezimmer
- 1
- Anzahl der sep. WCs
- 1
- Stellplätze
- 1
- Wohnfläche
- 58m²
- Kellerfläche
- 4m²
Kosten
- Gesamtmiete Brutto
- € 1.106,77
- Kaution
- € 4.980,47
- Miete
- € 873,90
- Betriebskosten
- € 132,25
- Umsatzsteuer
- € 100,62
- Monatl. Gesamtbelastung Brutto
- € 1.106,77
Verwaltung
- Verfügbar ab
- sofort
- Mietdauer
- bis 5,0 Jahre
Wohnungen zum Mieten in Österreich
- Bezirk Gemeindebezirk Hietzing
- Bezirk Gemeindebezirk Hietzing
- Bezirk Gemeindebezirk Hietzing
- Bezirk Gemeindebezirk Penzing
- Bezirk Gemeindebezirk Penzing
- Bezirk Gemeindebezirk Penzing
- Bezirk Gemeindebezirk Meidling
- Bezirk Gemeindebezirk Meidling
- Bezirk Gemeindebezirk Meidling
- Bezirk Gemeindebezirk Ottakring
Wohnungen zum Mieten in Österreich
Wohnungen zum Mieten in Österreich
Andere Besucher suchen nach...
- Grundstücke kaufen in 3400 Weidlingbach
- Wohnungen kaufen in 4663 Laakirchen
- Häuser in 7471 Rechnitz
- Wohnungen in 2410 Hainburg an der Donau
- Häuser kaufen in 2432 Schwadorf
- Wohnungen kaufen in 3002 Purkersdorf
- Häuser in 3150 Wilhelmsburg
- Wohnungen kaufen in 3470 Engelmannsbrunn
- Grundstücke kaufen im Bezirk Mattersburg
- Grundstücke kaufen im Bezirk Gmunden