Wohnen auf höchstem Niveau: Luxus-Penthouse mit 3,60 m Raumhöhe und 4 Zimmern
-
Erstbezug
-
2025
-
sofort
Beschreibung
Diese außergewöhnliche Dachgeschosswohnung (Top 6) vereint den Charakter einer stilvoll revitalisierten Altbauvilla mit zeitgemäßer Architektur und moderner Haustechnik. Ein hochwertiges Zuhause für Mieter:innen mit gehobenem Anspruch.
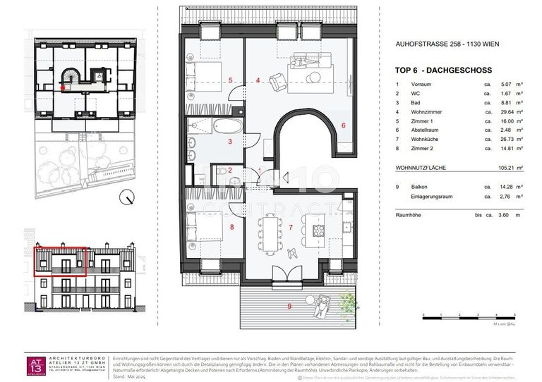
Auf rund 105,21 m² Wohnnutzfläche entfaltet sich ein großzügiges, funktional durchdachtes Raumkonzept.
Die ca. 26,73 m² große Wohnküche bildet das kommunikative Zentrum der Wohnung und bietet ausreichend Platz für Kochen, Essen und geselliges Beisammensein. Das separat situierte, ca. 29,64 m² große Wohnzimmer beeindruckt mit einer außergewöhnlichen Raumhöhe von bis zu ca. 3,60 m und vermittelt ein repräsentatives, loftartiges Ambiente mit beeindruckender Großzügigkeit.
Zwei gut proportionierte Schlafzimmer (ca. 16,00 m² und ca. 14,81 m²) bieten...
Diese außergewöhnliche Dachgeschosswohnung (Top 6) vereint den Charakter einer stilvoll revitalisierten Altbauvilla mit zeitgemäßer Architektur und moderner Haustechnik. Ein hochwertiges Zuhause für Mieter:innen mit gehobenem Anspruch.
Auf rund 105,21 m² Wohnnutzfläche entfaltet sich ein großzügiges, funktional durchdachtes Raumkonzept.
Die ca. 26,73 m² große Wohnküche bildet das kommunikative Zentrum der Wohnung und bietet ausreichend Platz für Kochen, Essen und geselliges Beisammensein. Das separat situierte, ca. 29,64 m² große Wohnzimmer beeindruckt mit einer außergewöhnlichen Raumhöhe von bis zu ca. 3,60 m und vermittelt ein repräsentatives, loftartiges Ambiente mit beeindruckender Großzügigkeit.
Zwei gut proportionierte Schlafzimmer (ca. 16,00 m² und ca. 14,81 m²) bieten ruhige Rückzugsorte mit angenehmer Privatsphäre.
Das hochwertig ausgestattete Badezimmer verfügt über eine bodenebene Dusche mit Glasabtrennung, ausgewählte Armaturen, Waschmaschinenanschluss sowie einen elektrischen Handtuchheizkörper. Ein separates WC sowie ein praktischer Abstellraum ergänzen die funktionale Raumaufteilung.
Ausstattungs-Highlights von Top 6:
Eichenparkett in Dielenoptik im gesamten Wohnbereich
Fußbodenheizung mit Einzelraumregelung
Klimaanlage im Dachgeschoss
3-fach verglaste Holz-Alu-Fenster (innen weiß, außen schwarz)
Video-Gegensprechanlage mit Türöffner
Sicherheitseingangstüre mit Mehrfachverriegelung
Zentrale Schließanlage
Lift im Haus
Energieeffiziente Luftwärmepumpentechnologie
Der ca. 14,28 m² große Balkon erweitert den Wohnraum ins Freie und bietet einen angenehmen, ruhigen Ausblick ins Grüne – ein privater Rückzugsort über den Dächern von Hietzing.
Top 6 verbindet architektonische Eleganz mit modernem Wohnkomfort in einer der begehrtesten Wohnlagen Wiens. Diese Wohnung ist ideal für Paare, kleine Familien oder anspruchsvolle Mieter:innen, die Wert auf Qualität, Großzügigkeit und stilvolles Ambiente legen.
Der Immobilienmakler erklärt, dass er – entgegen dem in der Immobilienwirtschaft üblichen Geschäftsgebrauch des Doppelmaklers – einseitig nur für den Vermieter tätig ist.
Infrastruktur / Entfernungen
Gesundheit
Arzt <500m
Apotheke <1.000m
Klinik <3.000m
Krankenhaus <1.000m
Kinder & Schulen
Schule <500m
Kindergarten <500m
Universität <2.000m
Höhere Schule <5.000m
Nahversorgung
Supermarkt <500m
Bäckerei <1.000m
Einkaufszentrum <3.000m
Sonstige
Geldautomat <500m
Bank <500m
Post <2.000m
Polizei <1.000m
Verkehr
Bus <500m
U-Bahn <500m
Straßenbahn <500m
Bahnhof <1.000m
Autobahnanschluss <3.000m
Angaben Entfernung Luftlinie / Quelle: OpenStreetMap
Objektdaten
Ausstattung
- WG geeignet
- Klimatisiert
- Kabel/SAT-TV
- Fahrradraum
- Rolladen
- Gäste-WC
- Bad mit Dusche
- Bad mit Badewanne
- Offene Küche
- Fliesenboden
- Parkettboden
- Fußbodenheizung
- Luftwärmepumpe
- Personen Fahrstuhl
- Ausrichtung Balkon/Terrasse - Süd
- Massiv Bauweise
- Schlüsselfertig mit Keller
- Neubaustandard
Zustand
- Zustand
- ERSTBEZUG
- Baujahr
- 2025
- Alter
- NEUBAU
- HWB
- 40.2 kWh/m² pro Jahr
- Klasse HWB
- B
- fGEE
- 0.82
- Klasse fGEE
- A
Flächen
- Anzahl der Zimmer
- 4
- Anzahl der Badezimmer
- 1
- Anzahl der sep. WCs
- 1
- Anzahl der Balkone
- 1
- Wohnfläche
- 105m²
- Nutzfläche
- 105m²
- Gesamtfläche
- 119m²
- Kellerfläche
- 3m²
Kosten
- Gesamtmiete Brutto
- € 2.950,00
- Miete
- € 2.314,22
- Betriebskosten
- € 367,60
- Umsatzsteuer
- € 268,18
- Monatl. Gesamtbelastung Brutto
- € 2.950,00
Verwaltung
- Verfügbar ab
- sofort
- Mietdauer
- bis 5,0 Jahre
Wohnungen zum Mieten in Österreich
- Bezirk Gemeindebezirk Hietzing
- Bezirk Gemeindebezirk Hietzing
- Bezirk Gemeindebezirk Hietzing
- Bezirk Gemeindebezirk Penzing
- Bezirk Gemeindebezirk Penzing
- Bezirk Gemeindebezirk Penzing
- Bezirk Gemeindebezirk Meidling
- Bezirk Gemeindebezirk Meidling
- Bezirk Gemeindebezirk Meidling
- Bezirk Gemeindebezirk Ottakring
Wohnungen zum Mieten in Österreich
Wohnungen zum Mieten in Österreich
Andere Besucher suchen nach...
- Grundstücke kaufen in 3400 Weidlingbach
- Wohnungen kaufen in 4663 Laakirchen
- Häuser in 7471 Rechnitz
- Wohnungen in 2410 Hainburg an der Donau
- Häuser kaufen in 2432 Schwadorf
- Wohnungen kaufen in 3002 Purkersdorf
- Häuser in 3150 Wilhelmsburg
- Wohnungen kaufen in 3470 Engelmannsbrunn
- Grundstücke kaufen im Bezirk Mattersburg
- Grundstücke kaufen im Bezirk Gmunden