360° TOUR // GARTEN & TERRASSENWOHNUNG in PÖTZLEINSDORF
-
sofort
Beschreibung
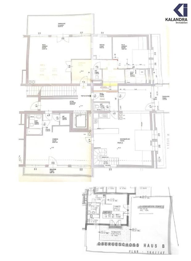
GARTEN & TERRASSENWOHUNG in PÖTZLEINSDORFER HÖHENLAGE Diese großzügige Wohnung mit 4 Schlafzimmern und sehr großen Terrassen liegt im vorletzten Liftstock eines besonders gepflegten und eleganten Wohnhauses in herrlicher Ruhelage. Raumaufteilung: 2.Obergeschoss Eingangsbereich, 38m² großer Wohnsalon mit großzügiger 21m² Südwest- Terrasse und anschließender kleiner 7m² Küche, 36m² große offene Wohnküche mit Esszimmerbereich, 3 großzügige Schlafzimmern ( 16m², 17m² & 29m²) mit jeweils 2 Terrassen ( 7m² & 6m²), ein Schrankraum, eine begehbare Einbau-Garderobe mit ca. 8m Kastenlänge, 2 Badezimmer Gäste-Toilette mit Handwaschbecken sowie eine zweite separate Toilette mit Handwaschbecken. 1.Obergschoss: separater Eingang, Vorzimmmer, Wannenbad, sowie das 4te Schlafzimmer mit Ausgang in...
GARTEN & TERRASSENWOHUNG in PÖTZLEINSDORFER HÖHENLAGE
Diese großzügige Wohnung mit 4 Schlafzimmern und sehr großen Terrassen liegt im vorletzten Liftstock eines besonders gepflegten und eleganten Wohnhauses in herrlicher Ruhelage.
Raumaufteilung:
2.Obergeschoss
Eingangsbereich, 38m² großer Wohnsalon mit großzügiger 21m² Südwest- Terrasse und anschließender kleiner 7m² Küche, 36m² große offene Wohnküche mit Esszimmerbereich, 3 großzügige Schlafzimmern ( 16m², 17m² & 29m²) mit jeweils 2 Terrassen ( 7m² & 6m²), ein Schrankraum, eine begehbare Einbau-Garderobe mit ca. 8m Kastenlänge, 2 Badezimmer
Gäste-Toilette mit Handwaschbecken sowie eine zweite separate Toilette mit Handwaschbecken.
1.Obergschoss:
separater Eingang, Vorzimmmer, Wannenbad, sowie das 4te Schlafzimmer mit Ausgang in den 136m² großen Eigengarten
Für Fahrräder und Kinderwägen gibt es einen allgemeien Abstellraum.
Das Kellerabteil (ca.10m²) ist besonders großzügig und ist bereits mit ordentlichen Regalen ausgestattet.
Ausstattung:
• Eingangsbereich mit modernen farblich gedämpften Fliesen ausgestattet
• Wohnräume Parkett & Steinboden,
• Zentralheizung
• Einbauküche
• Sämtliche Räume haben sehr geschmackvolle moderne Lampen, die vom Mieter verwendet werden können.
• Personenaufzug
• Bad mit Fenster, Badewanne & Dusche,
• Kabel / Satelliten-TV,
• Tiefgarage,
• Nordwestbalkon / -terrasse,
• Südwestbalkon / -terrasse,
• Fahrradraum,
• Abstellraum,
• Außenliegender Sonnenschutz,
• Getrennte Toiletten, Gäste-WC,
• Mansarddach,
• Fenster Doppel- / Mehrfachverglasung
Nebenkosten:
Im Haus stehen dem Mieter 2 Garagenstellplätze (21 + 13) zur Verfügung, pro Stellplatz 100,-- EURO + 20 % MwSt.
Für Fahrräder und Kinderwägen gibt es einen ordentlichen großen Raum.
Das Kellerabteil (9,72 m²) ist besonders großzügig und ist bereits mit Regalen ausgestattet.
Die Wohnung wird über die Hauszentralheizung beheizt, und mit Warmwasser versorgt.
Die Kosten für Kaltwasser sind in den Betriebskosten bereits enthalten.
Heizkosten monatliches à conto exklusive 20 % USt.: 259,49,-- EURO
Warmwasser monatliches à conto exklusive 10 % USt.: 125,56 EURO
Infrastruktur:
Verkehrsmitteln (Straßenbahn 41) bei der U6/Volksoper, beim Lycee Francais de Vienne,
direkt bei der Universität am Schottenring.
Nur ein paar Schritte zum Pötzleinsdorfer Schlosspark, der direkt an den Wienerwald angebunden
360 Tour:
https://360.kalandra.at/view/portal/id/VZZ5H
GARDEN & TERRACE APARTMENT with VIEW in PÖTZLEINSDORF
This spacious apartment with 4 bedrooms and very large terraces is located in the penultimate lift floor A particularly well-kept, elegant and modern residential building in a beautiful quiet location.
Layout:
2nd Floor
Entrance area, 38m² living room with a spacious 21m² south-west terrace and adjoining small 7m² kitchen, 36m² open kitchen-living room with dining area, 3 spacious bedrooms (16m², 17m² & 29m²) each with 2 terraces (7m² & 6m²), a closet room, a walk-in built-in -Cloakroom with approx. 8m box length, 2 bathrooms
Guest toilet with hand basin and a second separate toilet with hand basin.
1st floor:
separate entrance, anteroom, bathtub, and the 4th bedroom with exit to the 136m² private garden
For storage of bicycles and strollers there is a common room.
The cellar compartment (ca. 10m²) is particularly generous and equipped with neat shelves.
Features:
• entrance area equipped with modern color-damped tiles
• living spaces parquet & stone flooring,
• central house heating system
• modern, fully equipped kitchen
• tasteful modern lamps & Lightning (can be used by the optional)
• elevator
• bathroom with window, bath & shower,
• cable-& satellite TV,
• underground car parking,
• northwest balcony / terrace,
• southwest balcony / terrace,
• bike storage room,
• storage room/ cellar compartment,
• outside sunscreen,
• mansard/ roof location,
• double / multiple glazing window
In the house 2 garage parking spaces (Nr. 21 + 13) are available each for 100,-- EURO + plus 20% vat./ per month.
The apartment is heated by the house central heating that supplies with hot water.
The costs for cold water are included in the stated operating costs.
Heating costs monthly excluding 20% vat.: 259,49,,-- EURO
Hot water monthly excluding 10% vat.: 125,56EURO
Infrastructure:
Transportation (tram 41) at the U6 / Volksoper, at the Lycee Francais de Vienne,
directly at the University am Schottenring.
Only a few steps to the Pötzleinsdorfer Park which is directly connected to the Wienerwald.
360 Tour:
https://360.kalandra.at/view/portal/id/VZZ5H
Der Immobilienmakler erklärt, dass er – entgegen dem in der Immobilienwirtschaft üblichen Geschäftsgebrauch des Doppelmaklers – einseitig nur für den Vermieter tätig ist.
Infrastruktur / Entfernungen
Gesundheit
Arzt <1.000m
Apotheke <1.000m
Klinik <2.000m
Krankenhaus <2.000m
Kinder & Schulen
Schule <500m
Kindergarten <1.000m
Universität <2.500m
Höhere Schule <3.000m
Nahversorgung
Supermarkt <1.000m
Bäckerei <1.000m
Einkaufszentrum <3.000m
Sonstige
Geldautomat <2.000m
Bank <2.000m
Post <1.000m
Polizei <2.500m
Verkehr
Bus <500m
Straßenbahn <1.000m
U-Bahn <3.000m
Bahnhof <3.000m
Autobahnanschluss <5.000m
Angaben Entfernung Luftlinie / Quelle: OpenStreetMap
Objektdaten
Ausstattung
- Zentralheizung
- Personen Fahrstuhl
Dokumente / Links
Zustand
- Zustand
- NEUWERTIG
- Baujahr
- 2000
Flächen
- Anzahl der Zimmer
- 6
- Anzahl der Badezimmer
- 2
- Anzahl der sep. WCs
- 3
- Anzahl der Balkone
- 1
- Anzahl der Terrassen
- 3
- Wohnfläche
- 226m²
- Gartenfläche
- 138m²
- Kellerfläche
- 10m²
- Terrassenfläche
- 3m²
Kosten
- Gesamtmiete Brutto
- € 3.999,58
- Kaution
- € 12.300,00
- Miete
- € 3.032,00
- Betriebskosten
- € 549,20
- Sonstige Kosten
- € 54,78
- Umsatzsteuer
- € 363,60
- Monatl. Gesamtbelastung Brutto
- € 3.999,58
Verwaltung
- Verfügbar ab
- sofort
- Mietdauer
- bis 4,0 Jahre
Wohnungen zum Mieten in Österreich
- Bezirk Gemeindebezirk Währing
- Bezirk Gemeindebezirk Währing
- Bezirk Gemeindebezirk Währing
- Bezirk Gemeindebezirk Hernals
- Bezirk Gemeindebezirk Hernals
- Bezirk Gemeindebezirk Hernals
- Bezirk Gemeindebezirk Döbling
- Bezirk Gemeindebezirk Döbling
- Bezirk Gemeindebezirk Döbling
- Bezirk Gemeindebezirk Ottakring
Wohnungen zum Mieten in Österreich
Wohnungen zum Mieten in Österreich
Andere Besucher suchen nach...
- Grundstücke kaufen in 3400 Weidlingbach
- Wohnungen kaufen in 4663 Laakirchen
- Häuser in 7471 Rechnitz
- Wohnungen in 2410 Hainburg an der Donau
- Häuser kaufen in 2432 Schwadorf
- Wohnungen kaufen in 3002 Purkersdorf
- Häuser in 3150 Wilhelmsburg
- Wohnungen kaufen in 3470 Engelmannsbrunn
- Grundstücke kaufen im Bezirk Mattersburg
- Grundstücke kaufen im Bezirk Gmunden