Exklusive Penthouse-Wohnung mit Fernblick und zwei Terrassen
€ 4.199 / Monat
€ 31 / m²
1180 Wien
Beschreibung
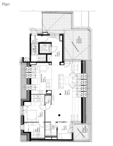
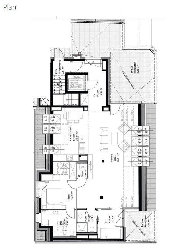
Zur Vermietung steht eine hochwertige Penthouse-Wohnung im 2. Dachgeschoss eines modernen Neubaus in bester Lage von Währing, nahe Gersthof. Die Wohnung besticht durch ihre großzügige Raumaufteilung, lichtdurchflutete Wohnbereiche, zwei weitläufige Terrassen mit Fernblick sowie einen privaten Liftzugang direkt in die Wohnung. Hochwertige Materialien und moderne Ausstattung sorgen für höchsten Wohnkomfort. AUFTEILUNG - Vorraum mit Zugang zur südostseitigen Terrasse - Großzügiger Wohn-/Essbereich mit offener Küche und Zugang zur Terrasse - Schlafzimmer mit en-suite Bad (Badewanne, Bidet, WC) - Weiteres Zimmer mit Glas-Schiebetüre, Ausgang auf die westseitige Terrasse und eigenem Bad (Dampfdusche, WC) - Abstellraum - Kellerabteil - Besonderheiten wie eine markante...
Zur Vermietung steht eine hochwertige Penthouse-Wohnung im 2. Dachgeschoss eines modernen Neubaus in bester Lage von Währing, nahe Gersthof. Die Wohnung besticht durch ihre großzügige Raumaufteilung, lichtdurchflutete Wohnbereiche, zwei weitläufige Terrassen mit Fernblick sowie einen privaten Liftzugang direkt in die Wohnung. Hochwertige Materialien und moderne Ausstattung sorgen für höchsten Wohnkomfort.
AUFTEILUNG
- Vorraum mit Zugang zur südostseitigen Terrasse
- Großzügiger Wohn-/Essbereich mit offener Küche und Zugang zur Terrasse
- Schlafzimmer mit en-suite Bad (Badewanne, Bidet, WC)
- Weiteres Zimmer mit Glas-Schiebetüre, Ausgang auf die westseitige Terrasse und eigenem Bad (Dampfdusche, WC)
- Abstellraum
- Kellerabteil
- Besonderheiten wie eine markante rote Betonsäule und eine Glaskuppel im Wohnbereich verleihen dieser Wohnung einzigartigen Charakter.
AUSSTATTUNG
- Komplettküche mit Markengeräten
- Großflächige Fenster mit elektrischen Außenjalousien
- Fußbodenheizung (Erdwärme)
- Klimaanlage
- Lift mit Direktzugang in die Wohnung
- Hochwertige Feinsteinfliesen
- Zwei großzügige Terrassen (47 m² gesamt)
- Kellerabteil, Kinderwagen- und Fahrradraum
- Garagenplätze im Haus anmietbar
LAGE
Diese Immobilie liegt im beliebten 18. Bezirk, in ruhiger und grüner Umgebung nahe dem Kutschkermarkt.
Die öffentliche Anbindung ist ausgezeichnet – Bus, Straßenbahn, Bahnhof und U-Bahn sind in wenigen Minuten erreichbar.
In der Umgebung befinden sich zahlreiche Naherholungsgebiete wie der Türkenschanzpark, Währinger Park und Pötzleinsdorfer Schlosspark. Einkaufsmöglichkeiten, Cafés und Schulen sind fußläufig erreichbar – ideal für Familien und Berufstätige.
ECKDATEN
Merkmal Beschreibung
Wohnfläche ca. 134,17 m²
Terrassenfläche ca. 47 m²
Etage 2. Dachgeschoss
Zimmer 3
Bäder 2
WCs 2
Abstellraum 1
Heizung Fußbodenheizung (Erdwärme)
Klimatisierung ja
Zustand Erstbezug
Baujahr 2024
Bezug sofort
Mietdauer 10 Jahre befristet
KOSTEN
Gesamtmiete: € 4.199,01
(Miete € 3.498,22 + BK € 319,06 + USt € 381,73)
Provision: bezahlt vom Vermieter
ENERGIEAUSWEIS
HWB: 26,2 kWh/m²a (Klasse B)
fGEE: 0,64 (Klasse A+)
AUFTEILUNG
- Vorraum mit Zugang zur südostseitigen Terrasse
- Großzügiger Wohn-/Essbereich mit offener Küche und Zugang zur Terrasse
- Schlafzimmer mit en-suite Bad (Badewanne, Bidet, WC)
- Weiteres Zimmer mit Glas-Schiebetüre, Ausgang auf die westseitige Terrasse und eigenem Bad (Dampfdusche, WC)
- Abstellraum
- Kellerabteil
- Besonderheiten wie eine markante rote Betonsäule und eine Glaskuppel im Wohnbereich verleihen dieser Wohnung einzigartigen Charakter.
AUSSTATTUNG
- Komplettküche mit Markengeräten
- Großflächige Fenster mit elektrischen Außenjalousien
- Fußbodenheizung (Erdwärme)
- Klimaanlage
- Lift mit Direktzugang in die Wohnung
- Hochwertige Feinsteinfliesen
- Zwei großzügige Terrassen (47 m² gesamt)
- Kellerabteil, Kinderwagen- und Fahrradraum
- Garagenplätze im Haus anmietbar
LAGE
Diese Immobilie liegt im beliebten 18. Bezirk, in ruhiger und grüner Umgebung nahe dem Kutschkermarkt.
Die öffentliche Anbindung ist ausgezeichnet – Bus, Straßenbahn, Bahnhof und U-Bahn sind in wenigen Minuten erreichbar.
In der Umgebung befinden sich zahlreiche Naherholungsgebiete wie der Türkenschanzpark, Währinger Park und Pötzleinsdorfer Schlosspark. Einkaufsmöglichkeiten, Cafés und Schulen sind fußläufig erreichbar – ideal für Familien und Berufstätige.
ECKDATEN
Merkmal Beschreibung
Wohnfläche ca. 134,17 m²
Terrassenfläche ca. 47 m²
Etage 2. Dachgeschoss
Zimmer 3
Bäder 2
WCs 2
Abstellraum 1
Heizung Fußbodenheizung (Erdwärme)
Klimatisierung ja
Zustand Erstbezug
Baujahr 2024
Bezug sofort
Mietdauer 10 Jahre befristet
KOSTEN
Gesamtmiete: € 4.199,01
(Miete € 3.498,22 + BK € 319,06 + USt € 381,73)
Provision: bezahlt vom Vermieter
ENERGIEAUSWEIS
HWB: 26,2 kWh/m²a (Klasse B)
fGEE: 0,64 (Klasse A+)
Objektdaten
Ausstattung
- Unterkellert
- Fußbodenheizung
- Fußbodenheizung
- Fußbodenheizung
Flächen
- Anzahl der Terrassen
- 2
- Anzahl der Zimmer
- 3
- Anzahl der Schlafzimmer
- 2
- Anzahl der Badezimmer
- 2
- Anzahl der sep. WCs
- 2
- Wohnfläche
- 134m²
- Terrassenfläche
- 2m²
Kosten
- Kaltmiete
- € 4.199,01
- Kaution
- € 20.995,05
Wohnungen zum Mieten in Österreich
Wohnungen zum Mieten in Österreich
Wohnungen zum Mieten in Österreich
Andere Besucher suchen nach...
- Grundstücke kaufen in 3400 Weidlingbach
- Wohnungen kaufen in 4663 Laakirchen
- Häuser in 7471 Rechnitz
- Wohnungen in 2410 Hainburg an der Donau
- Häuser kaufen in 2432 Schwadorf
- Wohnungen kaufen in 3002 Purkersdorf
- Häuser in 3150 Wilhelmsburg
- Wohnungen kaufen in 3470 Engelmannsbrunn
- Grundstücke kaufen im Bezirk Mattersburg
- Grundstücke kaufen im Bezirk Gmunden