Zentrumsnahe 5 Zimmerwohnung mit Balkon - Stilaltbau - Nähe Währingerpark
Beschreibung
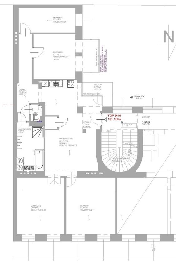
Zur Vermietung gelangt eine ca. 131qm große Wohnung in zentrumsnaher Lage des 19.Bezirks Nähe Nussdorfer Strasse und Billrothstrasse. Die gut aufgeteilte Wohnung befindet sich im 1.Stock eines schönen Stilaltbaus mit gegliederter Fassade.
Die Wohnung besticht mit typischen Altbauelementen wie hohen Räumen, Flügeltüren und Parkettböden.
Da die Wohnung noch bis Ende Mai vermietet ist gibt es leider noch keine aktuellen Fotos der Wohnung. Besichtigungen können aber gerne auch vorab schon vereinbart werden.
Aufteilung: - offener Eingangsbereich übergehend in die - große Wohnküche - 4 Zimmer (getrennt begehbar) - Bad mit Dusche, Wanne und WM-Anschluss - separate Toilette - Balkon - Abstellraum
...Zur Vermietung gelangt eine ca. 131qm große Wohnung in zentrumsnaher Lage des 19.Bezirks Nähe Nussdorfer Strasse und Billrothstrasse. Die gut aufgeteilte Wohnung befindet sich im 1.Stock eines schönen Stilaltbaus mit gegliederter Fassade.
Die Wohnung besticht mit typischen Altbauelementen wie hohen Räumen, Flügeltüren und Parkettböden.
Da die Wohnung noch bis Ende Mai vermietet ist gibt es leider noch keine aktuellen Fotos der Wohnung. Besichtigungen können aber gerne auch vorab schon vereinbart werden.
Aufteilung:
- offener Eingangsbereich übergehend in die
- große Wohnküche
- 4 Zimmer (getrennt begehbar)
- Bad mit Dusche, Wanne und WM-Anschluss
- separate Toilette
- Balkon
- Abstellraum
Ausstattung:
- Parkettboden
- Flügeltüren
- hohe Räume
Kontaktieren Sie uns gerne jederzeit für nähere Informationen oder einen Besichtigungstermin.
Ich freue mich auf Ihre Nachricht!
Sie sind noch nicht fündig geworden? Hinterlegen Sie gerne Ihren Suchwunsch unter folgendem Link und wir informieren Sie sobald wir etwas passendes anbieten können.
Suchagent anlegen - https://imfora.service.immo/registrieren/de
Wir weisen darauf hin, dass zwischen dem Vermittler und dem zu vermittelnden Dritten ein familiäres oder wirtschaftliches Naheverhältnis besteht.
Der Immobilienmakler erklärt, dass er – entgegen dem in der Immobilienwirtschaft üblichen Geschäftsgebrauch des Doppelmaklers – einseitig nur für den Vermieter tätig ist.
Infrastruktur / Entfernungen
Gesundheit
Arzt <500m
Apotheke <500m
Klinik <500m
Krankenhaus <1.000m
Kinder & Schulen
Schule <500m
Kindergarten <500m
Universität <500m
Höhere Schule <500m
Nahversorgung
Supermarkt <500m
Bäckerei <500m
Einkaufszentrum <2.500m
Sonstige
Geldautomat <500m
Bank <500m
Post <1.000m
Polizei <1.000m
Verkehr
Bus <500m
U-Bahn <500m
Straßenbahn <500m
Bahnhof <500m
Autobahnanschluss <1.500m
Angaben Entfernung Luftlinie / Quelle: OpenStreetMap
Objektdaten
Zustand
- Zustand
- GEPFLEGT
- Alter
- ALTBAU
- HWB
- 183.1 kWh/m² pro Jahr
- Klasse HWB
- E
- fGEE
- 2.56
- Klasse fGEE
- E
Flächen
- Anzahl der Zimmer
- 5
- Anzahl der Badezimmer
- 1
- Anzahl der sep. WCs
- 1
- Anzahl der Balkone
- 1
- Wohnfläche
- 131m²
Kosten
- Gesamtmiete Brutto
- € 2.549,80
- Miete
- € 2.022,73
- Betriebskosten
- € 295,27
- Umsatzsteuer
- € 231,80
- Monatl. Gesamtbelastung Brutto
- € 2.549,80
Verwaltung
- Mietdauer
- bis 7,0 Jahre
Wohnungen zum Mieten in Österreich
- Bezirk Gemeindebezirk Döbling
- Bezirk Gemeindebezirk Döbling
- Bezirk Gemeindebezirk Döbling
- Bezirk Gemeindebezirk Währing
- Bezirk Gemeindebezirk Währing
- Bezirk Gemeindebezirk Währing
- Bezirk Gemeindebezirk Alsergrund
- Bezirk Gemeindebezirk Alsergrund
- Bezirk Gemeindebezirk Alsergrund
- Bezirk Gemeindebezirk Hernals
Wohnungen zum Mieten in Österreich
Wohnungen zum Mieten in Österreich
Andere Besucher suchen nach...
- Grundstücke kaufen in 3400 Weidlingbach
- Wohnungen kaufen in 4663 Laakirchen
- Häuser in 7471 Rechnitz
- Wohnungen in 2410 Hainburg an der Donau
- Häuser kaufen in 2432 Schwadorf
- Wohnungen kaufen in 3002 Purkersdorf
- Häuser in 3150 Wilhelmsburg
- Wohnungen kaufen in 3470 Engelmannsbrunn
- Grundstücke kaufen im Bezirk Mattersburg
- Grundstücke kaufen im Bezirk Gmunden