Der perfekte Terrassen-Traum mit Schrankraum und Klimaanlage
€ 989 / Monat
€ 20 / m²
1210 Wien
-
2021
-
01.07.2026
Beschreibung
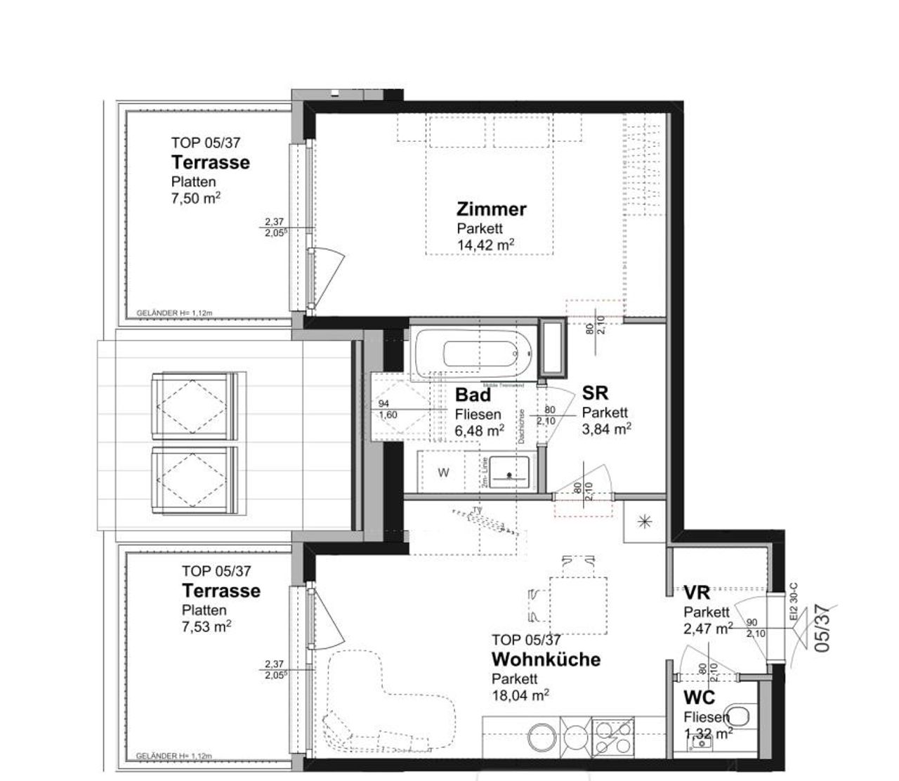
2-Zimmer Neubauwohnung (46,57m²)! Große Außenfläche (15,03m²) Top-Ausstattung! Optimale Infrastruktur!! Koloniestraße beim FAC - Platz! RAUMAUFTEILUNG IN STICHWORTEN • Vorraum • Wohnzimmer mit offener Küche • Schlafzimmer mit Schrankraum • Bad mit Badewanne inkl. Duschmöglichkeit, Waschtisch, Waschmaschinenanschluss und Handtuchheizkörper • WC mit Waschbecken • 2 Terrassen • Kellerabteil HIGHLIGHTS UND AUSSTATTUNGSMERKMALE • Fußbodenheizung (Gaszentralheizung, keine Therme!) • jeder Raum verfügt über ein Raumthermostat • Außenrollläden • Sicherheitswohnungseingangstüren • hochwertiger Parkettboden (Eiche) • EWE-Küche mit hochwertigen Elektrogeräten (E-Herd, Cerankochfeld, Geschirrspüler, Kühl-Gefrier-Kombination, Dunstabzug und Spüle) • hochwertige Ausstattung auch im Badezimmer / WC (Laufen, Grohe), Badwannen mit Glasduschwänden • sehr gute Raumaufteilung •...
2-Zimmer Neubauwohnung (46,57m²)! Große Außenfläche (15,03m²) Top-Ausstattung! Optimale Infrastruktur!!
Koloniestraße beim FAC - Platz!
RAUMAUFTEILUNG IN STICHWORTEN
• Vorraum
• Wohnzimmer mit offener Küche
• Schlafzimmer mit Schrankraum
• Bad mit Badewanne inkl. Duschmöglichkeit, Waschtisch, Waschmaschinenanschluss und Handtuchheizkörper
• WC mit Waschbecken
• 2 Terrassen
• Kellerabteil
HIGHLIGHTS UND AUSSTATTUNGSMERKMALE
• Fußbodenheizung (Gaszentralheizung, keine Therme!)
• jeder Raum verfügt über ein Raumthermostat
• Außenrollläden
• Sicherheitswohnungseingangstüren
• hochwertiger Parkettboden (Eiche)
• EWE-Küche mit hochwertigen Elektrogeräten (E-Herd, Cerankochfeld, Geschirrspüler, Kühl-Gefrier-Kombination, Dunstabzug und Spüle)
• hochwertige Ausstattung auch im Badezimmer / WC (Laufen, Grohe), Badwannen mit Glasduschwänden
• sehr gute Raumaufteilung
• effiziente Grundrisse
• frostsicherer Wasseranschluss auf jeder Außenfläche
• Paketboxen im Eingangsbereich
• zentrale Schließanlage
• mehrere Fahrrad- und Kinderwagenabstellräume
• Waschküche mit 2 hochwertigen Waschmaschinen und Trocknern mit NFC-Bezahlsystem
• Pucksystem (digitales Schwarzes Brett) inkl. Hausverwaltungs-App
• großzügige Aufzüge
• Kleinkinderspielplatz mit Sandkiste und Sitzgelegenheit
• Gemeinschafts-/Jugendspielraum (Stiege 4) mit eigener Terrasse
• sehr gute Energiekennzahlen
• optimale Infrastruktur
GARAGENPLÄTZE DIREKT IM HAUS nach Verfügbarkeit
• € 102,00 brutto pro Monat:
• Kaution € 310,00
• Mindestlaufzeit 6 Monate, danach beidseitig monatlich kündbar
UMGEBUNG UND INFRASTRUKTUR
• diverse Supermärkte in Gehnähe (Hofer, Billa, Interspar etc.)
• Trillerpark & Shopping Center Nord mit unzähligen Einkaufsmöglichkeiten zu Fuß erreichbar
• Freizeiteinrichtungen: Kino, Fitnessstudio, Fußball, Tennis etc.
• Naherholungsgebiet Donauinsel
• gute Erreichbarkeit in die Innenstadt
SEHR GUTE ÖFFENTLICHE VERKEHRSANBINDUNG
• S-Bahn: Jedlersdorf (<5min)
• WIEN MITTE in 17min (S3)
• Autobuslinie: 36A, 36B
• Straßenbahnlinie: 26
• Regionalbus: 850
• U-Bahn: U6 Floridsdorf (ca. 12min mit Linie 26)
ERSTZAHLUNG
• 3 BMM Kaution
• erste Monatsmiete im Voraus
• Vertragserrichtungsgebühr EUR 349 bto
ZUSÄTZLICHE MONATLICHE KOSTEN
• Wasser, Heizung... werden von der ISTA nach tatsächlichem Verbrauch abgerechnet
• Strom - wird direkt nach Verbrauch abgerechnet (Wien Energie bzw. Netznutzung Wiener Netze)
• ggf. TV/Internet, Haushaltsversicherung, GIS, o.Ä.
VERTRAGSBEDINGUNGEN
• Befristung: 5 Jahre
• Kündigungsverzicht: 12 Monate (mieterseitig)
• Kündigungsfrist: 3 Monate
• gefordertes Mindestnettoeinkommen (Haushalt): EUR 2500,-
BENÖTIGTE UNTERLAGEN FÜR ANMIETUNG
• Mietanbot (Vorlage erhalten Sie von uns)
• Selbstauskunft (Vorlage erhalten Sie von uns)
• Kopie Reisepass oder Personalausweis
• Kopie Bankomatkarte (nur IBAN relevant)
• Einkommensnachweis (letzte 3 Lohnzettel, Einkommenssteuerbescheid oder bei Berufswechsel unterzeichneter Dienstvertrag)
• Meldezettel
• Haushaltsrechnung (Vorlage erhalten Sie von uns)
Koloniestraße beim FAC - Platz!
RAUMAUFTEILUNG IN STICHWORTEN
• Vorraum
• Wohnzimmer mit offener Küche
• Schlafzimmer mit Schrankraum
• Bad mit Badewanne inkl. Duschmöglichkeit, Waschtisch, Waschmaschinenanschluss und Handtuchheizkörper
• WC mit Waschbecken
• 2 Terrassen
• Kellerabteil
HIGHLIGHTS UND AUSSTATTUNGSMERKMALE
• Fußbodenheizung (Gaszentralheizung, keine Therme!)
• jeder Raum verfügt über ein Raumthermostat
• Außenrollläden
• Sicherheitswohnungseingangstüren
• hochwertiger Parkettboden (Eiche)
• EWE-Küche mit hochwertigen Elektrogeräten (E-Herd, Cerankochfeld, Geschirrspüler, Kühl-Gefrier-Kombination, Dunstabzug und Spüle)
• hochwertige Ausstattung auch im Badezimmer / WC (Laufen, Grohe), Badwannen mit Glasduschwänden
• sehr gute Raumaufteilung
• effiziente Grundrisse
• frostsicherer Wasseranschluss auf jeder Außenfläche
• Paketboxen im Eingangsbereich
• zentrale Schließanlage
• mehrere Fahrrad- und Kinderwagenabstellräume
• Waschküche mit 2 hochwertigen Waschmaschinen und Trocknern mit NFC-Bezahlsystem
• Pucksystem (digitales Schwarzes Brett) inkl. Hausverwaltungs-App
• großzügige Aufzüge
• Kleinkinderspielplatz mit Sandkiste und Sitzgelegenheit
• Gemeinschafts-/Jugendspielraum (Stiege 4) mit eigener Terrasse
• sehr gute Energiekennzahlen
• optimale Infrastruktur
GARAGENPLÄTZE DIREKT IM HAUS nach Verfügbarkeit
• € 102,00 brutto pro Monat:
• Kaution € 310,00
• Mindestlaufzeit 6 Monate, danach beidseitig monatlich kündbar
UMGEBUNG UND INFRASTRUKTUR
• diverse Supermärkte in Gehnähe (Hofer, Billa, Interspar etc.)
• Trillerpark & Shopping Center Nord mit unzähligen Einkaufsmöglichkeiten zu Fuß erreichbar
• Freizeiteinrichtungen: Kino, Fitnessstudio, Fußball, Tennis etc.
• Naherholungsgebiet Donauinsel
• gute Erreichbarkeit in die Innenstadt
SEHR GUTE ÖFFENTLICHE VERKEHRSANBINDUNG
• S-Bahn: Jedlersdorf (<5min)
• WIEN MITTE in 17min (S3)
• Autobuslinie: 36A, 36B
• Straßenbahnlinie: 26
• Regionalbus: 850
• U-Bahn: U6 Floridsdorf (ca. 12min mit Linie 26)
ERSTZAHLUNG
• 3 BMM Kaution
• erste Monatsmiete im Voraus
• Vertragserrichtungsgebühr EUR 349 bto
ZUSÄTZLICHE MONATLICHE KOSTEN
• Wasser, Heizung... werden von der ISTA nach tatsächlichem Verbrauch abgerechnet
• Strom - wird direkt nach Verbrauch abgerechnet (Wien Energie bzw. Netznutzung Wiener Netze)
• ggf. TV/Internet, Haushaltsversicherung, GIS, o.Ä.
VERTRAGSBEDINGUNGEN
• Befristung: 5 Jahre
• Kündigungsverzicht: 12 Monate (mieterseitig)
• Kündigungsfrist: 3 Monate
• gefordertes Mindestnettoeinkommen (Haushalt): EUR 2500,-
BENÖTIGTE UNTERLAGEN FÜR ANMIETUNG
• Mietanbot (Vorlage erhalten Sie von uns)
• Selbstauskunft (Vorlage erhalten Sie von uns)
• Kopie Reisepass oder Personalausweis
• Kopie Bankomatkarte (nur IBAN relevant)
• Einkommensnachweis (letzte 3 Lohnzettel, Einkommenssteuerbescheid oder bei Berufswechsel unterzeichneter Dienstvertrag)
• Meldezettel
• Haushaltsrechnung (Vorlage erhalten Sie von uns)
| Angaben gemäß gesetzlichem Erfordernis: | |||
| Miete | € | 801,3 | zzgl 10% USt. |
| Betriebskosten | € | 97,8 | zzgl 10% USt. |
| Umsatzsteuer | € | 89,91 | |
| ------------------------------------------------------------------ | |||
| Gesamtbetrag | € | 989,01 | |
| ------------------------------------------------------------------ | |||
| Heizwärmebedarf: | 32.0 kWh/(m²a) | ||
| Klasse Heizwärmebedarf: | B | ||
Objektdaten
Ausstattung
- Wasch-/Trockenraum
- Unterkellert
- Fußbodenheizung
- Personen Fahrstuhl
- Niedrigenergie
- Bus
- Fußbodenheizung
- Gegensprechanlage
- Geschirrspüler
- Glaskeramikfeld
- Küche Möbliert
- Sonstiges
- Schnellbahn
- Sonnenschutz
- Straßenbahn
- U-Bahn
Zustand
- Zustand
- GEPFLEGT
- Baujahr
- 2021
- Alter
- NEUBAU
Flächen
- Anzahl der Zimmer
- 2
- Anzahl der Badezimmer
- 1
- Anzahl der sep. WCs
- 1
- Anzahl der Terrassen
- 1
- Wohnfläche
- 50m²
- Terrassenfläche
- 1m²
Kosten
- Kaltmiete
- € 989,01
- Nebenkosten
- € 107,58
- Kaution
- € 3.000,00
- Betriebskosten Brutto
- € 107,58
Verwaltung
- Verfügbar ab
- 01.07.2026
- Mietdauer
- bis 5,0 Jahre
Wohnungen zum Mieten in Österreich
Wohnungen zum Mieten in Österreich
Wohnungen zum Mieten in Österreich
Andere Besucher suchen nach...
- Grundstücke kaufen in 3400 Weidlingbach
- Wohnungen kaufen in 4663 Laakirchen
- Häuser in 7471 Rechnitz
- Wohnungen in 2410 Hainburg an der Donau
- Häuser kaufen in 2432 Schwadorf
- Wohnungen kaufen in 3002 Purkersdorf
- Häuser in 3150 Wilhelmsburg
- Wohnungen kaufen in 3470 Engelmannsbrunn
- Grundstücke kaufen im Bezirk Mattersburg
- Grundstücke kaufen im Bezirk Gmunden