Großzügige 3-Zimmer-Wohnung mit Balkon – modernes Wohnen mit Komfort
Beschreibung
Liebe Interessentin, lieber Interessent,
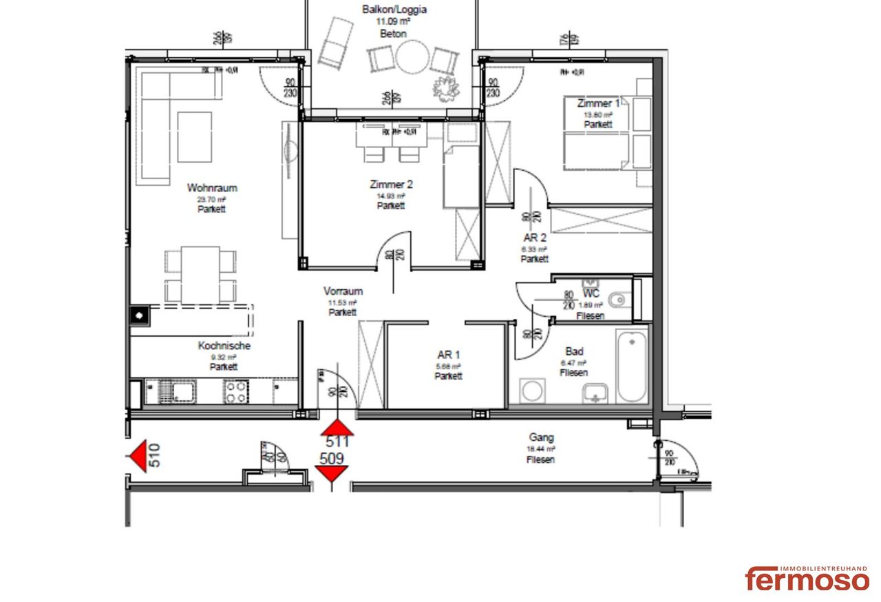
diese hochwertig ausgestattete 3-Zimmer-Wohnung im 1. Obergeschoss überzeugt mit einer großzügigen Nutzfläche von ca. 99,21 m² sowie einem Balkon mit ca. 11,09 m² und bietet somit ausreichend Platz für Familien oder Paare mit Homeoffice-Bedarf
.
Die durchdachte Raumaufteilung und moderne Ausstattung sorgen für ein angenehmes Wohngefühl in einem zeitgemäßen Neubau.
🏡 Raumaufteilung
-
Großzügiger Wohnbereich mit integrierter Kochnische
-
Drei separat begehbare Zimmer – ideal als Schlaf-, Kinder- oder Arbeitszimmer
-
Badezimmer mit moderner Ausstattung
-
Separates WC
-
Zwei Abstellräume für zusätzlichen Stauraum
-
Vorraum mit...
Liebe Interessentin, lieber Interessent,
diese hochwertig ausgestattete 3-Zimmer-Wohnung im 1. Obergeschoss überzeugt mit einer großzügigen Nutzfläche von ca. 99,21 m² sowie einem Balkon mit ca. 11,09 m² und bietet somit ausreichend Platz für Familien oder Paare mit Homeoffice-Bedarf
.
Die durchdachte Raumaufteilung und moderne Ausstattung sorgen für ein angenehmes Wohngefühl in einem zeitgemäßen Neubau.
🏡 Raumaufteilung
Großzügiger Wohnbereich mit integrierter Kochnische
Drei separat begehbare Zimmer – ideal als Schlaf-, Kinder- oder Arbeitszimmer
Badezimmer mit moderner Ausstattung
Separates WC
Zwei Abstellräume für zusätzlichen Stauraum
Vorraum mit optimaler Erschließung aller Räume
Balkon mit ca. 11,09 m²
Ein Kellerabteil ist ebenfalls vorhanden
.
✨ Ausstattung & Details
Neubau
Fernwärme
Fußbodenheizung
Einbauküche inkl. Geräte
Befristung: 5 Jahre
Diese Wohnung bietet eine ideale Kombination aus Großzügigkeit, moderner Bauweise und praktischer Raumgestaltung – perfekt für alle, die urbanes Wohnen mit Komfort verbinden möchten.
📞 Kontakt:
Dean Banovic
📧 db@fermoso.at
📱 +43 676 926 15 29
Noch nichts gefunden? Wir informieren Sie über geeignete Immobilienangebote noch vor allen anderen.
Legen Sie jetzt Ihren individuellen Suchagenten unter folgendem Link an. Wir schicken Ihnen passende Immobilien exklusiv vorab zu.
Suchagent anlegen - https://fermoso-immobilientreuhand.service.immo/registrieren/de
Wir weisen darauf hin, dass zwischen dem Vermittler und dem zu vermittelnden Dritten ein familiäres oder wirtschaftliches Naheverhältnis besteht.
Der Immobilienmakler erklärt, dass er – entgegen dem in der Immobilienwirtschaft üblichen Geschäftsgebrauch des Doppelmaklers – einseitig nur für den Vermieter tätig ist.
Infrastruktur / Entfernungen
Gesundheit
Arzt <500m
Apotheke <1.500m
Klinik <2.000m
Krankenhaus <2.000m
Kinder & Schulen
Schule <1.000m
Kindergarten <500m
Universität <1.000m
Höhere Schule <2.000m
Nahversorgung
Supermarkt <500m
Bäckerei <500m
Einkaufszentrum <2.000m
Sonstige
Geldautomat <1.500m
Bank <2.000m
Post <1.000m
Polizei <1.500m
Verkehr
Bus <500m
U-Bahn <2.000m
Straßenbahn <1.500m
Bahnhof <1.500m
Autobahnanschluss <2.500m
Angaben Entfernung Luftlinie / Quelle: OpenStreetMap
Objektdaten
Ausstattung
- Fliesenboden
- Parkettboden
- Fern Befeuerung
Zustand
- Zustand
- GEPFLEGT
- Alter
- NEUBAU
- HWB
- 33.2 kWh/m² pro Jahr
- Klasse HWB
- B
- fGEE
- 0.78
- Klasse fGEE
- A
Flächen
- Anzahl der Zimmer
- 3.5
- Anzahl der Badezimmer
- 1
- Anzahl der sep. WCs
- 1
- Anzahl der Logia
- 1
- Nutzfläche
- 99m²
Kosten
- Gesamtmiete Brutto
- € 1.712,22
- Miete
- € 1.317,18
- Betriebskosten
- € 239,38
- Heizkosten
- € 72,32
- Umsatzsteuer
- € 170,12
- Monatl. Gesamtbelastung Brutto
- € 1.799,00
Wohnungen zum Mieten in Österreich
- Bezirk Gemeindebezirk Floridsdorf
- Bezirk Gemeindebezirk Floridsdorf
- Bezirk Gemeindebezirk Floridsdorf
- Bezirk Gemeindebezirk Döbling
- Bezirk Gemeindebezirk Döbling
- Bezirk Gemeindebezirk Döbling
- Bezirk Gemeindebezirk Leopoldstadt
- Bezirk Gemeindebezirk Leopoldstadt
- Bezirk Gemeindebezirk Leopoldstadt
- Bezirk Gemeindebezirk Alsergrund
Wohnungen zum Mieten in Österreich
Wohnungen zum Mieten in Österreich
Andere Besucher suchen nach...
- Grundstücke kaufen in 3400 Weidlingbach
- Wohnungen kaufen in 4663 Laakirchen
- Häuser in 7471 Rechnitz
- Wohnungen in 2410 Hainburg an der Donau
- Häuser kaufen in 2432 Schwadorf
- Wohnungen kaufen in 3002 Purkersdorf
- Häuser in 3150 Wilhelmsburg
- Wohnungen kaufen in 3470 Engelmannsbrunn
- Grundstücke kaufen im Bezirk Mattersburg
- Grundstücke kaufen im Bezirk Gmunden