++NEU++ Hochwertige 3-Zimmer Neubauwohnung mit optimalem Grundriss! ++Luftwärmepumpe++
-
2023
-
01.05.2026
Beschreibung
Zur befristeten Vermietung gelangt diese helle, toll aufgeteilte und sehr hochwertig ausgestattete ca. 55 m² große 3-Zimmer Neubauwohnung in toller Lage des 22. Wiener Gemeindebezirks!
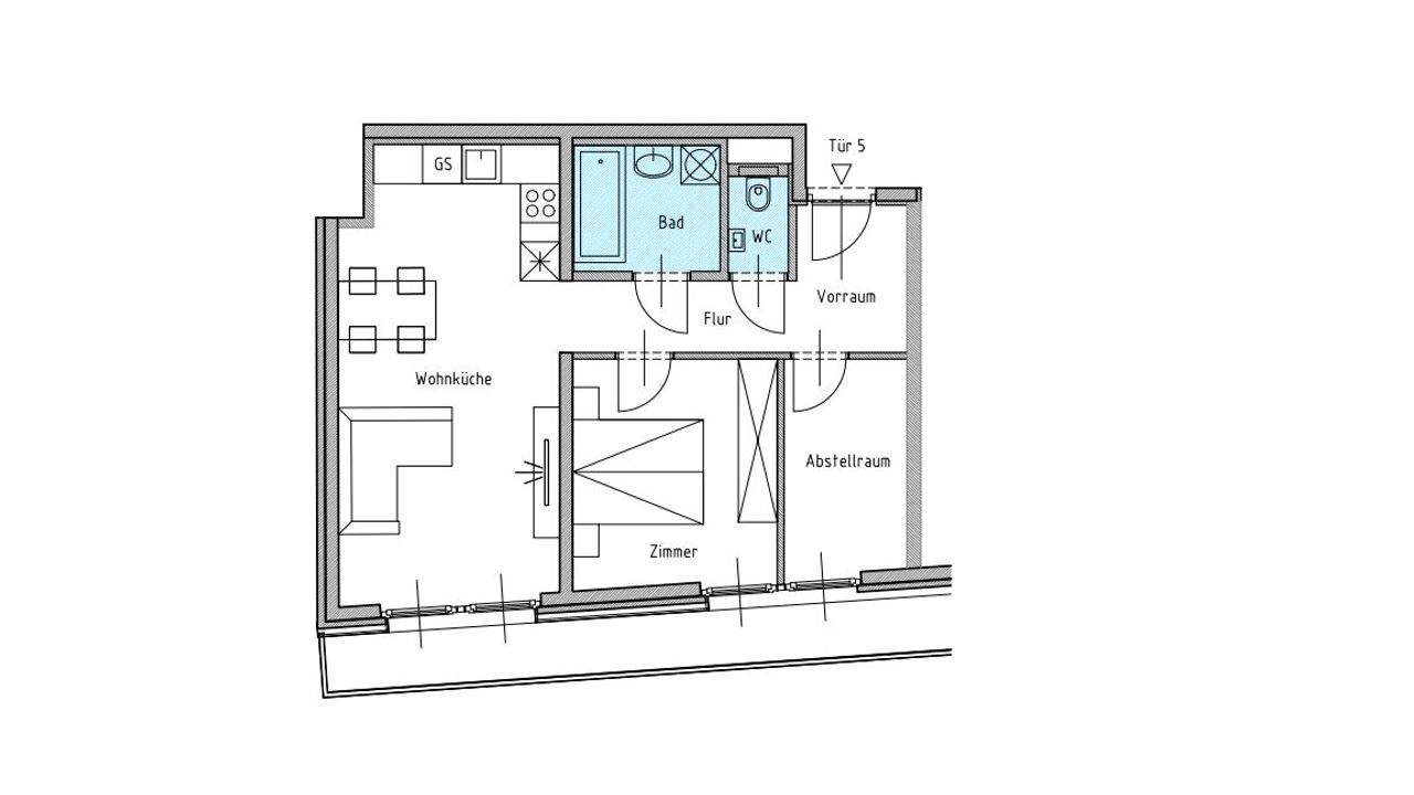
Raumaufteilung: TOP 5, 1. Obergeschoss, straßenseitig ausgerichtet
- Vorraum
- Badezimmer
- getrenntes WC
- Kabinett
- Wohnküche
- Schlafzimmer
(siehe Plan u. Fotos vor Erstvermietung)
Ausstattung:
In allen Zimmern wurde ein wunderschöner Parkettboden verlegt, die Nassräume wurden hochwertig verfliest und mit Markenarmaturen ausgestattet. Alle Wohnungen werden mittels Fußbodenheizung (Luftwärmepumpe) beheizt, sodass man zukünftig von Gas unabhängig ist.
Gebäude:
Es handelt sich um einen Neubau mit zwei Geschäftslokalen auf welchem zwei Geschosse aufgebaut wurden (mit Lift). Im Hintertrakt der...
Zur befristeten Vermietung gelangt diese helle, toll aufgeteilte und sehr hochwertig ausgestattete ca. 55 m² große 3-Zimmer Neubauwohnung in toller Lage des 22. Wiener Gemeindebezirks!
Raumaufteilung: TOP 5, 1. Obergeschoss, straßenseitig ausgerichtet
- Vorraum
- Badezimmer
- getrenntes WC
- Kabinett
- Wohnküche
- Schlafzimmer
(siehe Plan u. Fotos vor Erstvermietung)
Ausstattung:
In allen Zimmern wurde ein wunderschöner Parkettboden verlegt, die Nassräume wurden hochwertig verfliest und mit Markenarmaturen ausgestattet. Alle Wohnungen werden mittels Fußbodenheizung (Luftwärmepumpe) beheizt, sodass man zukünftig von Gas unabhängig ist.
Gebäude:
Es handelt sich um einen Neubau mit zwei Geschäftslokalen auf welchem zwei Geschosse aufgebaut wurden (mit Lift). Im Hintertrakt der Liegenschaft befinden sich vier hochwertige Reihenhäuser.
Lage/Infrastruktur:
Das Projekt befindet sich im Herzen des 22. Wiener Gemeindebezirks. Direkt vor der Haustür befindet sich ein Kreuzungspunkt der Buslinien 26A, 92A,97A, N26 und bietet somit eine sehr gute Anbindung. Die Umgebung ist auch als Wohn- und Einzugsgebiet optimal gelegen und zählt zu den beliebtesten Lagen des 22. Bezirks.
Preis:
Die Miete (inkl. BK und USt) für dieses Objekt beträgt: 990,00 €
Hinweis: Monatliche Kosten für Strom, Heizung sowie Wasser sind nicht inkludiert und müssen gesondert bezahlt werden.
Mietbeginn: 01.05.2026
Kaution: 5 Monatsmieten
Mietdauer: 5 Jahre
Provisionsfrei!
Sollten Sie Fragen haben oder einen persönlichen Besichtigungstermin wünschen, zögern Sie bitte nicht mich zu kontaktieren.
Zur Vereinbarung eines Besichtigungstermins lassen Sie uns bitte jedenfalls eine E-Mailanfrage zukommen!
Das Kleingedruckte:
Wir weisen ausdrücklich auf unser wirtschaftliches Naheverhältnis mit dem Abgeber/ der Abgeberin hin!
Wir sind in unserer Position als Vermittler als Doppelmakler tätig.
Alle hier veröffentlichen Informationen basieren auf den uns von dem Abgeber/ der Abgeberin zur Verfügung gestellten Informationen und wurden nicht selbst erhoben.
Unsere Allgemeinen Geschäftsbedingungen können Sie sowohl in dem Ihnen zugesandten Expose einsehen als auch auf unserer Homepage. Wir weisen ausdrücklich darauf hin, dass diese AGBs Vertragsinhalt werden.
Der Schutz von personenbezogenen Daten ist uns wichtig und auch gesetzlich gefordert. Die Verarbeitung Ihrer personenbezogenen Daten erfolgt nach den datenschutzrechtlichen Bestimmungen. Auf unserer Homepage (unter Datenschutzinformation) finden Sie eine Übersicht die Sie über die wichtigsten Aspekte der Verarbeitung personenbezogener Daten informieren soll.
Irrtum und Änderungen vorbehalten.
Wir weisen darauf hin, dass zwischen dem Vermittler und dem zu vermittelnden Dritten ein familiäres oder wirtschaftliches Naheverhältnis besteht.
Der Immobilienmakler erklärt, dass er – entgegen dem in der Immobilienwirtschaft üblichen Geschäftsgebrauch des Doppelmaklers – einseitig nur für den Vermieter tätig ist.
Infrastruktur / Entfernungen
Gesundheit
Arzt <500m
Apotheke <500m
Klinik <1.500m
Krankenhaus <2.000m
Kinder & Schulen
Schule <500m
Kindergarten <500m
Universität <2.000m
Höhere Schule <2.000m
Nahversorgung
Supermarkt <500m
Bäckerei <500m
Einkaufszentrum <3.500m
Sonstige
Geldautomat <500m
Bank <500m
Post <1.000m
Polizei <1.000m
Verkehr
Bus <500m
U-Bahn <1.000m
Straßenbahn <500m
Bahnhof <1.000m
Autobahnanschluss <3.000m
Angaben Entfernung Luftlinie / Quelle: OpenStreetMap
Objektdaten
Ausstattung
- Bad mit Badewanne
- Einbauküche
- Fliesenboden
- Parkettboden
- Fußbodenheizung
- Luftwärmepumpe
- Personen Fahrstuhl
Zustand
- Zustand
- GEPFLEGT
- Baujahr
- 2023
- Alter
- NEUBAU
- HWB
- 47.6 kWh/m² pro Jahr
- fGEE
- 0.8
Flächen
- Anzahl der Zimmer
- 3
- Anzahl der Badezimmer
- 1
- Anzahl der sep. WCs
- 1
- Wohnfläche
- 55m²
Kosten
- Gesamtmiete Brutto
- € 990,00
- Miete
- € 900,00
- Umsatzsteuer
- € 90,00
- Monatl. Gesamtbelastung Brutto
- € 990,00
Verwaltung
- Verfügbar ab
- 01.05.2026
- Mietdauer
- bis 5,0 Jahre
Wohnungen zum Mieten in Österreich
- Bezirk Gemeindebezirk Donaustadt
- Bezirk Gemeindebezirk Donaustadt
- Bezirk Gemeindebezirk Donaustadt
- Bezirk Gemeindebezirk Floridsdorf
- Bezirk Gemeindebezirk Floridsdorf
- Bezirk Gemeindebezirk Floridsdorf
- Bezirk Gemeindebezirk Leopoldstadt
- Bezirk Gemeindebezirk Leopoldstadt
- Bezirk Gemeindebezirk Leopoldstadt
- Bezirk Gemeindebezirk Landstrasse
Wohnungen zum Mieten in Österreich
Wohnungen zum Mieten in Österreich
Andere Besucher suchen nach...
- Grundstücke kaufen in 3400 Weidlingbach
- Wohnungen kaufen in 4663 Laakirchen
- Häuser in 7471 Rechnitz
- Wohnungen in 2410 Hainburg an der Donau
- Häuser kaufen in 2432 Schwadorf
- Wohnungen kaufen in 3002 Purkersdorf
- Häuser in 3150 Wilhelmsburg
- Wohnungen kaufen in 3470 Engelmannsbrunn
- Grundstücke kaufen im Bezirk Mattersburg
- Grundstücke kaufen im Bezirk Gmunden