Wunderschöne sonnendurchflutete Wohnung im 23. Bezirk!!! 360° Grad Besichtigung!!
-
15.01.26
Beschreibung
Lassen Sie Sich von unserer 360°- 3D Besichtigung überzeugen - Von der Parkbank, vom Sofa oder auch vom Bett, gemütlich über Handy, Tablett, Computer oder Ihrem Internetfähigen Fernseher.
360°- 3D Besichtigung Link: https://my.matterport.com/show/?m=853tUZjyZ1V
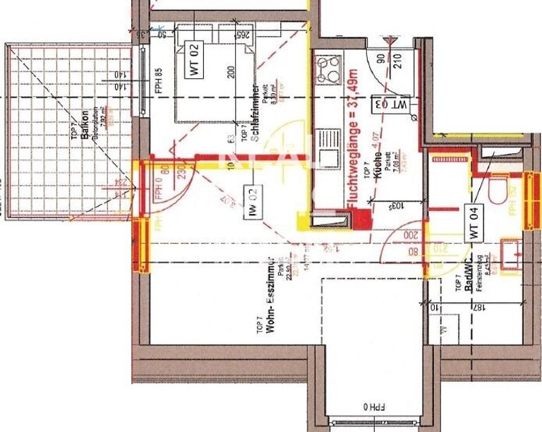
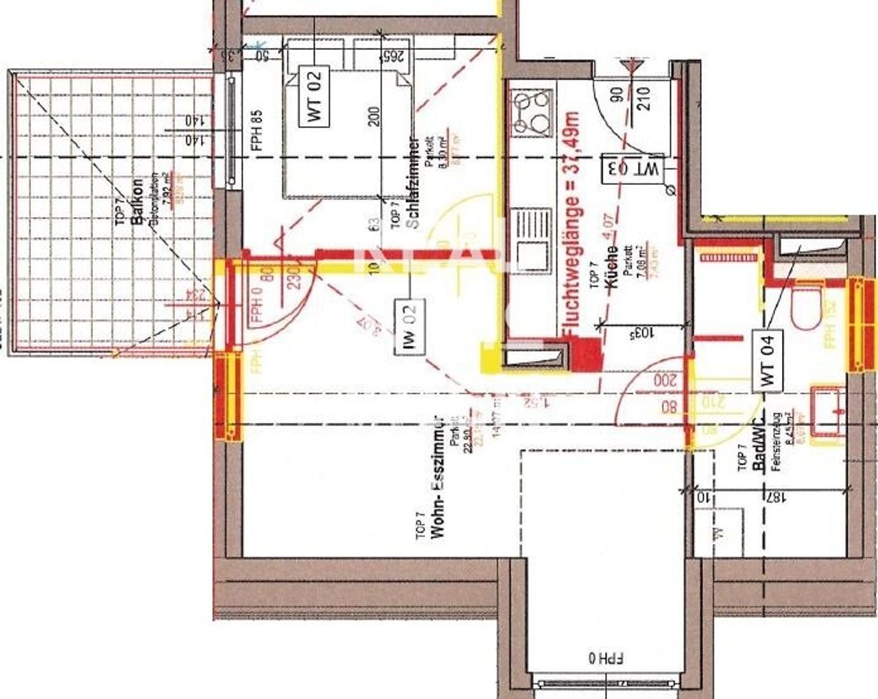
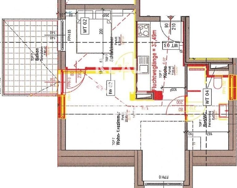
Zur Vermietung gelangt eine sonnendurchflutete Wohnung in einer ruhig gelegene Lage im 23. Bezirk.
Die Wohnung verfügt über eine hochmoderne Küche, Parkett Böden und geflieste Bäder.
Heizkosten und Wasser Akonto Incl. MWST. 189,00€ werden nach Bedarf abgerechnet.
Die Lage dieses Neubaues ist einfach Ideal. Durch die direkte Nähe zur Ubahn, ist man in kurzer Zeit in ganz Wien unterwegs, der Kellerberg ist Fußläufig erreichbar und...
Lassen Sie Sich von unserer 360°- 3D Besichtigung überzeugen - Von der Parkbank, vom Sofa oder auch vom Bett, gemütlich über Handy, Tablett, Computer oder Ihrem Internetfähigen Fernseher.
360°- 3D Besichtigung Link: https://my.matterport.com/show/?m=853tUZjyZ1V
Zur Vermietung gelangt eine sonnendurchflutete Wohnung in einer ruhig gelegene Lage im 23. Bezirk.
Die Wohnung verfügt über eine hochmoderne Küche, Parkett Böden und geflieste Bäder.
Heizkosten und Wasser Akonto Incl. MWST. 189,00€ werden nach Bedarf abgerechnet.
Die Lage dieses Neubaues ist einfach Ideal. Durch die direkte Nähe zur Ubahn, ist man in kurzer Zeit in ganz Wien unterwegs, der Kellerberg ist Fußläufig erreichbar und in wenigen Minuten kommt man zur SCS. Dies sind nur ein paar der vielen Vorteile, die Sie haben werden, wenn Sie hier wohnen.
Die Wohnung kann jederzeit, nach Vereinbarung, besichtigt werden.
KEINE ABLÖSE
KAUTION: 5 BMM €
PROVISION: KEINE
BEZIEHBAR: 15.01.26
Interessiert? Kontaktieren Sie uns für eine unverbindliche Besichtigung!
Der Immobilienmakler erklärt, dass er – entgegen dem in der Immobilienwirtschaft üblichen Geschäftsgebrauch des Doppelmaklers – einseitig nur für den Vermieter tätig ist.
Infrastruktur / Entfernungen
Gesundheit
Arzt <1.000m
Apotheke <1.000m
Klinik <1.500m
Krankenhaus <2.500m
Kinder & Schulen
Schule <1.000m
Kindergarten <1.000m
Universität <6.000m
Höhere Schule <5.500m
Nahversorgung
Supermarkt <500m
Bäckerei <1.000m
Einkaufszentrum <1.500m
Sonstige
Geldautomat <1.000m
Bank <1.000m
Post <2.000m
Polizei <2.000m
Verkehr
Bus <500m
U-Bahn <500m
Straßenbahn <3.500m
Bahnhof <500m
Autobahnanschluss <1.500m
Angaben Entfernung Luftlinie / Quelle: OpenStreetMap
Objektdaten
Ausstattung
- Gartennutzung
- Barrierefrei
- Fahrradraum
- Bad mit Dusche
- Einbauküche
- Fliesenboden
- Parkettboden
- Zentralheizung
- Personen Fahrstuhl
Dokumente / Links
Zustand
- Alter
- NEUBAU
- HWB
- 42.06 kWh/m² pro Jahr
- Klasse HWB
- B
- fGEE
- 0.75
- Klasse fGEE
- A
Flächen
- Anzahl der Zimmer
- 2
- Anzahl der Badezimmer
- 1
- Anzahl der sep. WCs
- 1
- Anzahl der Balkone
- 2
- Wohnfläche
- 54m²
Kosten
- Gesamtmiete Brutto
- € 988,90
- Miete
- € 899,00
- Umsatzsteuer
- € 89,90
- Monatl. Gesamtbelastung Brutto
- € 988,90
Verwaltung
- Verfügbar ab
- 15.01.26
- Mietdauer
- bis 5,0 Jahre
Wohnungen zum Mieten in Österreich
- Bezirk Gemeindebezirk Liesing
- Bezirk Gemeindebezirk Liesing
- Bezirk Gemeindebezirk Liesing
- Bezirk Gemeindebezirk Hietzing
- Bezirk Gemeindebezirk Hietzing
- Bezirk Gemeindebezirk Hietzing
- Bezirk Gemeindebezirk Meidling
- Bezirk Gemeindebezirk Meidling
- Bezirk Gemeindebezirk Meidling
- Bezirk Gemeindebezirk Penzing
Wohnungen zum Mieten in Österreich
Wohnungen zum Mieten in Österreich
Andere Besucher suchen nach...
- Grundstücke kaufen in 3400 Weidlingbach
- Wohnungen kaufen in 4663 Laakirchen
- Häuser in 7471 Rechnitz
- Wohnungen in 2410 Hainburg an der Donau
- Häuser kaufen in 2432 Schwadorf
- Wohnungen kaufen in 3002 Purkersdorf
- Häuser in 3150 Wilhelmsburg
- Wohnungen kaufen in 3470 Engelmannsbrunn
- Grundstücke kaufen im Bezirk Mattersburg
- Grundstücke kaufen im Bezirk Gmunden