COMING SOON: Loftartige DG-TERRASSENWOHNUNG mit 30,71m² Terrasse nahe Akademiepark
€ 895 / Monat
€ 16 / m²
2700 Wiener Neustadt
-
01.08.2026
Beschreibung
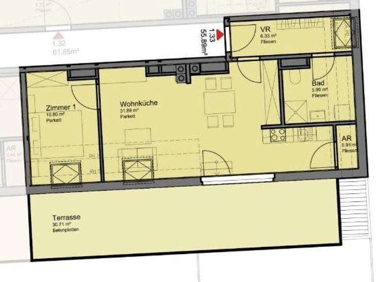
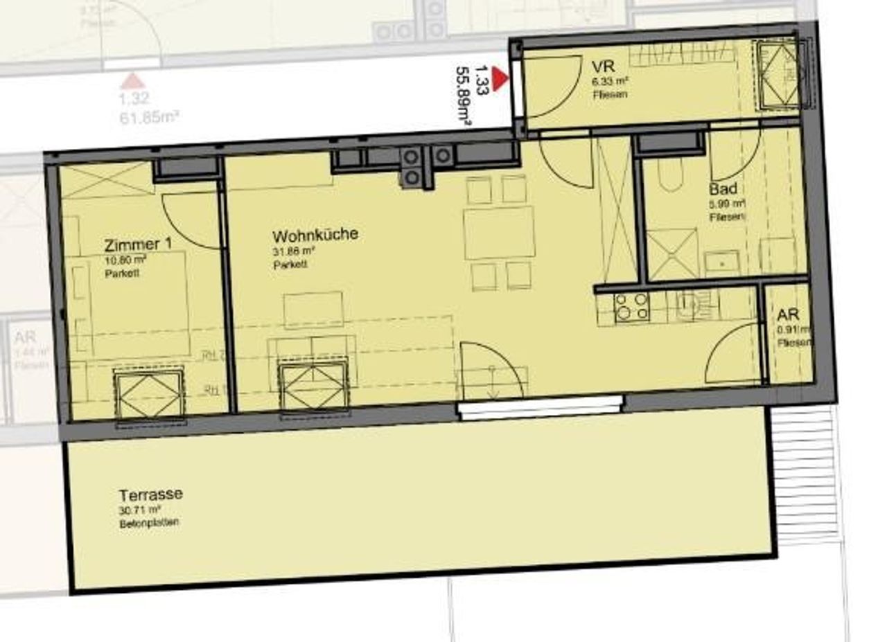
GYMELSDORFER GASSE nahe AKADEMIEPARK!!! Top-ausgestattete Neubauwohnung in schöner Lage. Wohnnutzfläche ca. 55,89m² zuzüglich 30,71m² Terrasse Die Wohnung befindet sich im Dachgeschoß und ist nach Süd-Osten ausgerichtet. RAUMAUFTEILUNG IN STICHWORTEN • Vorzimmer • Wohnzimmer mit offener Küche • Zimmer • Bad mit Dusche, Waschtisch, Waschmaschinenanschluss, Handtuchheizkörper und WC • Abstellraum • Terrasse • Kellerabteil HIGHLIGHTS UND AUSSTATTUNGSMERKMALE • Fußbodenheizung (Zentralheizung mit Fernwärme, keine Therme!) • Außenrollläden • Sicherheitswohnungseingangstüren • hochwertiger Parkettboden (Eiche) • Tischlerküche mit hochwertigen Elektrogeräten (E-Herd, Cerankochfeld, Geschirrspüler, Kühl-Gefrier-Kombination, Dunstabzug und Spüle) • hochwertige Ausstattung auch im Badezimmer / WC • sehr gute Raumaufteilung • effiziente Grundrisse • zentrale...
GYMELSDORFER GASSE nahe AKADEMIEPARK!!!
Top-ausgestattete Neubauwohnung in schöner Lage.
Wohnnutzfläche ca. 55,89m² zuzüglich 30,71m² Terrasse
Die Wohnung befindet sich im Dachgeschoß und ist nach Süd-Osten ausgerichtet.
RAUMAUFTEILUNG IN STICHWORTEN
• Vorzimmer
• Wohnzimmer mit offener Küche
• Zimmer
• Bad mit Dusche, Waschtisch, Waschmaschinenanschluss, Handtuchheizkörper und WC
• Abstellraum
• Terrasse
• Kellerabteil
HIGHLIGHTS UND AUSSTATTUNGSMERKMALE
• Fußbodenheizung (Zentralheizung mit Fernwärme, keine Therme!)
• Außenrollläden
• Sicherheitswohnungseingangstüren
• hochwertiger Parkettboden (Eiche)
• Tischlerküche mit hochwertigen Elektrogeräten (E-Herd, Cerankochfeld, Geschirrspüler, Kühl-Gefrier-Kombination, Dunstabzug und Spüle)
• hochwertige Ausstattung auch im Badezimmer / WC
• sehr gute Raumaufteilung
• effiziente Grundrisse
• zentrale Schließanlage
• mehrere Fahrrad- und Kinderwagenabstellräume
• großzügige Aufzüge
• Kleinkinderspielplatz mit Sandkiste und Sitzgelegenheit
• geniale Grünanlagen / Gärten rund um die Anlage
• sehr gute Energiekennzahlen
• optimale Infrastruktur
• Tiefgarage nach Verfügbarkeit
UMGEBUNG UND INFRASTRUKTUR
• diverse Supermärkte in Gehnähe (Hofer, Billa-Plus, DM etc.)
• Akademiepark in unmittelbarer Nähe
• Freizeiteinrichtungen: Kino, Fitnessstudio, Fußball, Tennis etc.in der Stadt
• gute Erreichbarkeit in die Innenstadt
SEHR GUTE VERKEHRSANBINDUNG
• Autobusse
• Bahnhof Wiener Neustadt (nur 29min bis Wien)
• mit dem Auto: Autobahnauffahrt Wiener Neustadt West in 3 min.
ERSTZAHLUNG
• 3 BMM Kaution
• erste Monatsmiete im Voraus
• Vertragserrichtungsgebühr EUR 349 bto
ZUSÄTZLICHE MONATLICHE KOSTEN
• Wasser, Heizung... werden nach tatsächlichem Verbrauch abgerechnet
• Strom - wird direkt nach Verbrauch abgerechnet
• ggf. TV/Internet, Haushaltsversicherung, GIS, o.Ä.
VERTRAGSBEDINGUNGEN
• Befristung: 5 Jahre
• Kündigungsverzicht: 12 Monate (mieterseitig)
• Kündigungsfrist: 3 Monate
• gefordertes Mindestnettoeinkommen (Haushalt): EUR 2250--
BENÖTIGTE UNTERLAGEN FÜR ANMIETUNG
• Mietanbot (Vorlage erhalten Sie von uns)
• Selbstauskunft (Vorlage erhalten Sie von uns)
• Kopie Reisepass oder Personalausweis
• Kopie Bankomatkarte (nur IBAN relevant)
• Einkommensnachweis (letzte 3 Lohnzettel, Einkommenssteuerbescheid oder bei Berufswechsel unterzeichneter Dienstvertrag)
• Meldezettel
• Haushaltsrechnung (Vorlage erhalten Sie von uns)
Top-ausgestattete Neubauwohnung in schöner Lage.
Wohnnutzfläche ca. 55,89m² zuzüglich 30,71m² Terrasse
Die Wohnung befindet sich im Dachgeschoß und ist nach Süd-Osten ausgerichtet.
RAUMAUFTEILUNG IN STICHWORTEN
• Vorzimmer
• Wohnzimmer mit offener Küche
• Zimmer
• Bad mit Dusche, Waschtisch, Waschmaschinenanschluss, Handtuchheizkörper und WC
• Abstellraum
• Terrasse
• Kellerabteil
HIGHLIGHTS UND AUSSTATTUNGSMERKMALE
• Fußbodenheizung (Zentralheizung mit Fernwärme, keine Therme!)
• Außenrollläden
• Sicherheitswohnungseingangstüren
• hochwertiger Parkettboden (Eiche)
• Tischlerküche mit hochwertigen Elektrogeräten (E-Herd, Cerankochfeld, Geschirrspüler, Kühl-Gefrier-Kombination, Dunstabzug und Spüle)
• hochwertige Ausstattung auch im Badezimmer / WC
• sehr gute Raumaufteilung
• effiziente Grundrisse
• zentrale Schließanlage
• mehrere Fahrrad- und Kinderwagenabstellräume
• großzügige Aufzüge
• Kleinkinderspielplatz mit Sandkiste und Sitzgelegenheit
• geniale Grünanlagen / Gärten rund um die Anlage
• sehr gute Energiekennzahlen
• optimale Infrastruktur
• Tiefgarage nach Verfügbarkeit
UMGEBUNG UND INFRASTRUKTUR
• diverse Supermärkte in Gehnähe (Hofer, Billa-Plus, DM etc.)
• Akademiepark in unmittelbarer Nähe
• Freizeiteinrichtungen: Kino, Fitnessstudio, Fußball, Tennis etc.in der Stadt
• gute Erreichbarkeit in die Innenstadt
SEHR GUTE VERKEHRSANBINDUNG
• Autobusse
• Bahnhof Wiener Neustadt (nur 29min bis Wien)
• mit dem Auto: Autobahnauffahrt Wiener Neustadt West in 3 min.
ERSTZAHLUNG
• 3 BMM Kaution
• erste Monatsmiete im Voraus
• Vertragserrichtungsgebühr EUR 349 bto
ZUSÄTZLICHE MONATLICHE KOSTEN
• Wasser, Heizung... werden nach tatsächlichem Verbrauch abgerechnet
• Strom - wird direkt nach Verbrauch abgerechnet
• ggf. TV/Internet, Haushaltsversicherung, GIS, o.Ä.
VERTRAGSBEDINGUNGEN
• Befristung: 5 Jahre
• Kündigungsverzicht: 12 Monate (mieterseitig)
• Kündigungsfrist: 3 Monate
• gefordertes Mindestnettoeinkommen (Haushalt): EUR 2250--
BENÖTIGTE UNTERLAGEN FÜR ANMIETUNG
• Mietanbot (Vorlage erhalten Sie von uns)
• Selbstauskunft (Vorlage erhalten Sie von uns)
• Kopie Reisepass oder Personalausweis
• Kopie Bankomatkarte (nur IBAN relevant)
• Einkommensnachweis (letzte 3 Lohnzettel, Einkommenssteuerbescheid oder bei Berufswechsel unterzeichneter Dienstvertrag)
• Meldezettel
• Haushaltsrechnung (Vorlage erhalten Sie von uns)
| Angaben gemäß gesetzlichem Erfordernis: | |||
| Miete | € | 619,14 | zzgl 10% USt. |
| Betriebskosten | € | 194,5 | zzgl 10% USt. |
| Umsatzsteuer | € | 81,36 | |
| ------------------------------------------------------------------ | |||
| Gesamtbetrag | € | 895 | |
| ------------------------------------------------------------------ | |||
| Heizwärmebedarf: | 32.0 kWh/(m²a) | ||
| Klasse Heizwärmebedarf: | B | ||
| Faktor Gesamtenergieeffizienz: | 0.76 | ||
Objektdaten
Ausstattung
- Wasch-/Trockenraum
- Unterkellert
- Fußbodenheizung
- Personen Fahrstuhl
- Niedrigenergie
- Bus
- Fußbodenheizung
- Gegensprechanlage
- Geschirrspüler
- Glaskeramikfeld
- Küche Möbliert
- Sonstiges
- Schnellbahn
- Sonnenschutz
- Straßenbahn
- U-Bahn
Dokumente / Links
Zustand
- Zustand
- GEPFLEGT
- Baujahr
- 2018
- Alter
- NEUBAU
Flächen
- Anzahl der Zimmer
- 2
- Anzahl der Badezimmer
- 1
- Anzahl der sep. WCs
- 1
- Anzahl der Terrassen
- 1
- Wohnfläche
- 56m²
- Terrassenfläche
- 1m²
Kosten
- Kaltmiete
- € 895,00
- Nebenkosten
- € 213,95
- Kaution
- € 2.700,00
- Betriebskosten Brutto
- € 213,95
Verwaltung
- Verfügbar ab
- 01.08.2026
- Mietdauer
- bis 5,0 Jahre
Wohnungen zum Mieten in Österreich
Wohnungen zum Mieten in Österreich
Wohnungen zum Mieten in Österreich
Andere Besucher suchen nach...
- Grundstücke kaufen in 3400 Weidlingbach
- Wohnungen kaufen in 4663 Laakirchen
- Häuser in 7471 Rechnitz
- Wohnungen in 2410 Hainburg an der Donau
- Häuser kaufen in 2432 Schwadorf
- Wohnungen kaufen in 3002 Purkersdorf
- Häuser in 3150 Wilhelmsburg
- Wohnungen kaufen in 3470 Engelmannsbrunn
- Grundstücke kaufen im Bezirk Mattersburg
- Grundstücke kaufen im Bezirk Gmunden