Neuwertige 2-Zimmer-Wohnung mit Loggia und Garage in Wiener Neustadt!
-
2024
-
01.03.2026
Beschreibung
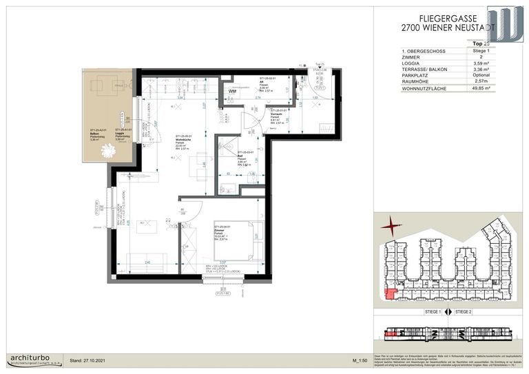
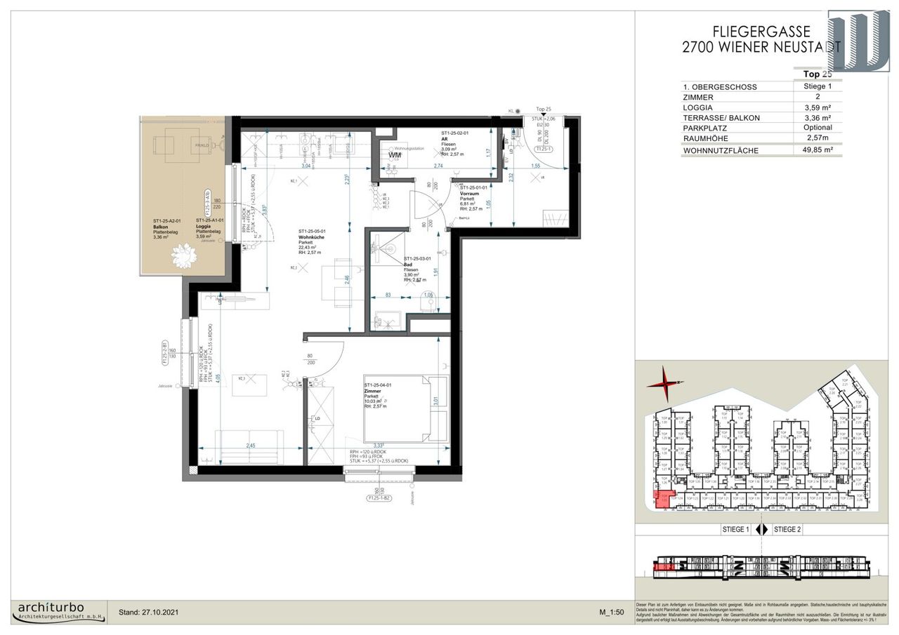
Willkommen in Ihrem neuen Zuhause in der charmanten Stadt Wiener Neustadt! Diese neuwertige Etagenwohnung in der ersten Etage bietet Ihnen auf 41 m² alles, was das Herz begehrt. Es erwartet Sie ein modernes Wohngefühl in einer der aufstrebendsten Regionen Niederösterreichs.
Die Wohnung besticht durch ihr durchdachtes Raumkonzept, das Ihnen zwei helle und einladende Zimmer bietet. Ideal für Singles, Paare oder kleine Familien, die Wert auf Komfort und Stil legen. Die hochwertige Ausstattung mit Fliesen und Parkett sorgt für ein angenehmes Wohnklima und die Fußbodenheizung garantiert wohlige Wärme an kalten Tagen.
Ein besonderes Highlight ist die Loggia, die Ihnen nicht nur...
Willkommen in Ihrem neuen Zuhause in der charmanten Stadt Wiener Neustadt! Diese neuwertige Etagenwohnung in der ersten Etage bietet Ihnen auf 41 m² alles, was das Herz begehrt. Es erwartet Sie ein modernes Wohngefühl in einer der aufstrebendsten Regionen Niederösterreichs.
Die Wohnung besticht durch ihr durchdachtes Raumkonzept, das Ihnen zwei helle und einladende Zimmer bietet. Ideal für Singles, Paare oder kleine Familien, die Wert auf Komfort und Stil legen. Die hochwertige Ausstattung mit Fliesen und Parkett sorgt für ein angenehmes Wohnklima und die Fußbodenheizung garantiert wohlige Wärme an kalten Tagen.
Ein besonderes Highlight ist die Loggia, die Ihnen nicht nur zusätzlichen Raum im Freien bietet, sondern auch einen atemberaubenden Fernblick über die Umgebung. Genießen Sie entspannte Stunden auf Ihrem Ostbalkon oder -terrasse, wo Sie bereits am Morgen die ersten Sonnenstrahlen einfangen können.
Die moderne Einbauküche ist perfekt ausgestattet und lässt das Herz eines jeden Hobbykochs höher schlagen. Hier können Sie Ihre kulinarischen Fähigkeiten ausleben und gleichzeitig mit Freunden und Familie Zeit verbringen.
Die Barrierefreiheit der Wohnung wird durch den Personenaufzug unterstützt, was den Zugang besonders komfortabel gestaltet. Zur Wohnung gehört auch eine Garage, die Ihr Fahrzeug sicher unterbringt.
Die Lage ist hervorragend: Mit einer optimalen Verkehrsanbindung durch die nahegelegene Busstation sind Sie sowohl urban als auch ländlich bestens angebunden. In unmittelbarer Nähe finden Sie Schulen und Supermärkte, die Ihnen den Alltag erleichtern und für ein hohes Maß an Lebensqualität sorgen.
Diese Etagenwohnung in Wiener Neustadt ist nicht nur ein Ort zum Wohnen, sondern ein Platz, an dem Sie sich rundum wohlfühlen werden. Zögern Sie nicht, sich diesen Traum vom eigenen Zuhause zu erfüllen.
Sobald Sie uns eine Anfrage senden, erhalten Sie automatisiert ein Exposé zu diesem Apartment und Sie werden von uns zu möglichen Besichtigungsterminen eingeladen, nachdem Sie die Datenschutz-Erklärung bestätigen. Dadurch entstehen für Sie weder Kosten, noch Verpflichtungen!
Wichtig: Ein Garagenstellplatz um € 91,- brutto muss mit gemietet werden. Diese sind nicht im angegebenen Mietpreis enthalten.
Für die Einbauküche fällt zudem eine Möbelmiete iHv. € 15,- netto an.
Sehen Sie sich auch gerne den 360-Grad Rundgang an. Dieser ist zwar nicht von exakt dieser Wohnung, aber von einer mit ähnlichem Grundriss und hilft zur Orientierung.
Vereinbaren Sie noch heute einen Besichtigungstermin und lassen Sie sich von der Qualität und der Annehmlichkeiten dieser Immobilie überzeugen!
Wir weisen darauf hin, dass zwischen dem Vermittler und dem zu vermittelnden Dritten ein familiäres oder wirtschaftliches Naheverhältnis besteht.
Der Immobilienmakler erklärt, dass er – entgegen dem in der Immobilienwirtschaft üblichen Geschäftsgebrauch des Doppelmaklers – einseitig nur für den Vermieter tätig ist.
Infrastruktur / Entfernungen
Gesundheit
Arzt <1.500m
Apotheke <1.500m
Klinik <3.000m
Krankenhaus <2.000m
Kinder & Schulen
Schule <500m
Kindergarten <1.500m
Höhere Schule <2.500m
Universität <2.000m
Nahversorgung
Supermarkt <1.000m
Bäckerei <1.500m
Einkaufszentrum <1.500m
Sonstige
Bank <500m
Geldautomat <500m
Post <500m
Polizei <500m
Verkehr
Bus <500m
Autobahnanschluss <3.500m
Bahnhof <1.000m
Flughafen <1.000m
Angaben Entfernung Luftlinie / Quelle: OpenStreetMap
Objektdaten
Ausstattung
- Gartennutzung
- Rollstuhlgerecht
- Barrierefrei
- Fahrradraum
- Einbauküche
- Fliesenboden
- Parkettboden
- Fernwärme Heizung
- Fußbodenheizung
- Fern Befeuerung
- Personen Fahrstuhl
- Ausrichtung Balkon/Terrasse - Ost
- Flachdach
- Massiv Bauweise
Dokumente / Links
Zustand
- Zustand
- NEUWERTIG
- Baujahr
- 2024
- Alter
- NEUBAU
- HWB
- 36.6 kWh/m² pro Jahr
- Klasse HWB
- B
- fGEE
- 0.75
- Klasse fGEE
- A
Flächen
- Anzahl der Zimmer
- 2
- Anzahl der Badezimmer
- 1
- Anzahl der sep. WCs
- 1
- Anzahl der Terrassen
- 1
- Anzahl der Logia
- 1
- Wohnfläche
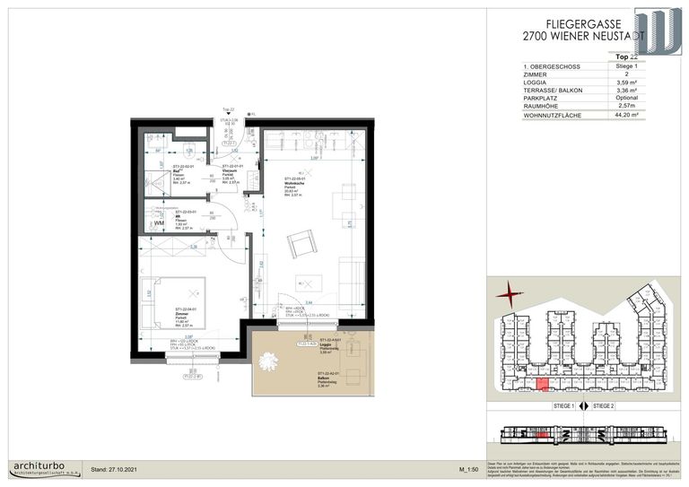
- 44m²
- Terrassenfläche
- 1m²
Kosten
- Gesamtmiete Brutto
- € 690,98
- Kaution
- € 2.072,94
- Miete
- € 545,00
- Betriebskosten
- € 78,96
- Sonstige Kosten
- € 4,20
- Umsatzsteuer
- € 62,82
- Monatl. Gesamtbelastung Brutto
- € 690,98
Verwaltung
- Verfügbar ab
- 01.03.2026
- Mietdauer
- bis 10,0 Jahre
Wohnungen zum Mieten in Österreich
Wohnungen zum Mieten in Österreich
Wohnungen zum Mieten in Österreich
Andere Besucher suchen nach...
- Grundstücke kaufen in 3400 Weidlingbach
- Wohnungen kaufen in 4663 Laakirchen
- Häuser in 7471 Rechnitz
- Wohnungen in 2410 Hainburg an der Donau
- Häuser kaufen in 2432 Schwadorf
- Wohnungen kaufen in 3002 Purkersdorf
- Häuser in 3150 Wilhelmsburg
- Wohnungen kaufen in 3470 Engelmannsbrunn
- Grundstücke kaufen im Bezirk Mattersburg
- Grundstücke kaufen im Bezirk Gmunden