Miete: Moderne Wohnung in zentraler Lage in Wolfsberg, Nähe Weiher
€ 699 / Monat
€ 16 / m²
9400 Wolfsberg
-
sofort
Beschreibung
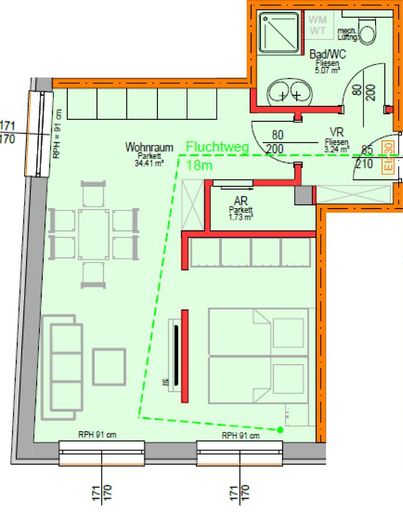
Miete: Moderne Wohnung in zentraler Lage in Wolfsberg, Nähe Weiher Im Zentrum von Wolfsberg wird eine ca. 44,45 m² große Wohnung im 2. Obergeschoss eines gepflegten Wohn- und Geschäftshauses mit Lift exklusiv zur Vermietung angeboten. Die kernsanierte Wohnung ist ab sofort beziehbar und wirkt durch großzügige Fensterflächen sehr hell sowie einladend. Eine moderne Küche wurde vom Vermieter eingebaut. Beheizt wird die Immobilie mittels Fernwärme/Bodenheizung. Ein weiter Vorteil ist die Innenstadtlage mit bester Infrastruktur, zahlreichen Geschäften und Restaurants – alles fußläufig erreichbar. Die Gesamtfläche der Wohnung beträgt ca. 44,45 m², die sich wie folgt aufteilt: > Koch-/Wohn-/Ess-/Schlafbereich – ca. 34,41 m²...
Miete: Moderne Wohnung in zentraler Lage in Wolfsberg, Nähe Weiher
Im Zentrum von Wolfsberg wird eine ca. 44,45 m² große Wohnung im 2. Obergeschoss eines gepflegten Wohn- und Geschäftshauses mit Lift exklusiv zur Vermietung angeboten.
Die kernsanierte Wohnung ist ab sofort beziehbar und wirkt durch großzügige Fensterflächen sehr hell sowie einladend. Eine moderne Küche wurde vom Vermieter eingebaut. Beheizt wird die Immobilie mittels Fernwärme/Bodenheizung.
Ein weiter Vorteil ist die Innenstadtlage mit bester Infrastruktur, zahlreichen Geschäften und Restaurants – alles fußläufig erreichbar.
Die Gesamtfläche der Wohnung beträgt ca. 44,45 m², die sich wie folgt aufteilt:
> Koch-/Wohn-/Ess-/Schlafbereich – ca. 34,41 m²
> Badezimmer mit Dusche und WC – ca. 5,07 m²
> Abstellraum – ca. 1,73 m²
> Vorraum – ca. 3,24 m²
Die Vorschreibung der Betriebs-/Heizkosten (Akontozahlung lt. Hausverwaltung) beträgt inklusive Steuer € 170,80.
Überzeugen Sie sich bei einer Besichtigung von dieser schönen Mietwohnung in zentraler Lage.
Wir freuen uns auf Sie!
Alle Angaben laut Abgeber - Irrtümer vorbehalten.
Dieses Angebot ist unverbindlich, freibleibend, Zwischenverwertung vorbehalten.
Hinweis für Mietinteressenten:
Wir sind vom Vermieter dieser Immobilie mit der Vermittlung eines Mietvertrages beauftragt. Deshalb ist es uns gemäß § 17 a Maklergesetz untersagt, mit Ihnen als Mietinteressent eine Provisionsvereinbarung zu schließen.
Das bedeutet für Sie:
Wir sind ausschließlich im Auftrag des Verfügungsberechtigten und nicht als Doppelmakler tätig.
Sie gehen bezüglich dieser Immobilie und Ihrer Mietabsicht mit uns KEIN Vertragsverhältnis ein und werden von uns diesbezüglich KEINE Rechnung erhalten.
Der Immobilienmakler erklärt, dass er – entgegen dem in der Immobilienwirtschaft üblichen Geschäftsgebrauch des Doppelmaklers – einseitig nur für den Vermieter tätig ist.
Im Zentrum von Wolfsberg wird eine ca. 44,45 m² große Wohnung im 2. Obergeschoss eines gepflegten Wohn- und Geschäftshauses mit Lift exklusiv zur Vermietung angeboten.
Die kernsanierte Wohnung ist ab sofort beziehbar und wirkt durch großzügige Fensterflächen sehr hell sowie einladend. Eine moderne Küche wurde vom Vermieter eingebaut. Beheizt wird die Immobilie mittels Fernwärme/Bodenheizung.
Ein weiter Vorteil ist die Innenstadtlage mit bester Infrastruktur, zahlreichen Geschäften und Restaurants – alles fußläufig erreichbar.
Die Gesamtfläche der Wohnung beträgt ca. 44,45 m², die sich wie folgt aufteilt:
> Koch-/Wohn-/Ess-/Schlafbereich – ca. 34,41 m²
> Badezimmer mit Dusche und WC – ca. 5,07 m²
> Abstellraum – ca. 1,73 m²
> Vorraum – ca. 3,24 m²
Die Vorschreibung der Betriebs-/Heizkosten (Akontozahlung lt. Hausverwaltung) beträgt inklusive Steuer € 170,80.
Überzeugen Sie sich bei einer Besichtigung von dieser schönen Mietwohnung in zentraler Lage.
Wir freuen uns auf Sie!
Alle Angaben laut Abgeber - Irrtümer vorbehalten.
Dieses Angebot ist unverbindlich, freibleibend, Zwischenverwertung vorbehalten.
Hinweis für Mietinteressenten:
Wir sind vom Vermieter dieser Immobilie mit der Vermittlung eines Mietvertrages beauftragt. Deshalb ist es uns gemäß § 17 a Maklergesetz untersagt, mit Ihnen als Mietinteressent eine Provisionsvereinbarung zu schließen.
Das bedeutet für Sie:
Wir sind ausschließlich im Auftrag des Verfügungsberechtigten und nicht als Doppelmakler tätig.
Sie gehen bezüglich dieser Immobilie und Ihrer Mietabsicht mit uns KEIN Vertragsverhältnis ein und werden von uns diesbezüglich KEINE Rechnung erhalten.
Der Immobilienmakler erklärt, dass er – entgegen dem in der Immobilienwirtschaft üblichen Geschäftsgebrauch des Doppelmaklers – einseitig nur für den Vermieter tätig ist.
| Angaben gemäß gesetzlichem Erfordernis: | |||
| Miete | € | 480,18 | zzgl 10% USt. |
| Betriebskosten | € | 68 | zzgl 10% USt. |
| Heizkosten | € | 80 | zzgl 20% USt. |
| Umsatzsteuer | € | 70,82 | |
| ------------------------------------------------------------------ | |||
| Gesamtbetrag | € | 699 | |
Objektdaten
Ausstattung
- Zentralheizung
- Personen Fahrstuhl
- Massiv Bauweise
- Zeigelmassiv
- Bus
- Eisenbahn
- Küche Möbliert
- Stadtzentrum
- Zentralheizung
Dokumente / Links
Flächen
- Anzahl der Zimmer
- 1
- Anzahl der Badezimmer
- 1
- Anzahl der sep. WCs
- 1
- Wohnfläche
- 44m²
Kosten
- Kaltmiete
- € 699,00
- Nebenkosten
- € 170,80
- Kaution
- € 2.097,00
- Betriebskosten Brutto
- € 74,80
- Heizkosten Brutto
- € 96,00
Verwaltung
- Verfügbar ab
- sofort
Wohnungen zum Mieten im Umkreis von Wolfsberg
Wohnungen zum Mieten im Umkreis von Wolfsberg
Wohnungen zum Mieten in Österreich
Andere Besucher suchen nach...
- Grundstücke kaufen in 3400 Weidlingbach
- Wohnungen kaufen in 4663 Laakirchen
- Häuser in 7471 Rechnitz
- Wohnungen in 2410 Hainburg an der Donau
- Häuser kaufen in 2432 Schwadorf
- Wohnungen kaufen in 3002 Purkersdorf
- Häuser in 3150 Wilhelmsburg
- Wohnungen kaufen in 3470 Engelmannsbrunn
- Grundstücke kaufen im Bezirk Mattersburg
- Grundstücke kaufen im Bezirk Gmunden