*** Investmentchance in Hönigsberg: Zinshaus mit 6 Wohnungen mit TOP Rendite ***
-
sofort
Beschreibung
🏠 Attraktives Zinshaus in Hönigsberg – 6 Wohnungen mit stabiler Bruttorendite Top-Investment in gefragter Wohnlage – gepflegtes Zinshaus mit 6 Einheiten, Gemeinschaftsgarten & hoher Mietnachfrage Dieses gepflegte Zinshaus in der beliebten Marktgemeinde Hönigsberg (Bezirk Bruck-Mürzzuschlag) bietet eine einzigartige Investitionschance für Anleger, die Wert auf Sicherheit, Substanz und attraktive Rendite legen. Mit 6 sehr gut vermietbaren Wohneinheiten, einem laufenden Mietertrag und einer Bruttorendite von rund 8 % überzeugt dieses Objekt sowohl wirtschaftlich als auch baulich auf ganzer Linie. Das Gebäude wurde 1963 errichtet. In den vergangenen zehn Jahren wurden die Kunststofffenster erneuert und eine moderne Pelletsheizung installiert. Die Liegenschaft präsentiert sich...
🏠 Attraktives Zinshaus in Hönigsberg – 6 Wohnungen mit stabiler Bruttorendite
Top-Investment in gefragter Wohnlage – gepflegtes Zinshaus mit 6 Einheiten, Gemeinschaftsgarten & hoher Mietnachfrage
Dieses gepflegte Zinshaus in der beliebten Marktgemeinde Hönigsberg (Bezirk Bruck-Mürzzuschlag) bietet eine einzigartige Investitionschance für Anleger, die Wert auf Sicherheit, Substanz und attraktive Rendite legen.
Mit 6 sehr gut vermietbaren Wohneinheiten, einem laufenden Mietertrag und einer Bruttorendite von rund 8 % überzeugt dieses Objekt sowohl wirtschaftlich als auch baulich auf ganzer Linie.
Das Gebäude wurde 1963 errichtet.
In den vergangenen zehn Jahren wurden die Kunststofffenster erneuert und eine moderne Pelletsheizung installiert.
Die Liegenschaft präsentiert sich in einem guten Zustand mit geringen Aufbereitungsarbeiten, sofort vermietbar und sichert stabile Mieterträge.
________________________________________
🏡 Objektdetails
• Baujahr: 1963
• Grundstücksgröße: 1.002 m²
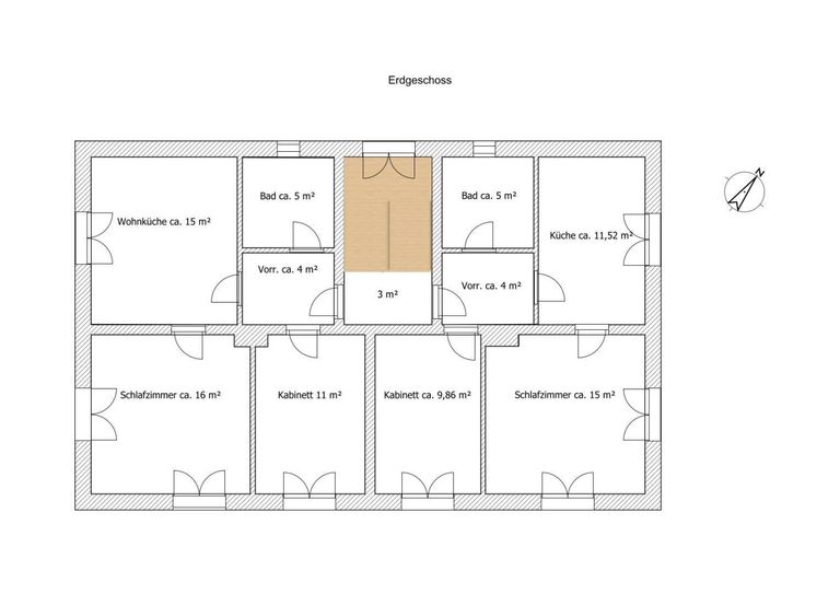
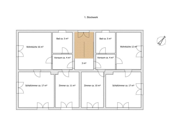
• Wohnfläche gesamt: ca. 270 m²
• Anzahl der Wohnungen: 6
• Heizung: Moderne Pelletsheizung – effizient & umweltfreundlich
• Parkplätze: 6 Kfz-Stellplätze
• Gemeinschaftsgarten: ja – rundum eingezäunt
• Zustand: in Ordnung
• Kaufpreis: € 300.000, -
• Bruttorendite: ca. 8 %
________________________________________
💰 Mieterträge & Betriebskosten
Das Zinshaus ist aktuell Teil-vermietet (2 bestehende Mietverhältnisse bis längstens Ende Dezember 2026)
Beispiel Wohnung im Erdgeschoss:
• Wohnfläche: ca. 52 m²
• Befristeter Mietvertrag seit: 01.01.2024 (bis Ende Dezember 2026)
• Miete inkl. Betriebskosten: € 495 / Monat
Monatliche Eigentümerkosten
• Betriebskosten: € 193,10
• Heizkosten: € 151,67
• Versicherung: € 67,26
Das attraktive Verhältnis von Mieteinnahmen zu Kaufpreis ergeben eine konstante, renditestarke Anlage mit Entwicklungspotenzial.
________________________________________
🌟 Highlights & Besonderheiten
✅ Stabile Bruttorendite von ca. 8 %
✅ 6 vermietbare, helle Wohneinheiten
✅ Sehr gute regionale Mietnachfrage
✅ Energieeffiziente Pelletsheizung
✅ Kunststofffenster (neueren Datums)
✅ Großer, rundum eingezäunter Gemeinschaftsgarten
✅ 4 Carport Stellplätze, 2 Außenstellplätze
✅ Ebenes, sonniges Grundstück in ruhiger Wohnlage
✅ Hohe Lebensqualität & hervorragende Infrastruktur
✅ Ideales Anlageobjekt für langfristig orientierte Investoren
________________________________________
📍 Lagebeschreibung
Die Immobilie liegt in einer ruhigen Wohnstraße von Hönigsberg, einer charmanten Marktgemeinde im Mürztal, die durch ihre Kombination aus ländlicher Ruhe und urbaner Erreichbarkeit überzeugt.
Der Ort bietet beste Nahversorgung, gute Verkehrsanbindungen und eine intakte soziale Infrastruktur, was ihn zu einem beliebten Wohnstandort in der Region macht.
Infrastruktur im Überblick
Infrastrukturpunkt Entfernung / Erreichbarkeit
Bahnhof Langenwang ca. 3–4 km (5–10 Min. Auto / 15 Min. Fußweg)
Supermarkt ca. 1,5–2 km (3–5 Min. Auto / 15–20 Min. zu Fuß)
Post & Bank im Ortszentrum, 3–5 Min. Fahrzeit
Kindergarten & Volksschule direkt im Ort, fußläufig erreichbar
Ärzte & Apotheken in der Marktgemeinde vorhanden
Autobahnanschluss S6 (Semmering-Schnellstraße) wenige Minuten zur Anschlussstelle
Bruck an der Mur ca. 30–40 Min. mit Zug/Bus
Graz ca. 45–60 Min. Fahrzeit (Auto oder Bahn)
Lagecharakteristik
• Ruhige Wohnlage mit gewachsener Nachbarschaft
• Fußläufige Nahversorgung & ÖPNV-Anbindung
• Gute Erreichbarkeit über die S6 Semmering-Schnellstraße
• Hohe Wohn- und Lebensqualität im steirischen Mürztal
• Zahlreiche Freizeit- und Erholungsmöglichkeiten in der Umgebung (Wandern, Vereine, Veranstaltungen)
________________________________________
📈 Investitionsvorteile auf einen Blick
• Hohe Mietnachfrage in der Region – ideale Bedingungen für Vermieter
• Attraktive Rendite mit laufenden Einnahmen
• Niedrige Instandhaltungskosten
• Wertsteigerungspotenzial durch solide Lage und moderne Heiztechnik
• Geringes Risiko – vollständig vermietet und nachhaltig bewirtschaftbar
________________________________________
🧾 Fazit
Dieses Zinshaus in Langenwang vereint solide Bauqualität, gute Vermietbarkeit und eine nachhaltige Rendite in einer nachgefragten Lage des Mürztals.
Dank des Zustandes, der der guten Vermietbarkeit und der energieeffizienten Pelletsheizung bietet das Objekt ein sicheres, inflationsgeschütztes Investment – ideal für Anleger, die auf langfristige Stabilität und attraktiven Ertrag setzen.
💼 Ein Investment mit Zukunft, Sicherheit und Substanz – jetzt zugreifen und die Renditechance sichern!
Der Vermittler ist als Doppelmakler tätig.
Infrastruktur / Entfernungen
Gesundheit
Arzt <500m
Apotheke <2.500m
Krankenhaus <3.500m
Kinder & Schulen
Schule <2.000m
Kindergarten <2.500m
Nahversorgung
Supermarkt <1.000m
Bäckerei <2.500m
Einkaufszentrum <2.000m
Sonstige
Bank <500m
Geldautomat <500m
Post <500m
Polizei <2.500m
Verkehr
Bus <500m
Autobahnanschluss <1.500m
Bahnhof <1.000m
Angaben Entfernung Luftlinie / Quelle: OpenStreetMap
Objektdaten
Ausstattung
- WG geeignet
- Gartennutzung
- Teilmöbliert
- Fahrradraum
- Bad mit Fenster
- Einbauküche
- Zentralheizung
- Satteldach
- Neubaustandard
Zustand
- Zustand
- TEIL_VOLLSANIERT
- Baujahr
- 1963
- Alter
- NEUBAU
- HWB
- 266.5 kWh/m² pro Jahr
- Klasse HWB
- G
- fGEE
- 2.64
- Klasse fGEE
- E
Flächen
- Anzahl der Zimmer
- 10
- Anzahl der Badezimmer
- 6
- Anzahl der sep. WCs
- 6
- Stellplätze
- 6
- Wohnfläche
- 270m²
- Grundstücksfläche
- 1.002m²
- Kellerfläche
- 100m²
Kosten
- Kaufpreis Brutto
- € 285.000,00
- Betriebskosten
- € 193,07
- Heizkosten
- € 151,70
- Sonstige Kosten
- € 67,30
Verwaltung
- Verfügbar ab
- sofort
Andere Besucher suchen nach...
- Grundstücke kaufen in 3400 Weidlingbach
- Wohnungen kaufen in 4663 Laakirchen
- Häuser in 7471 Rechnitz
- Wohnungen in 2410 Hainburg an der Donau
- Häuser kaufen in 2432 Schwadorf
- Wohnungen kaufen in 3002 Purkersdorf
- Häuser in 3150 Wilhelmsburg
- Wohnungen kaufen in 3470 Engelmannsbrunn
- Grundstücke kaufen im Bezirk Mattersburg
- Grundstücke kaufen im Bezirk Gmunden