Einzigartiges Wohnkonzept: Großzügiges Haus für Wohngemeinschaften in den Kärntner Bergen
Beschreibung
Dieses geräumige Haus auf der Hochrindl bietet eine einmalige Gelegenheit für größere Wohngemeinschaften oder Mehrfamilienhaushalte, die auf der Suche nach einem naturnahen und komfortablen Zuhause sind. Inmitten der idyllischen Nockberge auf 1.580 Metern Seehöhe gelegen, vereint dieses Objekt großzügige Wohnflächen mit einer atemberaubenden Bergkulisse und idealen Freizeitmöglichkeiten.
Raumaufteilung für gemeinschaftliches Wohnen:
- Privater Wohnraum für jede Familie:
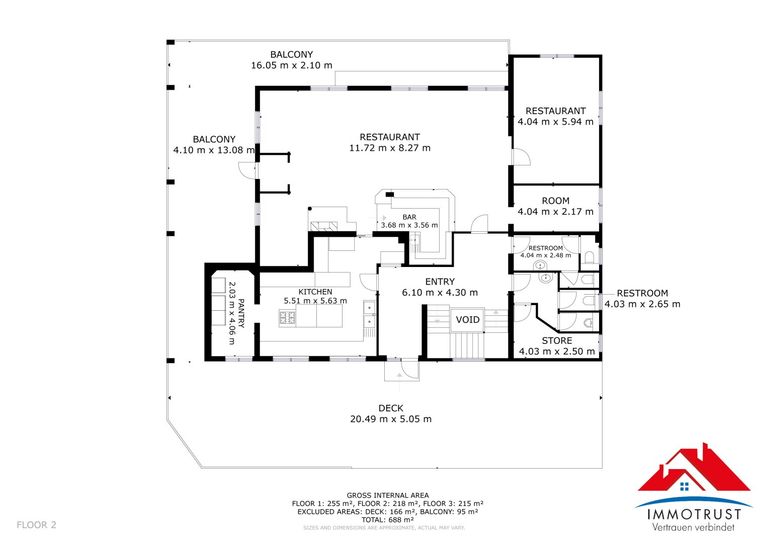
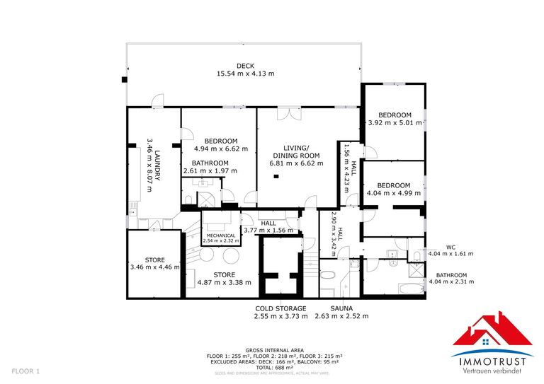
- Insgesamt 8 Wohneinheiten, die sich ideal für Familien oder kleinere Wohnverbünde eignen.
- Viele Zimmer verfügen über ein separates Kinderzimmer, sodass auch größere Familien bequem untergebracht werden können.
- Jede Einheit ist mit einem eigenen Badezimmer ausgestattet und bietet durch Balkone oder Terrassen wunderbare...
Dieses geräumige Haus auf der Hochrindl bietet eine einmalige Gelegenheit für größere Wohngemeinschaften oder Mehrfamilienhaushalte, die auf der Suche nach einem naturnahen und komfortablen Zuhause sind. Inmitten der idyllischen Nockberge auf 1.580 Metern Seehöhe gelegen, vereint dieses Objekt großzügige Wohnflächen mit einer atemberaubenden Bergkulisse und idealen Freizeitmöglichkeiten.
Raumaufteilung für gemeinschaftliches Wohnen:
- Privater Wohnraum für jede Familie:
- Insgesamt 8 Wohneinheiten, die sich ideal für Familien oder kleinere Wohnverbünde eignen.
- Viele Zimmer verfügen über ein separates Kinderzimmer, sodass auch größere Familien bequem untergebracht werden können.
- Jede Einheit ist mit einem eigenen Badezimmer ausgestattet und bietet durch Balkone oder Terrassen wunderbare Ausblicke in die Natur.
- Großer Gemeinschaftsbereich:
- Das ehemalige Gasthaus im Erdgeschoss dient als offener Wohn- und Aufenthaltsraum, ideal für gemeinsame Aktivitäten, Treffen oder gesellige Abende.
- Ein einladender Kamin sorgt für eine gemütliche Atmosphäre.
- Voll ausgestattete Großküche:
- Die großzügige Küche ist perfekt für die Zubereitung größerer Mahlzeiten und lässt sich optimal für gemeinsames Kochen nutzen.
- Viel Platz im Freien:
- Große Terrassen (166 m²) und Balkone (95 m²) laden zum Verweilen ein.
- Das weitläufige Grundstück (ca. 2.700 m²) bietet Raum für Gartenprojekte, Spielbereiche oder weitere Gestaltungsmöglichkeiten.
Leben in der Natur – Sommer & Winter genießen
Die Hochrindl ist ein Paradies für Naturliebhaber. Im Winter liegen die Skipisten und Langlaufloipen direkt vor der Tür, während der Sommer mit Wanderwegen, Almwiesen und Naturerlebnissen lockt. Die ruhige und gesunde Bergluft, kombiniert mit der hervorragenden Erreichbarkeit, macht diese Immobilie zum idealen Wohnort für Menschen, die ein entschleunigtes und gemeinschaftliches Leben in der Natur suchen.
Eine einzigartige Möglichkeit für Wohngemeinschaften, gemeinsam in einem der schönsten Gebiete Kärntens zu leben!
Der Vermittler ist als Doppelmakler tätig.
Infrastruktur / Entfernungen
Gesundheit
Arzt <9.500m
Kinder & Schulen
Schule <6.500m
Nahversorgung
Supermarkt <2.000m
Bäckerei <10.000m
Sonstige
Geldautomat <7.000m
Bank <7.000m
Post <7.000m
Polizei <10.000m
Verkehr
Bus <2.000m
Angaben Entfernung Luftlinie / Quelle: OpenStreetMap
Objektdaten
Ausstattung
- WG geeignet
- Vollmöbliert
- Kabel/SAT-TV
- Sauna
- Wellnessbereich
- Gäste-WC
- Bad mit Dusche
- Bad mit Badewanne
- Bad mit Fenster
- Fliesenboden
- Laminatboden
- Dielenboden
- Zentralheizung
- Befeuerung mit Holz
- Ausrichtung Balkon/Terrasse - Nordost
- Ausrichtung Balkon/Terrasse - Südwest
- Satteldach
- Massiv Bauweise
- Holz Bauweise
Dokumente / Links
- 360° Bild in 118m über dem Haus
- 3D Rundgang Alpl Gasthof
- Grundstücksreport .232
- Grundstücksreport 1464/4
- Klimareport
Zustand
- Zustand
- GEPFLEGT
- Baujahr
- 1974
- Alter
- ALTBAU
- HWB
- 149 kWh/m² pro Jahr
- Klasse HWB
- D
Flächen
- Anzahl der Zimmer
- 11
- Anzahl der Balkone
- 7
- Anzahl der Terrassen
- 1
- Wohnfläche
- 688m²
- Nutzfläche
- 688m²
- Grundstücksfläche
- 2.696m²
- Kellerfläche
- 255m²
- Terrassenfläche
- 1m²
Kosten
- Kaufpreis Brutto
- € 790.000,00
Verwaltung
- Verfügbar ab
- nach Vereinbarung
- Ferienimmobilie
- Ja
Andere Besucher suchen nach...
- Grundstücke kaufen in 3400 Weidlingbach
- Wohnungen kaufen in 4663 Laakirchen
- Häuser in 7471 Rechnitz
- Wohnungen in 2410 Hainburg an der Donau
- Häuser kaufen in 2432 Schwadorf
- Wohnungen kaufen in 3002 Purkersdorf
- Häuser in 3150 Wilhelmsburg
- Wohnungen kaufen in 3470 Engelmannsbrunn
- Grundstücke kaufen im Bezirk Mattersburg
- Grundstücke kaufen im Bezirk Gmunden