Stadthaus mit Geschichte und Entwicklungspotenzial im Herzen von Gmunden
Beschreibung
Auf einer Gesamtfläche von rund 850 m² eröffnet dieses außergewöhnliche Stadthaus eine seltene Gelegenheit mit Geschichte und Entwicklungspotenzial. In zentraler Lage von Gmunden, eingebettet in die eindrucksvolle Landschaft des Salzkammerguts, verbindet die Liegenschaft historischen Charakter mit vielfältigen Nutzungsmöglichkeiten.
Das Gebäude gliedert sich in drei Vollgeschosse sowie ein ausbaufähiges Dachgeschoss. Ein besonderes Merkmal ist das begehbare Dach, das einen beeindruckenden Blick über die Stadt, den Traunsee und die umliegenden Berge ermöglicht.
-
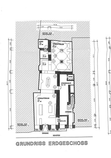
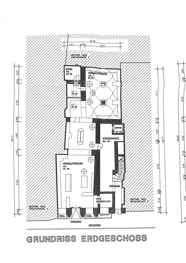
Erdgeschoss: ca. 188 m² Gewerbefläche, derzeit an ein Bergsportgeschäft vermietet
-
1. Obergeschoss: ca. 165 m², sanierungsbedürftig und offen für individuelle Gestaltung
-
2. Obergeschoss: ca....
Auf einer Gesamtfläche von rund 850 m² eröffnet dieses außergewöhnliche Stadthaus eine seltene Gelegenheit mit Geschichte und Entwicklungspotenzial. In zentraler Lage von Gmunden, eingebettet in die eindrucksvolle Landschaft des Salzkammerguts, verbindet die Liegenschaft historischen Charakter mit vielfältigen Nutzungsmöglichkeiten.
Das Gebäude gliedert sich in drei Vollgeschosse sowie ein ausbaufähiges Dachgeschoss. Ein besonderes Merkmal ist das begehbare Dach, das einen beeindruckenden Blick über die Stadt, den Traunsee und die umliegenden Berge ermöglicht.
Erdgeschoss: ca. 188 m² Gewerbefläche, derzeit an ein Bergsportgeschäft vermietet
1. Obergeschoss: ca. 165 m², sanierungsbedürftig und offen für individuelle Gestaltung
2. Obergeschoss: ca. 180 m², großzügige Wohneinheit plus Geschäftsflächen, HWB: 59 kWh/m²a
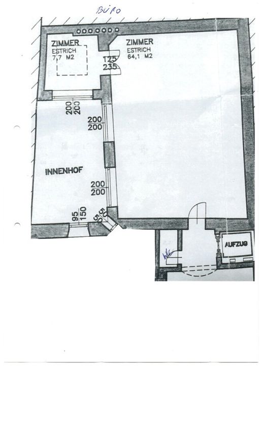
3. Obergeschoss: ca. 191 m², Büro- und Praxisräume, HWB: 100 kWh/m²a (Praxis), HWB: 231 kWh/m²a (Büro)
Dachgeschoss (nicht ausgebaut): ca. 122 m², mit Balkon und beeindruckender Aussicht – bereit für neue Nutzungsideen
Der besondere Wert dieser Immobilie liegt in ihrer Flexibilität. Wohnen, Arbeiten oder eine Kombination aus beidem lassen sich hier harmonisch vereinen. Bestehende architektonische Elemente können bewahrt und zugleich zeitgemäß weiterentwickelt werden.
Ein Haus mit Geschichte und Zukunft – bereit für eine neue Handschrift.
Infrastruktur / Entfernungen
Gesundheit
Arzt <500m
Apotheke <500m
Krankenhaus <1.500m
Klinik <2.000m
Kinder & Schulen
Schule <500m
Kindergarten <500m
Nahversorgung
Supermarkt <500m
Bäckerei <500m
Einkaufszentrum <1.500m
Sonstige
Bank <500m
Geldautomat <500m
Post <500m
Polizei <500m
Verkehr
Bus <500m
Straßenbahn <500m
Bahnhof <500m
Autobahnanschluss <6.500m
Flughafen <6.500m
Angaben Entfernung Luftlinie / Quelle: OpenStreetMap
Objektdaten
Ausstattung
- Befeuerung mit Gas
- Massiv Bauweise
Dokumente / Links
Zustand
- Baujahr
- 1444
- Alter
- ALTBAU
- HWB
- 59 kWh/m² pro Jahr
- fGEE
- 1.43
Flächen
- Anzahl der Balkone
- 1
- Nutzfläche
- 846m²
- Grundstücksfläche
- 305m²
Kosten
- Kaufpreis Brutto
- € 2.500.000,00
Zinshäuser und Renditeobjekte zum Kaufen in Österreich
Andere Besucher suchen nach...
- Immobilien kaufen in 2601 Sollenau
- Immobilien in 4951 Polling im Innkreis, Oberösterreich
- Immobilien in 4742 Pram, Oberösterreich kaufen oder mieten
- Häuser kaufen in 2340 Mödling, Niederösterreich
- Häuser kaufen in 9421 Gemmersdorf, Kärnten
- Wohnungen / Eigentumswohnungen kaufen in 9431 St. Stefan, Kärnten
- Häuser kaufen in Bruck an der Leitha, Niederösterreich
- Immobilien mieten in Krems an der Donau, Niederösterreich
- Häuser zum Kaufen im Bezirk St. Pölten Land, Niederösterreich
- Büro / Praxen mieten in Rohrbach, Oberösterreich