Top Investment mit Inflationsschutz in zentraler Lage von Kufstein!
Auf Anfrage
6330 Kufstein
Beschreibung
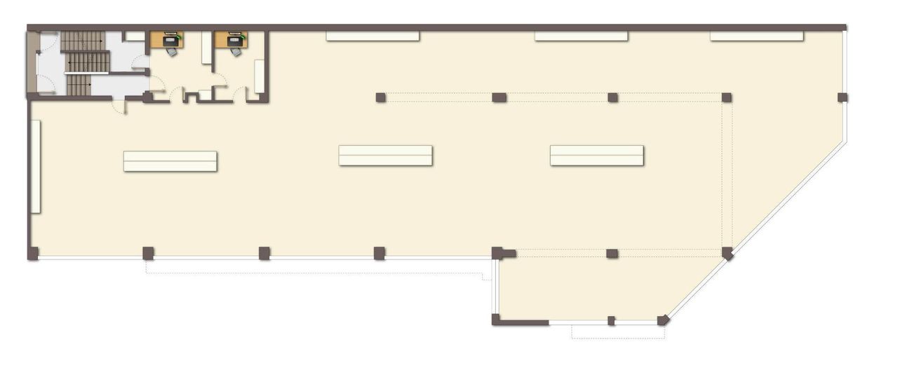
Einmalige Investitionschance mit Inflationsschutz in zentraler Lage von Kufstein! Ob Kapitalanlage oder Sanierungsprojekt für Bauträger – diese Immobilie im Herzen von Kufstein, am Fuße der beeindruckenden Festung, bietet vielfältige Möglichkeiten. Die einzigartige Lage besticht durch eine atemberaubende Aussicht auf die Festung, den Pendling und das Kaisergebirge. Das Wohn- und Geschäftshaus aus dem Jahr 1972 befindet sich auf einem 1.111 m² großen Grundstück (Widmung: Bauland Sonderfläche Kerngebiet) und erstreckt sich über vier Ebenen: Tiefparterre, Erdgeschoss, 1. und 2. Obergeschoss. Es umfasst 9 Wohneinheiten, eine Büroeinheit sowie eine große Gewerbeeinheit im Erdgeschoss, mit einer Gesamtfläche von 1.787,94 m². Alle Wohneinheiten sind derzeit...
Einmalige Investitionschance mit Inflationsschutz in zentraler Lage von Kufstein!
Ob Kapitalanlage oder Sanierungsprojekt für Bauträger – diese Immobilie im Herzen von Kufstein, am Fuße der beeindruckenden Festung, bietet vielfältige Möglichkeiten. Die einzigartige Lage besticht durch eine atemberaubende Aussicht auf die Festung, den Pendling und das Kaisergebirge.
Das Wohn- und Geschäftshaus aus dem Jahr 1972 befindet sich auf einem 1.111 m² großen Grundstück (Widmung: Bauland Sonderfläche Kerngebiet) und erstreckt sich über vier Ebenen: Tiefparterre, Erdgeschoss, 1. und 2. Obergeschoss. Es umfasst 9 Wohneinheiten, eine Büroeinheit sowie eine große Gewerbeeinheit im Erdgeschoss, mit einer Gesamtfläche von 1.787,94 m².
Alle Wohneinheiten sind derzeit befristet vermietet mit einer monatlichen Nettomiete von 12.316,65 EUR.
Unbefristete Mietverträge bestehen nicht. Die Gewerbe-Halle ist zurzeit in der Neuvermietung. Hier wurde daher der derzeitig angebotene Mietzins zur Berechnung herangezogen.
Das Gebäude ist nicht denkmalgeschützt und befindet sich in einem guten baulichen Zustand. Mit einer Baudichte von etwa BMD 6,00 ist das Grundstück bereits umfassend bebaut, was es zu einem idealen Kandidaten für eine Sanierung macht. Dank der flexiblen Skelettbauweise lassen sich die Grundrisse individuell gestalten – beispielsweise für WG-geeignete Wohnungen oder andere Nutzungskonzepte (einige Umbauten wurden bereits vorgenommen).
Diese Immobilie bietet zahlreiche attraktive Entwicklungsmöglichkeiten, über die wir Sie gerne detailliert informieren.
Über Kufstein:
Die Bezirkshauptstadt Kufstein überzeugt durch eine exzellente Infrastruktur und hohe Lebensqualität. Alle wichtigen Einrichtungen wie Schulen, Ärzte, ein Bezirkskrankenhaus, zahlreiche Geschäfte, sowie eine hervorragende Verkehrsanbindung per Bahn, Bus und Autobahn (München/Innsbruck) sind vorhanden. Zudem locken zahlreiche Freizeitmöglichkeiten und die Nähe zu den Skigebieten Wilder Kaiser und Kitzbühel, die in wenigen Minuten erreichbar sind.
Ob Kapitalanlage oder Sanierungsprojekt für Bauträger – diese Immobilie im Herzen von Kufstein, am Fuße der beeindruckenden Festung, bietet vielfältige Möglichkeiten. Die einzigartige Lage besticht durch eine atemberaubende Aussicht auf die Festung, den Pendling und das Kaisergebirge.
Das Wohn- und Geschäftshaus aus dem Jahr 1972 befindet sich auf einem 1.111 m² großen Grundstück (Widmung: Bauland Sonderfläche Kerngebiet) und erstreckt sich über vier Ebenen: Tiefparterre, Erdgeschoss, 1. und 2. Obergeschoss. Es umfasst 9 Wohneinheiten, eine Büroeinheit sowie eine große Gewerbeeinheit im Erdgeschoss, mit einer Gesamtfläche von 1.787,94 m².
Alle Wohneinheiten sind derzeit befristet vermietet mit einer monatlichen Nettomiete von 12.316,65 EUR.
Unbefristete Mietverträge bestehen nicht. Die Gewerbe-Halle ist zurzeit in der Neuvermietung. Hier wurde daher der derzeitig angebotene Mietzins zur Berechnung herangezogen.
Das Gebäude ist nicht denkmalgeschützt und befindet sich in einem guten baulichen Zustand. Mit einer Baudichte von etwa BMD 6,00 ist das Grundstück bereits umfassend bebaut, was es zu einem idealen Kandidaten für eine Sanierung macht. Dank der flexiblen Skelettbauweise lassen sich die Grundrisse individuell gestalten – beispielsweise für WG-geeignete Wohnungen oder andere Nutzungskonzepte (einige Umbauten wurden bereits vorgenommen).
Diese Immobilie bietet zahlreiche attraktive Entwicklungsmöglichkeiten, über die wir Sie gerne detailliert informieren.
Über Kufstein:
Die Bezirkshauptstadt Kufstein überzeugt durch eine exzellente Infrastruktur und hohe Lebensqualität. Alle wichtigen Einrichtungen wie Schulen, Ärzte, ein Bezirkskrankenhaus, zahlreiche Geschäfte, sowie eine hervorragende Verkehrsanbindung per Bahn, Bus und Autobahn (München/Innsbruck) sind vorhanden. Zudem locken zahlreiche Freizeitmöglichkeiten und die Nähe zu den Skigebieten Wilder Kaiser und Kitzbühel, die in wenigen Minuten erreichbar sind.
Infrastruktur / Entfernungen
Gesundheit
Arzt <500m
Apotheke <500m
Krankenhaus <2.000m
Kinder & Schulen
Schule <500m
Kindergarten <500m
Höhere Schule <2.000m
Universität <1.000m
Nahversorgung
Supermarkt <500m
Bäckerei <500m
Einkaufszentrum <500m
Sonstige
Bank <500m
Geldautomat <500m
Post <500m
Polizei <500m
Verkehr
Bus <500m
Autobahnanschluss <2.000m
Bahnhof <1.000m
Flughafen <3.500m
Angaben Entfernung Luftlinie / Quelle: OpenStreetMap
Objektdaten
Ausstattung
- Kabel/SAT-TV
- Wasch-/Trockenraum
- Zentralheizung
- Fern Befeuerung
Zustand
- Zustand
- GEPFLEGT
- Baujahr
- 1972
- HWB
- 94 kWh/m² pro Jahr
- Klasse HWB
- C
- fGEE
- 1.47
- Klasse fGEE
- C
Flächen
- Nutzfläche
- 1.788m²
- Grundstücksfläche
- 1.111m²
Kosten
- Betriebskosten
- € 4.978,33
Zinshäuser und Renditeobjekte zum Kaufen in Österreich
Andere Besucher suchen nach...
- Immobilien kaufen in 2601 Sollenau
- Immobilien in 4951 Polling im Innkreis, Oberösterreich
- Immobilien in 4742 Pram, Oberösterreich kaufen oder mieten
- Häuser kaufen in 2340 Mödling, Niederösterreich
- Häuser kaufen in 9421 Gemmersdorf, Kärnten
- Wohnungen / Eigentumswohnungen kaufen in 9431 St. Stefan, Kärnten
- Häuser kaufen in Bruck an der Leitha, Niederösterreich
- Immobilien mieten in Krems an der Donau, Niederösterreich
- Häuser zum Kaufen im Bezirk St. Pölten Land, Niederösterreich
- Büro / Praxen mieten in Rohrbach, Oberösterreich