Repräsentative Wohn- und Geschäftsliegenschaft in begehrter Toplage von Leoben-Göss
Beschreibung
Diese gemischt genutzte Liegenschaft im Zentrum von Leoben-Göss bietet eine ideale Kombination aus laufenden Erträgen, kurzfristig verfügbaren Nutzungschancen und langfristigem Entwicklungspotenzial. Die ausgewogene Mischung aus Wohnungen, Gastronomie und Gewerbe, ergänzt durch ggf. Ausbaureserven (Rücksprache Bauamt) und bestandsfreie Einheiten, macht das Objekt besonders attraktiv für Investoren, Family Offices, Stiftungen sowie professionelle Eigennutzer.
Das ursprüngliche Baujahr ist nicht eindeutig dokumentiert, erste Hinweise deuten auf eine Errichtung um 1824 hin. In den drauffolgenden Jahrzehnten wurde das Gebäude kontinuierlich an neue Nutzungen angepasst, umfassend erweitert und instand gehalten.
Das gesamte Grundstück beträgt laut GB 1.286 m² und weist KG 0,5-1,5 Widmung auf und unterliegt...
Diese gemischt genutzte Liegenschaft im Zentrum von Leoben-Göss bietet eine ideale Kombination aus laufenden Erträgen, kurzfristig verfügbaren Nutzungschancen und langfristigem Entwicklungspotenzial. Die ausgewogene Mischung aus Wohnungen, Gastronomie und Gewerbe, ergänzt durch ggf. Ausbaureserven (Rücksprache Bauamt) und bestandsfreie Einheiten, macht das Objekt besonders attraktiv für Investoren, Family Offices, Stiftungen sowie professionelle Eigennutzer.
Das ursprüngliche Baujahr ist nicht eindeutig dokumentiert, erste Hinweise deuten auf eine Errichtung um 1824 hin. In den drauffolgenden Jahrzehnten wurde das Gebäude kontinuierlich an neue Nutzungen angepasst, umfassend erweitert und instand gehalten.
Das gesamte Grundstück beträgt laut GB 1.286 m² und weist KG 0,5-1,5 Widmung auf und unterliegt der Ortsbildschutzzone. Kein Denkmalschutz.
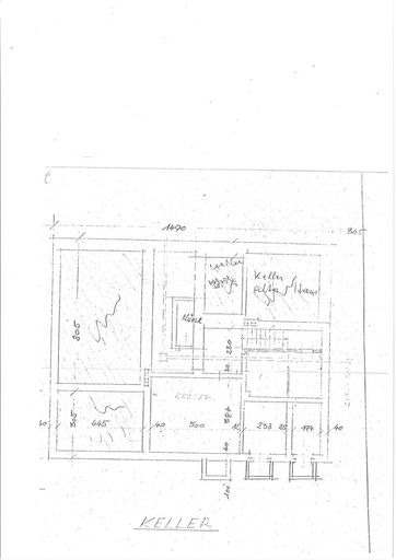
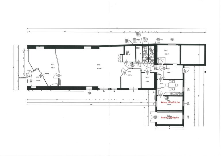
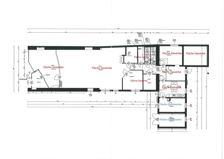
HINWEIS: Bei den Grundrissskizzen handelt es sich um schematische Darstellungen - Maße nicht verbindlich
KURZPROFIL
- Standort: Leoben-Göss (Zentrum, fußläufig zur Innenstadt)
- Nutzung: Wohnen / Gastronomie / Gewerbe
- guter baulicher Zustand, laufend investiert
- 4 WOHNUNGEN
- PREMIUM-GASTRONOMIEFLÄCHE
- GESCHÄFTSFLÄCHE
- ROHNDACHBODEN
- GARTEN
- GARAGE & mehrere PKW-STELLPLÄTZE
- TEILKELLER
OBJEKTSTRUKTUR
Erdgeschoss
- Gastronomiebetrieb (befristet vermietet) - 143,50 m² EAW HWB: 150/D fGEE: 1,43/C + 12,66 m² + Garage
umfassend saniert 2022/2023: - Ablöse für Gastronomiefläche separat - ist nicht im Kaufpreis enthalten!
- Technik, Böden, Wände, Sanitäranlagen
- hochwertiger Gastraum
- architektonisch ansprechend überdachter Gastgarten ca. 65 m² ausgeführt in Ytong und Glasflächen sowie lichtdurchlässigem Glasdach mit Beschattung und barrierefreier Zugang
kein Sanierungsrückstau, stabile Einnahmequelle - Gasanschluss zum Kochen
- EAW: HWB: E/199,5 fGEE: D/1,80 (gültig bis 21.04.2030)
- barrierefreie Geschäftsfläche – 205,66 m² EAW: HWB: 190/E fGEE: 1,53/C
- ab April 2026 bestandsfrei
- repräsentatives Foyer
- heller, freundlicher Eingangsbereich
- Küchenbereich & Sanitäranlagen
- flexible, klar strukturierte Raumaufteilung
Ideal für Praxis-, Therapie-, Beratungs- Verkaufs- oder Bildungsnutzungen
rasche Neuvermietung mit minimalem Adaptierungsaufwand
1. Obergeschoss – Wohnungen EAW: HWB 152/E fGEE 1,74/C
Zugang hofseitig, ruhig und abgeschirmt, überdachter Eingangsbereich
Alle Wohnungen verfügen über
- Zugang zum ca. 15 m² überdachten Allgemein-Balkon
- Gegensprechanlage
- Postkasten
- eigene Strom-, Wasser- & Wärmezähler
Wohnung 1
- 95,19 m²
- Küche, 3 Zimmer, Kabinett
- geräumiger Vorraum
- Bad & separates WC
- bestandsfrei - sofort nutzbar oder neu vermietbar – ideale Werthebel-Einheit
Wohnung 2
- 36,38 m²
- Wohnküche, Zimmer, Bad/WC
- befristet vermietet (bis 28.02.2026)
Wohnung 3
- 26,68 m²
- Küche, Zimmer, Bad/WC
- befristet vermietet
Wohnung 4
- 58,72 m²
- umfassend saniert
- befristet vermietet
2. Obergeschoss – Dachboden
- nicht ausgebauter Rohdachboden
Außenanlagen & Infrastruktur
- südseitig gelegener Garten
- Garage
- mehrere PKW-Stellplätze
- asphaltierte Parkflächen (2018 erneuert)
- Neubau überdachte Müllinsel
- Neubau überdachte Fahrradabstellfläche
Nachhaltige Investitionen in den letzten Jahren sichern langfristige Werthaltigkeit
Lage & Standortqualität
Zentral, urban & nachgefragt
- Ortszentrum Leoben-Göss
- wenige Gehminuten zur Innenstadt Leoben
- hervorragende öffentliche Anbindung
Bildungs- & Gesundheitsstandort
- Montanuniversität Leoben
- FH JOANNEUM
- HTL, Polytechnikum
- Kindergarten
konstante Nachfrage nach Wohn- und Praxisflächen
Wirtschaftliches Umfeld
- Mayr-Melnhof
- Gösser Brauerei
- RHI Magnesita
- Stift Göss
Stabile Beschäftigungsstruktur = langfristige Nutzungssicherheit
Investment-Highlights
- laufende Einnahmen + bestandsfreie Einheiten
- attraktive Mischung aus Wohnen, Gewerbe & Gastronomie
- absehbare Neuverwertungsoptionen (Wohnung & Geschäftsfläche)
- ggf. Ausbaureserve im Dachgeschoss (vorbehaltlich behördlicher Genehmigungen)
- sehr guter baulicher Zustand
- einer der stärksten Bildungs- und Wirtschaftsstandorte der Obersteiermark
Fazit für Investoren
Diese Liegenschaft bietet eine überdurchschnittliche Kombination aus Stabilität, Flexibilität und Entwicklungspotenzial
Die bestandsfreien und künftig bestandsfreien Flächen ermöglichen gezielte Wertsteigerung, während bestehende Mietverhältnisse für laufende Erträge und Risikostreuung sorgen
Ein Objekt mit klarer Zukunftsperspektive in nachhaltiger Toplage!
Haftungsausschluss
Dieses Exposé dient ausschließlich der unverbindlichen Vorabinformation und stellt kein rechtlich bindendes Angebot dar. Sämtliche Angaben, Darstellungen und Flächenangaben erfolgen ohne Gewähr und basieren auf den uns vorliegenden Informationen des Eigentümers bzw. Dritter.
Die enthaltenen Grundrisse sind schematische Darstellungen und nicht maßstabsgetreu. Maßangaben, Flächen und Ausstattungsmerkmale können von der tatsächlichen Ausführung abweichen. Eine Haftung für Abweichungen, Irrtümer oder Änderungen wird ausgeschlossen. Maßgeblich sind ausschließlich die Inhalte des notariellen Kaufvertrags bzw. Mietvertrags.
Alle Daten stammen vom Eigentümer, der Baubehörde oder der Verwaltung und wurden mit Sorgfalt erhoben. Für die Richtigkeit und Vollständigkeit kann keine Haftung übernommen werden. Es wird darauf hingewiesen, dass sich der Interessent vor Abschluss des Rechtsgeschäftes aus eigener Wahrnehmung d.h. Besichtigung vom Objekt zu überzeugen hat. Zahlenangaben können gerundet oder geschätzt sein. Das Anbot ist freibleibend und unverbindlich. Irrtümer und Änderungen vorbehalten. Alle Kauf und Mietpreise sind exklusive Nebenkosten und Maklerhonorar angeführt. Auf ein allfälliges wirtschaftliches oder persönliches Nahe Verhältnis wird hingewiesen. Wir weisen darauf hin, dass die Firma Immobilien Christian Rossik kraft bestehenden Geschäftsgebrauch als Doppelmakler tätig ist (§5 Abs. 3 Maklergesetz). Die nachgezeichneten Pläne können von den originalen Plänen abweichen und sind nicht maßstabgetreu.
Der Vermittler ist als Doppelmakler tätig.
Infrastruktur / Entfernungen
Gesundheit
Arzt <500m
Apotheke <500m
Krankenhaus <2.500m
Kinder & Schulen
Schule <500m
Kindergarten <500m
Universität <2.500m
Höhere Schule <2.500m
Nahversorgung
Supermarkt <500m
Bäckerei <500m
Einkaufszentrum <2.500m
Sonstige
Bank <500m
Geldautomat <500m
Post <500m
Polizei <1.500m
Verkehr
Bus <500m
Autobahnanschluss <1.500m
Bahnhof <3.000m
Angaben Entfernung Luftlinie / Quelle: OpenStreetMap
Objektdaten
Ausstattung
- Kabel/SAT-TV
- Fliesenboden
- Parkettboden
- Laminatboden
- Zentralheizung
- Fernwärme Heizung
- Fern Befeuerung
- Ausrichtung Balkon/Terrasse - Süd
- Satteldach
- Massiv Bauweise
Dokumente / Links
Zustand
- HWB
- 190 kWh/m² pro Jahr
- Klasse HWB
- E
- fGEE
- 1.53
- Klasse fGEE
- C
Flächen
- Anzahl der Balkone
- 1
- Nutzfläche
- 622m²
- Grundstücksfläche
- 1.286m²
Kosten
- Kaufpreis Brutto
- € 1.200.000,00
- enth. Umsatzsteuer
- € 200.000,00
Verwaltung
- Verfügbar ab
- nach Vereinbarung
Häuser zum Kaufen im Umkreis von Leoben
Häuser zum Kaufen in Österreich
Andere Besucher suchen nach...
- Immobilien kaufen in 2601 Sollenau
- Immobilien in 4951 Polling im Innkreis, Oberösterreich
- Immobilien in 4742 Pram, Oberösterreich kaufen oder mieten
- Häuser kaufen in 2340 Mödling, Niederösterreich
- Häuser kaufen in 9421 Gemmersdorf, Kärnten
- Wohnungen / Eigentumswohnungen kaufen in 9431 St. Stefan, Kärnten
- Häuser kaufen in Bruck an der Leitha, Niederösterreich
- Immobilien mieten in Krems an der Donau, Niederösterreich
- Häuser zum Kaufen im Bezirk St. Pölten Land, Niederösterreich
- Büro / Praxen mieten in Rohrbach, Oberösterreich