6,6% Rendite ! Attraktive Gewerbeimmobilie mit Entwicklungspotenzial in Rottenmann
Beschreibung
Attraktives Renditeobjekt mit Entwicklungspotenzial
Zum Verkauf gelangt eine zentral gelegene Liegenschaft in 8786 Rottenmann, die sich als nachhaltige Investition mit vielseitigen Nutzungsmöglichkeiten präsentiert. Das Objekt eignet sich sowohl für gewerbliche Konzepte als auch für eine teilweise oder vollständige Umnutzung zu Wohnraum.
Die Immobilie ist derzeit teilweise vermietet. Das Erdgeschoss ist an einen verlässlichen Mieter vergeben und generiert bereits laufende Einnahmen. Für die Flächen im ersten und zweiten Obergeschoss sowie für drei Garagen liegen bereits weitere Interessensbekundungen vor, wodurch zusätzliches Ertragspotenzial gegeben ist.
Die monatlichen Mieteinnahmen belaufen sich auf 4.950,29€ Netto.
Besondere Merkmale
-
18 PKW-Stellplätze
- ...
Attraktives Renditeobjekt mit Entwicklungspotenzial
Zum Verkauf gelangt eine zentral gelegene Liegenschaft in 8786 Rottenmann, die sich als nachhaltige Investition mit vielseitigen Nutzungsmöglichkeiten präsentiert. Das Objekt eignet sich sowohl für gewerbliche Konzepte als auch für eine teilweise oder vollständige Umnutzung zu Wohnraum.
Die Immobilie ist derzeit teilweise vermietet. Das Erdgeschoss ist an einen verlässlichen Mieter vergeben und generiert bereits laufende Einnahmen. Für die Flächen im ersten und zweiten Obergeschoss sowie für drei Garagen liegen bereits weitere Interessensbekundungen vor, wodurch zusätzliches Ertragspotenzial gegeben ist.
Die monatlichen Mieteinnahmen belaufen sich auf 4.950,29€ Netto.
Besondere Merkmale
18 PKW-Stellplätze
3 Garagen
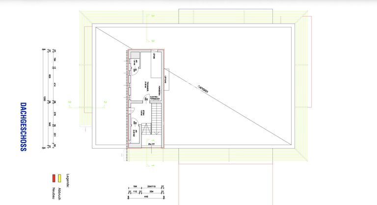
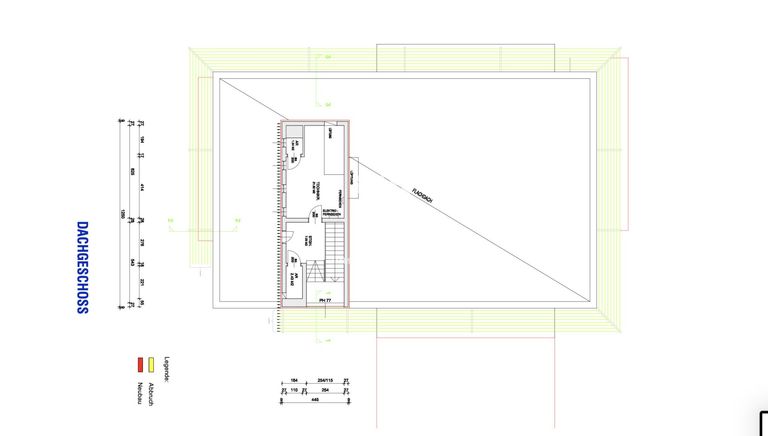
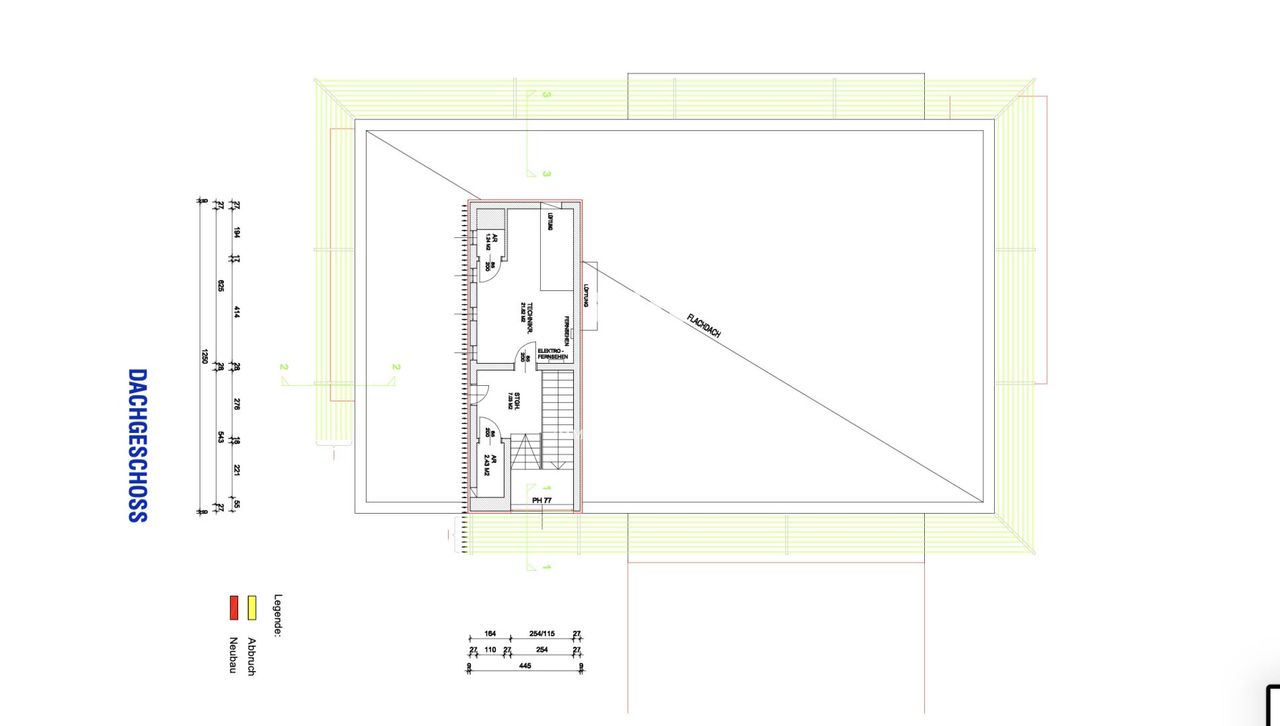
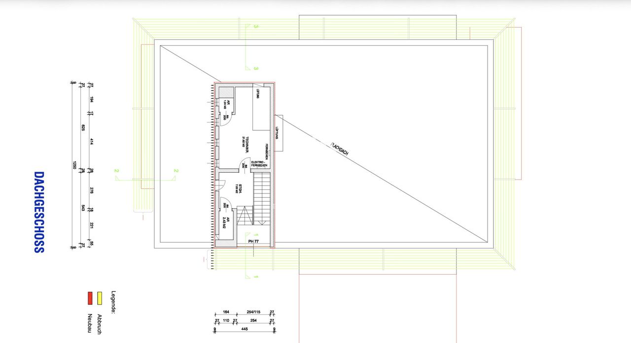
Lagerflächen: ca. 390 m² im Keller und ca. 32 m² im Dachgeschoss
Zentrale Lage mit hoher Sichtbarkeit und Verkehrsfrequenz
Sehr gute Anbindung an öffentliche Verkehrsmittel
Großzügige Nutzfläche mit vielfältigen Nutzungsmöglichkeiten
Bestehendes Mietverhältnis mit weiterem Vermietungspotenzial
Klimaanlage im 2. Obergeschoss
Separat regulierbare Raumtemperatur
Glasfaseranschluss
Fern- und Bergblick
Letzte Sanierung im Jahr 2020
Verkehrsanbindung
Buslinien 915, 930 und 931, ca. 2 Minuten entfernt
Bahnhof Rottenmann, ca. 5 Minuten
Kosten & Hinweise
Monatliche Kosten sind auf Anfrage verfügbar.
Alle Angaben beruhen auf Informationen des Abgebers. Änderungen und Irrtümer vorbehalten, eine Haftung für Vollständigkeit und Richtigkeit kann nicht übernommen werden.
"BITTE BEACHTEN SIE, DASS WIR AUFGRUND DER NACHWEISPFLICHT GEGENÜBER DEM EIGENTÜMER NUR ANFRAGEN MIT VOLLSTÄNDIGER ANGABE DER ANSCHRIFT UND ANGABEN ZUR PERSON (NAME, TELEFON, E-MAIL) BEARBEITEN KÖNNEN."
Wir weisen darauf hin, dass zwischen dem Vermittler und dem zu vermittelnden Dritten ein familiäres oder wirtschaftliches Naheverhältnis besteht.
Der Vermittler ist als Doppelmakler tätig.
Infrastruktur / Entfernungen
Gesundheit
Arzt <500m
Apotheke <500m
Krankenhaus <500m
Kinder & Schulen
Schule <500m
Kindergarten <500m
Nahversorgung
Supermarkt <500m
Bäckerei <7.500m
Einkaufszentrum <9.500m
Sonstige
Geldautomat <500m
Bank <500m
Post <500m
Polizei <9.500m
Verkehr
Bus <500m
Autobahnanschluss <1.500m
Bahnhof <500m
Angaben Entfernung Luftlinie / Quelle: OpenStreetMap
Objektdaten
Ausstattung
- Klimatisiert
- Kabelkanäle
- Zentralheizung
- Fern Befeuerung
- Flachdach
- Massiv Bauweise
Zustand
- Zustand
- NACH_VEREINBARUNG
- Baujahr
- 1970
- Alter
- NEUBAU
- HWB
- 109.2 kWh/m² pro Jahr
- Klasse HWB
- E
- fGEE
- 1.77
- Klasse fGEE
- D
Flächen
- Anzahl der Zimmer
- 25
- Anzahl der sep. WCs
- 4
- Stellplätze
- 18
- Nutzfläche
- 1.080m²
- Lagerfläche
- 423m²
- Grundstücksfläche
- 1.690m²
- Kellerfläche
- 391m²
Kosten
- Kaufpreis Brutto
- € 900.000,00
Verwaltung
- Verfügbar ab
- nach Vereinbarung
Andere Besucher suchen nach...
- Grundstücke kaufen in 3400 Weidlingbach
- Wohnungen kaufen in 4663 Laakirchen
- Häuser in 7471 Rechnitz
- Wohnungen in 2410 Hainburg an der Donau
- Häuser kaufen in 2432 Schwadorf
- Wohnungen kaufen in 3002 Purkersdorf
- Häuser in 3150 Wilhelmsburg
- Wohnungen kaufen in 3470 Engelmannsbrunn
- Grundstücke kaufen im Bezirk Mattersburg
- Grundstücke kaufen im Bezirk Gmunden