Haus mit viel Potenzial in Linz-Ebelsberg – Nähe Schloss Ebelsberg
Beschreibung
Haus mit viel Potenzial in Linz-Ebelsberg – Nähe Schloss Ebelsberg
Dieses vielseitige Wohn- und Gewerbeobjekt bietet großzügige Flächen, eine solide Bausubstanz und laufend durchgeführte Sanierungen, die es sowohl für Eigennutzer als auch für Investoren besonders interessant machen. Das Hauptgebäude wurde ursprünglich um 1940 errichtet und seither mehrfach erweitert und modernisiert. Es verfügt über Stahlbetondecken, einen Kaminanschluss sowie einen bewilligten Brunnen im Keller. Eine umfassende Generalsanierung erfolgte 1985, weitere Teilsanierungen zwischen 2000 und 2005 umfassten den Einbau einer neuen Heizungsanlage, die Erneuerung der Elektroinstallationen inklusive Verteilerkasten, sowie die Sanierung der Gewerbeflächen im Erdgeschoss und der Wohnung im 2. Obergeschoss. Die Hoffassade...
Haus mit viel Potenzial in Linz-Ebelsberg – Nähe Schloss Ebelsberg
Dieses vielseitige Wohn- und Gewerbeobjekt bietet großzügige Flächen, eine solide Bausubstanz und laufend durchgeführte Sanierungen, die es sowohl für Eigennutzer als auch für Investoren besonders interessant machen. Das Hauptgebäude wurde ursprünglich um 1940 errichtet und seither mehrfach erweitert und modernisiert. Es verfügt über Stahlbetondecken, einen Kaminanschluss sowie einen bewilligten Brunnen im Keller. Eine umfassende Generalsanierung erfolgte 1985, weitere Teilsanierungen zwischen 2000 und 2005 umfassten den Einbau einer neuen Heizungsanlage, die Erneuerung der Elektroinstallationen inklusive Verteilerkasten, sowie die Sanierung der Gewerbeflächen im Erdgeschoss und der Wohnung im 2. Obergeschoss. Die Hoffassade wurde 2015 instand gesetzt.
Der hofseitige Zubau wurde ca. 1975 errichtet und 2017 generalsaniert. Dabei wurden unter anderem neue Kunststofffenster mit 3-fach-Verglasung eingebaut. Die Beheizung des gesamten Objekts erfolgt über eine Kombination aus Erdgas und Fernwärme – eine effiziente und moderne Lösung. Im Innenhof stehen zwei Garagenplätze sowie ein zusätzlicher Abstellplatz zur Verfügung.
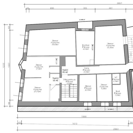
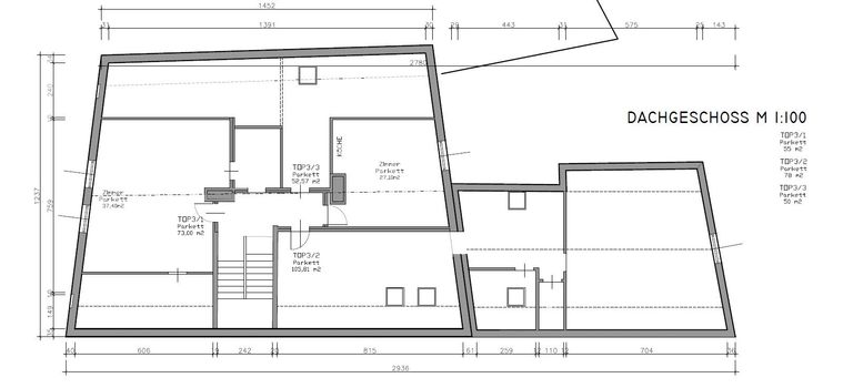
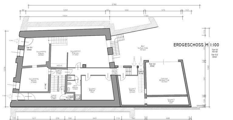
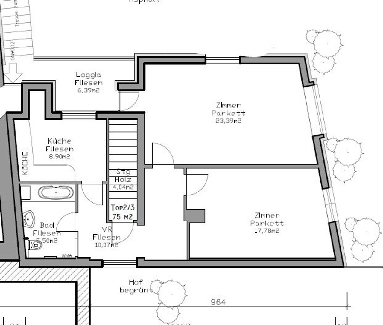
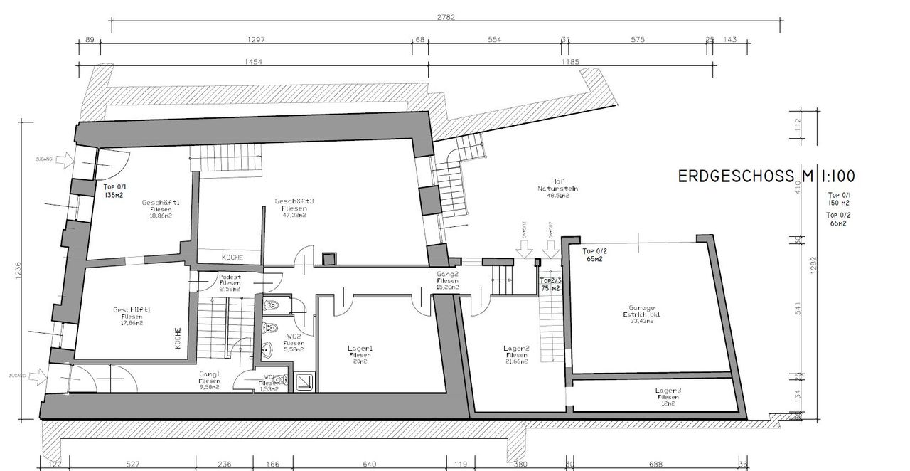
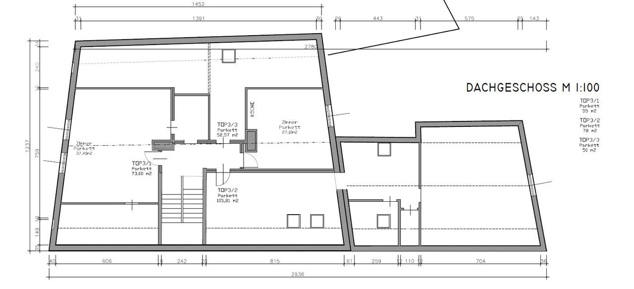
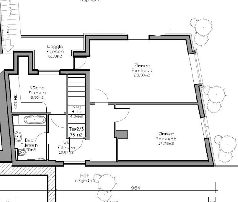
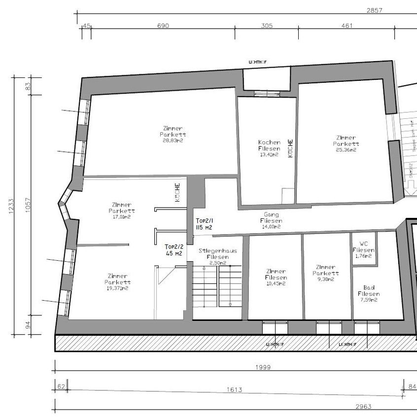
Raumaufteilung
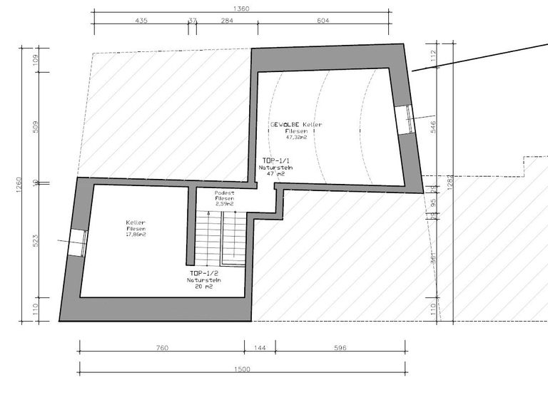
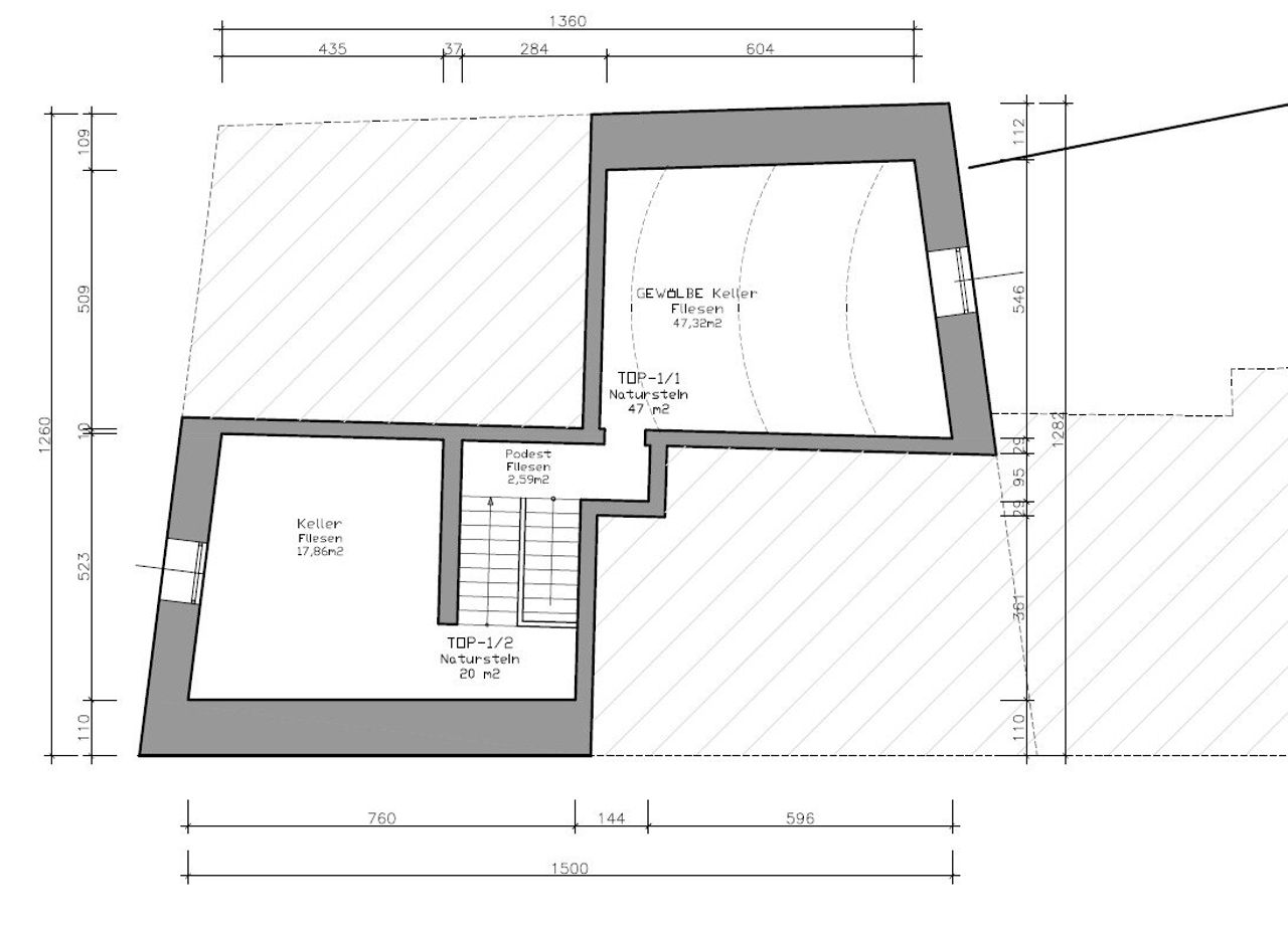
Die Gesamtnutzfläche beträgt ca. 850 m² und verteilt sich wie folgt: Kellergeschoss: ca. 50 m² - Erdgeschoss: ca. 220 m² - 1.Obergeschoss: ca. 50 m² - 2.Obergeschoss: ca. 220 m² - Dachgeschoss: ca. 220 m² - Dachfläche (ausbaufähig): ca. 100 m²
Lage
Die Liegenschaft punktet mit einer hervorragenden Lage und Infrastruktur: Direkt gegenüber dem Gebäude befinden sich Haltestellen für Bus und Straßenbahn, wodurch eine optimale Anbindung an das öffentliche Verkehrsnetz gewährleistet ist. Eine Kurzparkzone vor dem Haus erleichtert die Erreichbarkeit zusätzlich. Ein besonderes Highlight ist die direkte angrenzende Lage des hinteren Grundstücksteils an das Naherholungsgebiet Ebelsberger Schlossberg – ein wertvoller Grünraum, der sowohl für Wohn- als auch Gewerbenutzung einen hohen Freizeitwert bietet.
Sie haben Interesse?
Ansehen lohnt sich - wir freuen uns über Ihr Interesse! Für weitere Fragen stehen wir Ihnen gerne unter der Rufnummer 0664 386 26 80 zur Verfügung.
Rechtliche Informationen
Bitte beachten Sie, dass aufgrund unserer ALLEINBEAUFTRAGUNG und Nachweispflicht für den Abgeber ausschließlich Anfragen unter Angabe Ihrer VOLLSTÄNDIGEN DATEN bearbeiten können ( NAME,ANSCHRIFT, E MAIL, Telefonnummer).
Explizit weisen wir daraufhin , dass alle Angaben nach besten Wissen erstellt wurden . Irrtümer , Druckfehler und Änderungen vorbehalten.
Für Auskünfte u. Angaben, die uns von Seiten der Eigentümer und Dritten zur Verfügung gestellt wurden, können wir keine Haftung übernehmen. Besichtigungen u. Beratungen erfolgen kostenlos , lediglich im Falle einer erfolgreichen Vermittlung ist die gesetzliche Provision zur Zahlung fällig.
Wir weisen darauf hin, dass zwischen dem Vermittler und dem zu vermittelnden Dritten ein familiäres oder wirtschaftliches Naheverhältnis besteht.
Der Vermittler ist als Doppelmakler tätig.
Infrastruktur / Entfernungen
Gesundheit
Arzt <500m
Apotheke <500m
Krankenhaus <4.500m
Klinik <3.000m
Kinder & Schulen
Kindergarten <500m
Schule <1.000m
Universität <5.500m
Höhere Schule <7.000m
Nahversorgung
Supermarkt <500m
Bäckerei <500m
Einkaufszentrum <3.500m
Sonstige
Bank <500m
Geldautomat <1.500m
Post <1.500m
Polizei <1.500m
Verkehr
Bus <500m
Straßenbahn <500m
Bahnhof <2.000m
Autobahnanschluss <2.500m
Flughafen <6.000m
Angaben Entfernung Luftlinie / Quelle: OpenStreetMap
Objektdaten
Ausstattung
- Bad mit Dusche
- Bad mit Badewanne
- Fliesenboden
- Parkettboden
- Fernwärme Heizung
- Befeuerung mit Gas
Zustand
- Baujahr
- 1945
- HWB
- 121 kWh/m² pro Jahr
- Klasse HWB
- D
- fGEE
- 1.95
- Klasse fGEE
- D
Flächen
- Stellplätze
- 1
- Nutzfläche
- 850m²
Kosten
- Kaufpreis Brutto
- € 990.000,00
- Betriebskosten
- € 500,00
Andere Besucher suchen nach...
- Grundstücke kaufen in 3400 Weidlingbach
- Wohnungen kaufen in 4663 Laakirchen
- Häuser in 7471 Rechnitz
- Wohnungen in 2410 Hainburg an der Donau
- Häuser kaufen in 2432 Schwadorf
- Wohnungen kaufen in 3002 Purkersdorf
- Häuser in 3150 Wilhelmsburg
- Wohnungen kaufen in 3470 Engelmannsbrunn
- Grundstücke kaufen im Bezirk Mattersburg
- Grundstücke kaufen im Bezirk Gmunden