Villa Neuhaus – Wohnen, Arbeiten und Vorsorgen in einem einzigartigen Ensemble
€ 1.600.000
€ 4.000 / m²
9587 Riegersdorf
-
Erstbezug
-
ca. 2024
-
Jänner 2026
Beschreibung
Villa Neuhaus – Architektur trifft Technik, Natur und Zukunft Willkommen in der Villa Neuhaus, einem der nachhaltigsten und architektonisch anspruchsvollsten Wohnprojekte Kärntens. Dieses einzigartige Ensemble vereint ökologische Naturmaterialien, traditionelle Handwerkskunst und modernste Gebäudetechnik zu einem Lebensraum, der weit über konventionelles Wohnen hinausgeht. Errichtet von einem renommierten Stuckateurmeister mit zahlreichen Referenzprojekten im gesamten deutschsprachigen Raum, besticht die Villa durch atmende Wände, fein abgestimmte Natursteine, ein ganzheitliches Farbkonzept im Einklang mit dem Villacher Hausberg Dobratsch sowie eine in Putz und Stuck integrierte, passive LED-Technologie. Photovoltaik, Wärmepumpe und Batteriespeicher ermöglichen ein nahezu energieautarkes Wohnen auf höchstem Niveau. Architektonisches Konzept – Zwei Bauteile, eine...
Villa Neuhaus – Architektur trifft Technik, Natur und Zukunft
Willkommen in der Villa Neuhaus, einem der nachhaltigsten und architektonisch anspruchsvollsten Wohnprojekte Kärntens. Dieses einzigartige Ensemble vereint ökologische Naturmaterialien, traditionelle Handwerkskunst und modernste Gebäudetechnik zu einem Lebensraum, der weit über konventionelles Wohnen hinausgeht.
Errichtet von einem renommierten Stuckateurmeister mit zahlreichen Referenzprojekten im gesamten deutschsprachigen Raum, besticht die Villa durch atmende Wände, fein abgestimmte Natursteine, ein ganzheitliches Farbkonzept im Einklang mit dem Villacher Hausberg Dobratsch sowie eine in Putz und Stuck integrierte, passive LED-Technologie. Photovoltaik, Wärmepumpe und Batteriespeicher ermöglichen ein nahezu energieautarkes Wohnen auf höchstem Niveau.
Architektonisches Konzept – Zwei Bauteile, eine Vision
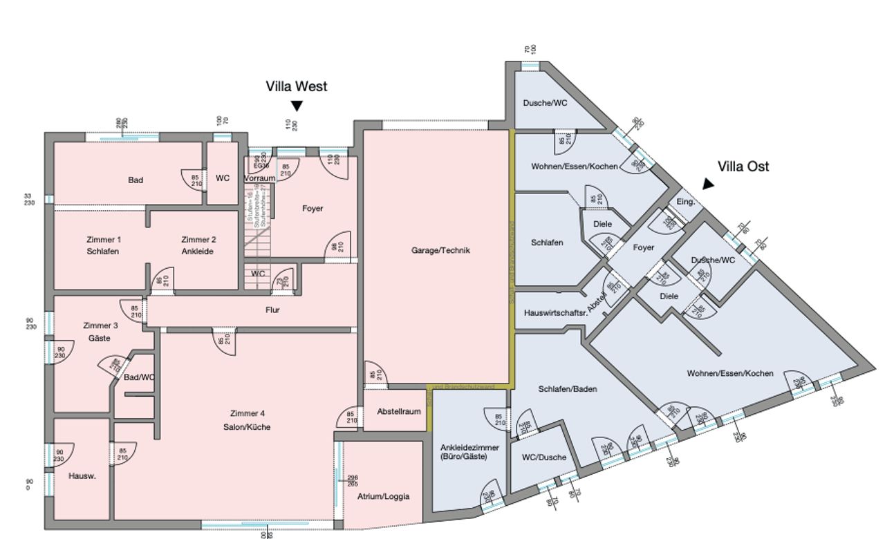
Das Anwesen gliedert sich in zwei eigenständige Gebäudeteile – Westvilla und Ostvilla, jeweils mit separaten Eingangsportalen. Diese Konfiguration erlaubt flexible Nutzungsszenarien: von Mehrgenerationenwohnen über repräsentatives Arbeiten bis hin zu separaten Vorsorge- oder Anlageeinheiten.
Mit einer Gesamtwohnfläche von rund 400 m², 15 Zimmern, 8 Bädern sowie einem zusätzlichen Gäste-WC bietet die Villa großzügige Raumstrukturen und vielseitige Nutzungsmöglichkeiten. Der lichtdurchflutete Salon mit knapp 5 m Raumhöhe schafft ein einzigartiges Ambiente, das Wohnen, Arbeiten und Repräsentieren harmonisch verbindet.
Highlights & Ausstattung im Überblick:
- Zwei Bauteile: West- & Ostvilla mit separaten Eingängen – ideal für flexible Nutzungskonzepte
- 15 Zimmer, 8 Bäder, Gäste-WC – Raum für Familie, Arbeit und Gäste auf höchstem Niveau
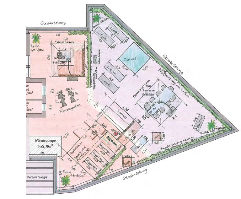
- 180 m² uneinsehbare Dachterrasse (optional) mit spektakulärem Alpenblick
- Atrium mit Pergola & Weinranken – mediterranes Flair und natürliche Lichtführung
- Gesundes Raumklima durch Sumpfkalk, Holz und Naturstein
- Modeste LED-Technik, nahtlos in Putz- und Stuckarbeiten integriert – ästhetisch und energieeffizient
- Smarte Haustechnik & Netzwerkverkabelung, mehrfach in jedem Raum – zukunftssicheres, digitales Wohnen
- Elektrosmog-Abschirmung & Glasfaseranschluss – modernes Wohnen ohne Kompromisse
- Energieautarkie dank Photovoltaik, Wärmepumpe & Batteriespeicher
- Baureserve am Grundstück für künftige Erweiterungen oder zusätzliche Einheiten
- Beheizter Hobbyschuppen mit Vollbetonplatte – vielseitig nutzbar
- Carports bzw. Garagen sind optional realisierbar und bieten zusätzliche Flexibilität bei der Gestaltung der Außenanlagen
Fertigstellung & Gestaltungsspielraum:
Der Innenausbau wird vom Eigentümer bis Jahresende weitgehend fertiggestellt, die Außenanlage wird mit Humus und Rasen vorbereitet. Die finale Gartengestaltung sowie die Ausführung von Carports bzw. Garagen obliegen dem neuen Eigentümer, wodurch individuelle Akzente und architektonische Erweiterungen optimal eingebracht werden können.
Das Masterbad der Westvilla kann auf Wunsch noch vom neuen Eigentümer aktiv mitgestaltet werden, um persönliche Designvorstellungen in das Gesamtkonzept einzubringen.
Die Villa Neuhaus ist weit mehr als ein Wohnhaus – sie ist ein architektonisches Vermächtnis, das Wertbeständigkeit, Nachhaltigkeit und Komfort in einzigartiger Weise verbindet. Die Symbiose aus klassischem Handwerk, technologischer Avantgarde und ökologischer Verantwortung macht dieses Objekt zu einem seltenen Juwel am Kärntner Immobilienmarkt.
Willkommen in der Villa Neuhaus, einem der nachhaltigsten und architektonisch anspruchsvollsten Wohnprojekte Kärntens. Dieses einzigartige Ensemble vereint ökologische Naturmaterialien, traditionelle Handwerkskunst und modernste Gebäudetechnik zu einem Lebensraum, der weit über konventionelles Wohnen hinausgeht.
Errichtet von einem renommierten Stuckateurmeister mit zahlreichen Referenzprojekten im gesamten deutschsprachigen Raum, besticht die Villa durch atmende Wände, fein abgestimmte Natursteine, ein ganzheitliches Farbkonzept im Einklang mit dem Villacher Hausberg Dobratsch sowie eine in Putz und Stuck integrierte, passive LED-Technologie. Photovoltaik, Wärmepumpe und Batteriespeicher ermöglichen ein nahezu energieautarkes Wohnen auf höchstem Niveau.
Architektonisches Konzept – Zwei Bauteile, eine Vision
Das Anwesen gliedert sich in zwei eigenständige Gebäudeteile – Westvilla und Ostvilla, jeweils mit separaten Eingangsportalen. Diese Konfiguration erlaubt flexible Nutzungsszenarien: von Mehrgenerationenwohnen über repräsentatives Arbeiten bis hin zu separaten Vorsorge- oder Anlageeinheiten.
Mit einer Gesamtwohnfläche von rund 400 m², 15 Zimmern, 8 Bädern sowie einem zusätzlichen Gäste-WC bietet die Villa großzügige Raumstrukturen und vielseitige Nutzungsmöglichkeiten. Der lichtdurchflutete Salon mit knapp 5 m Raumhöhe schafft ein einzigartiges Ambiente, das Wohnen, Arbeiten und Repräsentieren harmonisch verbindet.
Highlights & Ausstattung im Überblick:
- Zwei Bauteile: West- & Ostvilla mit separaten Eingängen – ideal für flexible Nutzungskonzepte
- 15 Zimmer, 8 Bäder, Gäste-WC – Raum für Familie, Arbeit und Gäste auf höchstem Niveau
- 180 m² uneinsehbare Dachterrasse (optional) mit spektakulärem Alpenblick
- Atrium mit Pergola & Weinranken – mediterranes Flair und natürliche Lichtführung
- Gesundes Raumklima durch Sumpfkalk, Holz und Naturstein
- Modeste LED-Technik, nahtlos in Putz- und Stuckarbeiten integriert – ästhetisch und energieeffizient
- Smarte Haustechnik & Netzwerkverkabelung, mehrfach in jedem Raum – zukunftssicheres, digitales Wohnen
- Elektrosmog-Abschirmung & Glasfaseranschluss – modernes Wohnen ohne Kompromisse
- Energieautarkie dank Photovoltaik, Wärmepumpe & Batteriespeicher
- Baureserve am Grundstück für künftige Erweiterungen oder zusätzliche Einheiten
- Beheizter Hobbyschuppen mit Vollbetonplatte – vielseitig nutzbar
- Carports bzw. Garagen sind optional realisierbar und bieten zusätzliche Flexibilität bei der Gestaltung der Außenanlagen
Fertigstellung & Gestaltungsspielraum:
Der Innenausbau wird vom Eigentümer bis Jahresende weitgehend fertiggestellt, die Außenanlage wird mit Humus und Rasen vorbereitet. Die finale Gartengestaltung sowie die Ausführung von Carports bzw. Garagen obliegen dem neuen Eigentümer, wodurch individuelle Akzente und architektonische Erweiterungen optimal eingebracht werden können.
Das Masterbad der Westvilla kann auf Wunsch noch vom neuen Eigentümer aktiv mitgestaltet werden, um persönliche Designvorstellungen in das Gesamtkonzept einzubringen.
Die Villa Neuhaus ist weit mehr als ein Wohnhaus – sie ist ein architektonisches Vermächtnis, das Wertbeständigkeit, Nachhaltigkeit und Komfort in einzigartiger Weise verbindet. Die Symbiose aus klassischem Handwerk, technologischer Avantgarde und ökologischer Verantwortung macht dieses Objekt zu einem seltenen Juwel am Kärntner Immobilienmarkt.
| Angaben gemäß gesetzlichem Erfordernis: | |||
| Heizwärmebedarf: | 33.5 kWh/(m²a) | ||
Objektdaten
Ausstattung
- WG geeignet
- Räume veränderbar
- Kamin
- Gartennutzung
- Kabel/SAT-TV
- Barrierefrei
- Zentralheizung
- Erdwärme
- Holz Bauweise
- Passivhaus
- Niedrigenergie
- Sonstiges
- Sonstiges
- Bad
- Barrierefrei
- Holz Bauweise
- Boden
- Bus
- Dorfrand
- Eisenbahn
- Geschirrspüler
- Sonstiges
- Glaskeramikfeld
- Grüne Lage
- Kamin
- Küche
- Ländliche Lage
- Sonstiges
- Räume veränderbar
- Kabel/SAT-TV
- Sonnige Lage
- Trockner
- Waschmaschine
- Zentralheizung mit Wärmepumpe
Zustand
- Zustand
- ERSTBEZUG
- Baujahr
- ca. 2024
- Alter
- NEUBAU
Flächen
- Anzahl der Zimmer
- 15
- Anzahl der Badezimmer
- 8
- Anzahl der sep. WCs
- 8
- Stellplätze
- 1
- Anzahl der Wohninheiten
- 4
- Anzahl der Inliegerwohnungen
- 1
- Wohnfläche
- 400m²
- Grundstücksfläche
- 1.600m²
Kosten
- Kaufpreis
- € 1.600.000,00
Verwaltung
- Verfügbar ab
- Jänner 2026, ab 01. 01. 2026
- Zur gewerbl. Nutzung
- Ja
Andere Besucher suchen nach...
- Grundstücke kaufen in 3400 Weidlingbach
- Wohnungen kaufen in 4663 Laakirchen
- Häuser in 7471 Rechnitz
- Wohnungen in 2410 Hainburg an der Donau
- Häuser kaufen in 2432 Schwadorf
- Wohnungen kaufen in 3002 Purkersdorf
- Häuser in 3150 Wilhelmsburg
- Wohnungen kaufen in 3470 Engelmannsbrunn
- Grundstücke kaufen im Bezirk Mattersburg
- Grundstücke kaufen im Bezirk Gmunden