Potential zentral in Köflach. - Hauptplatz und Bahnhof fußläufig.
-
Sofort
Beschreibung
Bei dem Objekt handelt es sich um ein Haus zentral in Köflach. Eine von zwei Wohneinheiten im Erdgeschoß ist bereits saniert, eine weitere Wohneinheit wird derzeit saniert und umgebaut. Das Obergeschoß ist baufällig und bietet vielfältiges Potential für einen Aus- und Umbau nach ihren Vorstellungen. Es besteht hier auch die Möglichkeit Teile des Hauses (EG oder OG) zu erwerben.
Das Besondere an diesem Objekt:
- Zentrale Wohnlage mit Infrastruktur fußläufig.
- Bestand mit ca. 203 m² Nutzfläche.
- Teilrenoviert und sofort beziehbar.
- Großes Potential zum kleinen Preis.
- Kelleranteil mit weiterem Stauraum.
DAS HAUS.
Das Haus hat insgesamt ca....
Bei dem Objekt handelt es sich um ein Haus zentral in Köflach. Eine von zwei Wohneinheiten im Erdgeschoß ist bereits saniert, eine weitere Wohneinheit wird derzeit saniert und umgebaut.
Das Obergeschoß ist baufällig und bietet vielfältiges Potential für einen Aus- und Umbau nach ihren Vorstellungen.
Es besteht hier auch die Möglichkeit Teile des Hauses (EG oder OG) zu erwerben.
Das Besondere an diesem Objekt:
- Zentrale Wohnlage mit Infrastruktur fußläufig.
- Bestand mit ca. 203 m² Nutzfläche.
- Teilrenoviert und sofort beziehbar.
- Großes Potential zum kleinen Preis.
- Kelleranteil mit weiterem Stauraum.
DAS HAUS.
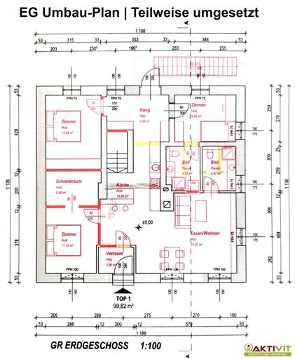
Das Haus hat insgesamt ca. 203 m² Nutzfläche. Im Erdgeschoß befinden sich zwei Einheiten, eine Einheit mit ca. 45 m² und eine Einheit mit ca. 40 m².
Es handelt sich jeweils um 1-Zimmer-Wohnungen die auch sehr gut als Ferienwohnungen geeignet sind.
Das Obergeschoß verfügt über weitere ca. 108 m² Nutzfläche und kann in vielfältiger Form umgebaut und genutzt werden.
Das Haus ist unterkellert und hat Kellerflächen von ca. 67 m².
DIE BAULICHKEIT UND AUSSTATTUNG.
Das Haus wurde in Massiv-Bauweise errichtet und bietet eine solide Substanz die im Laufe der Zeit renoviert und erhalten wurde. Das Dach wurde so zum Beispiel 2022 in Teilen saniert.
Das genaue Baujahr des Hauses wird noch erhoben, der Bestand ist jedoch über 100 Jahre alt und somit als Altbau einzustufen.
Die Wohneinheit im Erdgeschoß mit 45 m² wurde bereits saniert, die Einheit mit 40 m² wird derzeit umgebaut und saniert. In der sanierten Wohnung ist eine Infrarot-Heizung installiert.
Das Obergeschoß ist in baufälligem Zustand und bedarf einer Kernsanierung.
Zur Beantwortung weiterer Fragen sowie für Besichtigungstermine stehe ich Ihnen gerne täglich - auch am Wochenende - von 08:00 bis 22:00 Uhr zur Verfügung.
Ich freue mich über Ihre Kontaktaufnahme,
Wilhelm Rossmair
+43 664 54 24 481
w.rossmair@aktivit.org
Hinweis gemäß Energieausweisvorlagegesetz: Ein Energieausweis wurde vom Eigentümer bzw. Verkäufer, nach unserer Aufklärung über die generell geltende Vorlagepflicht, sowie Aufforderung zu seiner Erstellung noch nicht vorgelegt. Daher gilt zumindest eine dem Alter und der Art des Gebäudes entsprechende Gesamtenergieeffizienz als vereinbart. Wir übernehmen keinerlei Gewähr oder Haftung für die tatsächliche Energieeffizienz der angebotenen Immobilie.
Der Vermittler ist als Doppelmakler tätig.
Erteilen Sie uns ihren Suchauftrag und profitieren Sie von vielen Vorteilen und exklusiven Angeboten!
Ganz einfach und kostenlos unter: Jetzt Suchauftrag eingeben.
Infrastruktur / Entfernungen
Gesundheit
Arzt <500m
Apotheke <500m
Klinik <2.500m
Krankenhaus <4.500m
Kinder & Schulen
Schule <500m
Kindergarten <500m
Nahversorgung
Supermarkt <500m
Bäckerei <500m
Einkaufszentrum <3.500m
Sonstige
Geldautomat <500m
Bank <500m
Post <1.000m
Polizei <500m
Verkehr
Bus <500m
Bahnhof <500m
Angaben Entfernung Luftlinie / Quelle: OpenStreetMap
Objektdaten
Ausstattung
- Teilmöbliert
- Bad mit Dusche
- Einbauküche
- Offene Küche
- Fliesenboden
- Parkettboden
- Kunststoffboden
- Elektrische Befeuerung
- Satteldach
- Massiv Bauweise
Zustand
- Alter
- ALTBAU
Flächen
- Anzahl der Zimmer
- 4
- Anzahl der Badezimmer
- 2
- Anzahl der sep. WCs
- 2
- Wohnfläche
- 203m²
- Nutzfläche
- 203m²
- Gesamtfläche
- 203m²
- Kellerfläche
- 67m²
Kosten
- Kaufpreis Brutto
- € 180.000,00
Verwaltung
- Verfügbar ab
- Sofort
Andere Besucher suchen nach...
- Grundstücke kaufen in 3400 Weidlingbach
- Wohnungen kaufen in 4663 Laakirchen
- Häuser in 7471 Rechnitz
- Wohnungen in 2410 Hainburg an der Donau
- Häuser kaufen in 2432 Schwadorf
- Wohnungen kaufen in 3002 Purkersdorf
- Häuser in 3150 Wilhelmsburg
- Wohnungen kaufen in 3470 Engelmannsbrunn
- Grundstücke kaufen im Bezirk Mattersburg
- Grundstücke kaufen im Bezirk Gmunden