Zinshaus in gefragter Lage 1180 Wien - Juwel mit hohem Leerstand & Rohdachboden
-
sofort
Beschreibung
Objektbeschreibung
Auf einem ca. 514 m² großen Grundstück befindet sich ein voll unterkellertes Bestandsobjekt mit vielseitiger Nutzungsstruktur und erheblichem Ertrags- und Entwicklungspotenzial. Die Liegenschaft bietet eine attraktive Kombination aus Gewerbe- und Wohnnutzung in einer nachhaltig nachgefragten Lage des 18. Wiener Gemeindebezirks. Ein Abriss kommt für die Gemeinde nicht in Betracht - das Haus ist sanierungsbedürftig und kann mit etwas Geschick von einem Rohdiamanten zu einem geschliffenem Juwel erstrahlen. Zudem ist es sehr realistisch, die Mieteinnahmen aus der Vermietung des EG zu erhöhen.
Gebäudestruktur & Nutzung
Keller
-
Vollunterkellerung mit ca. 200 m²
-
Wird derzeit von...
Objektbeschreibung
Auf einem ca. 514 m² großen Grundstück befindet sich ein voll unterkellertes Bestandsobjekt mit vielseitiger Nutzungsstruktur und erheblichem Ertrags- und Entwicklungspotenzial. Die Liegenschaft bietet eine attraktive Kombination aus Gewerbe- und Wohnnutzung in einer nachhaltig nachgefragten Lage des 18. Wiener Gemeindebezirks.
Ein Abriss kommt für die Gemeinde nicht in Betracht - das Haus ist sanierungsbedürftig und kann mit etwas Geschick von einem Rohdiamanten zu einem geschliffenem Juwel erstrahlen. Zudem ist es sehr realistisch, die Mieteinnahmen aus der Vermietung des EG zu erhöhen.
Gebäudestruktur & Nutzung
Keller
Vollunterkellerung mit ca. 200 m²
Wird derzeit von der KFZ Werkstatt als Lager genutzt
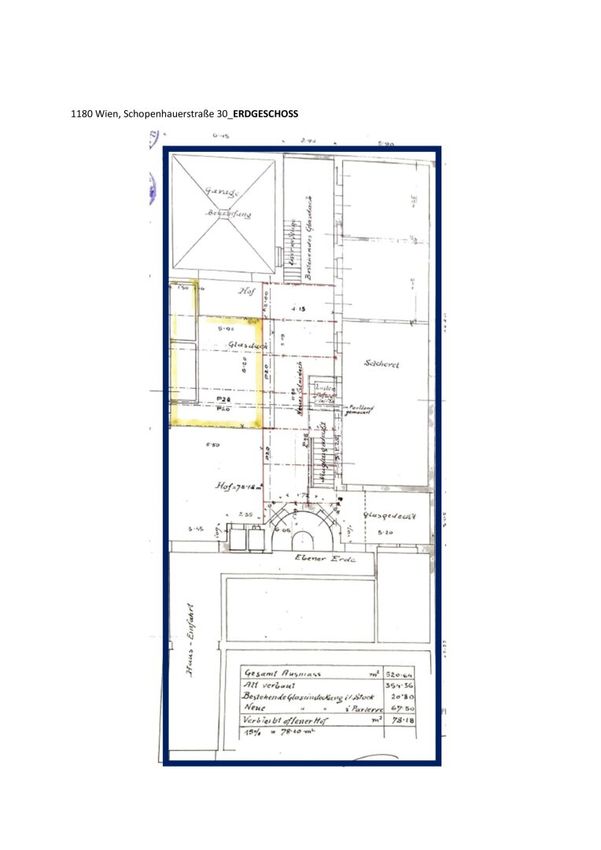
Erdgeschoss – Gewerbe
Nutzung der gesamten Fläche im Erdgeschoss als Werkstatt
Derzeit unbefristet vermietet mit einer monatliche Bruttomiete: € 2.000
1. Obergeschoss – 3 Wohnungen
Gesamtfläche ca. 140 m² - zusätzlich 100 m2 als Lagerraum über der Werkstatt vorhanden
Alle Einheiten leerstehend, sofortige Verwertungs- bzw. Vermietungsmöglichkeit
2. Obergeschoss – 3 Wohnungen
1 Wohnung mit Leerstand mit ca. 55 m²
2 zusammengelegte Wohnungen: ca. 90 m² derzeit vermietet, wird im Juni 2026 bestandsfrei
Dachgeschoss – Wohnen
1 Raum, ca. 70 m² derzeit als Lager in Verwendung
Es besteht die Möglichkeit den Rohdachboden auf ca. 274 m² Wohnraum auszubauen - Studie zum Dachbodenausbau liegt bereits vor.
Übersicht Flächen:
- Keller: 200 m2
- EG: 350 m2 + Freifläche von ca.150 m2
- OG1: 140 m2 + 100 m2
- OG2: 140 m2
- DG: 70 m2 Bestand - Ausbaumöglichkeit auf ca. 275 m2 gesamt.
Das Gebäude wurde aktuell nicht vermessen - die Alt Pläne sind dem Exposé angefügt!
Ein Energieausweis wurde beantragt und kann nachgereicht werden, sobald dieser aufliegt.
Investment-Highlights
Hoher Leerstandsanteil ermöglicht rasche Optimierung der Mieterträge
Upside-Potenzial im Gewerbebereich
Entwicklung und Ausbau des Rohdachbodens
Attraktive Mischung aus Wohn- und Gewerbeflächen
Nachhaltige Nachfrage- und Wertsteigerungslage in 1180 Wien
Zögern Sie nicht - bei Interesse vereinbare ich gerne einen Termin zur Besichtigung mit Ihnen.
Für weitere Fragen stehe ich gerne zu Verfügung.
Wir weisen darauf hin, dass zwischen dem Vermittler und dem zu vermittelnden Dritten ein familiäres oder wirtschaftliches Naheverhältnis besteht.
Der Vermittler ist als Doppelmakler tätig.
Infrastruktur / Entfernungen
Gesundheit
Arzt <500m
Apotheke <500m
Klinik <500m
Krankenhaus <500m
Kinder & Schulen
Schule <500m
Kindergarten <500m
Universität <500m
Höhere Schule <1.000m
Nahversorgung
Supermarkt <500m
Bäckerei <500m
Einkaufszentrum <1.500m
Sonstige
Geldautomat <500m
Bank <500m
Post <500m
Polizei <500m
Verkehr
Bus <500m
U-Bahn <500m
Straßenbahn <500m
Bahnhof <500m
Autobahnanschluss <2.500m
Angaben Entfernung Luftlinie / Quelle: OpenStreetMap
Objektdaten
Zustand
- Alter
- ALTBAU
Flächen
- Grundstücksfläche
- 514m²
- Kellerfläche
- 200m²
Kosten
- Kaufpreis Brutto
- € 1.600.000,00
Verwaltung
- Verfügbar ab
- sofort
Andere Besucher suchen nach...
- Grundstücke kaufen in 3400 Weidlingbach
- Wohnungen kaufen in 4663 Laakirchen
- Häuser in 7471 Rechnitz
- Wohnungen in 2410 Hainburg an der Donau
- Häuser kaufen in 2432 Schwadorf
- Wohnungen kaufen in 3002 Purkersdorf
- Häuser in 3150 Wilhelmsburg
- Wohnungen kaufen in 3470 Engelmannsbrunn
- Grundstücke kaufen im Bezirk Mattersburg
- Grundstücke kaufen im Bezirk Gmunden