ATTRAKTIVES BAURECHT IM ORTSZENTRUM VON MARIAZELL
Beschreibung
Zwei attraktive Baurechtsliegenschaften mit langfristiger Planungssicherheit
Nachhaltig investieren – Liquidität schonen – Werte sichern
Zum Verkauf gelangen zwei ehemalige Schulgebäude mit über 2.100 m² Nutzfläche in attraktiver Lage, welche im Rahmen eines Baurechts über 99 Jahre vergeben werden. Dieses Modell eröffnet Investoren und institutionellen Nutzern die Möglichkeit, langfristig gesicherte Immobiliennutzung mit optimiertem Kapitaleinsatz zu verbinden und zwei großzügige Bestandsimmobilien neu zu entwickeln.
Das Baurecht – Ihr strategischer Vorteil
Das Baurecht ist ein im Grundbuch eingetragenes, veräußerbares und vererbbares Nutzungsrecht an einer Liegenschaft und ermöglicht deren wirtschaftliche Nutzung über einen sehr langen Zeitraum, ohne dieses...
Zwei attraktive Baurechtsliegenschaften mit langfristiger Planungssicherheit
Nachhaltig investieren – Liquidität schonen – Werte sichern
Zum Verkauf gelangen zwei ehemalige Schulgebäude mit über 2.100 m² Nutzfläche in attraktiver Lage, welche im Rahmen eines Baurechts über 99 Jahre vergeben werden. Dieses Modell eröffnet Investoren und institutionellen Nutzern die Möglichkeit, langfristig gesicherte Immobiliennutzung mit optimiertem Kapitaleinsatz zu verbinden und zwei großzügige Bestandsimmobilien neu zu entwickeln.
Das Baurecht – Ihr strategischer Vorteil
Das Baurecht ist ein im Grundbuch eingetragenes, veräußerbares und vererbbares Nutzungsrecht an einer Liegenschaft und ermöglicht deren wirtschaftliche Nutzung über einen sehr langen Zeitraum, ohne dieses erwerben zu müssen.
Ihr Vorteil auf einen Blick:
- Kein Ankauf des Grundstücks erforderlich
- Fixe Laufzeit von 99 Jahren
- Schonung der Eigenmittel bei gleichzeitiger Nutzung hochwertiger Standorte
- Jederzeit Veräußerbar und übertragbar
- Planbare Kostenstruktur: Klar definierter Baurechtszins
GRUNDSTÜCKSDATEN
Grundstücke: .169/1, .169/2, .169/3, 190/1
Gesamtfläche: 1.569 m² (Baufläche 880 m2, Gartenfläche 689 m²)
Grundstücksform: annähernd rechteckig (ca. 33 m x 47 m)
Topografie: leichte Hanglage, südliche Ausrichtung
Bebauungsdichte: 0,2 – 1,2
Flächenwidmung: WA – Allgemeines Wohngebiet
Die Liegenschaft befindet sich im Ortsbildschutzgebiet der Stadt Mariazell, wodurch eine architektonisch angepasste Entwicklung erforderlich ist.
Durch die bestehende Gebäudestruktur, die großzügigen Raumhöhen (teilweise über 3,5 Meter) sowie die solide Bausubstanz eröffnen sich vielfältige Nutzungsmöglichkeiten und setzen für diese beiden historischen Gebäude eine hervorragende Grundlage für ein individuelles Entwicklungskonzept.
Das Areal umfasst zwei eigenständige Gebäude auf einer Gesamtgrundstücksfläche von 1.569 m² und befindet sich in zentraler Lage innerhalb eines allgemeinen Wohngebiets. Die Lage bietet eine attraktive Kombination aus zentraler Erreichbarkeit und ruhigem Umfeld.
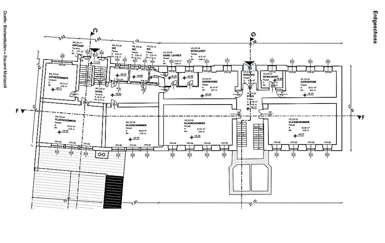
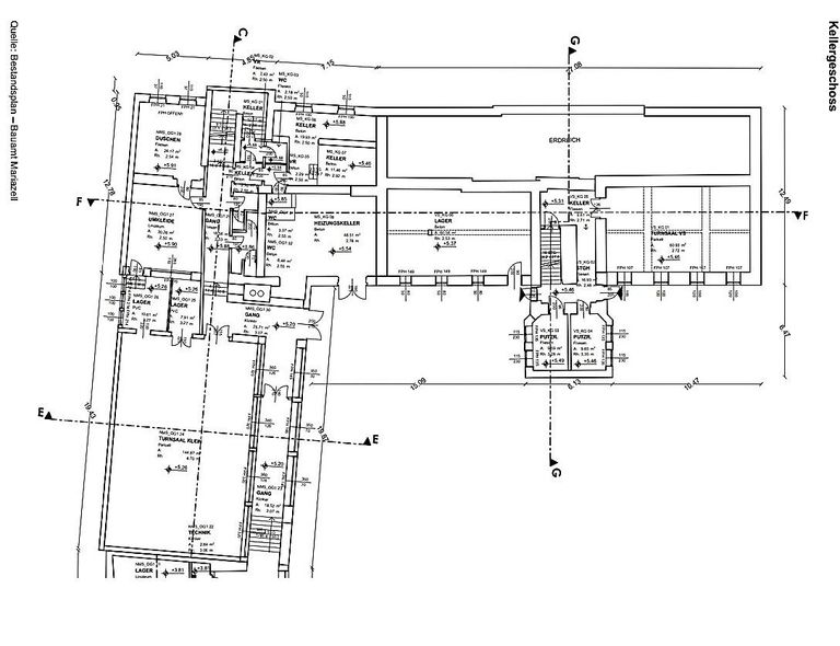
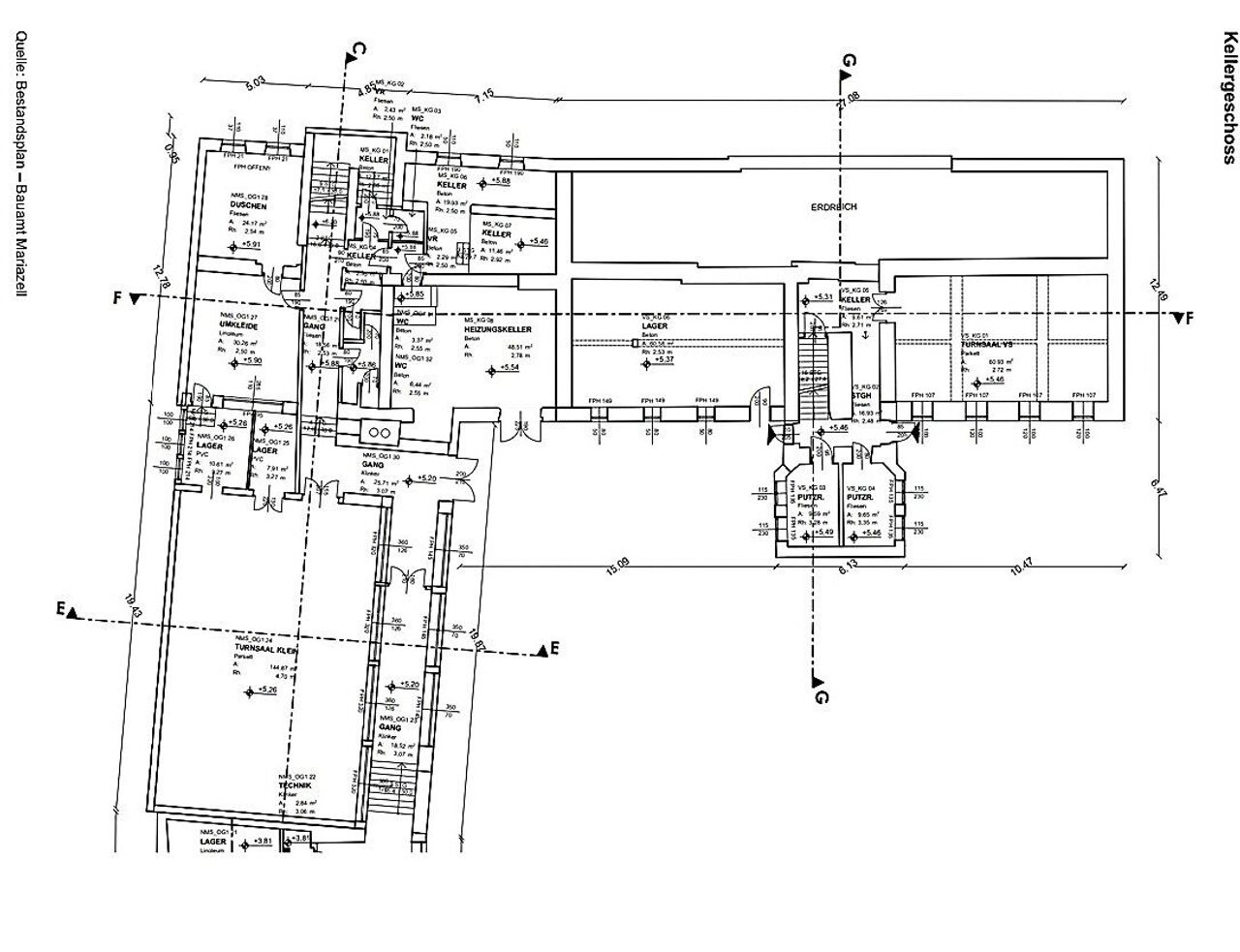
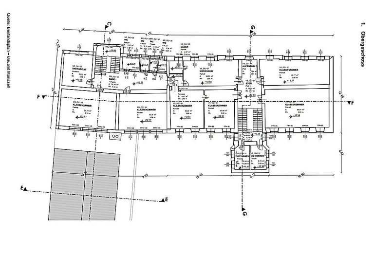
GEBÄUDEÜBERSICHT
Die Liegenschaft umfasst zwei eigenständige Gebäude, die derzeit miteinander verbunden sind, mit einer Gesamtnutzfläche von ca. 2.114 m². Beide Gebäude verfügen über großzügige Raumhöhen, einer klassische Schulstruktur mit zahlreichen Räumen und sind auch getrennt voneinander zu erwerben.
- Ehemalige Volksschule mit einer Nutzfläche von ca. 1.239 m²
- Ehemalige Musikschule mit einer Nutzfläche von ca. 875 m²
- Außenanlage: an der Südseite der Gebäude befinden sich asphaltierter Parkplatz für mehrere Abstellmöglichkeiten und Grünflächen zur Herstellung von Gartenanlagen oder Aufenthaltsflächen
HAUSTECHNIK
Die Gebäude verfügen über folgende Anschlüsse:
- öffentliche Wasserversorgung
- öffentlicher Kanalanschluss
- Stromanschluss
- Fernwärmeanschluss, Ortsnetz Mariazell
Beide Gebäude sind getrennt beheizt und können getrennt abgerechnet werden.
SEPARATE GEBÄUDEÜBERSICHT
Gebäude Morzingasse 5 – ehemalige Volksschule
- Baujahr: ca. 1890
- Gesamtnutzfläche: ca. 1.239 m²
- dreigeschossig
- teilweise unterkellert
- Haupteingang über die Morzingasse
- unausgebaute Dachbodenfläche
- mehrere Klassenzimmer, Verwaltungsräume, Turnsaal sowie zusätzliche Nutzflächen
- die Raumhöhen liegen teilweise über 3,5 m und bieten attraktive Möglichkeiten für moderne Grundrisse
Baurechtskosten
- Jährlich: EUR 20.400,- zuzgl. 20 % MWST
- Monatlich: EUR 1.700,- zuzgl. 20 % MWST
Gebäude Morzingasse 7 – ehemalige Mittel- und Musikschule
- Baujahr: ca. 1952/1953
- Gesamtnutzfläche: ca. 875 m²
- dreigeschossig
- vollständig unterkellert
- Haupteingang über die Morzingasse
- Turnsaal-Gebäude (Superädifikat)
- mehrere Klassenzimmer, Verwaltungsräumen sowie zusätzlichen Nutzflächen
- die Raumhöhen liegen teilweise über 3,5 m und bieten attraktive Möglichkeiten für moderne Grundrisse
Baurechtskosten
- Jährlich: EUR 11.400,- zuzgl. 20 % MWST
- Monatlich: EUR 950,- zuzgl. 20 % MWST
VERTRAGSKOSTEN BEI ERWERB DES BAURECHTS:
- Vertragskosten Notar
- Grunderwerbssteuer: 3,5 %
- Grundbucheintragung: 1,1 %
- Kaution: 12 Baurechtszinse (auch als Bankgarantie möglich)
- Maklerprovision
Beide Liegenschaften sind auch käuflich zu erwerben. Nähere Angabe zum Kaufpreis auf Anfrage.
NUTZUNGSPOTENTIAL
Die Immobilien bieten eine hervorragende Basis für eine wirtschaftliche Neuentwicklung. Besonders geeignet sind beispielsweise:
Bildung und Weiterbildung
- Seminarzentren
- Ausbildungsakademien mit Wohnmöglichkeiten
- Schulungsinstitute
Gesundheit & Beauty
- Longevity Center
- Medical Beauty Institute
- Therapieräume
Tourismus
- Boutique Hotel
- Hostel, um auch die Jugend in den Ort zu bringen
- Mitarbeiterunterkünfte für ortsansässige oder neugeschaffene Betriebe
Gewerbe
- Büroflächen
- Handwerksbetriebe
- Kreativ- und Unternehmensstandorte
- Reinigungsunternehmen (hier besteht ein großer Bedarf in Mariazell und Umgebung für sämtliche Privat- und Gewerbebetriebe)
LAGE
Die beiden Immobilien befinden sich in Mariazell, das zu den bekanntesten Wallfahrts- und Tourismusorten Österreichs zählt und eine hohe Besucherfrequenz sowie eine attraktive Umgebung für Dienstleistungen im Gesundheitswesen, medizinischem Bereich oder touristischer Beherbergung bietet. Die Lage befindet sich unweit vom Hauptplatz Mariazell, der belebten Geschäftsstraße Grazer Straße und unterhalb der imposanten Mariazeller Basilika. Zahlreiche, wunderschön aneinandergereihte Bürgerhäuser aus der Zeit um 1650 werten die benachbarte Lage des Hauses zusätzlich auf. Im Sommer gut besucht von vielen Gästen aus Nah und Fern, im Winter den traditionellen Mariazeller Adventmarkt - quasi direkt vor der Haustür - hier spricht die Lage einfach für sich!
Infrastruktur:
Im Ortskern von Mariazell finden Sie Geschäfte des täglichen Bedarfs (Billa, Trafik, Apotheke, LIBRO, Frisör, Banken, diverse Bekleidungsgeschäfte, Sportwaren) sowie zahlreiche Restaurants, Cafes und Beisln. Etwas außerhalb des Ortskerns befinden sich ein SPAR-Markt, Autowerkstätten, ein Gesundheitszentrum, ein Pflegeheim und eine ÖAMTC-Servicestelle.
Sportliche Einrichtungen:
Sie finden neben zahlreichen Ausgangspunkten für Wanderungen, Radtouren, Schwimmen/Tauchen im ERLAUFSEE, Tennisplätze und einen Minigolfplatz. Im Ort befinden sich die Mariazeller Bergbahnen zur Bürgeralpe, Rodelbahn, Eislaufplatz uvm. die jeden Besucher im Sommer wie Winter begeistern.
Für Anfragen und die Übermittlung weiterer Unterlagen, sowie einer Terminvereinbarung für einen Besichtigungstermin, stehe ich Ihnen gerne zur Verfügung.
Wir ersuchen Sie um Verständnis, dass wir von Ihnen vor der Zusendung des Exposés die Bestätigung des sofortigen Tätigwerdens sowie die Aufklärung des Rücktrittsrechtes gemäß FAGG (Fern- und Auswärtsgeschäfte-Gesetz) benötigen. Dies ist eine seit 13.06.2014 geänderte Konsumentenschutzbestimmung nach den EU Verbraucherrechte-Richtlinien. Nach Ihrer schriftlichen Anfrage erhalten Sie die entsprechenden Unterlagen von uns, um deren Bestätigung wir Sie bitten. Anschließend freuen wir uns über eine Terminvereinbarung mit Frau Doris Rotschopf unter 0664 302 30 53. Die Verpflichtung zur Zahlung einer Vermittlungsprovision entsteht für Sie selbstverständlich nur bei erfolgreicher Vermittlung und wird erst mit der Rechtswirksamkeit des vermittelten Geschäfts fällig.
Alle Daten stammen vom Eigentümer, der Baubehörde oder der Verwaltung und wurden mit Sorgfalt erhoben. Für die Richtigkeit und Vollständigkeit kann keine Haftung übernommen werden. Es wird darauf hingewiesen, dass sich der Interessent vor Abschluss des Rechtsgeschäftes aus eigener Wahrnehmung, d.h. Besichtigung vom Objekt, zu überzeugen hat. Zahlenangaben können gerundet oder geschätzt sein. Das Anbot ist freibleibend und unverbindlich. Irrtümer und Änderungen vorbehalten. Wir weisen darauf hin, dass die Firma Immobilien Rot, Doris Rotschopf als Doppelmakler tätig ist (§5 Abs. 3 Maklergesetz). Nachgezeichnete bzw. historische Pläne sind eventuell nicht maßstabgetreu. Verträge, die nicht in der jeweiligen Muttersprache verfasst sind, sind vom Mieter selbst in die jeweilige Sprache zu übersetzen. Gerichtsstand: Wien
Datenschutz-Grundverordnung, 25. Mai 2018: Ihre personenbezogenen Kundendaten werden von uns zum Zwecke der Vertragserfüllung erfasst, gespeichert und verarbeitet.
Der Vermittler ist als Doppelmakler tätig.
Objektdaten
Ausstattung
- Räume veränderbar
- Sporteinrichtungen
- Bad mit Pissoir
- Offene Küche
- Pantry Küche
- Fliesenboden
- Steinboden
- Parkettboden
- Linoleumboden
- Etage Heizung
- Fernwärme Heizung
- Fern Befeuerung
Zustand
- Baujahr
- 1890
- HWB
- 208 kWh/m² pro Jahr
- Klasse HWB
- F
- fGEE
- 1.68
- Klasse fGEE
- C
Flächen
- Anzahl der sep. WCs
- 19
- Nutzfläche
- 2.114m²
- Grundstücksfläche
- 1.569m²
- Gartenfläche
- 689m²
- Kellerfläche
- 350m²
Kosten
- Gesamtmiete Brutto
- € 3.180,00
- Kaution
- € 12,00
- Miete
- € 2.650,00
- Umsatzsteuer
- € 530,00
- Monatl. Gesamtbelastung Brutto
- € 3.180,00
Verwaltung
- Mietdauer
- bis 99,0 Jahre
Andere Besucher suchen nach...
- Immobilien kaufen in 2601 Sollenau
- Immobilien in 4951 Polling im Innkreis, Oberösterreich
- Immobilien in 4742 Pram, Oberösterreich kaufen oder mieten
- Häuser kaufen in 2340 Mödling, Niederösterreich
- Häuser kaufen in 9421 Gemmersdorf, Kärnten
- Wohnungen / Eigentumswohnungen kaufen in 9431 St. Stefan, Kärnten
- Häuser kaufen in Bruck an der Leitha, Niederösterreich
- Immobilien mieten in Krems an der Donau, Niederösterreich
- Häuser zum Kaufen im Bezirk St. Pölten Land, Niederösterreich
- Büro / Praxen mieten in Rohrbach, Oberösterreich