Industrial Flair – vielseitig nutzbarer Friseursalon, inkl. Lager & Parkplätzen in Wolfurt
Beschreibung
Kmenta & Partner Immobilienmakler GmbH in Kooperation mit Perfekt Immo GmbH
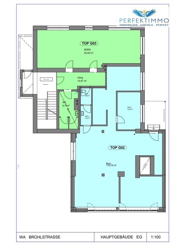
Die zum Verkauf stehende Einheit Top G02 befindet sich im modernen Anbau eines charmanten Altbaus mit historischem Kern um ca. 1900 und beeindruckt durch hohe Räume, neues WC, separaten Eingang sowie eine klare, offene Raumstruktur mit viel Licht und Potenzial.
Derzeit wird die Fläche als Friseursalon genutzt, bietet jedoch zahlreiche Nutzungsmöglichkeiten – von Praxis- oder Atelierbetrieb bis hin zur Umnutzung als Wohnung. Die Zustimmung der Miteigentümer zur Wohnnutzung liegt bereits vor, die finale Abstimmung mit der Gemeinde ist einzuholen – ein Antrag auf Umwidmung wäre dann möglich.
...Kmenta & Partner Immobilienmakler GmbH in Kooperation mit Perfekt Immo GmbH
Die zum Verkauf stehende Einheit Top G02 befindet sich im modernen Anbau eines charmanten Altbaus mit historischem Kern um ca. 1900 und beeindruckt durch hohe Räume, neues WC, separaten Eingang sowie eine klare, offene Raumstruktur mit viel Licht und Potenzial.
Derzeit wird die Fläche als Friseursalon genutzt, bietet jedoch zahlreiche Nutzungsmöglichkeiten – von Praxis- oder Atelierbetrieb bis hin zur Umnutzung als Wohnung. Die Zustimmung der Miteigentümer zur Wohnnutzung liegt bereits vor, die finale Abstimmung mit der Gemeinde ist einzuholen – ein Antrag auf Umwidmung wäre dann möglich.
Besonders hervorzuheben ist die zusätzliche Lagerfläche mit ca. 43 m², die über einen separaten Zugang vom Innenhof erreichbar ist – ideal für Lagerung, Werkstatt oder Erweiterung der Geschäftsnutzung.
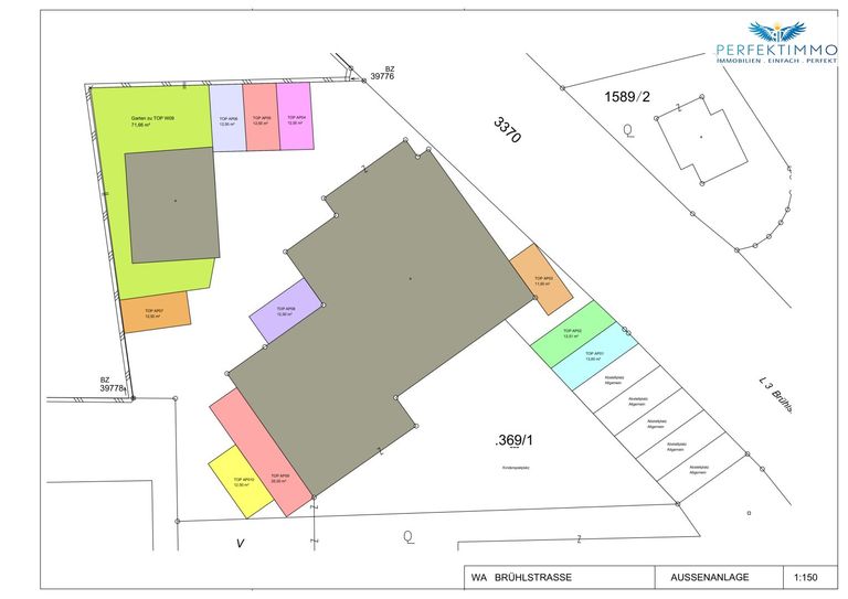
Zwei KFZ-Stellplätze sind im Kaufpreis enthalten. Darüber hinaus gibt es die Möglichkeit, weitere Stellplätze anzumieten. Zusätzlich stehen mehrere allgemeine Besucher- und Kundenparkplätze zur Verfügung – somit ist ausreichend Platz für Kundenverkehr garantiert.
Die Anlage besteht aus 9 Einheiten: 7 Wohnungen und 2 Gewerbeeinheiten im Hauptgebäude sowie einer weiteren Einheit im Nebengebäude im Innenhof, das aktuell umgebaut wird.
Die Einheit ist derzeit befristet vermietet bis Mitte 2026, was sie sowohl für Eigennutzer mit Planungszeit als auch für Investoren interessant macht.
Wir weisen darauf hin, dass zwischen dem Vermittler und dem zu vermittelnden Dritten ein familiäres oder wirtschaftliches Naheverhältnis besteht.
Infrastruktur / Entfernungen
Gesundheit
Arzt <2.000m
Apotheke <2.000m
Krankenhaus <3.000m
Klinik <5.000m
Kinder & Schulen
Schule <500m
Kindergarten <500m
Universität <5.000m
Höhere Schule <9.000m
Nahversorgung
Supermarkt <1.500m
Bäckerei <500m
Einkaufszentrum <5.000m
Sonstige
Bank <1.000m
Geldautomat <1.000m
Post <1.500m
Polizei <3.000m
Verkehr
Bus <500m
Autobahnanschluss <2.000m
Bahnhof <1.000m
Flughafen <9.500m
Angaben Entfernung Luftlinie / Quelle: OpenStreetMap
Objektdaten
Ausstattung
- Barrierefrei
Zustand
- Zustand
- MODERNISIERT
- Baujahr
- 1900
- Alter
- ALTBAU
- HWB
- 169 kWh/m² pro Jahr
- Klasse HWB
- E
- fGEE
- 3.45
- Klasse fGEE
- F
Flächen
- Stellplätze
- 2
- Nutzfläche
- 135m²
- Kellerfläche
- 44m²
Kosten
- Betriebskosten
- € 297,44
- Heizkosten
- € 155,00
- Sonstige Kosten
- € 181,32
Büros zum Kaufen im Umkreis von Wolfurt
Büros zum Kaufen im Umkreis von Wolfurt
Büros zum Kaufen in Österreich
Andere Besucher suchen nach...
- Grundstücke kaufen in 3400 Weidlingbach
- Wohnungen kaufen in 4663 Laakirchen
- Häuser in 7471 Rechnitz
- Wohnungen in 2410 Hainburg an der Donau
- Häuser kaufen in 2432 Schwadorf
- Wohnungen kaufen in 3002 Purkersdorf
- Häuser in 3150 Wilhelmsburg
- Wohnungen kaufen in 3470 Engelmannsbrunn
- Grundstücke kaufen im Bezirk Mattersburg
- Grundstücke kaufen im Bezirk Gmunden