Perfekt gelegene Büro- oder Ordinationsflächen in Vorchdorf zu kaufen
-
2026
Beschreibung
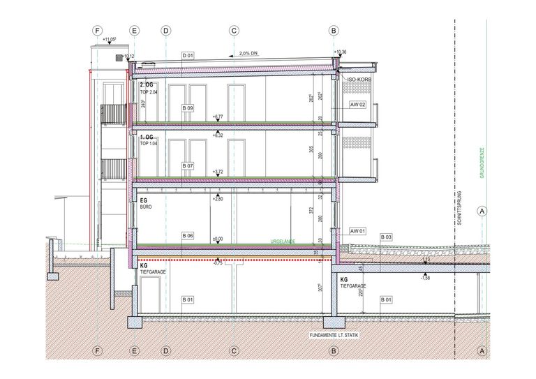
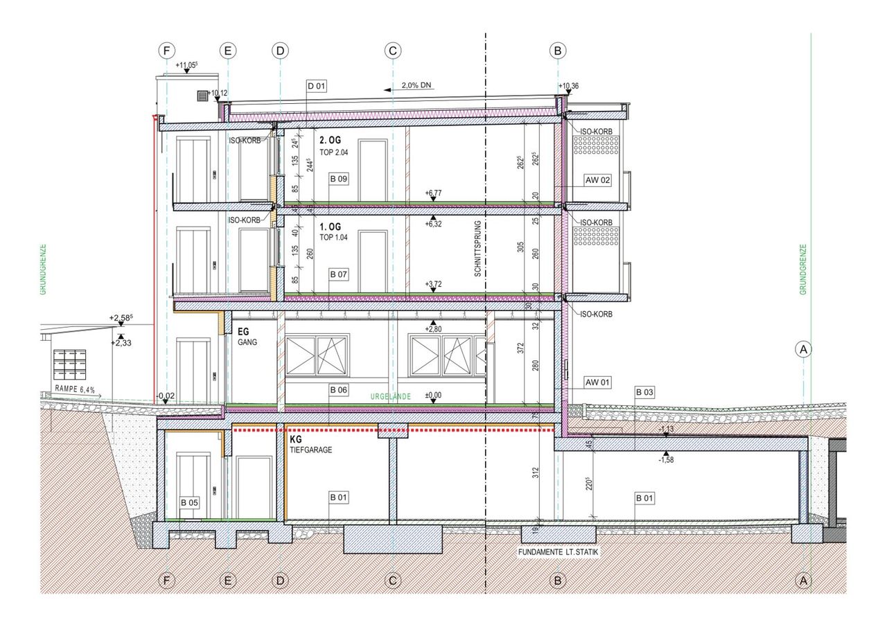
Die Firma GC Vorchdorf Errichtungsges. m.b.H errichtet im Zentrum von Vorchdorf ein Wohnprojekt mit 8 Wohnungen und einer Gewerbefläche im Erdgeschoß mit ca. 275 m² Nutzfläche zzgl. Kellerflächen, Parkplätze und Tiefgaragenplätze.
Ihre Vorteile im Überblick
- Das Projekt ist nur ca. 300 Meter vom A1 Autobahnanschluss entfernt
- Zentrale Lage und beste Verkehrsanbindung
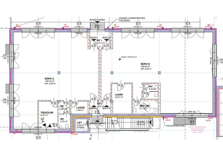
- Bestehend aus einem Raum mit ca. 275 m²
- Toiletten-/Nasszellen mit Fliesenboden und Sanitärkeramik
- Die Toiletten werden nach Erfordernis/Vereinbarung hergestellt
- Zentralheizung mit Fußbodenheizung (Anschluss an die Nahwärme)
- Licht- und Stromauslässe inkl. Verkabelung sowie Steckdosen und Schalter nach Ihren Vorgaben in Abstimmung mit dem Bauträger...
Die Firma GC Vorchdorf Errichtungsges. m.b.H errichtet im Zentrum von Vorchdorf ein Wohnprojekt mit 8 Wohnungen und einer Gewerbefläche im Erdgeschoß mit ca. 275 m² Nutzfläche zzgl. Kellerflächen, Parkplätze und Tiefgaragenplätze.
Ihre Vorteile im Überblick
- Das Projekt ist nur ca. 300 Meter vom A1 Autobahnanschluss entfernt
- Zentrale Lage und beste Verkehrsanbindung
- Bestehend aus einem Raum mit ca. 275 m²
- Toiletten-/Nasszellen mit Fliesenboden und Sanitärkeramik
- Die Toiletten werden nach Erfordernis/Vereinbarung hergestellt
- Zentralheizung mit Fußbodenheizung (Anschluss an die Nahwärme)
- Licht- und Stromauslässe inkl. Verkabelung sowie Steckdosen und Schalter nach Ihren Vorgaben in Abstimmung mit dem Bauträger in den Innenwänden sowie der Decke (Flächenschalterprogramm in weiß)
- Innenwände gespachtelt und weiß gemalt
- 9 Freistellplätze sind im Kaufpreis bereits enthalten
- 2 Tiefgaragenstellplätze sind im Kaufpreis bereits enthalten
- Kellerabstellraum ca. 25 m²
- Aufzug auch in den Keller/Tiefgarage
- Massivbauweise
- Solide Baumeisterqualität
- Kunststoff-Alufenster
- Raffstorekästen mit einem Leerrohr sind bei allen Fenstern vorhanden. An der Ost- und Westseite sind zusätzlich elektrische Raffstore bereits eingebaut.
- Vinylböden im Büro
- Fliesen 60/30 in den Nasszellen
- Röhrenspan Innentüren mit Holzumfassungszarge
- Schaltersystem von Busch und Jäger Future Linear
- Vorsehung für einen Internetanschluss
- Eine Leerverrohrung im Sanitärbereich für eine spätere Installation einer Klimaanlage am Dach ist bereits vorgesehen
- Ortswasser
- Öffentlicher Kanal
- Die Fläche ist flexibel nach individuellen Anforderungen plan- und ausführbar (die in den Plänen dargestellte Planung ist symbolhaft).
Es besteht auch die Möglichkeit die Gesamtfläche in zwei ca. gleich große Räume zu teilen und einen der Räume (inklusive Stellplätzen und Kellerabteil) zu erwerben.
Preis nach Rückfrage.
Der Kaufpreis bezieht sich auf den Nettopreis zzgl. 20% Ust.
Die Fotos sind Referenzbilder vom GC I Vorchdorf
Wir weisen darauf hin, dass zwischen dem Vermittler und dem zu vermittelnden Dritten ein familiäres oder wirtschaftliches Naheverhältnis besteht.
Der Vermittler ist als Doppelmakler tätig.
Objektdaten
Ausstattung
- Barrierefrei
- Zentralheizung
- Fußbodenheizung
- Fern Befeuerung
- Personen Fahrstuhl
- Flachdach
- Massiv Bauweise
Zustand
- Baujahr
- 2026
- Alter
- NEUBAU
- HWB
- 43 kWh/m² pro Jahr
- Klasse HWB
- B
- fGEE
- 0.61
- Klasse fGEE
- A+
Flächen
- Stellplätze
- 9
- Nutzfläche
- 275m²
- Kellerfläche
- 25m²
Kosten
- Kaufpreis Brutto
- € 1.125.000,00
Büros zum Kaufen im Umkreis von Vorchdorf
Büros zum Kaufen im Umkreis von Vorchdorf
Büros zum Kaufen in Österreich
Andere Besucher suchen nach...
- Grundstücke kaufen in 3400 Weidlingbach
- Wohnungen kaufen in 4663 Laakirchen
- Häuser in 7471 Rechnitz
- Wohnungen in 2410 Hainburg an der Donau
- Häuser kaufen in 2432 Schwadorf
- Wohnungen kaufen in 3002 Purkersdorf
- Häuser in 3150 Wilhelmsburg
- Wohnungen kaufen in 3470 Engelmannsbrunn
- Grundstücke kaufen im Bezirk Mattersburg
- Grundstücke kaufen im Bezirk Gmunden