Bauträger aufgepasst! Bauerwartungsland für 17 Bauparzellen!
Beschreibung
Bauträger aufgepasst – Seltene Gelegenheit!
Zum Verkauf steht ein außergewöhnliches Grundstück mit großem Entwicklungspotenzial in attraktiver Lage. Es handelt sich um Bauerwartungsland mit einer Gesamtfläche von ca. 18.287 m², wovon ca. 14.383 m² als bebaubare Fläche ausgewiesen sind. Die besondere Struktur und Lage des Areals ermöglichen die Realisierung eines modernen, zukunftsorientierten Wohnprojekts.
Eine erste Vorplanung zeigt, dass sich auf dem Grundstück bis zu 17 Bauparzellen entwickeln lassen – ideal für ein Neubaugebiet mit Einfamilien-, Doppel- oder Reihenhäusern. Durch die Größe und Form des Areals bietet sich ein flexibles, gut durchdachtes Bebauungskonzept an, das sowohl Investoren als auch zukünftigen Bewohnern optimale...
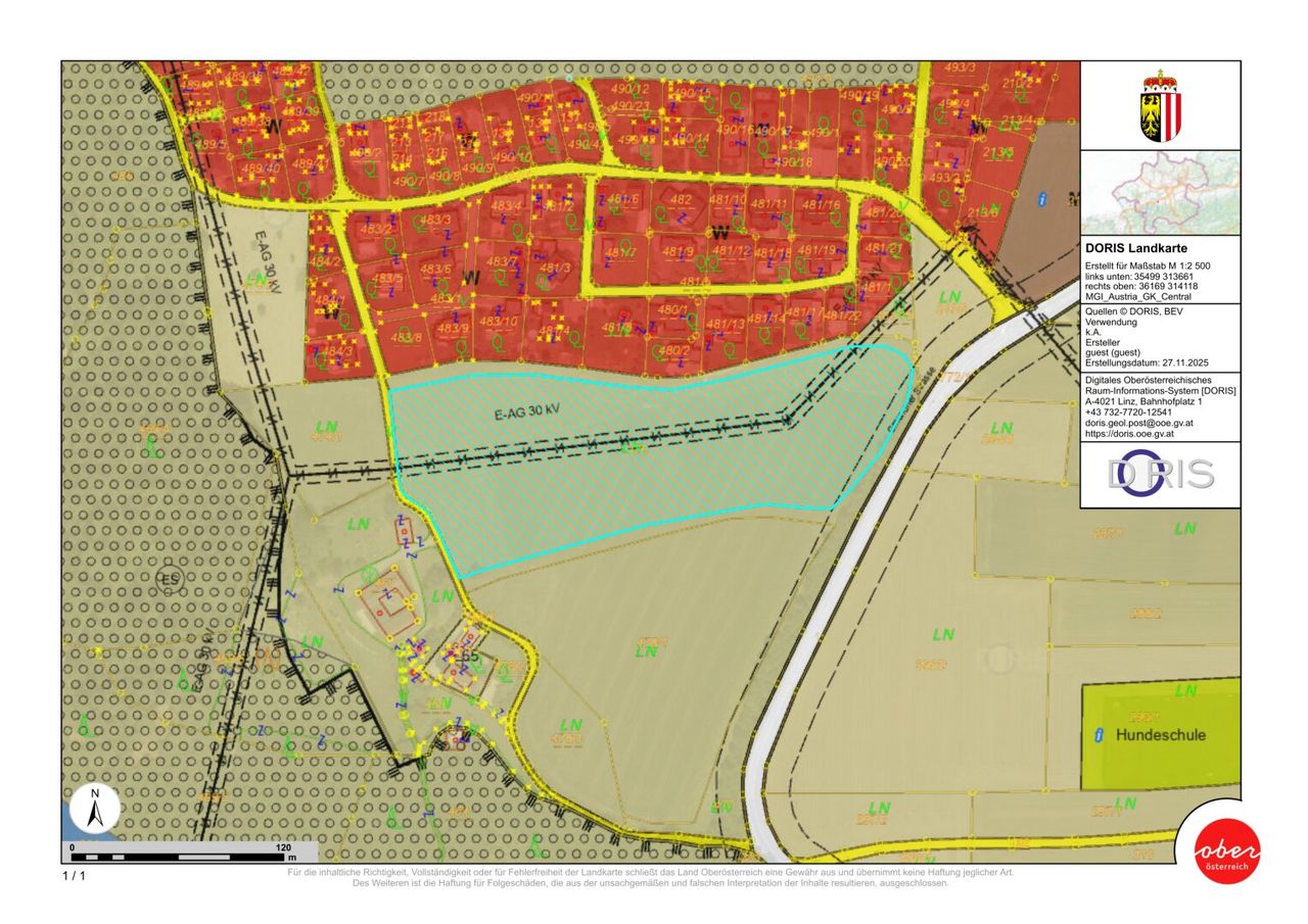
Bauträger aufgepasst – Seltene Gelegenheit!
Zum Verkauf steht ein außergewöhnliches Grundstück mit großem Entwicklungspotenzial in attraktiver Lage. Es handelt sich um Bauerwartungsland mit einer Gesamtfläche von ca. 18.287 m², wovon ca. 14.383 m² als bebaubare Fläche ausgewiesen sind. Die besondere Struktur und Lage des Areals ermöglichen die Realisierung eines modernen, zukunftsorientierten Wohnprojekts.
Eine erste Vorplanung zeigt, dass sich auf dem Grundstück bis zu 17 Bauparzellen entwickeln lassen – ideal für ein Neubaugebiet mit Einfamilien-, Doppel- oder Reihenhäusern. Durch die Größe und Form des Areals bietet sich ein flexibles, gut durchdachtes Bebauungskonzept an, das sowohl Investoren als auch zukünftigen Bewohnern optimale Lebensqualität garantiert.
Highlights des Grundstücks:
Gesamtfläche: ca. 18.287 m²
Bebaubare Fläche: ca. 14.383 m²
17 potenzielle Bauparzellen
Hervorragend geeignet für Bauträger, Projektentwickler und Investoren
Nutzen Sie diese seltene Gelegenheit, ein großflächiges und bestens geeignetes Areal für ein zukunftsfähiges Wohnbauprojekt zu sichern. Dieses Grundstück bietet ideale Voraussetzungen, um ein nachhaltiges, modernes Wohnquartier zu entwickeln und langfristig attraktive Renditen zu erzielen.
Gerne stellen wir Ihnen weitere Informationen sowie Pläne zur Verfügung und begleiten Sie auf dem Weg zu Ihrem nächsten erfolgreichen Bauprojekt.
Der Vermittler ist als Doppelmakler tätig.
Infrastruktur / Entfernungen
Gesundheit
Arzt <1.500m
Apotheke <2.000m
Krankenhaus <6.000m
Klinik <2.500m
Kinder & Schulen
Schule <1.500m
Kindergarten <1.500m
Nahversorgung
Supermarkt <1.500m
Bäckerei <1.500m
Einkaufszentrum <5.000m
Sonstige
Bank <1.500m
Geldautomat <1.500m
Post <2.000m
Polizei <2.500m
Verkehr
Bus <500m
Straßenbahn <5.000m
Bahnhof <4.500m
Autobahnanschluss <4.000m
Flughafen <4.500m
Angaben Entfernung Luftlinie / Quelle: OpenStreetMap
Objektdaten
Flächen
- Grundstücksfläche
- 18.287m²
Kosten
Grundstücke zum Kaufen im Umkreis von Laakirchen
Grundstücke zum Kaufen im Umkreis von Laakirchen
Grundstücke zum Kaufen in Österreich
Andere Besucher suchen nach...
- Grundstücke kaufen in 3400 Weidlingbach
- Wohnungen kaufen in 4663 Laakirchen
- Häuser in 7471 Rechnitz
- Wohnungen in 2410 Hainburg an der Donau
- Häuser kaufen in 2432 Schwadorf
- Wohnungen kaufen in 3002 Purkersdorf
- Häuser in 3150 Wilhelmsburg
- Wohnungen kaufen in 3470 Engelmannsbrunn
- Grundstücke kaufen im Bezirk Mattersburg
- Grundstücke kaufen im Bezirk Gmunden