Sonniges Grundstück mit baubewilligtem Projekt!
Beschreibung
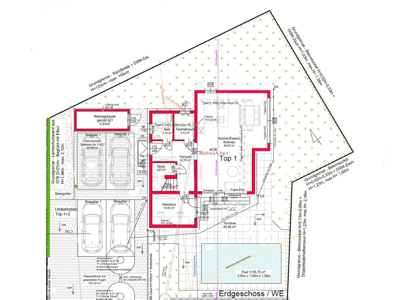
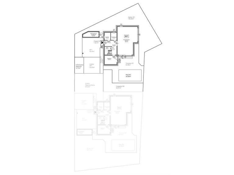
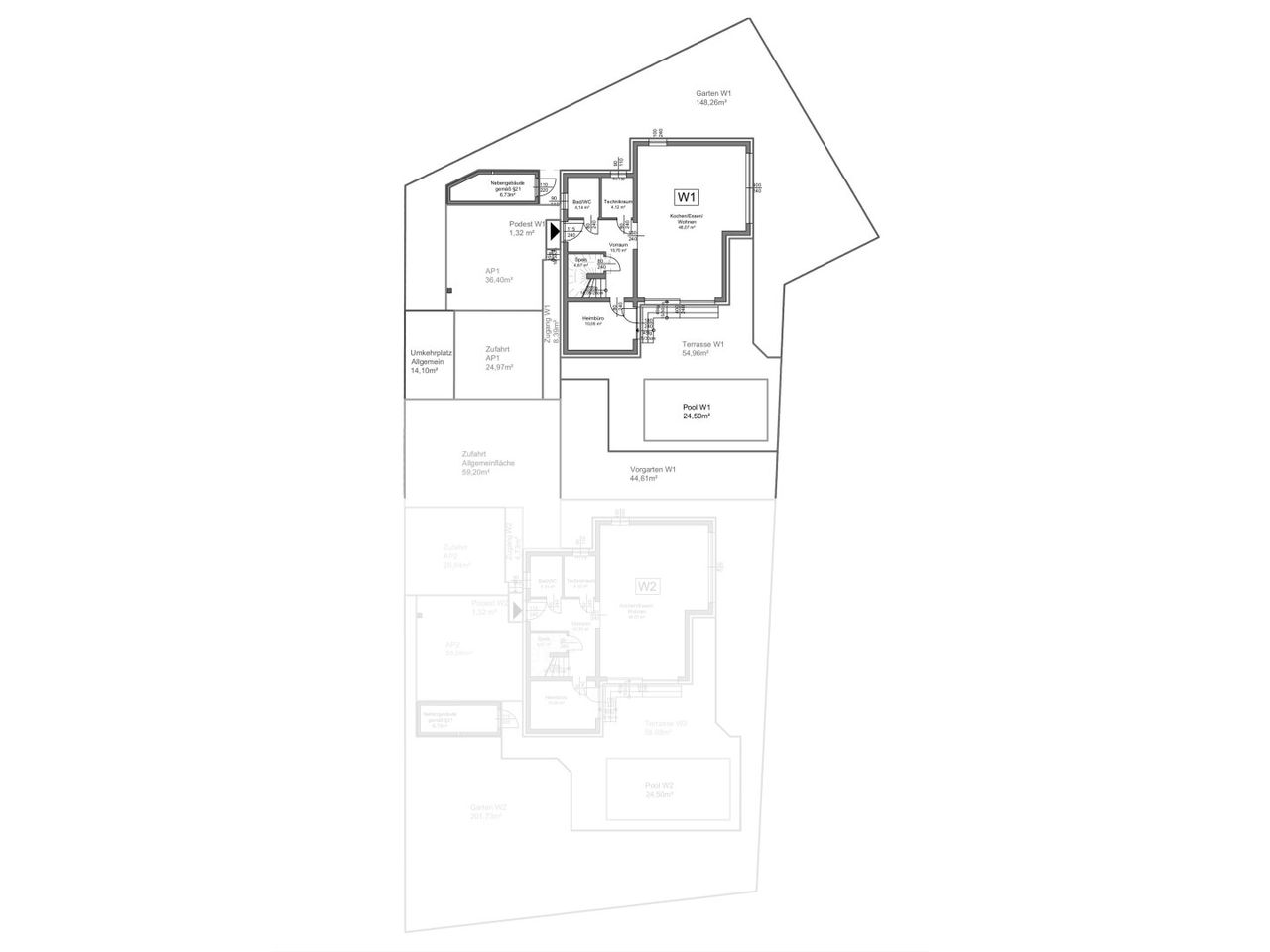
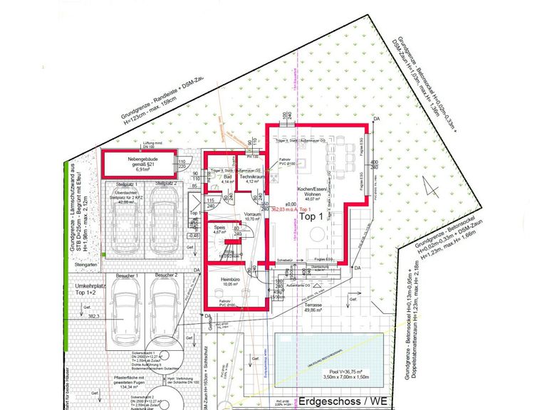
Sie sind auf der Suche nach einem bewilligtem Projekt für ihr Einfamilienhaus? Dann sind Sie hier genau richtig. Zum Verkauf gelangt ein ca. 999m² großes Grundstück, wovon ihnen die Hälfte gehört. Ein Nutwertgutachten aufgrund der Einreichplanung wurde bereits erstellt! Das Projekt sieht auf dem Gesamtgrundstück zwei Einfamilienhäuser vor, wobei das zweite Einfamilienhaus bereits vergeben ist. Hard Facts: - ca. 499.5m² Grundstücksgröße - Genehmigtes Projekt Einfamilienhaus (138m²) - Ebenes Grundstück - Anschlüsse an der Grundstücksgrenze ... Habe ich Ihr Interesse geweckt? Dann zögern Sie nicht und holen sich am besten gleich die Infos per Mail oder Telefon ein - 0664/1495097....
Sie sind auf der Suche nach einem bewilligtem Projekt für ihr Einfamilienhaus?
Dann sind Sie hier genau richtig.
Zum Verkauf gelangt ein ca. 999m² großes Grundstück, wovon ihnen die Hälfte gehört.
Ein Nutwertgutachten aufgrund der Einreichplanung wurde bereits erstellt! Das Projekt
sieht auf dem Gesamtgrundstück zwei Einfamilienhäuser vor, wobei das zweite Einfamilienhaus
bereits vergeben ist.
Hard Facts:
- ca. 499.5m² Grundstücksgröße
- Genehmigtes Projekt Einfamilienhaus (138m²)
- Ebenes Grundstück
- Anschlüsse an der Grundstücksgrenze
...
Habe ich Ihr Interesse geweckt? Dann zögern Sie nicht und holen sich am besten gleich
die Infos per Mail oder Telefon ein - 0664/1495097.
Ich freue mich auf Ihren Anruf, Dominic Nagele - Stolz, DAHEIM D.A. Immobilien GmbH
Aufgepasst: Wenn Sie Ihre eigene Immobilie verkaufen oder einfach nur den aktuellen
Marktwert erfahren möchten, bieten wir Ihnen gerne eine kostenlose & unverbindliche
online Bewertung an. So wissen Sie genau, wo Sie stehen – transparent, professionell
und persönlich. Einfach unsere Homepage besuchen und unter dem Reiter Bewertung
ihre Angaben vervollständigen.
Hinweis gemäß Energieausweisvorlagegesetz: Ein Energieausweis wurde vom Eigentümer bzw. Verkäufer, nach unserer Aufklärung über die generell geltende Vorlagepflicht, sowie Aufforderung zu seiner Erstellung noch nicht vorgelegt. Daher gilt zumindest eine dem Alter und der Art des Gebäudes entsprechende Gesamtenergieeffizienz als vereinbart. Wir übernehmen keinerlei Gewähr oder Haftung für die tatsächliche Energieeffizienz der angebotenen Immobilie.
Infrastruktur / Entfernungen
Gesundheit
Arzt <500m
Apotheke <1.000m
Krankenhaus <9.000m
Kinder & Schulen
Schule <2.000m
Kindergarten <2.500m
Nahversorgung
Supermarkt <500m
Bäckerei <1.500m
Einkaufszentrum <6.500m
Sonstige
Bank <1.500m
Geldautomat <2.000m
Polizei <1.000m
Post <2.000m
Verkehr
Bus <500m
Autobahnanschluss <1.500m
Bahnhof <1.500m
Straßenbahn <9.000m
Flughafen <6.500m
Angaben Entfernung Luftlinie / Quelle: OpenStreetMap
Objektdaten
Flächen
- Anzahl der Zimmer
- 4.5
- Anzahl der Badezimmer
- 2
- Anzahl der sep. WCs
- 2
- Anzahl der Terrassen
- 2
- Wohnfläche
- 139m²
- Grundstücksfläche
- 499m²
- Gartenfläche
- 193m²
- Terrassenfläche
- 2m²
Kosten
- Kaufpreis Brutto
- € 159.900,00
Grundstücke zum Kaufen im Umkreis von Lieboch
Grundstücke zum Kaufen im Umkreis von Lieboch
Grundstücke zum Kaufen in Österreich
Andere Besucher suchen nach...
- Grundstücke kaufen in 3400 Weidlingbach
- Wohnungen kaufen in 4663 Laakirchen
- Häuser in 7471 Rechnitz
- Wohnungen in 2410 Hainburg an der Donau
- Häuser kaufen in 2432 Schwadorf
- Wohnungen kaufen in 3002 Purkersdorf
- Häuser in 3150 Wilhelmsburg
- Wohnungen kaufen in 3470 Engelmannsbrunn
- Grundstücke kaufen im Bezirk Mattersburg
- Grundstücke kaufen im Bezirk Gmunden