Ackerfläche in ruhiger, ländlicher Lage
€ 100.800
4713 Gallspach
Beschreibung
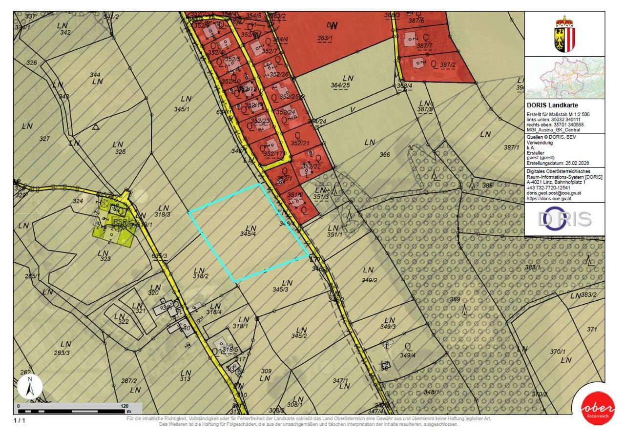
Ackerfläche in ruhiger, ländlicher Lage Zum Verkauf steht ein landwirtschaftliches Grundstück mit einer Größe von ca. 8.449 m². Die gut geschnittene Ackerfläche bietet vielseitige Nutzungsmöglichkeiten für landwirtschaftliche Zwecke oder als wertbeständige Kapitalanlage. Von der Gesamtfläche wird noch ein ca. 900 m² großer Randstreifen herausgemessen; dieser Teilbereich ist nicht Bestandteil des Kaufpreises. Das Grundstück liegt in einer idyllischen und ruhigen Umgebung mit angenehmer Nachbarschaft. Die Nähe zum Gasthof Waldesruh bietet eine gute Orientierung und unterstreicht den ländlichen Charakter der Lage. Bei Interesse erhalten Sie gerne weitere Informationen. Bitte beachten Sie, dass wir aus Nachweispflicht gegenüber dem Eigentümer nur Anfragen mit vollständigem...
Ackerfläche in ruhiger, ländlicher Lage
Zum Verkauf steht ein landwirtschaftliches Grundstück mit einer Größe von ca. 8.449 m². Die gut geschnittene Ackerfläche bietet vielseitige Nutzungsmöglichkeiten für landwirtschaftliche Zwecke oder als wertbeständige Kapitalanlage.
Von der Gesamtfläche wird noch ein ca. 900 m² großer Randstreifen herausgemessen; dieser Teilbereich ist nicht Bestandteil des Kaufpreises.
Das Grundstück liegt in einer idyllischen und ruhigen Umgebung mit angenehmer Nachbarschaft. Die Nähe zum Gasthof Waldesruh bietet eine gute Orientierung und unterstreicht den ländlichen Charakter der Lage.
Bei Interesse erhalten Sie gerne weitere Informationen.
Bitte beachten Sie, dass wir aus Nachweispflicht gegenüber dem Eigentümer nur Anfragen mit vollständigem Namen und Anschrift bearbeiten können. Gerne senden wir Ihnen ein kostenloses Detailangebot zu. Alle Angaben basieren auf Informationen des Eigentümers bzw. Dritter und erfolgen ohne Gewähr.
Zum Verkauf steht ein landwirtschaftliches Grundstück mit einer Größe von ca. 8.449 m². Die gut geschnittene Ackerfläche bietet vielseitige Nutzungsmöglichkeiten für landwirtschaftliche Zwecke oder als wertbeständige Kapitalanlage.
Von der Gesamtfläche wird noch ein ca. 900 m² großer Randstreifen herausgemessen; dieser Teilbereich ist nicht Bestandteil des Kaufpreises.
Das Grundstück liegt in einer idyllischen und ruhigen Umgebung mit angenehmer Nachbarschaft. Die Nähe zum Gasthof Waldesruh bietet eine gute Orientierung und unterstreicht den ländlichen Charakter der Lage.
Bei Interesse erhalten Sie gerne weitere Informationen.
Bitte beachten Sie, dass wir aus Nachweispflicht gegenüber dem Eigentümer nur Anfragen mit vollständigem Namen und Anschrift bearbeiten können. Gerne senden wir Ihnen ein kostenloses Detailangebot zu. Alle Angaben basieren auf Informationen des Eigentümers bzw. Dritter und erfolgen ohne Gewähr.
Objektdaten
Ausstattung
- Ländliche Lage
Flächen
- Grundstücksfläche
- 8.449m²
Kosten
- Kaufpreis
- € 100.800,00
Grundstücke zum Kaufen im Umkreis von Gallspach
Grundstücke zum Kaufen in Österreich
Andere Besucher suchen nach...
- Immobilien kaufen in 2601 Sollenau
- Immobilien in 4951 Polling im Innkreis, Oberösterreich
- Immobilien in 4742 Pram, Oberösterreich kaufen oder mieten
- Häuser kaufen in 2340 Mödling, Niederösterreich
- Häuser kaufen in 9421 Gemmersdorf, Kärnten
- Wohnungen / Eigentumswohnungen kaufen in 9431 St. Stefan, Kärnten
- Häuser kaufen in Bruck an der Leitha, Niederösterreich
- Immobilien mieten in Krems an der Donau, Niederösterreich
- Häuser zum Kaufen im Bezirk St. Pölten Land, Niederösterreich
- Büro / Praxen mieten in Rohrbach, Oberösterreich