Wohnen am Waldrand mit Fernblick!
Beschreibung
Dieses Grundstück besticht durch seine einmalige Lage am Ende einer ruhigen Sackgasse und bietet einen atemberaubenden Weitblick über die Umgebung. Direkt am Waldrand gelegen, genießen Sie hier naturnahes Wohnen und pure Erholung!
Alle wichtigen Anschlüsse wie Strom, Kanal und Wasser befinden sich bereits in unmittelbarer Nähe.
Eckdaten auf einen Blick:
-
Ca. 558 m² Grundstücksfläche in bester Lage
-
Ca. 107 m² Straßen- und Waldanteil
-
Widmung: Bauland DO (Dorfgebiet)
-
Baudichte: 0,2–0,5
-
Ruhige, sonnige Lage am Waldrand
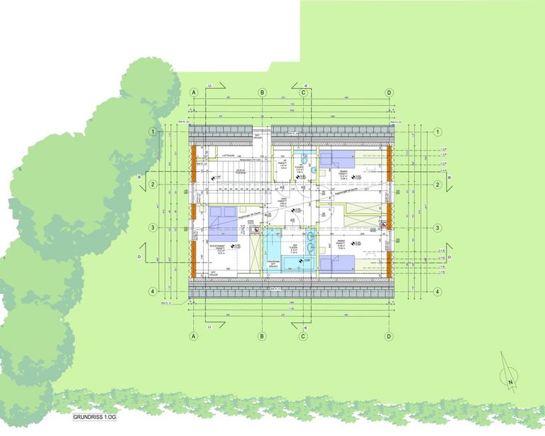
Im Kaufpreis enthalten sind bereits die Einreichpläne sowie die Baubewilligung für ein...
Dieses Grundstück besticht durch seine einmalige Lage am Ende einer ruhigen Sackgasse und bietet einen atemberaubenden Weitblick über die Umgebung. Direkt am Waldrand gelegen, genießen Sie hier naturnahes Wohnen und pure Erholung!
Alle wichtigen Anschlüsse wie Strom, Kanal und Wasser befinden sich bereits in unmittelbarer Nähe.
Eckdaten auf einen Blick:
Ca. 558 m² Grundstücksfläche in bester Lage
Ca. 107 m² Straßen- und Waldanteil
Widmung: Bauland DO (Dorfgebiet)
Baudichte: 0,2–0,5
Ruhige, sonnige Lage am Waldrand
Im Kaufpreis enthalten sind bereits die Einreichpläne sowie die Baubewilligung für ein Einfamilienhaus.
Auf Wunsch kann das Haus auch schlüsselfertig errichtet werden.
Habe ich Ihr Interesse geweckt? Dann vereinbaren Sie noch heute Ihren persönlichen Besichtigungstermin unter 0676 792 4717 und überzeugen Sie sich von diesem einzigartigen Angebot. Ich freue mich auf Ihren Anruf, Daniel Egyed, Kompagnon Immobilien Steiermark
Obige Angaben basieren auf Informationen des Eigentümers und sind ohne Gewähr. Irrtum und Änderungen vorbehalten.
Der Vermittler ist als Doppelmakler tätig.
Objektdaten
Flächen
- Grundstücksfläche
- 665m²
Kosten
- Kaufpreis Brutto
- € 59.999,00
Grundstücke zum Kaufen im Umkreis von Sankt Nikolai im Sausal
Grundstücke zum Kaufen im Umkreis von Sankt Nikolai im Sausal
Grundstücke zum Kaufen in Österreich
Andere Besucher suchen nach...
- Grundstücke kaufen in 3400 Weidlingbach
- Wohnungen kaufen in 4663 Laakirchen
- Häuser in 7471 Rechnitz
- Wohnungen in 2410 Hainburg an der Donau
- Häuser kaufen in 2432 Schwadorf
- Wohnungen kaufen in 3002 Purkersdorf
- Häuser in 3150 Wilhelmsburg
- Wohnungen kaufen in 3470 Engelmannsbrunn
- Grundstücke kaufen im Bezirk Mattersburg
- Grundstücke kaufen im Bezirk Gmunden