Neuer Firmensitz? ***Perfekte Möglichgkeit auf 3.541 m² in Oftering***
Beschreibung
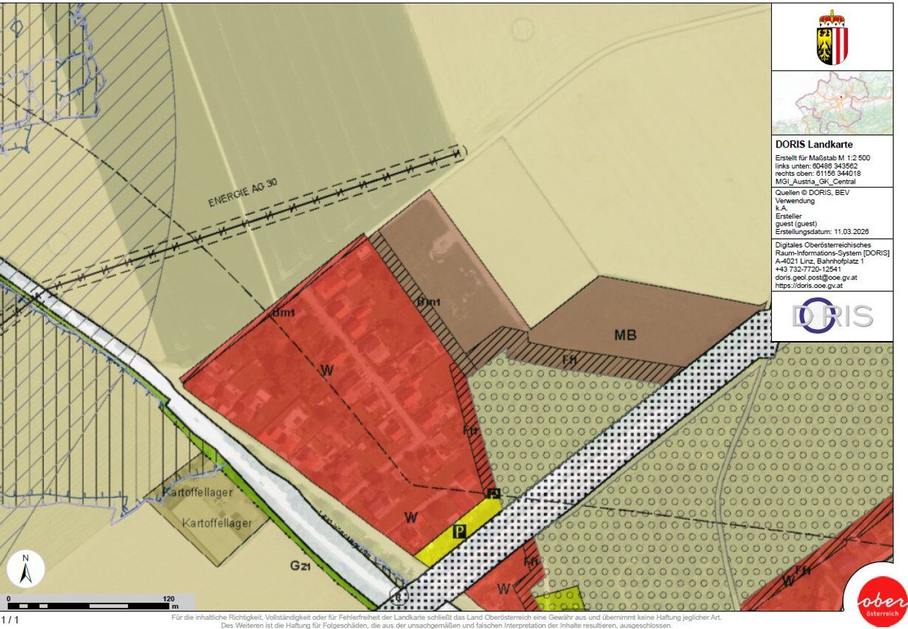
Neuer Firmensitz? ***Perfekte Möglichgkeit auf 3.541 m² in Oftering*** Zum Verkauf steht ein großzügiges Betriebsgrundstück mit einer Gesamtfläche von rund 3.541 m² in einem aufstrebenden Mischbaugebiet von Oftering. Das Grundstück bietet vielseitige Nutzungsmöglichkeiten und ist daher ideal für unterschiedlichste gewerbliche Vorhaben geeignet. Ein bereits mit der Gemeinde abgestimmter Vorentwurf liegt vor und kann bei Interesse zur Verfügung gestellt werden. (NOCH NICHT GENEHMIGT) ALLES AUF EINEN BLICK - Größe: 3.541 m² - Flächenwidmung: Mischbaugebiet - Bebauung laut Bebauungsplan - Kanal- und Wasseranschluss vorhanden - Kaufpreis inklusive Infrastrukturkostenbeitrag - top Lage - viele Entwicklungsmöglichkeiten - ideale Infrastruktur Das Grundstück vereint zentralen Komfort,...
Neuer Firmensitz? ***Perfekte Möglichgkeit auf 3.541 m² in Oftering***
Zum Verkauf steht ein großzügiges Betriebsgrundstück mit einer Gesamtfläche von rund 3.541 m² in einem aufstrebenden Mischbaugebiet von Oftering.
Das Grundstück bietet vielseitige Nutzungsmöglichkeiten und ist daher ideal für unterschiedlichste gewerbliche Vorhaben geeignet.
Ein bereits mit der Gemeinde abgestimmter Vorentwurf liegt vor und kann bei Interesse zur Verfügung gestellt werden. (NOCH NICHT GENEHMIGT)
ALLES AUF EINEN BLICK
- Größe: 3.541 m²
- Flächenwidmung: Mischbaugebiet
- Bebauung laut Bebauungsplan
- Kanal- und Wasseranschluss vorhanden
- Kaufpreis inklusive Infrastrukturkostenbeitrag
- top Lage
- viele Entwicklungsmöglichkeiten
- ideale Infrastruktur
Das Grundstück vereint zentralen Komfort, gute Infrastruktur und eine flexible Nutzungsmöglichkeit in einem attraktiven Umfeld.
Wir haben Ihr Interesse geweckt? - Dann vereinbaren Sie Ihren persönlichen Beratungstermin!
Gemäß § 5, Abs. 3 Maklergesetz weisen wir daraufhin, dass wir als Doppelmakler tätig sind.
Bitte beachten Sie, dass wir aufgrund der Nachweispflicht gegenüber dem Eigentümer nur Anfragen mit vollständiger Angabe der Anschrift und Telefonnummer bearbeiten können.
Wir weisen darauf hin, dass alle Angaben nach bestem Wissen und Gewissen erstellt wurden.
Für Auskünfte und Angaben, die uns von Seiten der Eigentümer und Dritten zur Verfügung gestellt wurden, übernehmen wir keine Haftung.
Dieses Angebot ist unverbindlich und freibleibend. Zwischenverwertung, Irrtümer, Druckfehler und Änderungen vorbehalten.
Der Vermittler ist als Doppelmakler tätig.
Infrastruktur / Entfernungen
Gesundheit
Arzt <2.500m
Apotheke <4.000m
Klinik <5.000m
Kinder & Schulen
Schule <500m
Kindergarten <4.000m
Nahversorgung
Supermarkt <3.500m
Bäckerei <5.500m
Einkaufszentrum <8.000m
Sonstige
Bank <500m
Geldautomat <3.000m
Post <4.000m
Polizei <4.000m
Verkehr
Bus <500m
Bahnhof <2.000m
Straßenbahn <7.500m
Autobahnanschluss <6.000m
Flughafen <4.500m
Angaben Entfernung Luftlinie / Quelle: OpenStreetMap
Objektdaten
Flächen
- Grundstücksfläche
- 3.541m²
Kosten
- Kaufpreis Brutto
- € 1.049.000,00
Grundstücke zum Kaufen im Umkreis von Oftering
Grundstücke zum Kaufen im Umkreis von Oftering
Grundstücke zum Kaufen in Österreich
Andere Besucher suchen nach...
- Grundstücke kaufen in 3400 Weidlingbach
- Wohnungen kaufen in 4663 Laakirchen
- Häuser in 7471 Rechnitz
- Wohnungen in 2410 Hainburg an der Donau
- Häuser kaufen in 2432 Schwadorf
- Wohnungen kaufen in 3002 Purkersdorf
- Häuser in 3150 Wilhelmsburg
- Wohnungen kaufen in 3470 Engelmannsbrunn
- Grundstücke kaufen im Bezirk Mattersburg
- Grundstücke kaufen im Bezirk Gmunden