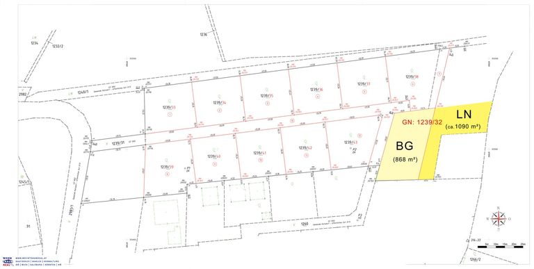
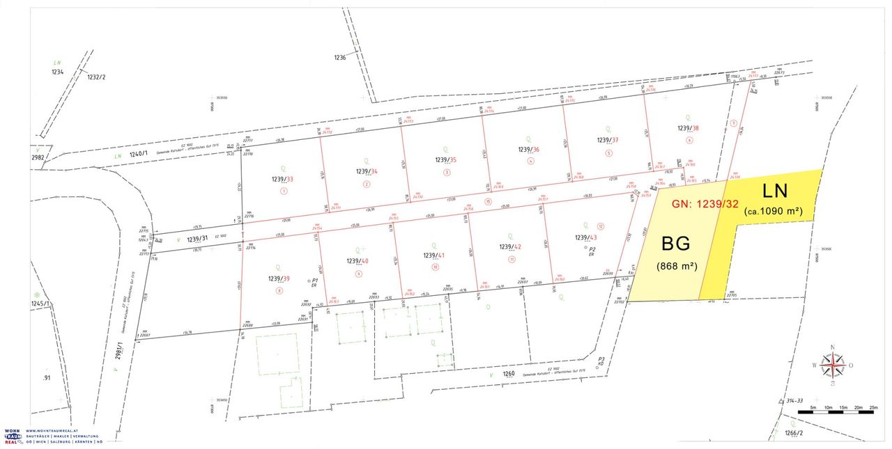
Grundstück 1239/32
Beschreibung
📍 Grundstück 1239/32
Baugrund mit Weitblick & direkter Waldrandlage!
Dieses einzigartige Grundstück in Katsdorf (Ruhstetten) bietet nicht nur Bauland, sondern auch eine zusätzliche Grünfläche und eine beeindruckende Aussicht Richtung Norden über die Landschaft bis hin zum Wald. Die perfekte Kombination aus Ruhe, Natur und bester Anbindung!
🔹 Grundstücksgröße: 🏡 868 m² Bauland – ideal für ein modernes Wohnhaus mit großzügigem Außenbereich. BAUZWANG 🌿 1499 m² landwirtschaftliche Fläche – perfekt für eine naturnahe Gartengestaltung oder Hobbylandwirtschaft
🌿 Besonderheiten: ✅ Panorama-Weitblick Richtung Norden – freier Blick über die Landschaft bis zum Waldrand ✅ Direkte Waldrandlage – Natur &...
📍 Grundstück 1239/32
Baugrund mit Weitblick & direkter Waldrandlage!
Dieses einzigartige Grundstück in Katsdorf (Ruhstetten) bietet nicht nur Bauland, sondern auch eine zusätzliche Grünfläche und eine beeindruckende Aussicht Richtung Norden über die Landschaft bis hin zum Wald. Die perfekte Kombination aus Ruhe, Natur und bester Anbindung!
🔹 Grundstücksgröße:
🏡 868 m² Bauland – ideal für ein modernes Wohnhaus mit großzügigem Außenbereich. BAUZWANG
🌿 1499 m² landwirtschaftliche Fläche – perfekt für eine naturnahe Gartengestaltung oder Hobbylandwirtschaft
🌿 Besonderheiten:
✅ Panorama-Weitblick Richtung Norden – freier Blick über die Landschaft bis zum Waldrand
✅ Direkte Waldrandlage – Natur & Erholung direkt vor der Haustür
✅ Großzügige Fläche für individuelle Gestaltungsmöglichkeiten
📍 Lage & Infrastruktur:
- Ruhige, idyllische Wohngegend mit viel Grün
- 20 Minuten nach Linz – optimale Verkehrsanbindung
- Schulen, Nahversorger & Freizeitmöglichkeiten in kurzer Reichweite
📞 Jetzt informieren & besichtigen!
Ein Grundstück mit dieser Lage und Aussicht ist eine absolute Rarität! Kontaktieren Sie mich für weitere Informationen oder eine Besichtigung vor Ort.
Der Vermittler ist als Doppelmakler tätig.
Infrastruktur / Entfernungen
Gesundheit
Arzt <500m
Apotheke <6.000m
Klinik <6.000m
Kinder & Schulen
Schule <500m
Kindergarten <500m
Höhere Schule <6.500m
Universität <6.500m
Nahversorgung
Supermarkt <500m
Bäckerei <500m
Einkaufszentrum <6.000m
Sonstige
Bank <500m
Geldautomat <500m
Post <500m
Polizei <5.500m
Verkehr
Bus <500m
Bahnhof <2.000m
Autobahnanschluss <3.500m
Angaben Entfernung Luftlinie / Quelle: OpenStreetMap
Objektdaten
Flächen
- Nutzfläche
- 1.499m²
- Gesamtfläche
- 1.563m²
- Grundstücksfläche
- 869m²
Kosten
- Kaufpreis Brutto
- € 292.200,00
Grundstücke zum Kaufen im Umkreis von Katsdorf
Grundstücke zum Kaufen im Umkreis von Katsdorf
Grundstücke zum Kaufen in Österreich
Andere Besucher suchen nach...
- Grundstücke kaufen in 3400 Weidlingbach
- Wohnungen kaufen in 4663 Laakirchen
- Häuser in 7471 Rechnitz
- Wohnungen in 2410 Hainburg an der Donau
- Häuser kaufen in 2432 Schwadorf
- Wohnungen kaufen in 3002 Purkersdorf
- Häuser in 3150 Wilhelmsburg
- Wohnungen kaufen in 3470 Engelmannsbrunn
- Grundstücke kaufen im Bezirk Mattersburg
- Grundstücke kaufen im Bezirk Gmunden