Baugrund für Ihr Wohn-, bzw. Gewerbeprojekt in Timelkam
Beschreibung
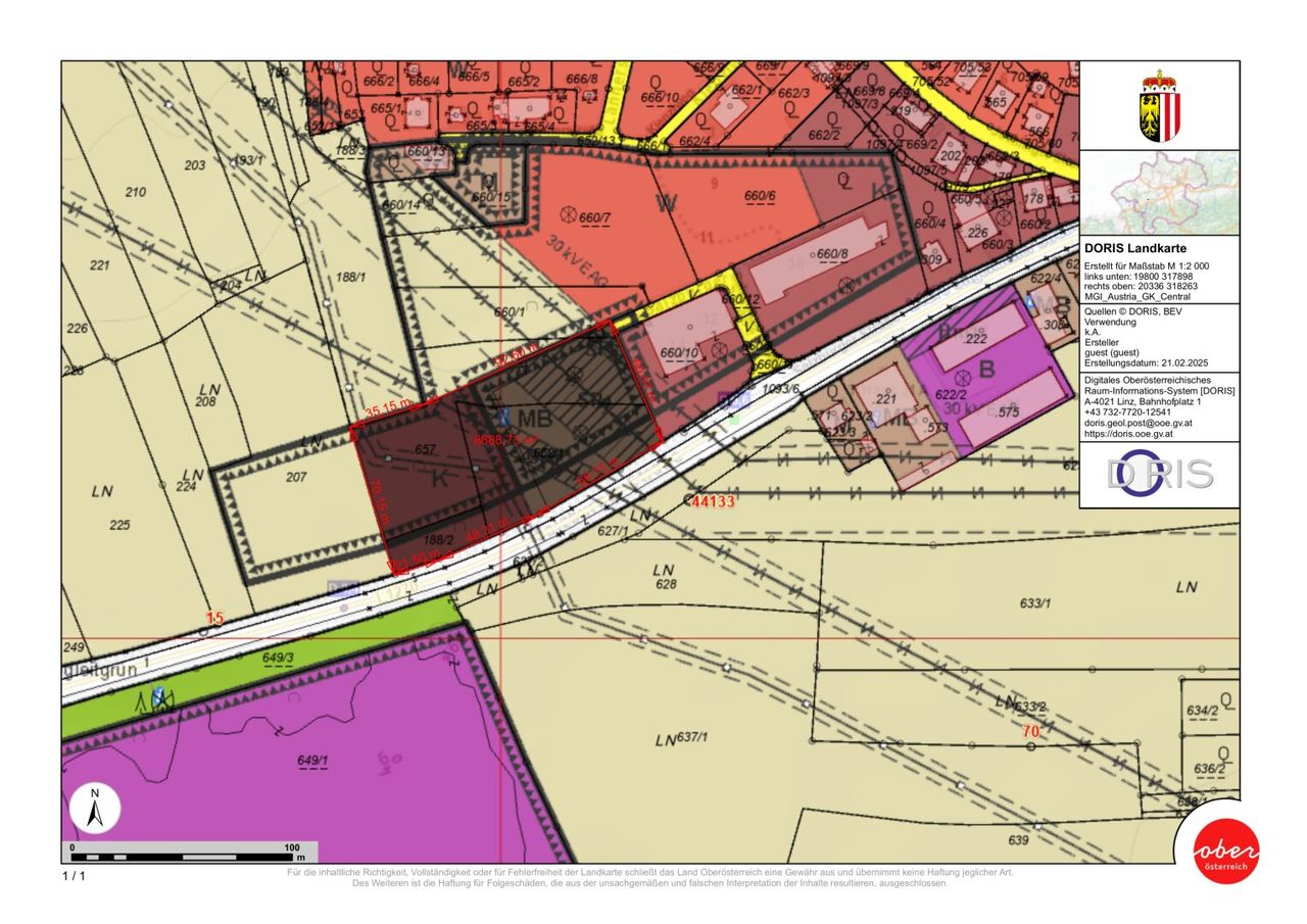
Kaufpreis: € 1.305.000,-
Ca. 8.700 m² Baugrund (€ 150,-/ m²)
Die Flächenangaben sind ca. Angaben und wurden von DORIS herausgemessen (siehe Flächenwidmungsplan)
Der Gesamtpreis ist als Mischpreis zu sehen und beinhaltet die Flächen mit der Widmung MB sowie die Flächen mit der Widmung K.
Der endgültige Kaufpreis richtet sich nach der tatsächlichen Grundstücksgröße. Diese kann erst im Zuge der Vermessung genau bestimmt werden.
Kein Bauzwang!
Der Boden wurde aufgeschüttet – teilweise auch mit Abbruchmaterial. Im Verdachtsflächenkataster sind die Grundstücke nicht enthalten. (über einen Teil der Fläche sind Bodengutachten vorhanden)
Wir weisen darauf hin, dass zwischen dem Vermittler und...
Kaufpreis: € 1.305.000,-
Ca. 8.700 m² Baugrund (€ 150,-/ m²)
Die Flächenangaben sind ca. Angaben und wurden von DORIS herausgemessen (siehe Flächenwidmungsplan)
Der Gesamtpreis ist als Mischpreis zu sehen und beinhaltet die Flächen mit der Widmung MB sowie die Flächen mit der Widmung K.
Der endgültige Kaufpreis richtet sich nach der tatsächlichen Grundstücksgröße. Diese kann erst im Zuge der Vermessung genau bestimmt werden.
Kein Bauzwang!
Der Boden wurde aufgeschüttet – teilweise auch mit Abbruchmaterial. Im Verdachtsflächenkataster sind die Grundstücke nicht enthalten. (über einen Teil der Fläche sind Bodengutachten vorhanden)
Wir weisen darauf hin, dass zwischen dem Vermittler und dem zu vermittelnden Dritten ein familiäres oder wirtschaftliches Naheverhältnis besteht.
Der Vermittler ist als Doppelmakler tätig.
Objektdaten
Flächen
- Grundstücksfläche
- 8.700m²
Kosten
- Kaufpreis Brutto
- € 1.305.000,00
Grundstücke zum Kaufen im Umkreis von Timelkam
Grundstücke zum Kaufen in Österreich
Andere Besucher suchen nach...
- Immobilien kaufen in 2601 Sollenau
- Immobilien in 4951 Polling im Innkreis, Oberösterreich
- Immobilien in 4742 Pram, Oberösterreich kaufen oder mieten
- Häuser kaufen in 2340 Mödling, Niederösterreich
- Häuser kaufen in 9421 Gemmersdorf, Kärnten
- Wohnungen / Eigentumswohnungen kaufen in 9431 St. Stefan, Kärnten
- Häuser kaufen in Bruck an der Leitha, Niederösterreich
- Immobilien mieten in Krems an der Donau, Niederösterreich
- Häuser zum Kaufen im Bezirk St. Pölten Land, Niederösterreich
- Büro / Praxen mieten in Rohrbach, Oberösterreich