Baugrundstück in Ottnang ohne Bauzwang
Beschreibung
Baugrundstück in Ottnang ohne Bauzwang
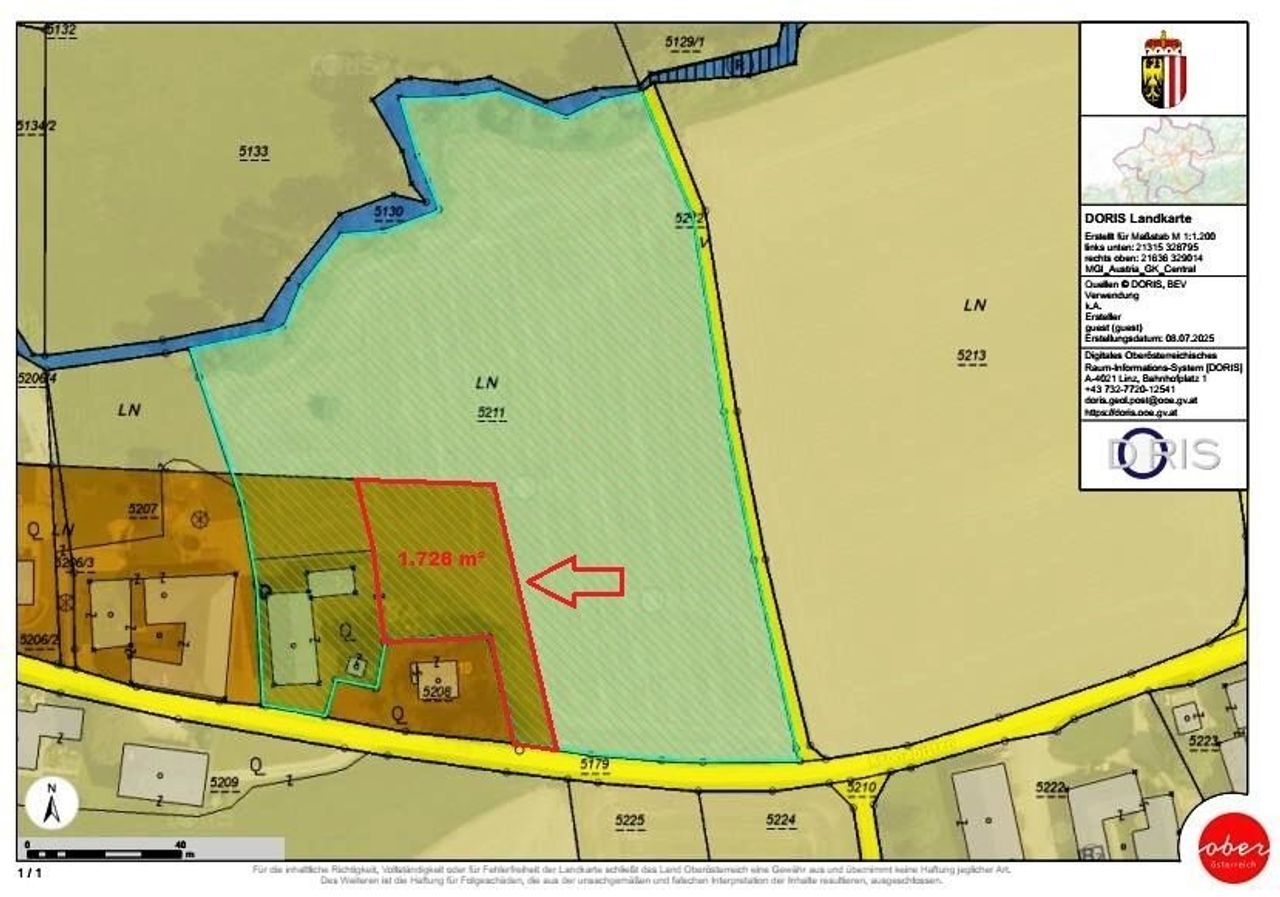
Zum Verkauf steht ein 1.728 m² großes Baugrundstück in Ottnang am Hausruck (neben Untermühlau 5), das sich durch seine leicht abfallende Lage ideal für unterschiedliche Bauvorhaben eignet.
Die Liegenschaft verfügt über eine Dorfwidmung, wodurch vielfältige Nutzungsmöglichkeiten gegeben sind.
Ein besonderer Vorteil: Es besteht kein Bauzwang. Dadurch eignet sich das Grundstück sowohl für sofortige Bebauung als auch als langfristige Investition.
Das Grundstück liegt im ländlichen Gebiet und bietet dennoch eine zentral gelegene, gut erreichbare Lage.
Einkaufsmöglichkeiten, Infrastruktur und Nahversorgung sind ebenfalls schnell erreichbar.
Dieses Baugrundstück verbindet ländliche Atmosphäre mit praktischer Alltagstauglichkeit – ideal für...
Baugrundstück in Ottnang ohne Bauzwang
Zum Verkauf steht ein 1.728 m² großes Baugrundstück in Ottnang am Hausruck (neben Untermühlau 5), das sich durch seine leicht abfallende Lage ideal für unterschiedliche Bauvorhaben eignet.
Die Liegenschaft verfügt über eine Dorfwidmung, wodurch vielfältige Nutzungsmöglichkeiten gegeben sind.
Ein besonderer Vorteil: Es besteht kein Bauzwang. Dadurch eignet sich das Grundstück sowohl für sofortige Bebauung als auch als langfristige Investition.
Das Grundstück liegt im ländlichen Gebiet und bietet dennoch eine zentral gelegene, gut erreichbare Lage.
Einkaufsmöglichkeiten, Infrastruktur und Nahversorgung sind ebenfalls schnell erreichbar.
Dieses Baugrundstück verbindet ländliche Atmosphäre mit praktischer Alltagstauglichkeit – ideal für alle, die Ruhe suchen und dennoch gut angebunden sein möchten.
Geschäfte des täglichen Bedarfs, Ärzte, Kindergarten und Schulen, Anbindung an öffentliche Verkehrsmittel, Gasthäuser etc. sind gut erreichbar.
Die Autobahnauffahrt sowie die Bezirkshauptstadt Vöcklabruck sind ca. 20 Minuten entfernt.
Am besten einfach gleich anrufen oder vorbeifahren und das Grundstück besichtigen – es ist mit Pflöcken markiert.
Alois Mairinger 0676 520 519 0
Der Vermittler ist als Doppelmakler tätig.
Infrastruktur / Entfernungen
Gesundheit
Arzt <2.000m
Apotheke <4.000m
Kinder & Schulen
Schule <2.500m
Kindergarten <2.500m
Nahversorgung
Supermarkt <4.000m
Bäckerei <2.500m
Sonstige
Bank <2.500m
Geldautomat <3.500m
Post <3.500m
Polizei <7.500m
Verkehr
Bus <500m
Bahnhof <2.000m
Angaben Entfernung Luftlinie / Quelle: OpenStreetMap
Objektdaten
Dokumente / Links
Flächen
- Grundstücksfläche
- 1.728m²
Kosten
- Kaufpreis Brutto
- € 169.000,00
Grundstücke zum Kaufen im Umkreis von Ottnang am Hausruck
Grundstücke zum Kaufen im Umkreis von Ottnang am Hausruck
Grundstücke zum Kaufen in Österreich
Andere Besucher suchen nach...
- Grundstücke kaufen in 3400 Weidlingbach
- Wohnungen kaufen in 4663 Laakirchen
- Häuser in 7471 Rechnitz
- Wohnungen in 2410 Hainburg an der Donau
- Häuser kaufen in 2432 Schwadorf
- Wohnungen kaufen in 3002 Purkersdorf
- Häuser in 3150 Wilhelmsburg
- Wohnungen kaufen in 3470 Engelmannsbrunn
- Grundstücke kaufen im Bezirk Mattersburg
- Grundstücke kaufen im Bezirk Gmunden