Baurechtsgrundstück (Pacht) mit 774 m2 in Aspern: Vertrag verlängerbar!
-
sofort
Beschreibung
Zum Verkauf gelangt ein großzügiges Baurechtsgrundstück in ruhiger Lage von Aspern mit einer Fläche von 774 m².
Der Baugrund ist bereits voll erschlossen (Strom, Wasser, Gas, Kanal) und verfügt außerdem über einen Brunnen.
Es gibt bereits ein Projekt für den Bau eines Einfamilienhauses, welches für Sie gerne eingereicht werden kann, mit:
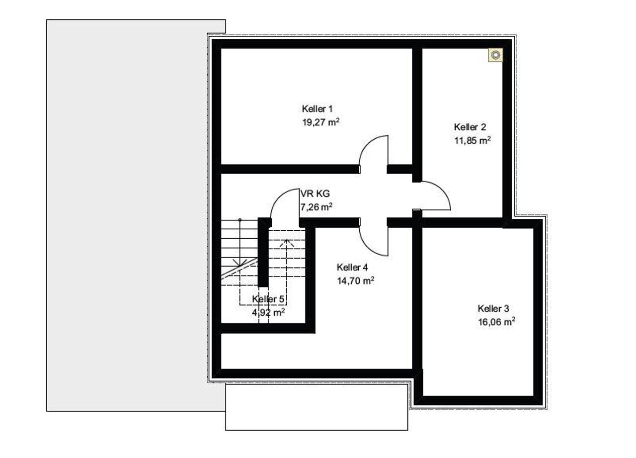
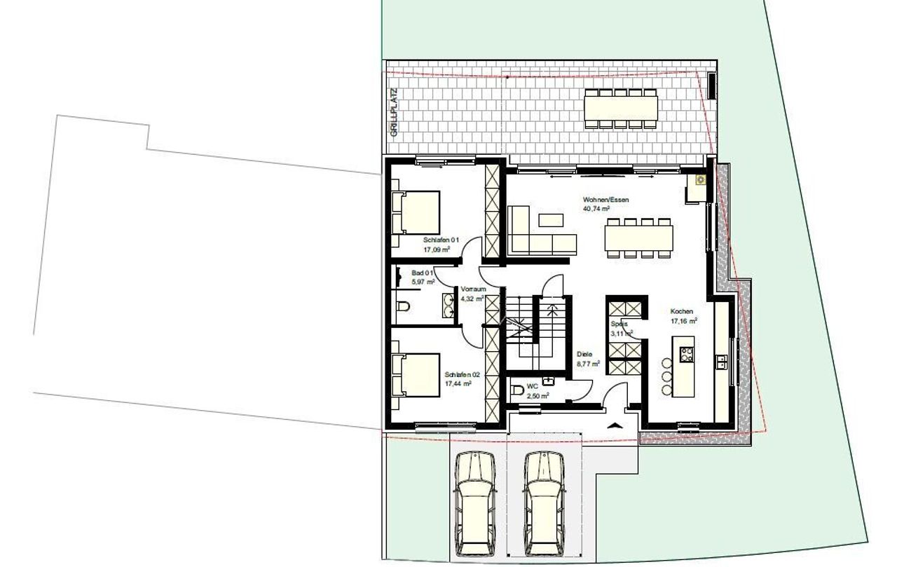
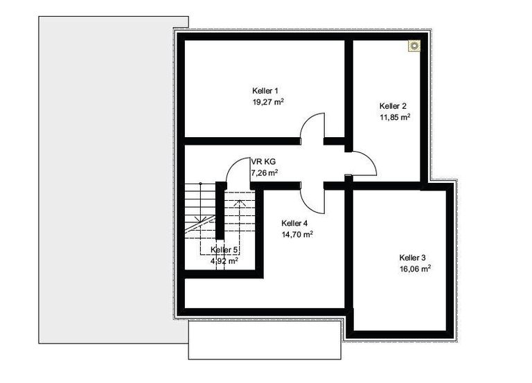
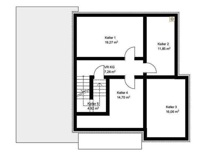
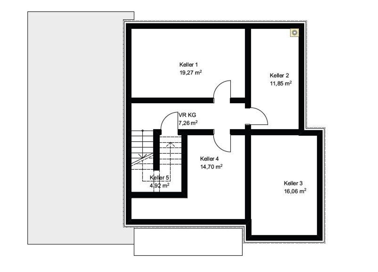
ca. 117 m2 im Erdgeschoss, ca. 101 m2 im Obergeschoss und zusätzlich Keller mit ca. 74 m2.
Bei dem Grundstück handelt es sich um ein Baurechtsgrundstück (bis 31.12.2047) der Stadt Wien.
Der jährliche Baurechtzins an die Stadt Wien beträgt: € 678,06.
Es besteht...
Zum Verkauf gelangt ein großzügiges Baurechtsgrundstück in ruhiger Lage von Aspern mit einer Fläche von 774 m².
Der Baugrund ist bereits voll erschlossen (Strom, Wasser, Gas, Kanal) und verfügt außerdem über einen Brunnen.
Es gibt bereits ein Projekt für den Bau eines Einfamilienhauses, welches für Sie gerne eingereicht werden kann, mit:
ca. 117 m2 im Erdgeschoss, ca. 101 m2 im Obergeschoss und zusätzlich Keller mit ca. 74 m2.
Bei dem Grundstück handelt es sich um ein Baurechtsgrundstück (bis 31.12.2047) der Stadt Wien.
Der jährliche Baurechtzins an die Stadt Wien beträgt: € 678,06.
Es besteht die Möglichkeit das Baurecht auf 60 Jahre nochmals zu verlängern.
Die gemütliche Umgebung und die absolute Ruhelage laden zu Erholung und Entspannung ein.
Erfüllen Sie sich hier Ihren Wohntraum!
Widmung:
Die Widmung des Grundstückes ist im vorderen Bereich W I ogk (Bauland Wohngebiet der Bauklasse I, offene oder gekuppelte Bauweise); im hinteren Bereich G (gärtnerische Ausgestaltung / mit Baumbestand).
- GST-Fläche: 774 m²
- Widmung: W I ogk
- 7,5 m / offen oder gekuppelt zum rechten Nachbarn, offen zur linken Seite
- Bebauungsdichte: 33,33% im vorderen Bereich
- 5m Abstand zur Straßenfront / Vorgarten
- Abstand zur Nachbargrenze gem § 79 Abs 3 Wr BauO mind. 3 m
Laut dem Aktenvermerk: Gem. § 76 Abs 10 Wr BauO darf in der offenen oder gekuppelten Bauweise die bebaute Fläche von Gebäuden in der Bauklasse I nicht mehr als 1/3 der Bauplatzfläche, maximal jedoch 350 m² betragen. Bei gekuppelter Bauweise ist diese Fläche (außer, die Eigentümer haben Abweichendes vereinbart) nach dem Verhältnis der beiden Bauplatzflächen aufzuteilen. [...]
In offener Bauweise darf ein Baukörper mit einer bebauten Fläche von max 259,33 m² errichtet werden. [...]
Die höchstzulässige Gebäudehöhe beläuft sich auf 7,5 m; der oberste Dachabschluss darf, da der Bebauungsplan nicht anderes bestimmt, maximal 4,5 m über der höchstzulässigen Gebäudehöhe (insgesamt sohin auf 12,0 m) liegen.
Konditionen:
Kaufpreis: € 298.000,--
Grundbucheintragung: 1,1% vom KP (Möglichkeit auf Befreiung nach Ansuchen);
Pfandrechtseintragung: 1,2 % vom KP (Möglichkeit auf Befreiung nach Ansuchen);
Kaufvertragserrichtungskosten + Treuhand: i.d.R.: 1,2 % vom KP + 20% MwSt. + Barauslagen und Gerichtsgebühren;
Maklerprovision: 3% vom Kaufpreis zzgl. 20% USt.
ev. Finanzierungskosten: ?
Dienstleistung für Anleger*innen:
Sie möchten nach Erwerb der Immobilie mit der Vermietung und eventuellen Fragen während des Mietverhältnisses nicht beschäftigt sein?
Wir stehen Ihnen mit einem Dienstleistungskonzept für Anleger*innen zur Verfügung. Gerne übermitteln wir Ihnen bei Bedarf die Unterlagen hierfür.
Finanzierung:
Sie suchen nach einer passenden Finanzierung für dieses Objekt?
Um Ihnen Ihre wertvolle Zeit und Ihr Geld zu sparen, stehen wir Ihnen auch hier tatkräftig zur Seite!
Gerne stehen wir Ihnen für ein unverbindliches und kostenloses Erstberatungsgespräch zur Verfügung.
Wir beraten Sie verlässlich und professionell! Sparen Sie Ihre kostbare Zeit mit unzähligen Bankterminen.
Kontakt:
Für weitere Informationen, Unterlagen und Besichtigungen oder Fragen zum Objekt wenden Sie sich bitte an:
Herrn Paunovic Radisa: +43 / 664 - 404 15 47 oder per E-Mail an: office@pr-immobilien.at
Noch nichts gefunden? Wir informieren Sie über geeignete Immobilienangebote noch vor allen anderen.
Legen Sie jetzt Ihren individuellen Suchagenten unter folgendem Link an. Wir schicken Ihnen passende Immobilien exklusiv vorab zu.
Suchagent anlegen - https://pr-immobilien-real-estate.service.immo/registrieren/de
Hinweis gemäß Energieausweisvorlagegesetz: Ein Energieausweis wurde vom Eigentümer bzw. Verkäufer, nach unserer Aufklärung über die generell geltende Vorlagepflicht, sowie Aufforderung zu seiner Erstellung noch nicht vorgelegt. Daher gilt zumindest eine dem Alter und der Art des Gebäudes entsprechende Gesamtenergieeffizienz als vereinbart. Wir übernehmen keinerlei Gewähr oder Haftung für die tatsächliche Energieeffizienz der angebotenen Immobilie.
Der Vermittler ist als Doppelmakler tätig.
Infrastruktur / Entfernungen
Gesundheit
Arzt <500m
Apotheke <1.000m
Klinik <1.500m
Krankenhaus <2.500m
Kinder & Schulen
Schule <1.000m
Kindergarten <1.000m
Universität <2.000m
Höhere Schule <1.500m
Nahversorgung
Supermarkt <500m
Bäckerei <1.000m
Einkaufszentrum <4.000m
Sonstige
Bank <1.000m
Geldautomat <1.000m
Post <1.500m
Polizei <1.500m
Verkehr
Bus <500m
U-Bahn <2.000m
Straßenbahn <1.500m
Bahnhof <2.000m
Autobahnanschluss <4.000m
Angaben Entfernung Luftlinie / Quelle: OpenStreetMap
Objektdaten
Flächen
- Grundstücksfläche
- 774m²
- Gartenfläche
- 774m²
Kosten
- Kaufpreis Brutto
- € 298.000,00
Verwaltung
- Verfügbar ab
- sofort
Grundstücke zum Kaufen in Österreich
- Bezirk Gemeindebezirk Donaustadt
- Bezirk Gemeindebezirk Donaustadt
- Bezirk Gemeindebezirk Donaustadt
- Bezirk Gemeindebezirk Floridsdorf
- Bezirk Gemeindebezirk Floridsdorf
- Bezirk Gemeindebezirk Floridsdorf
- Bezirk Gemeindebezirk Favoriten
- Bezirk Gemeindebezirk Favoriten
- Bezirk Gemeindebezirk Favoriten
- Bezirk Gemeindebezirk Döbling
Grundstücke zum Kaufen in Österreich
Grundstücke zum Kaufen in Österreich
Andere Besucher suchen nach...
- Grundstücke kaufen in 3400 Weidlingbach
- Wohnungen kaufen in 4663 Laakirchen
- Häuser in 7471 Rechnitz
- Wohnungen in 2410 Hainburg an der Donau
- Häuser kaufen in 2432 Schwadorf
- Wohnungen kaufen in 3002 Purkersdorf
- Häuser in 3150 Wilhelmsburg
- Wohnungen kaufen in 3470 Engelmannsbrunn
- Grundstücke kaufen im Bezirk Mattersburg
- Grundstücke kaufen im Bezirk Gmunden