Grund für Mehrfamilienhaus
€ 699.000
1220 Wien
Beschreibung
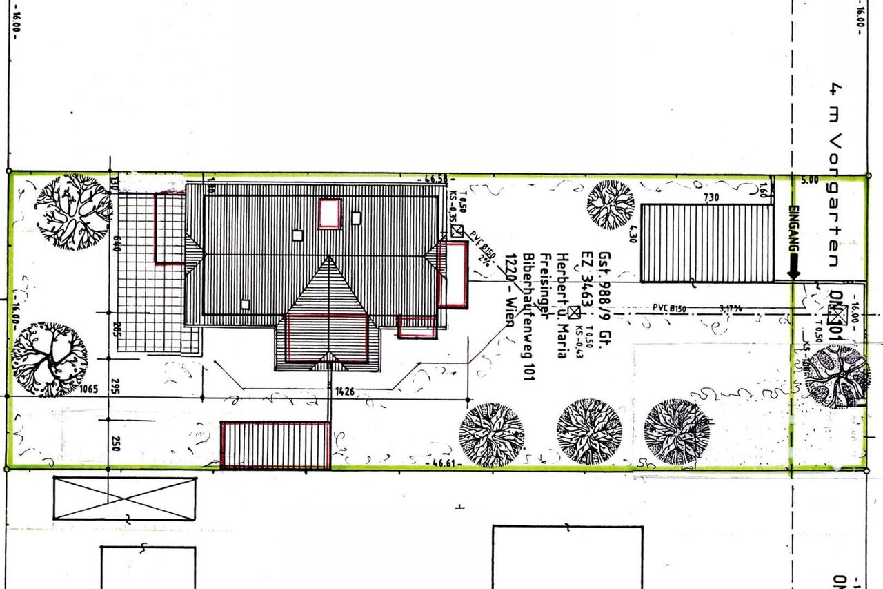
Grund für Mehrfamilienhaus Bauträgergrundstück Das Grundstück befindet sich im Nahbereich des Oberen Mühlwassers und die Gegend ist geprägt von Einfamilienhäusern und den Erholungsflächen in der Lobau. Einkaufsmöglichkeiten und andere Einrichtungen sind im Nahbereich vorhanden. Durch die Busse 93A, 94A und N91 ist das Zentrum von Wien leicht erreichbar. Nach Abbruch des Bestandes könnte ein Mehrfamilienhaus oder attraktive Wohnungen errichtet werden. Das Grundstück ist komplett aufgeschlossen und es fallen keine zusätzlichen Kosten an. Sind Sie neugierig geworden? Dann vereinbaren Sie einfach einen Besichtigungstermin unter 0660-2061 480 Eckdaten: Grundstück: ca.746m2 Widmung: W1, o, gk (Wohnen, offen oder gekoppelt) Gebäudehöhe: 6,5m + Dachaufbau...
Grund für Mehrfamilienhaus
Bauträgergrundstück
Das Grundstück befindet sich im Nahbereich des Oberen Mühlwassers und die Gegend ist geprägt von Einfamilienhäusern und den Erholungsflächen in der Lobau. Einkaufsmöglichkeiten und andere Einrichtungen sind im Nahbereich vorhanden. Durch die Busse 93A, 94A und N91 ist das Zentrum von Wien leicht erreichbar. Nach Abbruch des Bestandes könnte ein Mehrfamilienhaus oder attraktive Wohnungen errichtet werden. Das Grundstück ist komplett aufgeschlossen und es fallen keine zusätzlichen Kosten an.
Sind Sie neugierig geworden?
Dann vereinbaren Sie einfach einen Besichtigungstermin unter 0660-2061 480
Eckdaten:
Grundstück: ca.746m2
Widmung: W1, o, gk (Wohnen, offen oder gekoppelt)
Gebäudehöhe: 6,5m + Dachaufbau 4,5m
Maklerhonorar 3% plus 20% Ust
Wir bitten um Verständnis, dass auf Grund der Nachweispflicht gegenüber dem Eigentümer nur Anfragen mit vollständigen Kontaktdaten (Name, Adresse, Tel., Email) beantwortet werden können. Es wird darauf hingewiesen, dass die angeführten Daten auf Informationen des Eigentümers oder Dritter (z.B. Behörden) beruhen, sodass für die Richtigkeit keine Gewähr übernommen werden kann.
Bauträgergrundstück
Das Grundstück befindet sich im Nahbereich des Oberen Mühlwassers und die Gegend ist geprägt von Einfamilienhäusern und den Erholungsflächen in der Lobau. Einkaufsmöglichkeiten und andere Einrichtungen sind im Nahbereich vorhanden. Durch die Busse 93A, 94A und N91 ist das Zentrum von Wien leicht erreichbar. Nach Abbruch des Bestandes könnte ein Mehrfamilienhaus oder attraktive Wohnungen errichtet werden. Das Grundstück ist komplett aufgeschlossen und es fallen keine zusätzlichen Kosten an.
Sind Sie neugierig geworden?
Dann vereinbaren Sie einfach einen Besichtigungstermin unter 0660-2061 480
Eckdaten:
Grundstück: ca.746m2
Widmung: W1, o, gk (Wohnen, offen oder gekoppelt)
Gebäudehöhe: 6,5m + Dachaufbau 4,5m
Maklerhonorar 3% plus 20% Ust
Wir bitten um Verständnis, dass auf Grund der Nachweispflicht gegenüber dem Eigentümer nur Anfragen mit vollständigen Kontaktdaten (Name, Adresse, Tel., Email) beantwortet werden können. Es wird darauf hingewiesen, dass die angeführten Daten auf Informationen des Eigentümers oder Dritter (z.B. Behörden) beruhen, sodass für die Richtigkeit keine Gewähr übernommen werden kann.
Der Vermittler ist als Doppelmakler tätig.
Infrastruktur / Entfernungen
Gesundheit
Arzt <1.000m
Apotheke <2.000m
Klinik <2.000m
Krankenhaus <2.000m
Kinder & Schulen
Schule <1.500m
Kindergarten <1.500m
Universität <3.000m
Höhere Schule <3.500m
Nahversorgung
Supermarkt <500m
Bäckerei <2.000m
Einkaufszentrum <4.000m
Sonstige
Geldautomat <2.000m
Bank <2.000m
Post <2.000m
Polizei <2.000m
Verkehr
Bus <500m
U-Bahn <2.000m
Straßenbahn <2.000m
Bahnhof <2.000m
Autobahnanschluss <2.500m
Angaben Entfernung Luftlinie / Quelle: OpenStreetMap
Objektdaten
Ausstattung
- Kabel/SAT-TV
Flächen
- Grundstücksfläche
- 746m²
Kosten
- Kaufpreis Brutto
- € 699.000,00
Grundstücke zum Kaufen in Österreich
- Bezirk Gemeindebezirk Donaustadt
- Bezirk Gemeindebezirk Donaustadt
- Bezirk Gemeindebezirk Donaustadt
- Bezirk Gemeindebezirk Floridsdorf
- Bezirk Gemeindebezirk Floridsdorf
- Bezirk Gemeindebezirk Floridsdorf
- Bezirk Gemeindebezirk Favoriten
- Bezirk Gemeindebezirk Favoriten
- Bezirk Gemeindebezirk Favoriten
- Bezirk Gemeindebezirk Döbling
Grundstücke zum Kaufen in Österreich
Grundstücke zum Kaufen in Österreich
Andere Besucher suchen nach...
- Grundstücke kaufen in 3400 Weidlingbach
- Wohnungen kaufen in 4663 Laakirchen
- Häuser in 7471 Rechnitz
- Wohnungen in 2410 Hainburg an der Donau
- Häuser kaufen in 2432 Schwadorf
- Wohnungen kaufen in 3002 Purkersdorf
- Häuser in 3150 Wilhelmsburg
- Wohnungen kaufen in 3470 Engelmannsbrunn
- Grundstücke kaufen im Bezirk Mattersburg
- Grundstücke kaufen im Bezirk Gmunden