IN MAUER: BAUTRÄGER AUFGEPASST: GRUNDSTÜCK FÜR 2 DOPPELHÄUSER | ODER 2 EINFAMILIENHÄUSER
Beschreibung
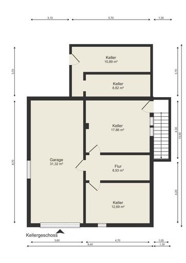
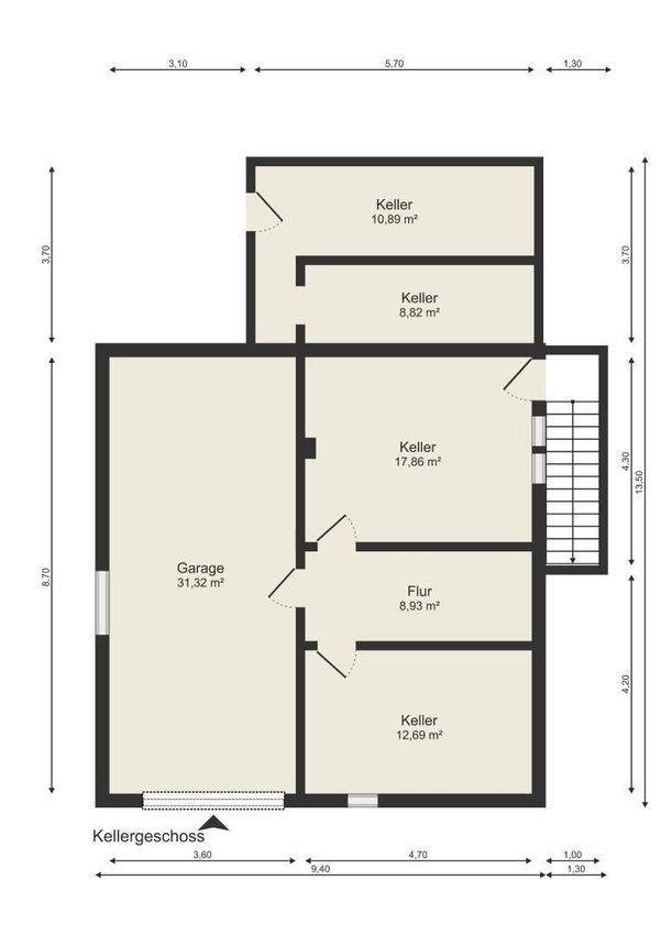
Sonniges Grundstück mit Bungalow in Toplage nahe Maurer Hauptplatz Das Wichtigste auf einen Blick - Grundstücksfläche: 1.188 m² - Aufteilung: 2 Grundstücksnummern – Teilung auf je ca. 594 m² möglich - Bebauung/Widmung: Bauklasse I, 6,5 m, o gk, - - Pro Grundstück sind je 198 m² verbaute Fläche möglich - Bestandsgebäude: Bungalow mit ca. 97 m² Wohnfläche - voll unterkellert - Garage Die ausführliche Beschreibung Auf dem großzügigen und sonnigen Grundstück in der Binagasse in Mauer befindet sich ein gepflegter Bungalow mit ca. 97 m² Wohnfläche. Der Grundriss umfasst: - einen gemütlichen Wohnbereich mit westseitigem Wintergarten, - ein Schlafzimmer, -...
Sonniges Grundstück mit Bungalow in Toplage nahe Maurer Hauptplatz
Das Wichtigste auf einen Blick
- Grundstücksfläche: 1.188 m² - Aufteilung: 2 Grundstücksnummern – Teilung auf je ca. 594 m² möglich
- Bebauung/Widmung: Bauklasse I, 6,5 m, o gk, -
- Pro Grundstück sind je 198 m² verbaute Fläche möglich
- Bestandsgebäude: Bungalow mit ca. 97 m² Wohnfläche - voll unterkellert - Garage
Die ausführliche Beschreibung
Auf dem großzügigen und sonnigen Grundstück in der Binagasse in Mauer befindet sich ein gepflegter Bungalow mit ca. 97 m² Wohnfläche.
Der Grundriss umfasst:
- einen gemütlichen Wohnbereich mit westseitigem Wintergarten,
- ein Schlafzimmer,
- eine voll ausgestattete Küche,
- ein Badezimmer mit Wanne, Dusche und Fenster,
- sowie einen praktischen Abstellraum.
Der Bungalow wird mit Strom-Nachtspeicheröfen beheizt. Fenster und Fassadendämmung wurden bereits vor rund 15 Jahren erneuert, sodass ein solider Bauzustand gegeben ist.
Dank der Widmung bietet das Grundstück auch hervorragende Entwicklungsmöglichkeiten. Damit ist die Liegenschaft sowohl für Eigennutzer, die viel Grün und Ruhe schätzen, als auch für Bauträger hochinteressant.
Lage & Umgebung
Die Liegenschaft liegt in einer ruhigen Wohngegend von Mauer, unweit des beliebten Maurer Hauptplatzes. Hier finden sich charmante Heurige, Restaurants sowie sämtliche Nahversorger und Geschäfte des täglichen Bedarfs. Schulen, Kindergärten und medizinische Einrichtungen sind ebenfalls bequem erreichbar.
Öffentliche Anbindung
Buslinien: 58B, 63A, 56A, 58A, N60 – wenige Gehminuten entfernt
S-Bahn: S2 und S3 (Bahnhof Liesing) mit direkter Verbindung ins Stadtzentrum
U-Bahn: U6 – schnell erreichbar und direkte Anbindung zur Innenstadt
Straßenbahnlinie 60 Richtung Hietzing
Mit dem Auto sind sowohl die Südosttangente (A23) als auch die Südautobahn (A2) in wenigen Minuten erreichbar.
Fazit
Ein großzügiges Grundstück in bester Lage, das durch seine vielseitigen Nutzungsmöglichkeiten überzeugt – ob als charmantes Zuhause im bestehenden Bungalow oder als spannendes Entwicklungsprojekt für Bauträger
Ein Energieausweis ist in Arbeit.
Der Vermittler ist als Doppelmakler tätig.
Infrastruktur / Entfernungen
Gesundheit
Arzt <500m
Apotheke <750m
Klinik <1.750m
Krankenhaus <1.750m
Kinder & Schulen
Schule <250m
Kindergarten <750m
Universität <4.500m
Höhere Schule <5.500m
Nahversorgung
Supermarkt <750m
Bäckerei <1.000m
Einkaufszentrum <1.000m
Sonstige
Geldautomat <1.000m
Bank <1.000m
Post <1.000m
Polizei <1.250m
Verkehr
Bus <500m
U-Bahn <3.000m
Straßenbahn <750m
Bahnhof <1.000m
Autobahnanschluss <3.500m
Angaben Entfernung Luftlinie / Quelle: OpenStreetMap
Objektdaten
Dokumente / Links
Flächen
- Grundstücksfläche
- 1.188m²
Kosten
- Kaufpreis Brutto
- € 1.480.000,00
Grundstücke zum Kaufen in Österreich
Grundstücke zum Kaufen in Österreich
Grundstücke zum Kaufen in Österreich
Andere Besucher suchen nach...
- Grundstücke kaufen in 3400 Weidlingbach
- Wohnungen kaufen in 4663 Laakirchen
- Häuser in 7471 Rechnitz
- Wohnungen in 2410 Hainburg an der Donau
- Häuser kaufen in 2432 Schwadorf
- Wohnungen kaufen in 3002 Purkersdorf
- Häuser in 3150 Wilhelmsburg
- Wohnungen kaufen in 3470 Engelmannsbrunn
- Grundstücke kaufen im Bezirk Mattersburg
- Grundstücke kaufen im Bezirk Gmunden