Aufgepasst: Traumhaftes Grundstück mit genehmigtem Einreichplan!
Beschreibung
Sie sind auf der Suche nach einem sonnigen Grundstück mit Weitblick in absoluter Ruhelage? Dann könnte dieses Objekt mit genehmigten Einreichplan genau das Richtige für Sie sein. Erleben Sie hochwertigen Wohnkomfort inmitten einer atemberaubenden Berglandschaft! Dieses außergewöhnliche geplante Chalet welches sich über 3 Ebenen erstreckt, liegt auf rund 1100 m Seehöhe, wurde von einem renommierten Architekturstudio aus Graz entworfen und sorgt für eine optimale Raumnutzung und höchsten Wohnkomfort.
Raumaufteilung:
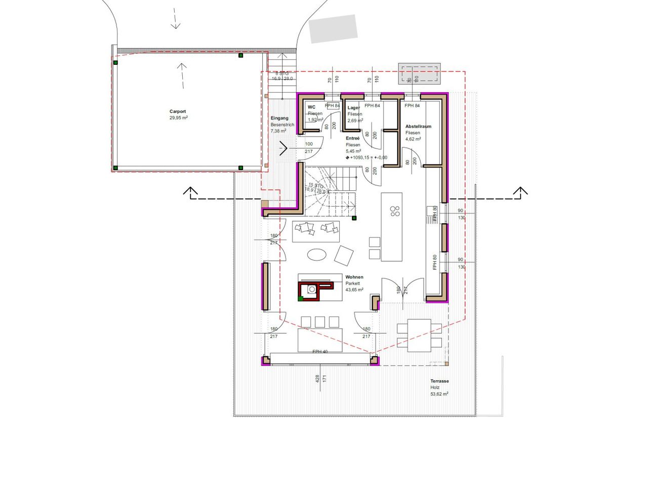
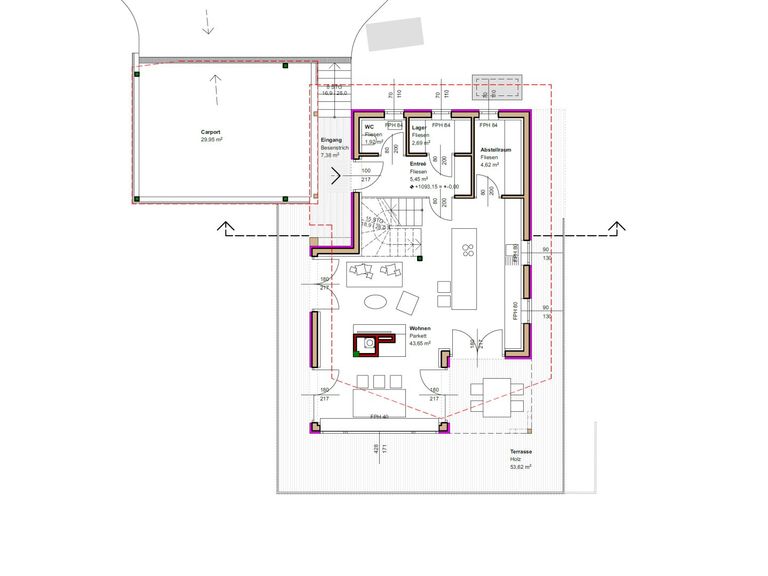
Von den Carportstellplätzen gelangen Sie über 8 Stufen Talwärts zum Haupteingangsbereich des Chalets. Das Erdgeschoss besteht aus einem Vorraum/Garderobe, einem Gäste-WC mit Waschbecken, zwei Lagerräumen und einem großen offen...
Sie sind auf der Suche nach einem sonnigen Grundstück mit Weitblick in absoluter Ruhelage? Dann könnte dieses Objekt mit genehmigten Einreichplan genau das Richtige für Sie sein.
Erleben Sie hochwertigen Wohnkomfort inmitten einer atemberaubenden Berglandschaft! Dieses außergewöhnliche geplante Chalet welches sich über 3 Ebenen erstreckt, liegt auf rund 1100 m Seehöhe, wurde von einem renommierten Architekturstudio aus Graz entworfen und sorgt für eine optimale Raumnutzung und höchsten Wohnkomfort.
Raumaufteilung:
Von den Carportstellplätzen gelangen Sie über 8 Stufen Talwärts zum Haupteingangsbereich
des Chalets. Das Erdgeschoss besteht aus einem Vorraum/Garderobe, einem Gäste-WC mit
Waschbecken, zwei Lagerräumen und einem großen offen Wohn- und Essbereich mit einem
offenen Kamin und einer Rundumterrasse. (ca. 53,6 m²) Ein kleiner Teilbereich der Terrasse
ist für warme Sommertage überdacht.
Das Obergeschoss besteht aus einem großen Badezimmer, einem Schlafzimmer mit ca. 10,4 m² und dem Hauptschlafzimmer (ca. 20m²) mit freistehender Badewanne. Vom Hauptschlafzimmer kommen Sie direkt auf die zweite südlich ausgerichtete Terrasse (ca. 15m²) von der aus Sie eine wunderbare Aussicht genießen. Die großen Fensterflächen machen dieses Areal zu einem einzigartigen Erlebnis sowohl bei Tag als auch bei Nacht.
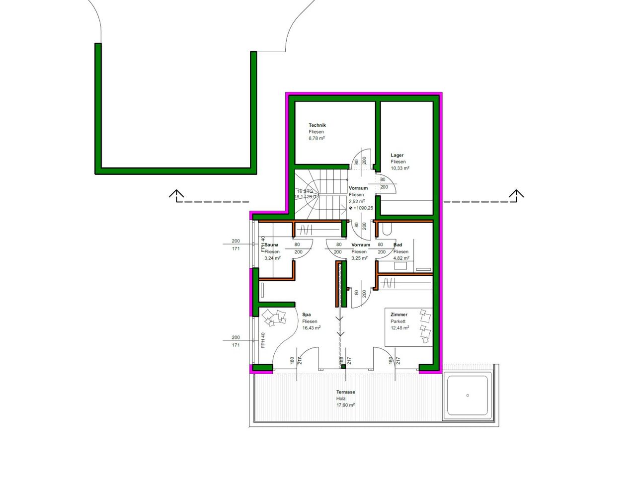
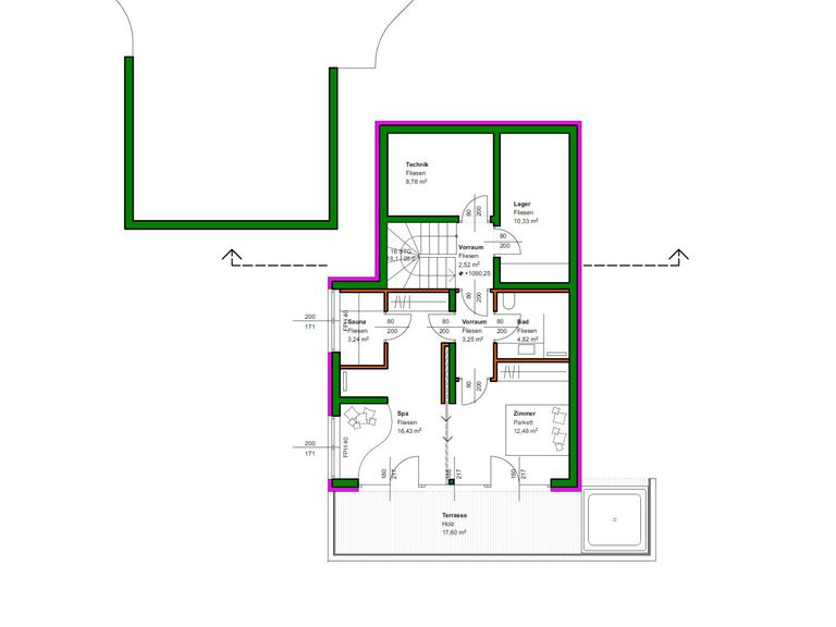
Die Untergeschossebene gliedert sich in einen Technikraum, einen großen Lagerraum, einen Wellnessbereich mit Sauna und Terrassenzugang, einem separaten Badezimmer und einem Gästezimmer mit Zugang zur Terrasse.
Dieses exklusive Chalet ist der ideale Rückzugsort für Naturliebhaber und Ruhesuchende. Genießen Sie die Schönheit der Kärntner Bergwelt in einem außergewöhnlichen Zuhause, das höchsten Ansprüchen an Komfort und Ästhetik gerecht wird
Lassen Sie hier den Traum von Ihrer Ferienimmobile wahr werden.
Jetzt habe ich Ihr Interesse geweckt?
Dann zögern Sie nicht und vereinbaren Sie am besten noch heute Ihren persönlichen
Besichtigungs- | Beratungstermin unter 0664/1495097.
Ich freue mich auf Ihren Anruf, Dominic Nagele - Stolz , DAHEIM D.A. Immobilien GmbH
Aufgepasst: Wenn Sie Ihre eigene Immobilie verkaufen oder einfach nur den aktuellen Marktwert
erfahren möchten, bieten wir Ihnen gerne eine kostenlose & unverbindliche online Bewertung an.
So wissen Sie genau, wo Sie stehen – transparent, professionell und persönlich. Einfach unsere
Homepage besuchen und unter dem Reiter Bewertung ihre Angaben vervollständigen.
Wir weisen darauf hin, dass zwischen dem Vermittler und dem zu vermittelnden Dritten ein familiäres oder wirtschaftliches Naheverhältnis besteht.
Infrastruktur / Entfernungen
Gesundheit
Arzt <6.000m
Apotheke <6.000m
Krankenhaus <6.000m
Kinder & Schulen
Schule <5.500m
Kindergarten <5.000m
Höhere Schule <5.500m
Nahversorgung
Supermarkt <5.500m
Bäckerei <6.000m
Einkaufszentrum <6.500m
Sonstige
Bank <6.000m
Geldautomat <6.000m
Post <6.000m
Polizei <6.000m
Verkehr
Bus <1.500m
Autobahnanschluss <7.500m
Bahnhof <6.000m
Flughafen <7.500m
Angaben Entfernung Luftlinie / Quelle: OpenStreetMap
Objektdaten
Ausstattung
- Ausrichtung Balkon/Terrasse - Südwest
Flächen
- Anzahl der Zimmer
- 5
- Anzahl der Badezimmer
- 3
- Anzahl der sep. WCs
- 3
- Anzahl der Terrassen
- 3
- Stellplätze
- 2
- Nutzfläche
- 172m²
- Grundstücksfläche
- 500m²
- Terrassenfläche
- 3m²
Kosten
- Kaufpreis Brutto
- € 123.000,00
Verwaltung
- Ferienimmobilie
- Ja
Grundstücke zum Kaufen im Umkreis von Wolfsberg
Grundstücke zum Kaufen im Umkreis von Wolfsberg
Grundstücke zum Kaufen in Österreich
Andere Besucher suchen nach...
- Grundstücke kaufen in 3400 Weidlingbach
- Wohnungen kaufen in 4663 Laakirchen
- Häuser in 7471 Rechnitz
- Wohnungen in 2410 Hainburg an der Donau
- Häuser kaufen in 2432 Schwadorf
- Wohnungen kaufen in 3002 Purkersdorf
- Häuser in 3150 Wilhelmsburg
- Wohnungen kaufen in 3470 Engelmannsbrunn
- Grundstücke kaufen im Bezirk Mattersburg
- Grundstücke kaufen im Bezirk Gmunden