Ruhelage mit Weitblick – Neubau-Bungalow mit Galerie in Sensberg / Tarsdorf (Symbolfoto)
-
2027
Beschreibung
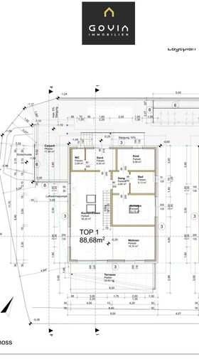
In Sensberg, einem ruhigen Ortsteil der Gemeinde Tarsdorf, entstehen zwei moderne Bungalows in energieeffizienter Holzbauweise.
Die Häuser verbinden großzügiges, eingeschossiges Wohnen mit einer offenen Galerielösung, die zusätzlichen Raum für Arbeiten, Rückzug oder individuelle Nutzungsmöglichkeiten schafft.
Mit rund 132 m² Nutzfläche entsteht ein Wohnkonzept, das bewusst auf Übersichtlichkeit, Komfort und langfristige Wohnqualität ausgerichtet ist.
Die Gebäude werden in hochwertiger Holzbauweise errichtet und kombinieren natürliche Materialien mit moderner Haustechnik.
Bauweise und Ausstattung
- energieeffiziente Holzbauweise
- hochwertiger Wandaufbau mit Holzfaser-Dämmung
- Luftwärmepumpe
- Fußbodenheizung
- dreifachverglaste Fenster
- großzügige Terrasse
- Carport und zusätzlicher Stellplatz
- provisionsfrei für Käufer
Die Architektur verbindet klare Linien mit einer offenen Raumwirkung...
In Sensberg, einem ruhigen Ortsteil der Gemeinde Tarsdorf, entstehen zwei moderne Bungalows in energieeffizienter Holzbauweise.
Die Häuser verbinden großzügiges, eingeschossiges Wohnen mit einer offenen Galerielösung, die zusätzlichen Raum für Arbeiten, Rückzug oder individuelle Nutzungsmöglichkeiten schafft.
Mit rund 132 m² Nutzfläche entsteht ein Wohnkonzept, das bewusst auf Übersichtlichkeit, Komfort und langfristige Wohnqualität ausgerichtet ist.
Die Gebäude werden in hochwertiger Holzbauweise errichtet und kombinieren natürliche Materialien mit moderner Haustechnik.
Bauweise und Ausstattung
- energieeffiziente Holzbauweise
- hochwertiger Wandaufbau mit Holzfaser-Dämmung
- Luftwärmepumpe
- Fußbodenheizung
- dreifachverglaste Fenster
- großzügige Terrasse
- Carport und zusätzlicher Stellplatz
- provisionsfrei für Käufer
Die Architektur verbindet klare Linien mit einer offenen Raumwirkung und einem starken Bezug zur umliegenden Landschaft.
Wir weisen darauf hin, dass zwischen dem Vermittler und dem zu vermittelnden Dritten ein familiäres oder wirtschaftliches Naheverhältnis besteht.
Der Vermittler ist als Doppelmakler tätig.
Infrastruktur / Entfernungen
Gesundheit
Arzt <500m
Apotheke <4.500m
Klinik <10.000m
Krankenhaus <5.500m
Kinder & Schulen
Schule <500m
Kindergarten <5.000m
Höhere Schule <8.500m
Universität <6.500m
Nahversorgung
Supermarkt <4.000m
Bäckerei <4.000m
Sonstige
Bank <500m
Geldautomat <500m
Post <4.500m
Polizei <4.500m
Verkehr
Bus <500m
Bahnhof <4.500m
Angaben Entfernung Luftlinie / Quelle: OpenStreetMap
Objektdaten
Ausstattung
- Barrierefrei
- Gäste-WC
- Bad mit Dusche
- Bad mit Badewanne
- Bad mit Fenster
- Fliesenboden
- Fertigparkettboden
- Luftwärmepumpe
- Holz Bauweise
- Schlüsselfertig mit Bodenplatte
Dokumente / Links
Zustand
- Alter
- NEUBAU
- HWB
- 60 kWh/m² pro Jahr
- Klasse HWB
- A++
- fGEE
- 0.72
- Klasse fGEE
- A
Kosten
- Kaufpreis Brutto
- € 525.000,00
Verwaltung
- Verfügbar ab
- 2027
Häuser zum Kaufen im Umkreis von Tarsdorf
Häuser zum Kaufen im Umkreis von Tarsdorf
Häuser zum Kaufen in Österreich
Andere Besucher suchen nach...
- Grundstücke kaufen in 3400 Weidlingbach
- Wohnungen kaufen in 4663 Laakirchen
- Häuser in 7471 Rechnitz
- Wohnungen in 2410 Hainburg an der Donau
- Häuser kaufen in 2432 Schwadorf
- Wohnungen kaufen in 3002 Purkersdorf
- Häuser in 3150 Wilhelmsburg
- Wohnungen kaufen in 3470 Engelmannsbrunn
- Grundstücke kaufen im Bezirk Mattersburg
- Grundstücke kaufen im Bezirk Gmunden