Viel Raum für Ideen – Ihr Zuhause wartet!
€ 249.000
€ 1.671 / m²
4694 Ohlsdorf
-
sofort
Beschreibung
Diese Liegenschaft in ruhiger Lage am Sandhäuslberg in Ohlsdorf wartet auf eine liebevolle Handwerkerhand, die es wieder zum Strahlen bringt. Das Gebäude wurde ursprünglich zirka um das Jahr 1904 errichtet und in den 1970er Jahren umfassend umgebaut und saniert. Seitdem wurden wenige umfangreiche Sanierungen vorgenommen, weshalb sich das Haus heute in einem renovierungsbedürftigen Zustand befindet. Teilweise sind feuchte Stellen an den Wänden sichtbar, was bei der Planung zukünftiger Sanierungsmaßnahmen berücksichtigt werden sollte. Das Dach wurde in den 1990er Jahren neu gedeckt, ebenso wurden die Fenster Mitte der 90er Jahre durch Kunststofffenster ersetzt. Ein Großteil des Hauses ist an das öffentliche...
Diese Liegenschaft in ruhiger Lage am Sandhäuslberg in Ohlsdorf wartet auf eine liebevolle Handwerkerhand, die es wieder zum Strahlen bringt.
Das Gebäude wurde ursprünglich zirka um das Jahr 1904 errichtet und in den 1970er Jahren umfassend umgebaut und saniert. Seitdem wurden wenige umfangreiche Sanierungen vorgenommen, weshalb sich das Haus heute in einem renovierungsbedürftigen Zustand befindet. Teilweise sind feuchte Stellen an den Wänden sichtbar, was bei der Planung zukünftiger Sanierungsmaßnahmen berücksichtigt werden sollte.
Das Dach wurde in den 1990er Jahren neu gedeckt, ebenso wurden die Fenster Mitte der 90er Jahre durch Kunststofffenster ersetzt. Ein Großteil des Hauses ist an das öffentliche Kanalnetz angeschlossen.
Besonders hervorzuheben ist der schöne und gemütliche Garten, der sich ideal für naturbegeisterte Menschen eignet und zukünftig eine grüne Oase der Ruhe darstellen wird.
Zum Haus gehören außerdem eine Garage sowie drei mögliche Außenstellplätze.
Die Nähe zur Autobahnauffahrt sorgt für eine gute Verkehrsanbindung, der Nahe gelegene Spazierweg entlang der Traun zum Traunfall bietet herrliche Entspannung in der Natur.
Diese Liegenschaft bietet nicht nur Raum zur Entfaltung, sondern auch die Möglichkeit, ein individuelles Wohnkonzept zu verwirklichen.
Ideal für Handwerker, Sanierungsprofis oder kreative Köpfe mit einem Faible für Altbestand.
Für weitere Fragen oder eine gemeinsame Besichtigung steht Ihnen Herr Christian Sammer unter der Nummer 0650 31 71 003 gerne zur Verfügung.
Das Gebäude wurde ursprünglich zirka um das Jahr 1904 errichtet und in den 1970er Jahren umfassend umgebaut und saniert. Seitdem wurden wenige umfangreiche Sanierungen vorgenommen, weshalb sich das Haus heute in einem renovierungsbedürftigen Zustand befindet. Teilweise sind feuchte Stellen an den Wänden sichtbar, was bei der Planung zukünftiger Sanierungsmaßnahmen berücksichtigt werden sollte.
Das Dach wurde in den 1990er Jahren neu gedeckt, ebenso wurden die Fenster Mitte der 90er Jahre durch Kunststofffenster ersetzt. Ein Großteil des Hauses ist an das öffentliche Kanalnetz angeschlossen.
Besonders hervorzuheben ist der schöne und gemütliche Garten, der sich ideal für naturbegeisterte Menschen eignet und zukünftig eine grüne Oase der Ruhe darstellen wird.
Zum Haus gehören außerdem eine Garage sowie drei mögliche Außenstellplätze.
Die Nähe zur Autobahnauffahrt sorgt für eine gute Verkehrsanbindung, der Nahe gelegene Spazierweg entlang der Traun zum Traunfall bietet herrliche Entspannung in der Natur.
Diese Liegenschaft bietet nicht nur Raum zur Entfaltung, sondern auch die Möglichkeit, ein individuelles Wohnkonzept zu verwirklichen.
Ideal für Handwerker, Sanierungsprofis oder kreative Köpfe mit einem Faible für Altbestand.
| Angaben gemäß gesetzlichem Erfordernis: | |||
| Heizwärmebedarf: | 246.0 kWh/(m²a) | ||
Für weitere Fragen oder eine gemeinsame Besichtigung steht Ihnen Herr Christian Sammer unter der Nummer 0650 31 71 003 gerne zur Verfügung.
Objektdaten
Ausstattung
- Teilunterkellert
- Zentralheizung
- Befeuerung mit Öl
- Bus
- Küche Möbliert
- Zentralheizung mit Öl
Dokumente / Links
Zustand
- Baujahr
- ca. 1904
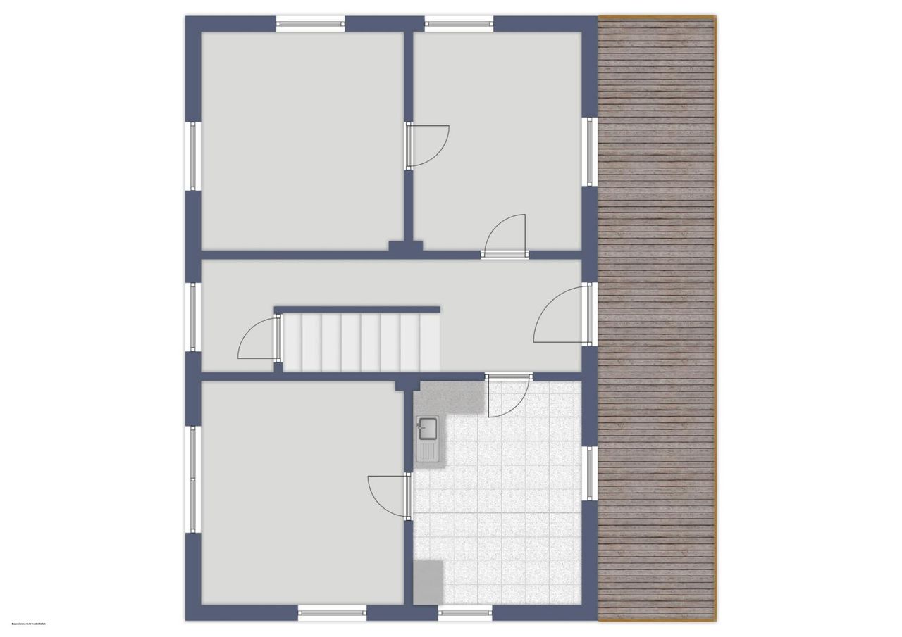
Flächen
- Anzahl der Zimmer
- 5
- Anzahl der Schlafzimmer
- 4
- Anzahl der Badezimmer
- 1
- Anzahl der sep. WCs
- 1
- Anzahl der Balkone
- 1
- Stellplätze
- 4
- Wohnfläche
- 149m²
- Grundstücksfläche
- 681m²
Kosten
- Kaufpreis
- € 249.000,00
Verwaltung
- Verfügbar ab
- sofort
Häuser zum Kaufen in Österreich
Häuser zum Kaufen in Österreich
Häuser zum Kaufen in Österreich
Andere Besucher suchen nach...
- Grundstücke kaufen in 3400 Weidlingbach
- Wohnungen kaufen in 4663 Laakirchen
- Häuser in 7471 Rechnitz
- Wohnungen in 2410 Hainburg an der Donau
- Häuser kaufen in 2432 Schwadorf
- Wohnungen kaufen in 3002 Purkersdorf
- Häuser in 3150 Wilhelmsburg
- Wohnungen kaufen in 3470 Engelmannsbrunn
- Grundstücke kaufen im Bezirk Mattersburg
- Grundstücke kaufen im Bezirk Gmunden