Hochwertiges Haus mit Wellness, Dachterrasse und Panorama – Wohnen auf höchstem Niveau
€ 899.000
€ 3.793 / m²
8042 Graz
Beschreibung
Dieses exklusive Haus mit atemberaubender Dachterrasse verbindet anspruchsvolle Architektur mit hochwertigen Materialien und einer außergewöhnlichen Ausstattung. Errichtet 2006 in massiver Ziegelbauweise und 2009 fertiggestellt, bietet das Haus auf rund 160 m² Wohnfläche ein luxuriöses, zugleich durchdachtes Wohnkonzept. Der offen gestaltete Wohnbereich (ca. 30 m²) überzeugt mit integriertem Heimkino, Kachelofen und edlem, dunkel geöltem Palisanderboden. Der angrenzende Essbereich sowie die großzügige Designer-Küche (ca. 16 m²) mit Dampfgarer, Induktionskochfeld, integrierter Fritteuse und Granitarbeitsflächen erfüllen höchste Ansprüche an Komfort und Design. Im Obergeschoss befinden sich drei flexibel nutzbare Zimmer mit durchgehendem Balkon, hochwertigen Eichenböden sowie ein stilvoll ausgestattetes Badezimmer mit italienischen Fliesen, Bidet...
Dieses exklusive Haus mit atemberaubender Dachterrasse verbindet anspruchsvolle Architektur mit hochwertigen Materialien und einer außergewöhnlichen Ausstattung. Errichtet 2006 in massiver Ziegelbauweise und 2009 fertiggestellt, bietet das Haus auf rund 160 m² Wohnfläche ein luxuriöses, zugleich durchdachtes Wohnkonzept. Der offen gestaltete Wohnbereich (ca. 30 m²) überzeugt mit integriertem Heimkino, Kachelofen und edlem, dunkel geöltem Palisanderboden. Der angrenzende Essbereich sowie die großzügige Designer-Küche (ca. 16 m²) mit Dampfgarer, Induktionskochfeld, integrierter Fritteuse und Granitarbeitsflächen erfüllen höchste Ansprüche an Komfort und Design.
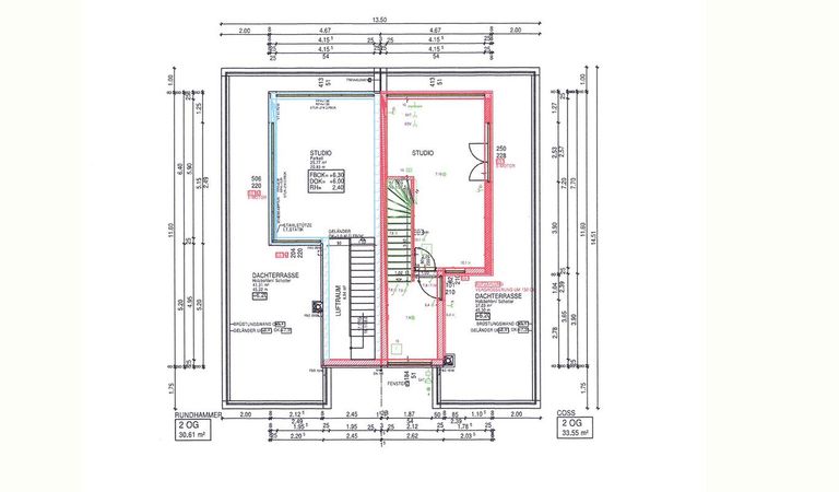
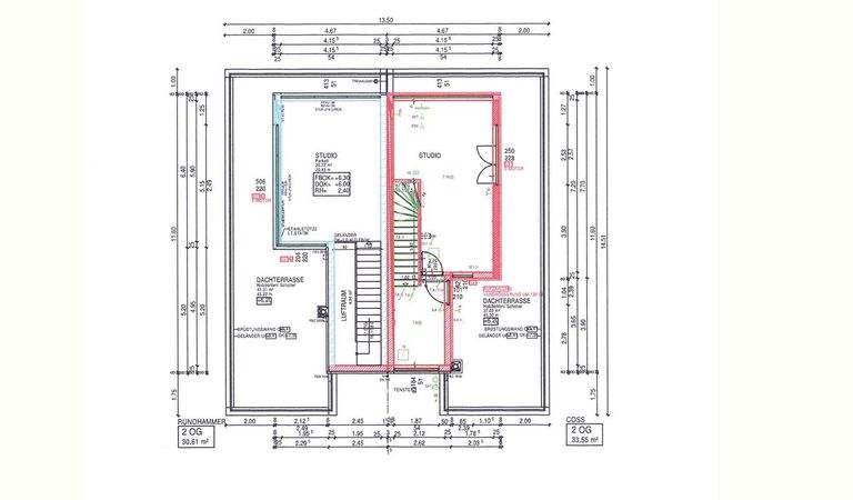
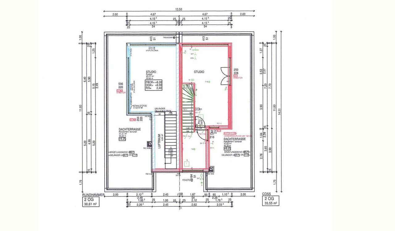
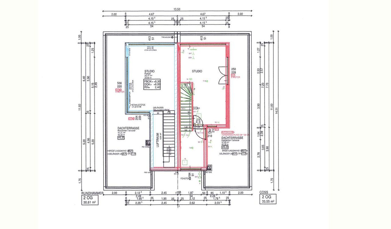
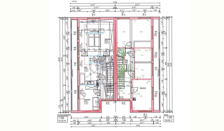
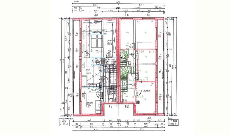
Im Obergeschoss befinden sich drei flexibel nutzbare Zimmer mit durchgehendem Balkon, hochwertigen Eichenböden sowie ein stilvoll ausgestattetes Badezimmer mit italienischen Fliesen, Bidet und Pissoir. Das Dachgeschoss bildet das private Highlight der Immobilie: ein exklusives Studio mit KLAFS-Sauna, Dusche und direktem Zugang zur ca. 37 m² großen, überdachten Dachterrasse mit Whirlpool und eindrucksvollem Blick auf den Schöckl. Ergänzt wird das Raumangebot durch einen ca. 40 m² großen, beheizten Dichtbetonkeller sowie einen liebevoll angelegten Garten mit Obstbäumen und hochwertigen Nebenflächen.
Eckdaten auf einen Blick
• Zimmer: 5
• Schlafzimmer: 3
• Bäder: 2
• WC: 1 separates Gäste-WC
• Stockwerke: 4 (EG, 1. OG, DG, Keller)
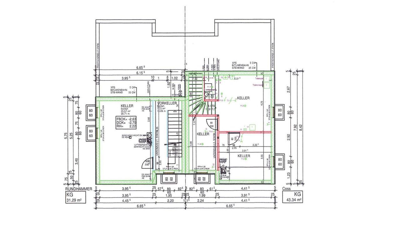
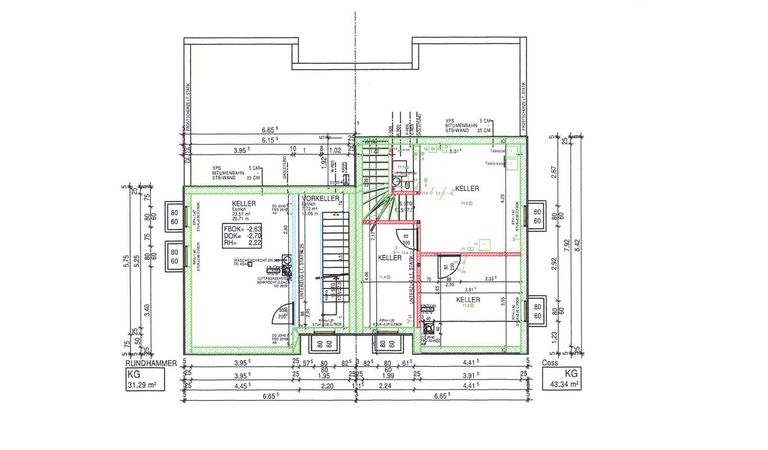
• Keller: ca. 40 m² Dichtbetonkeller mit Fußbodenheizung
Exklusive Extras
• Heimkino mit Beamer, Leinwand & Soundsystem
• Kachelofen
• Edle Holzböden aus Palisander, Eiche und Buche
• Hochwertige Designer-Küche mit Premiumgeräten
• KLAFS-Sauna im Dachgeschoss-Studio
• Überdachte Dachterrasse mit Whirlpool und Panoramablick
• Durchgehender Balkon im Obergeschoss
• Beheizter Keller mit Waschmaschinenanschlüssen
• Gepflegter Garten mit Obstbäumen, Hochbeet und Gartenhaus
• Carport (ca. 20 m²) mit Wallbox für E-Fahrzeuge
• Videoüberwachung
• Balkonkraftwerk mit Speicher
• BWT-Salzanlage zur Wasseraufbereitung
Abgerundet wird dieses außergewöhnliche Angebot durch die ruhige und zugleich hervorragend angebundene Lage nähe ORF-Zentrum Steiermark in Graz. Das grüne Wohnumfeld bietet ein hohes Maß an Privatsphäre, während Einkaufsmöglichkeiten, Schulen, Kinderbetreuung, medizinische Versorgung und öffentliche Verkehrsanbindungen in unmittelbarer Nähe liegen. Die Innenstadt sowie Naherholungsgebiete sind in wenigen Minuten erreichbar – eine seltene Kombination aus urbaner Nähe, Ruhe und nachhaltiger Lebensqualität.
Im Obergeschoss befinden sich drei flexibel nutzbare Zimmer mit durchgehendem Balkon, hochwertigen Eichenböden sowie ein stilvoll ausgestattetes Badezimmer mit italienischen Fliesen, Bidet und Pissoir. Das Dachgeschoss bildet das private Highlight der Immobilie: ein exklusives Studio mit KLAFS-Sauna, Dusche und direktem Zugang zur ca. 37 m² großen, überdachten Dachterrasse mit Whirlpool und eindrucksvollem Blick auf den Schöckl. Ergänzt wird das Raumangebot durch einen ca. 40 m² großen, beheizten Dichtbetonkeller sowie einen liebevoll angelegten Garten mit Obstbäumen und hochwertigen Nebenflächen.
Eckdaten auf einen Blick
• Zimmer: 5
• Schlafzimmer: 3
• Bäder: 2
• WC: 1 separates Gäste-WC
• Stockwerke: 4 (EG, 1. OG, DG, Keller)
• Keller: ca. 40 m² Dichtbetonkeller mit Fußbodenheizung
Exklusive Extras
• Heimkino mit Beamer, Leinwand & Soundsystem
• Kachelofen
• Edle Holzböden aus Palisander, Eiche und Buche
• Hochwertige Designer-Küche mit Premiumgeräten
• KLAFS-Sauna im Dachgeschoss-Studio
• Überdachte Dachterrasse mit Whirlpool und Panoramablick
• Durchgehender Balkon im Obergeschoss
• Beheizter Keller mit Waschmaschinenanschlüssen
• Gepflegter Garten mit Obstbäumen, Hochbeet und Gartenhaus
• Carport (ca. 20 m²) mit Wallbox für E-Fahrzeuge
• Videoüberwachung
• Balkonkraftwerk mit Speicher
• BWT-Salzanlage zur Wasseraufbereitung
Abgerundet wird dieses außergewöhnliche Angebot durch die ruhige und zugleich hervorragend angebundene Lage nähe ORF-Zentrum Steiermark in Graz. Das grüne Wohnumfeld bietet ein hohes Maß an Privatsphäre, während Einkaufsmöglichkeiten, Schulen, Kinderbetreuung, medizinische Versorgung und öffentliche Verkehrsanbindungen in unmittelbarer Nähe liegen. Die Innenstadt sowie Naherholungsgebiete sind in wenigen Minuten erreichbar – eine seltene Kombination aus urbaner Nähe, Ruhe und nachhaltiger Lebensqualität.
| Angaben gemäß gesetzlichem Erfordernis: | |||
| Heizwärmebedarf: | 77.5 kWh/(m²a) | ||
| Klasse Heizwärmebedarf: | C | ||
| Faktor Gesamtenergieeffizienz: | 1.4 | ||
Objektdaten
Ausstattung
- Räume veränderbar
- Kamin
- Gartennutzung
- Kabel/SAT-TV
- Sauna
- Unterkellert
- Zentralheizung
- Befeuerung mit Gas
- Massiv Bauweise
- Neubaustandard
- Bad
- Zeigelmassiv
- Bus
- Geschirrspüler
- Glaskeramikfeld
- Grüne Lage
- Kamin
- Küche
- Sonstiges
- Räume veränderbar
- Kabel/SAT-TV
- Sonnenschutz
- Stadtrand
- Straßenbahn
- Unterkellert
- Villengegend
- Zentralheizung mit Gas
- Kamin
- Räume veränderbar
- Kabel/SAT-TV
- Unterkellert
Zustand
- Zustand
- GEPFLEGT
- Baujahr
- ca. 2006
- Alter
- NEUBAU
Flächen
- Anzahl der Zimmer
- 5
- Anzahl der Badezimmer
- 2
- Anzahl der sep. WCs
- 2
- Anzahl der Terrassen
- 37
- Wohnfläche
- 160m²
- Nutzfläche
- 237m²
- Grundstücksfläche
- 349m²
- Kellerfläche
- 40m²
- Terrassenfläche
- 37m²
Kosten
- Kaufpreis
- € 899.000,00
- Nebenkosten
- € 300,00
- Betriebskosten Brutto
- € 300,00
Häuser zum Kaufen in Österreich
Häuser zum Kaufen in Österreich
Häuser zum Kaufen in Österreich
Andere Besucher suchen nach...
- Grundstücke kaufen in 3400 Weidlingbach
- Wohnungen kaufen in 4663 Laakirchen
- Häuser in 7471 Rechnitz
- Wohnungen in 2410 Hainburg an der Donau
- Häuser kaufen in 2432 Schwadorf
- Wohnungen kaufen in 3002 Purkersdorf
- Häuser in 3150 Wilhelmsburg
- Wohnungen kaufen in 3470 Engelmannsbrunn
- Grundstücke kaufen im Bezirk Mattersburg
- Grundstücke kaufen im Bezirk Gmunden